Реконструкция квартиры по ул. Восточная, 137 в ЖК «4 Сезона»
Пожелания заказчика:
- Смена назначения помещений (перенос кухни в жилую, жилую в кухню);
- Устройство перегородок с дверным проёмом на части площади коридора с целью устройства гардеробной.
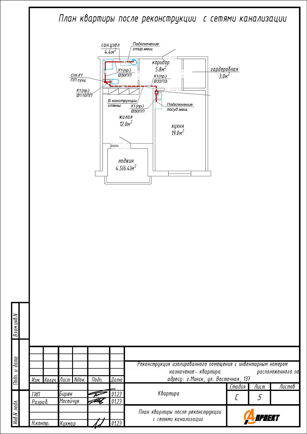
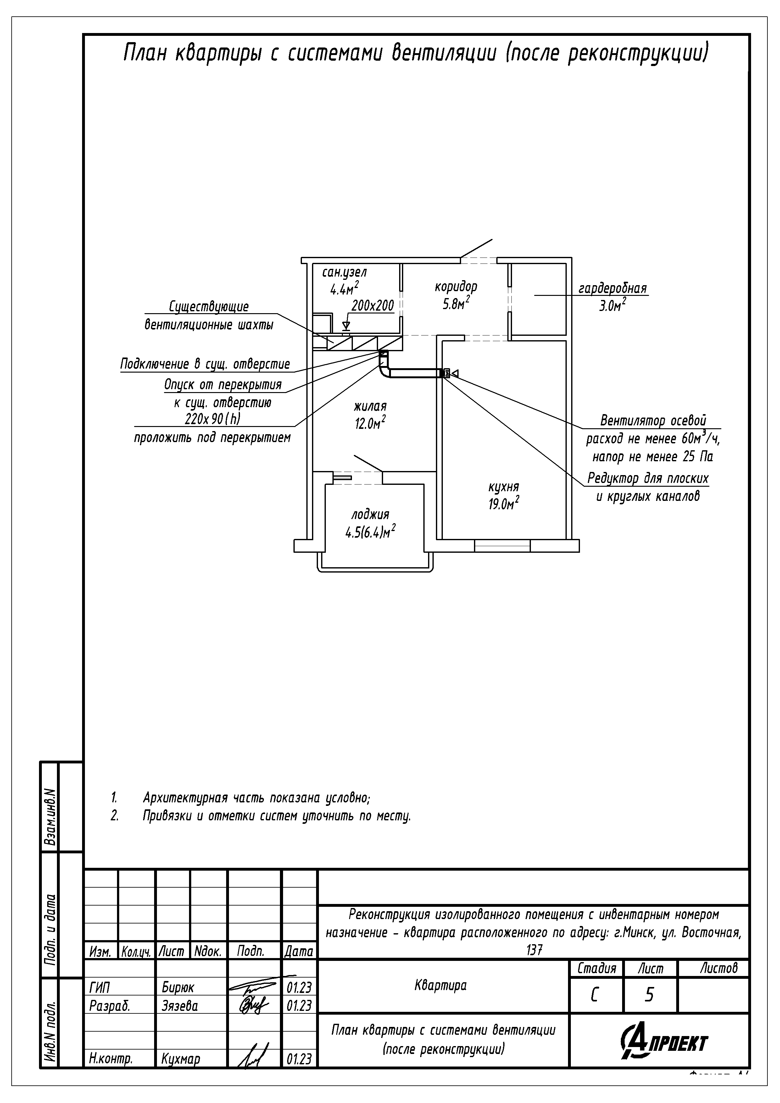
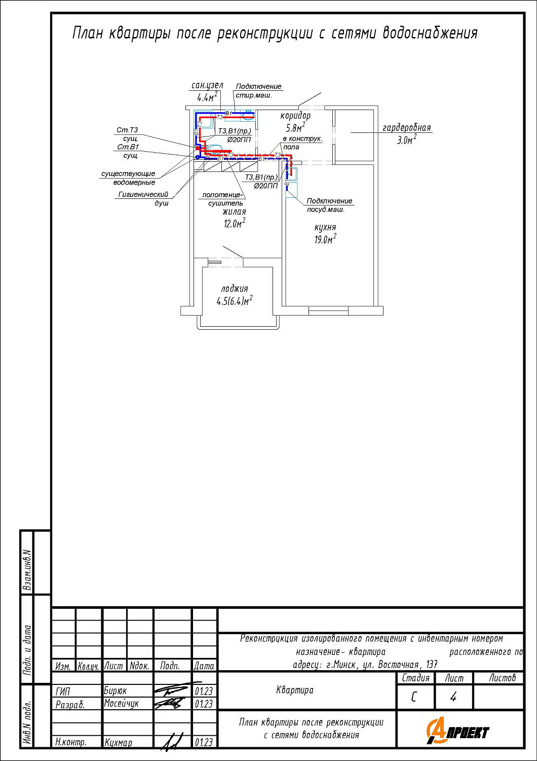
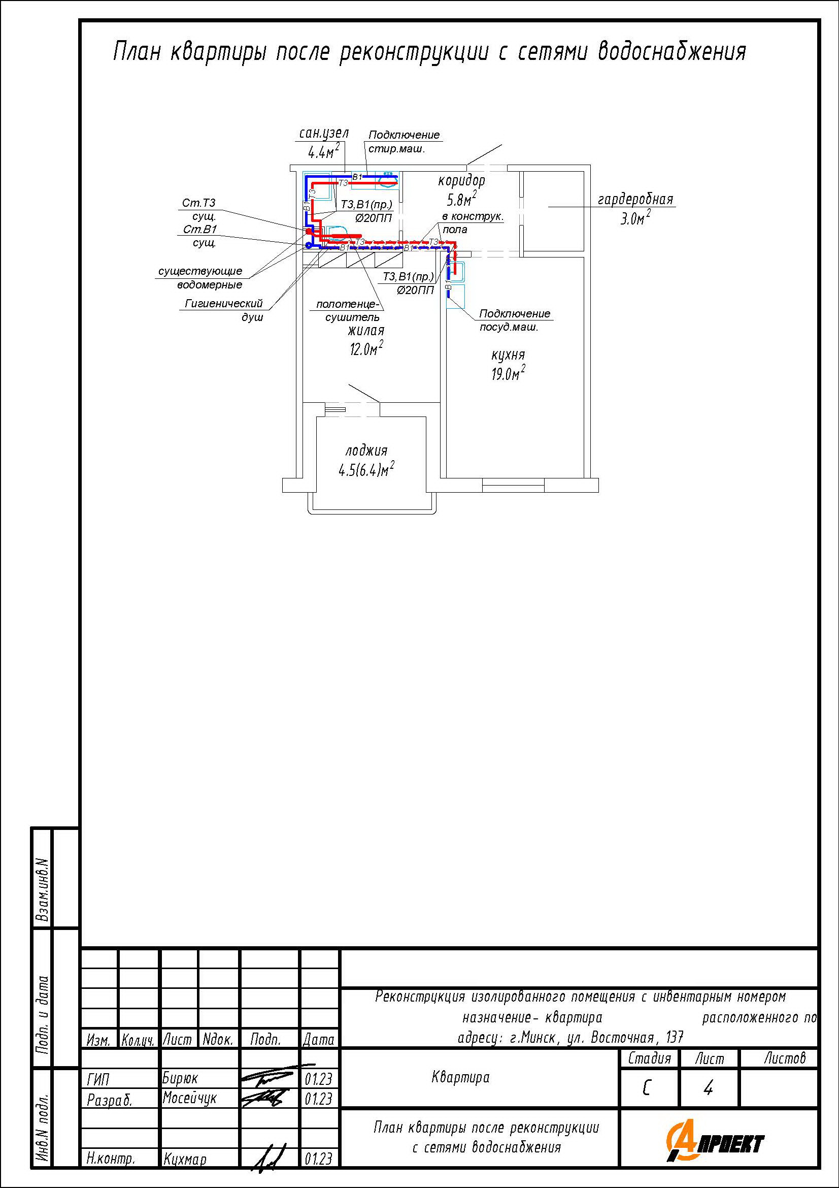
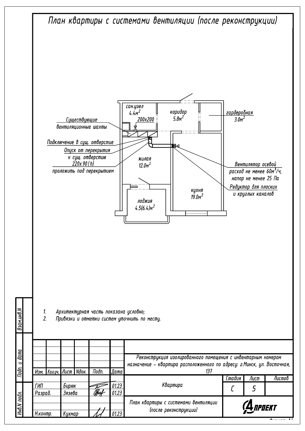
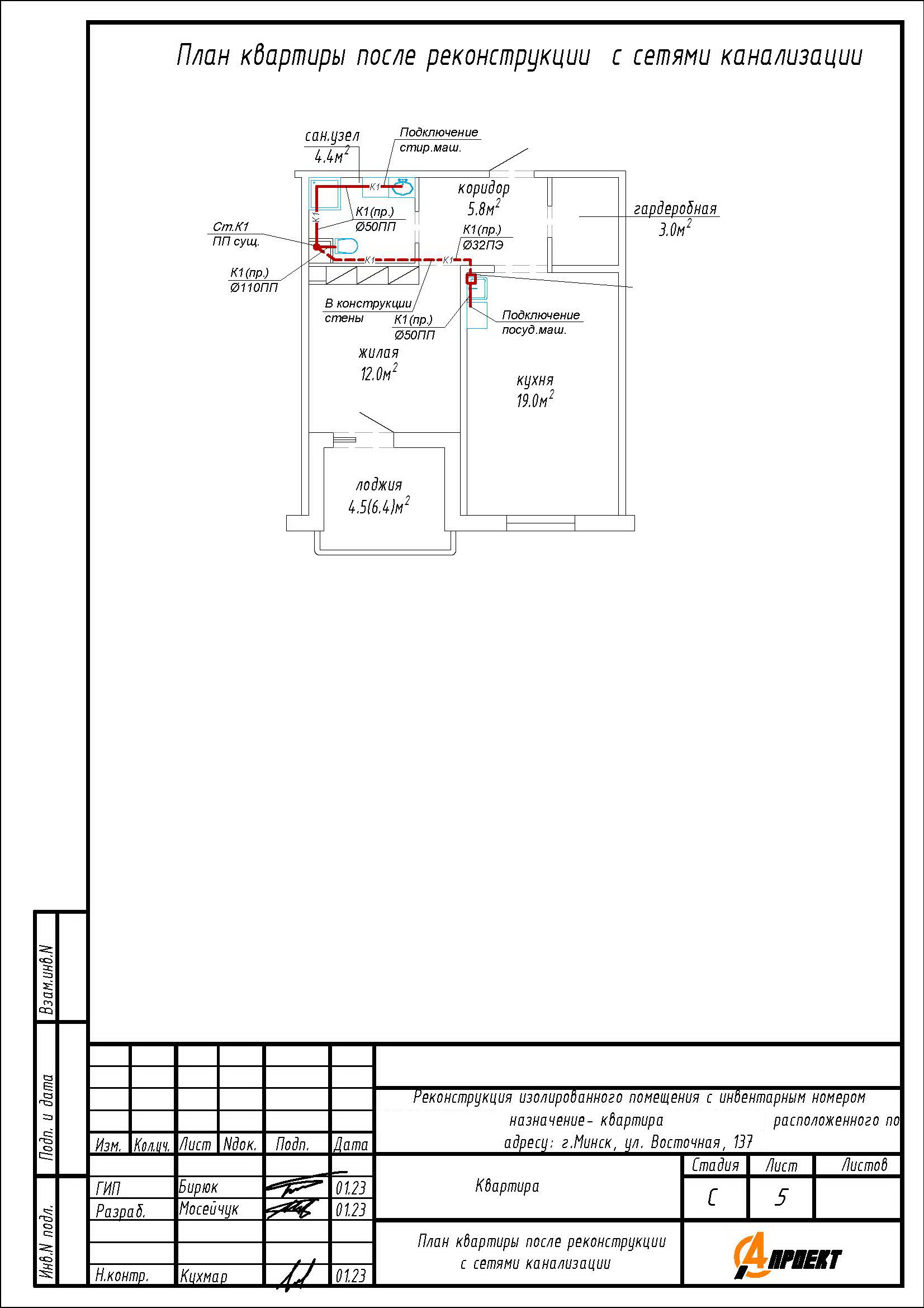
Нами были разработаны следующие разделы проектной документации для согласования в исполкоме:
- АС - архитектурно-строительные решения;
- ОВ - отопление и вентиляция;
- ВК - водоснабжение и канализация.
