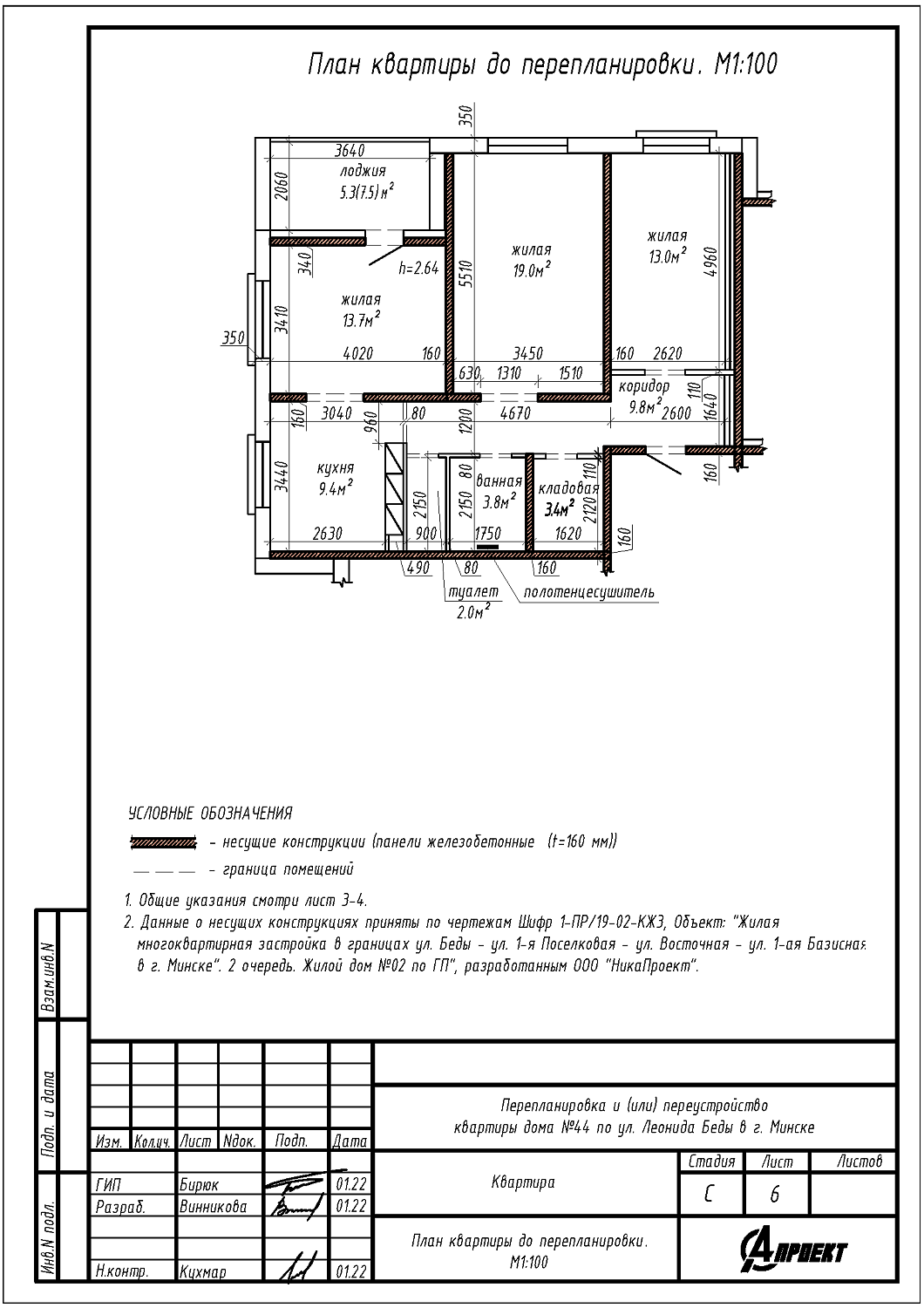
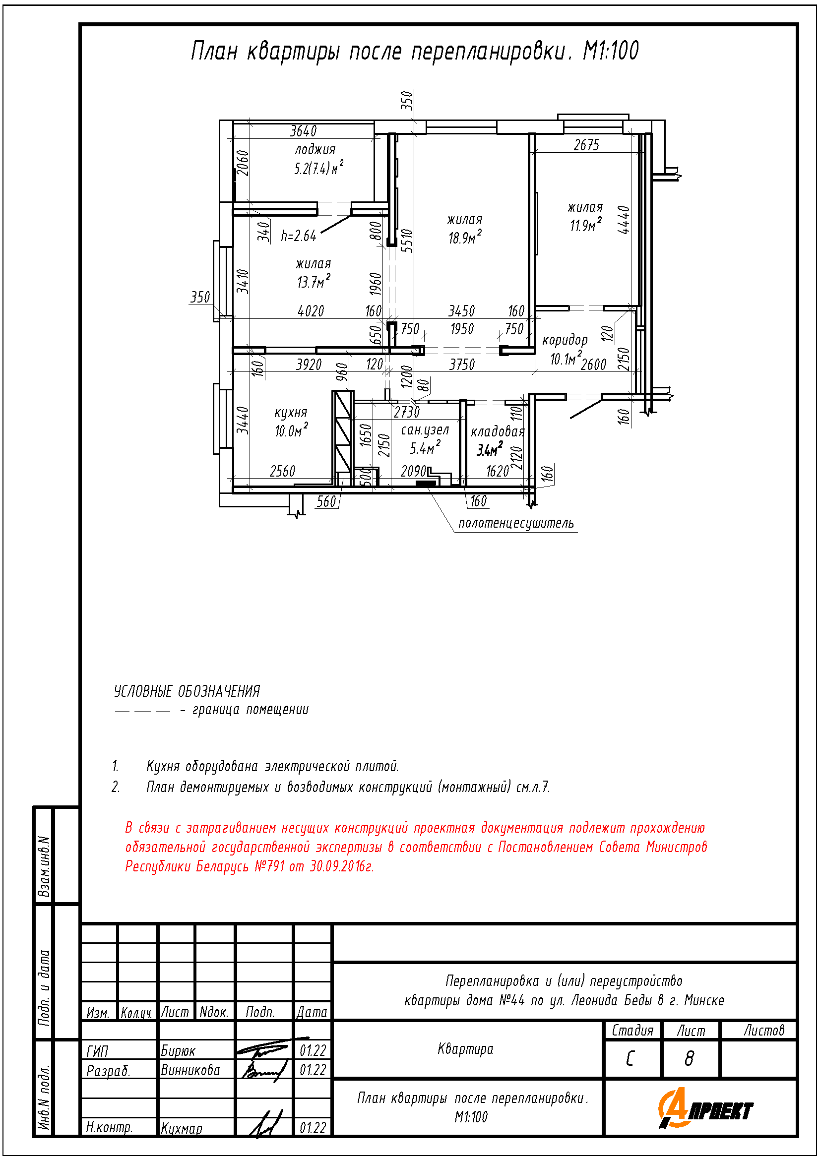
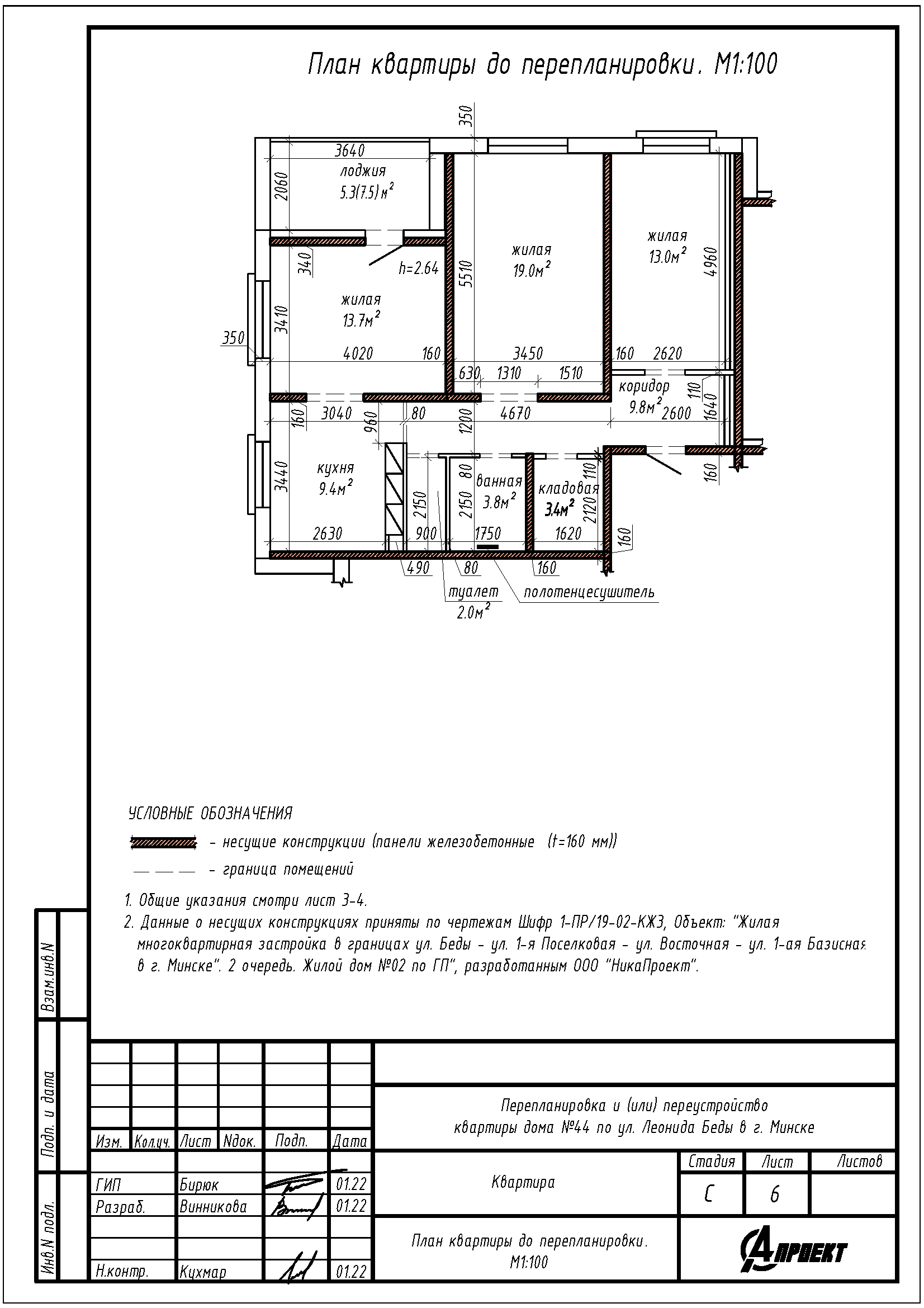
Перепланировка квартиры по ул. Леонида Беды, 44 в ЖК «4 Сезона»
Пожелания заказчика:
- Объединение ванной и туалета в единый санузел;
- Смена направления открывания входной двери;
- Расширение дверного проёма в несущей стене между жилыми;
- Расширение дверного проёма в несущей стене между жилой и коридором;
- Изменение площади жилой;
- Закладка дверного проёма между кухней и жилой;
- Устройство зашивок из ГКЛ на части площади жилых, кухни и жилой;
- Увеличение дверного проёма в перегородке между коридором и кладовой;
- Устройство зашивок из коммуникаций и инсталляции на части площади туалета и ванной;
- Перенос отопительных приборов.
Нами были разработаны следующие разделы проектной документации для согласования в исполкоме:
- АС - архитектурно-строительные решения;
- ОВ - отопление и вентиляция.
