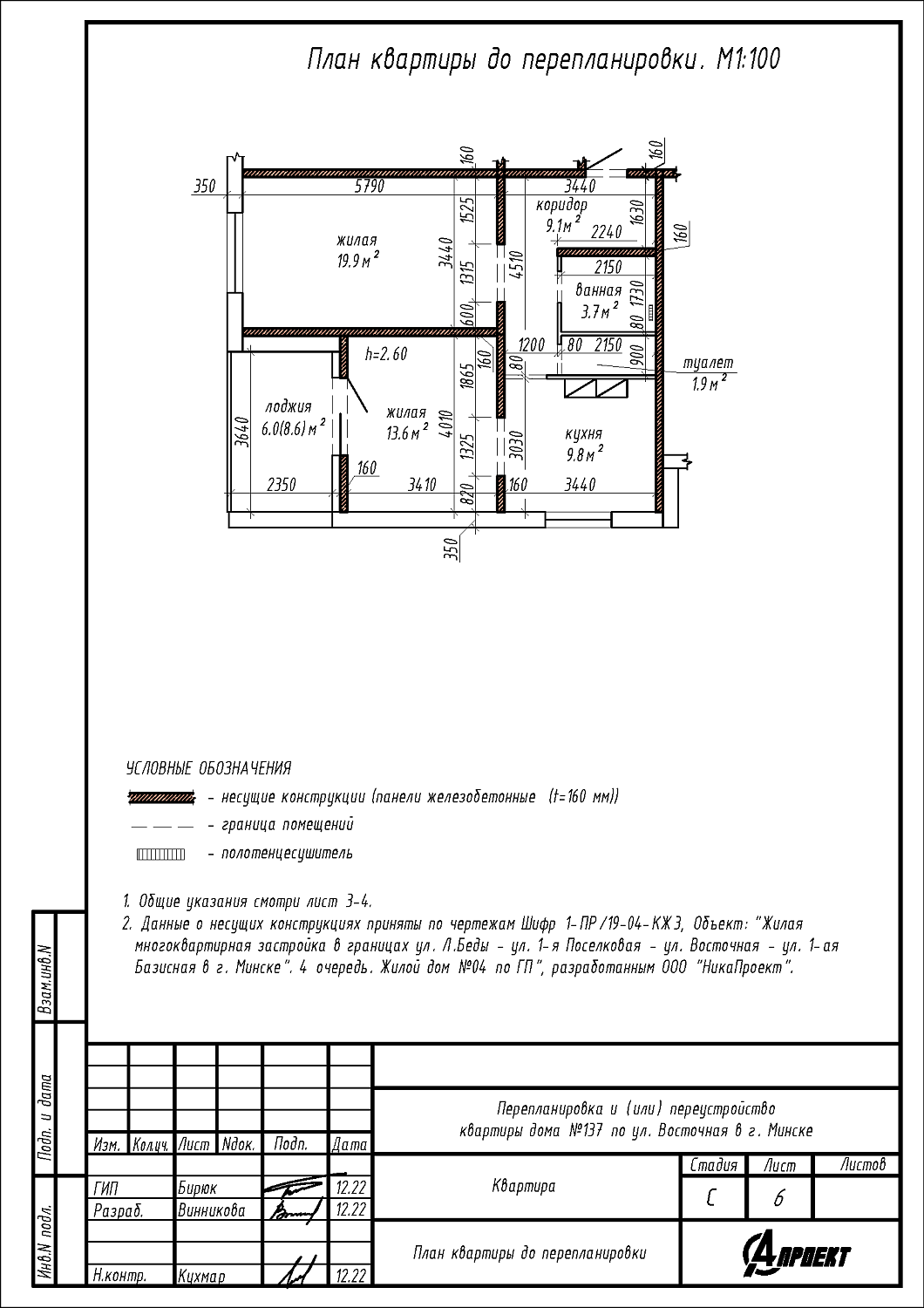
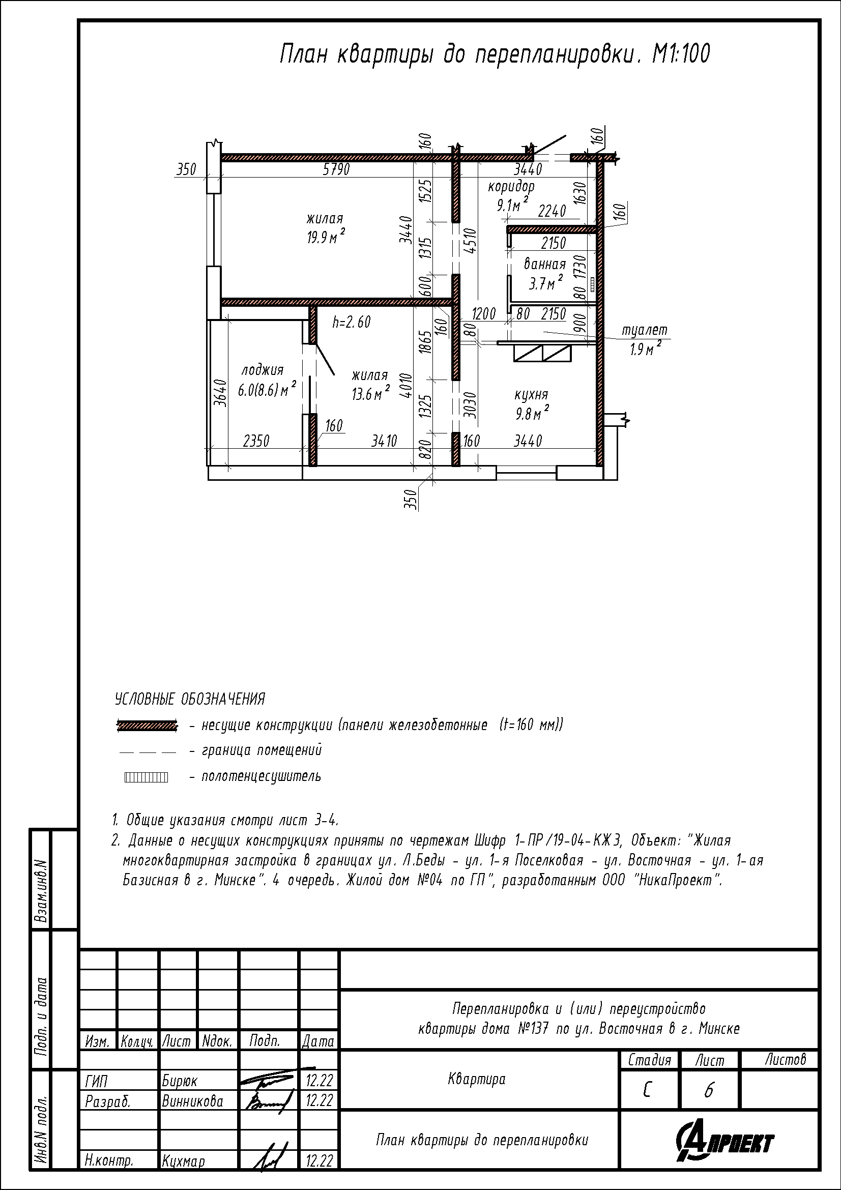
Перепланировка квартиры по ул. Восточная, 137 в ЖК «4 Сезона»
Пожелания заказчика:
- Объединение ванной и туалета в единый санузел;
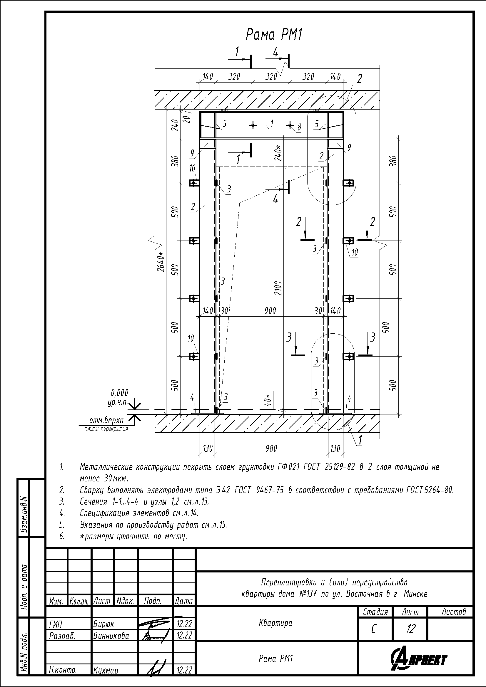
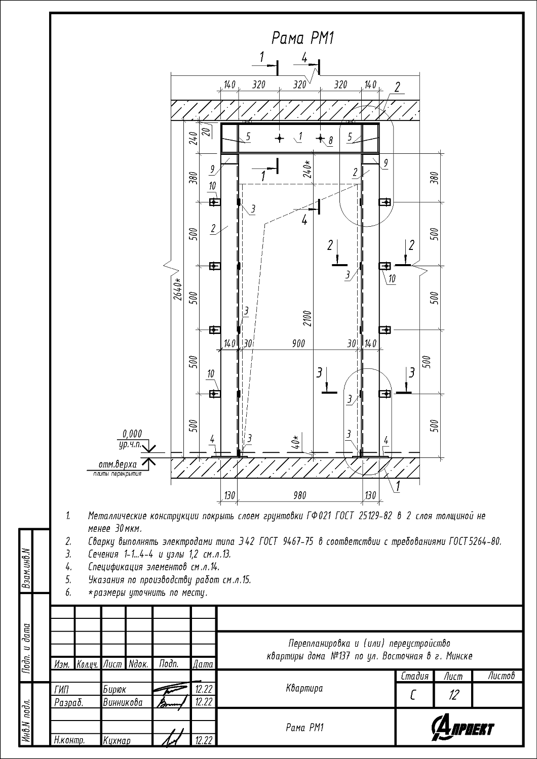
- Закладка дверного проёма в несущей стене между жилой и кухней, с целью устройства нового проёма;
- Замена дверного блока в стене между лоджией и жилой;
- Устройство зашивок коммуникаций и инсталляций в санузле;
- Демонтаж дверного проёма между коридором и кухней, с целью устройства нового дверного проёма;
- Сужение дверного проёма в стене между коридором и жилой.
Нами были разработаны следующие разделы проектной документации для согласования в исполкоме:
- АС - архитектурно-строительные решения.
