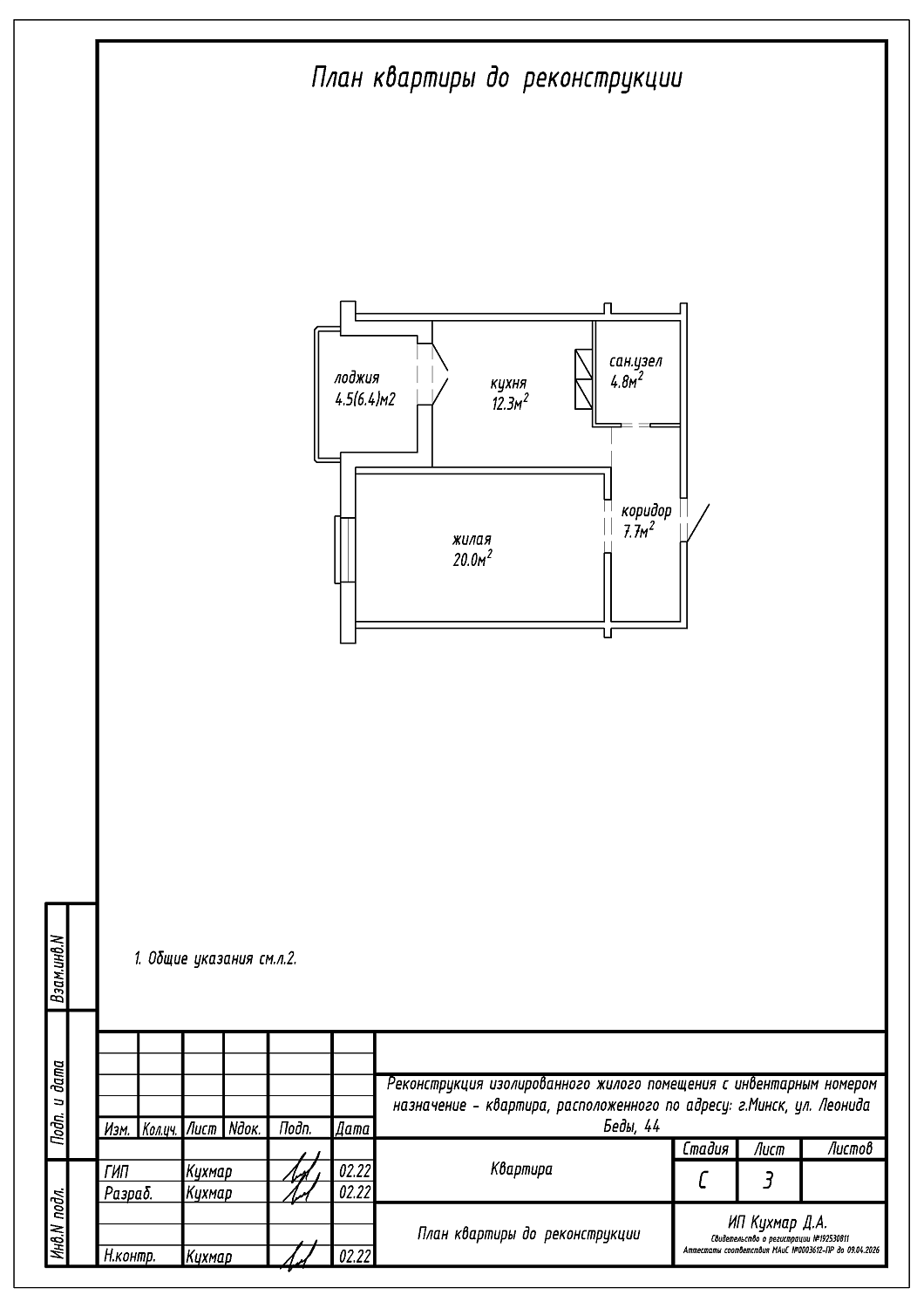
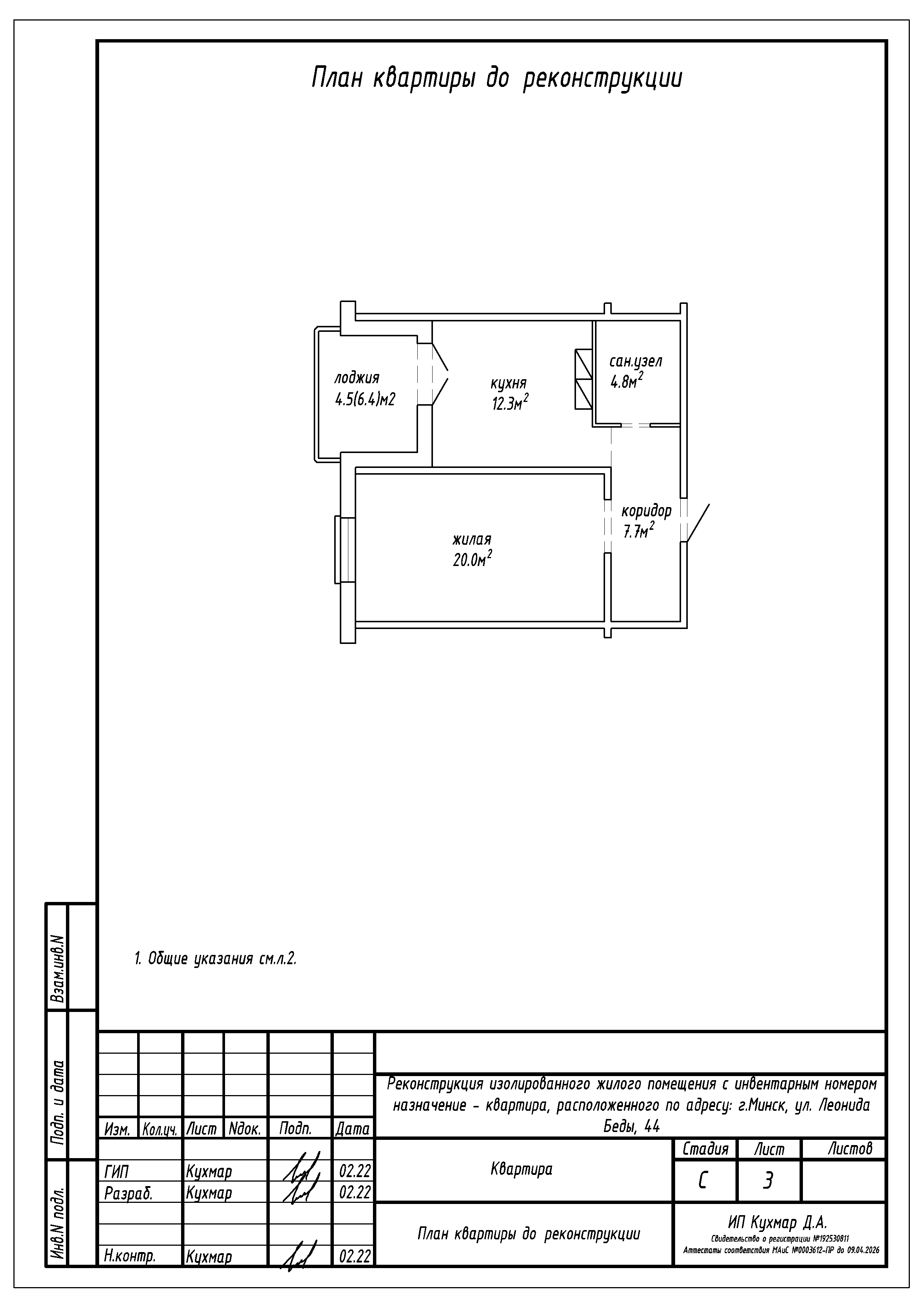
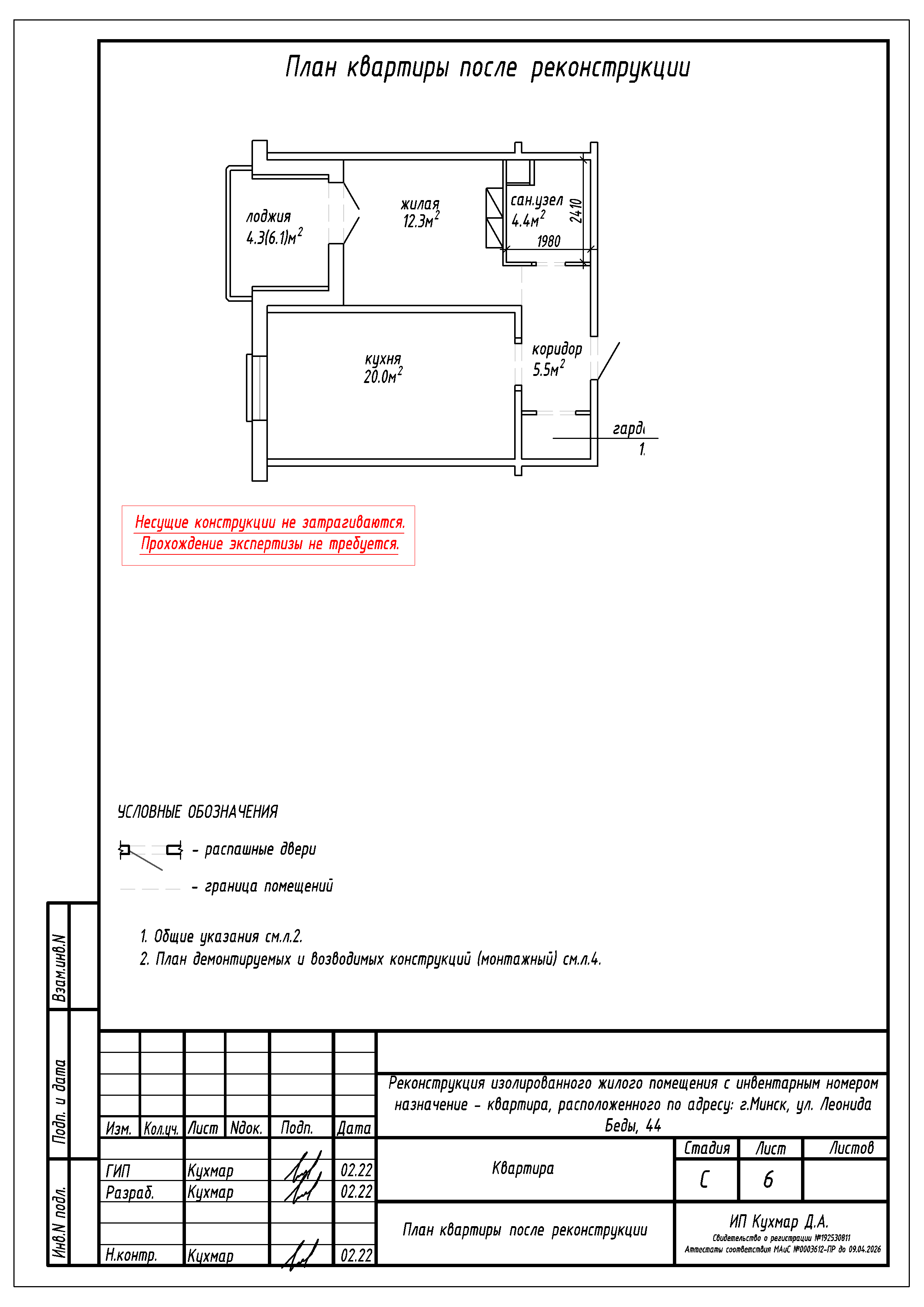
Реконструкция квартиры по ул. Леонида Беды, 44 в ЖК «4 Сезона»
Пожелания заказчика:
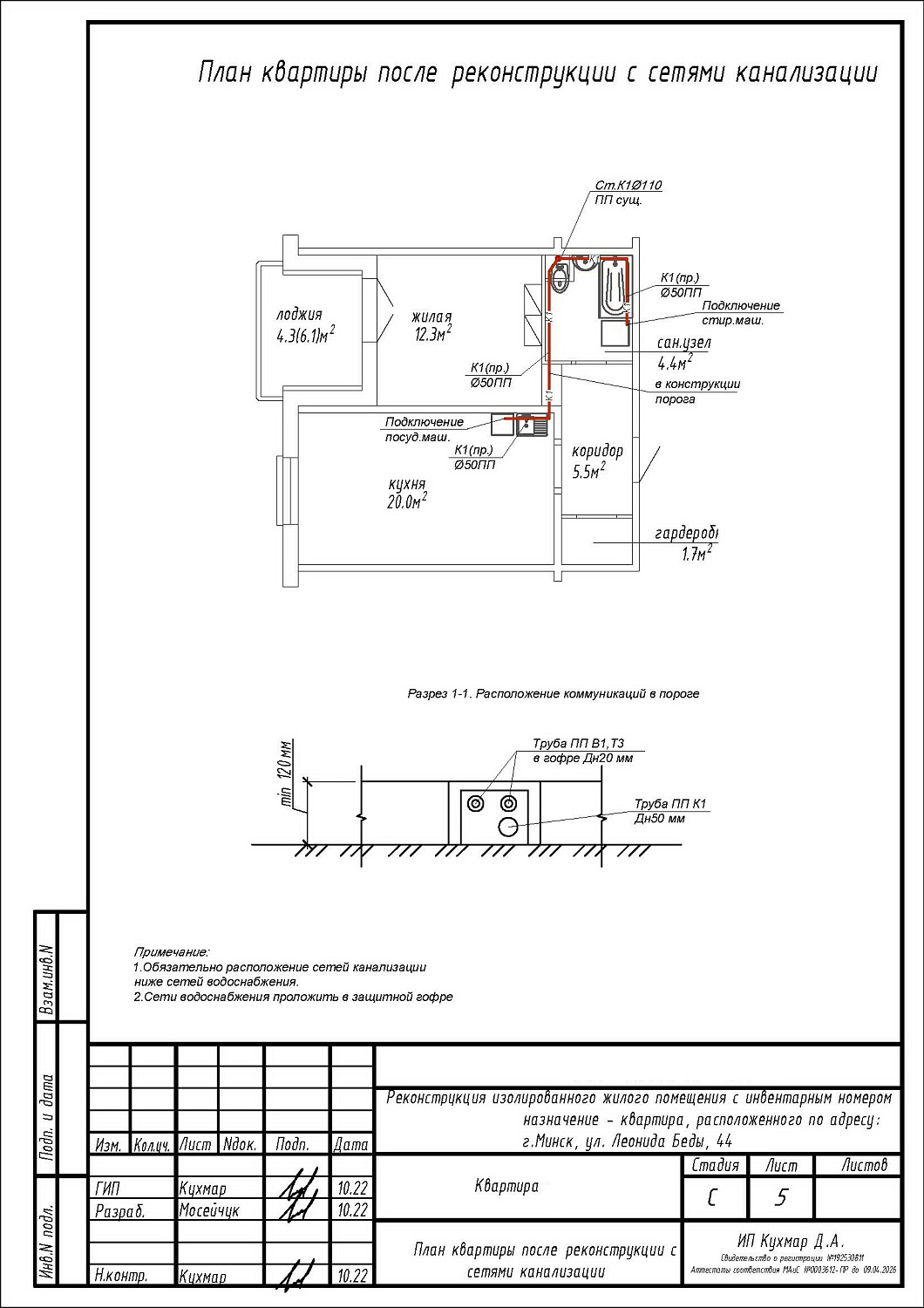
- Перенос кухни в жилую;
- Устройство жилой на площади кухни;
- Устройство гардеробной на части площади коридора;
- Смещение дверного проёма между санузлом и коридором;
- Устройство утеплителя в лоджии;
- Сужение дверного проёма в стене между жилой и коридором
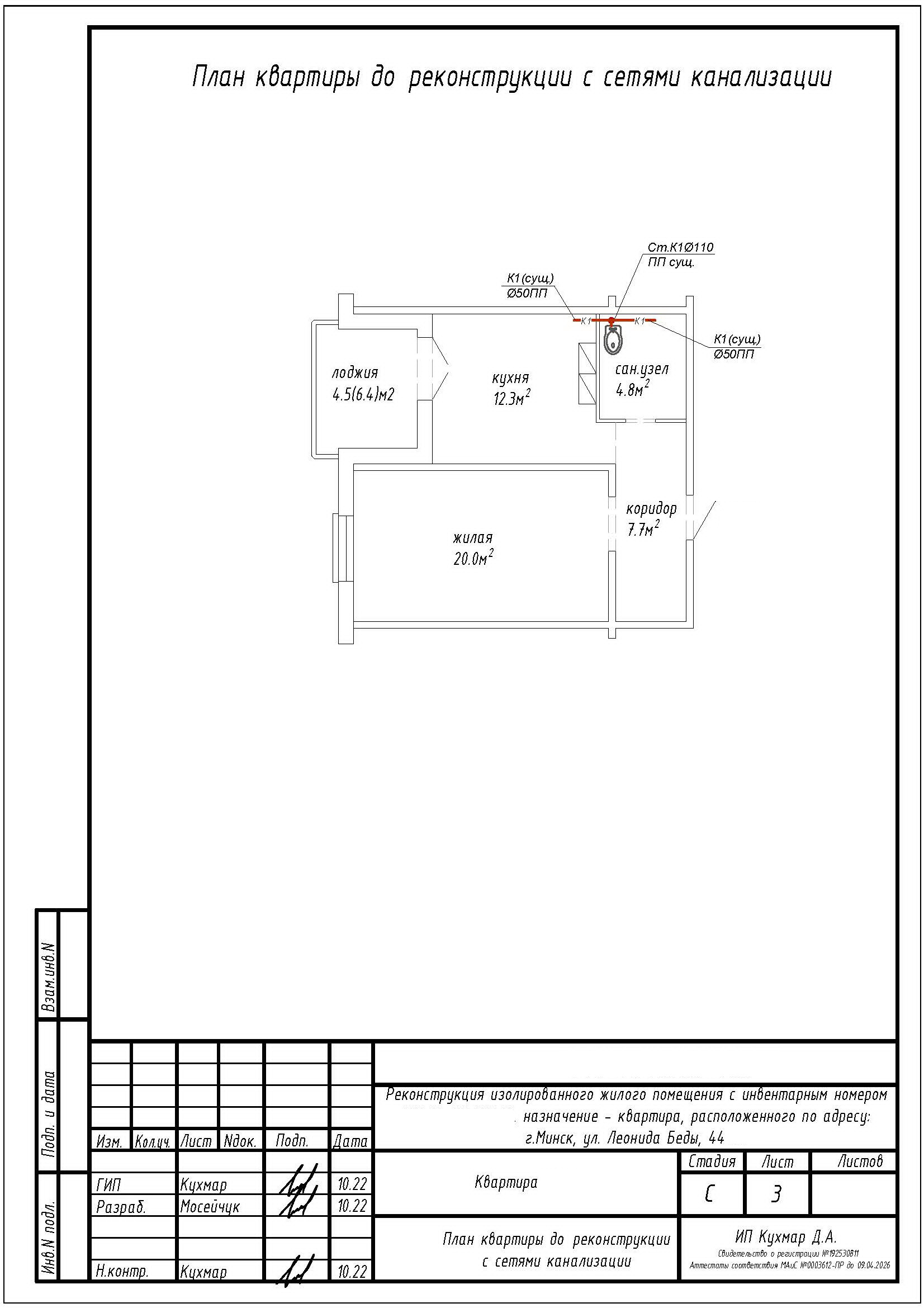
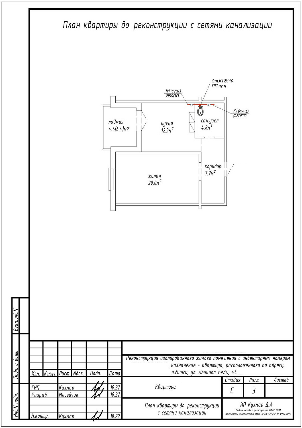
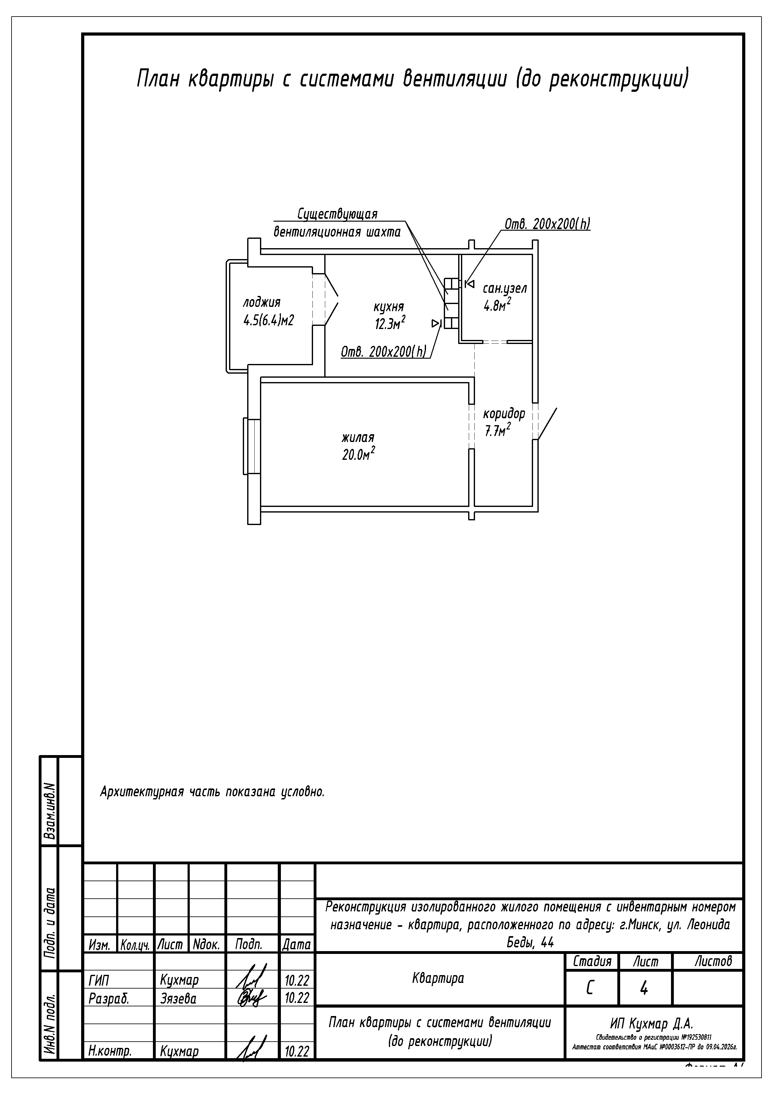
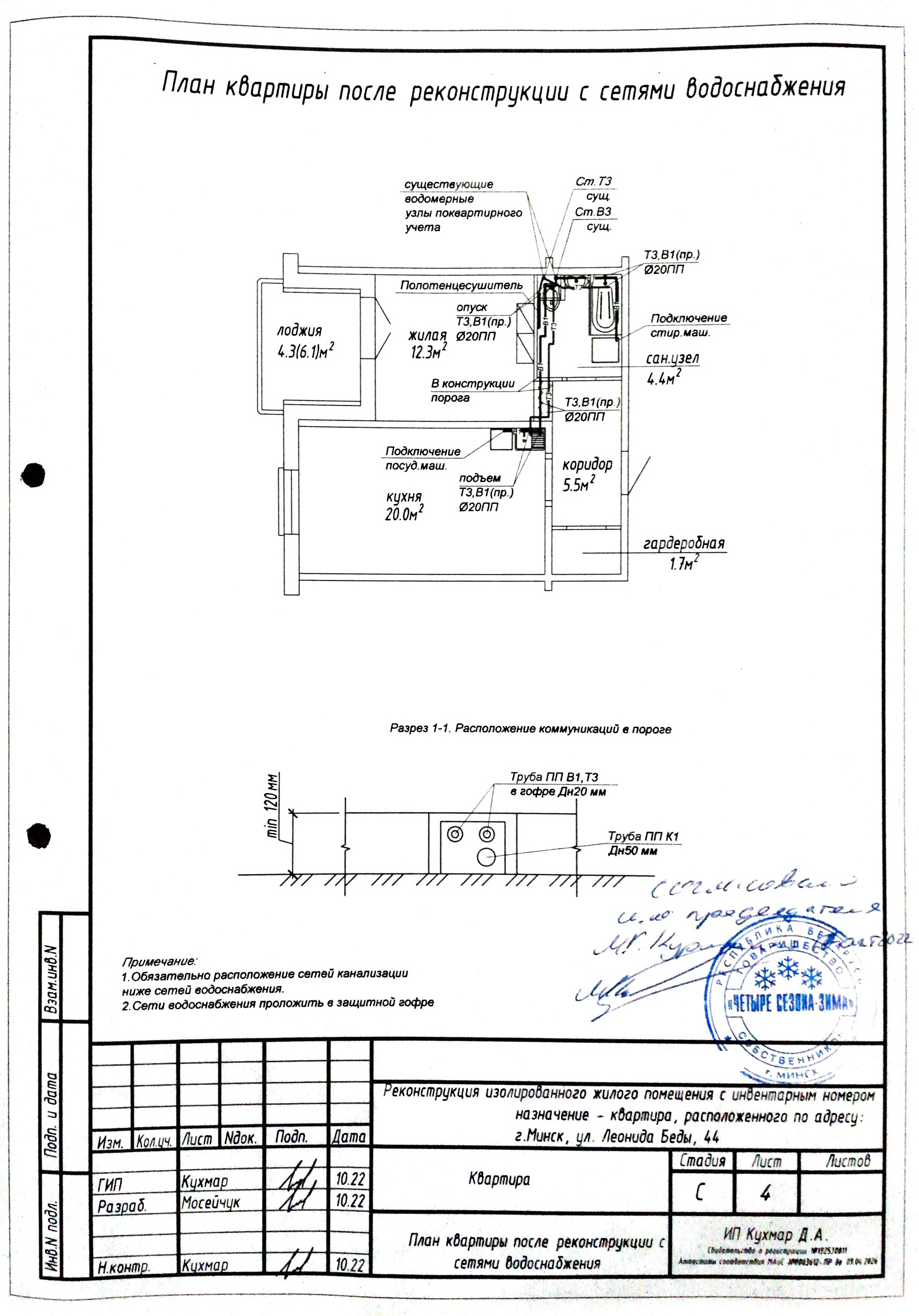
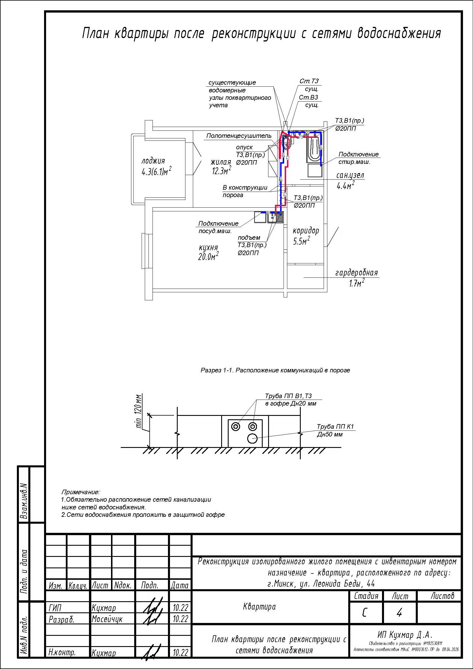
Нами были разработаны следующие разделы проектной документации для согласования в исполкоме:
- АС - архитектурно-строительные решения;
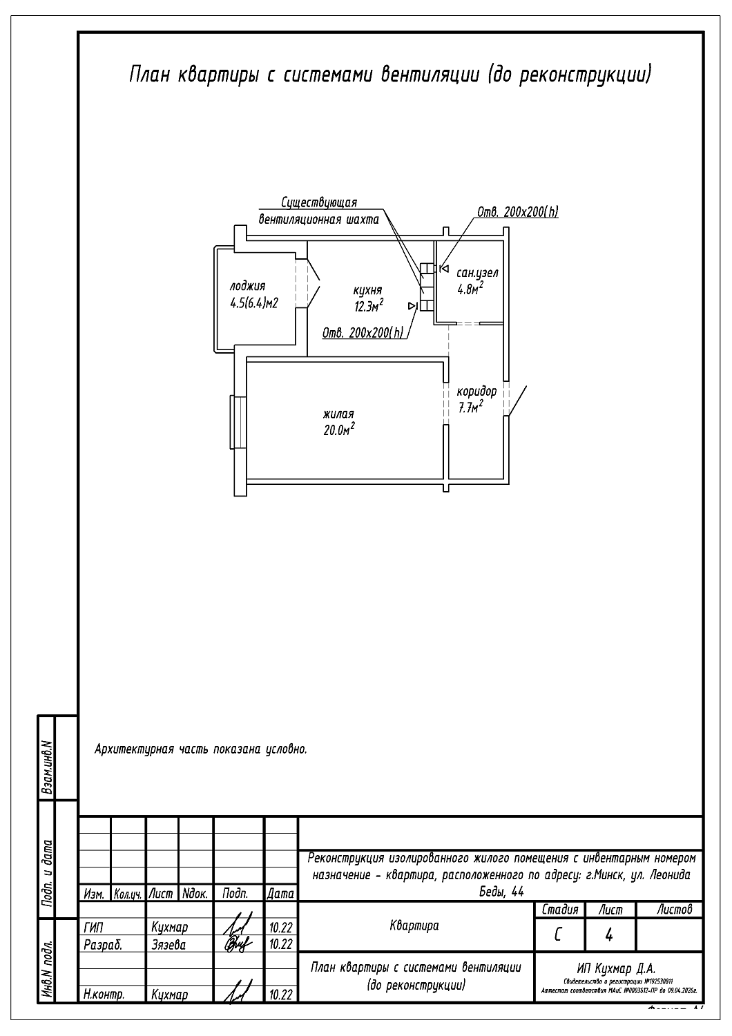
- ОВ - отопление и вентиляция;
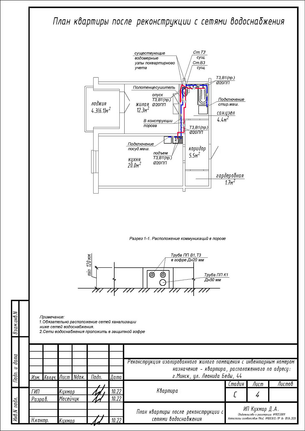
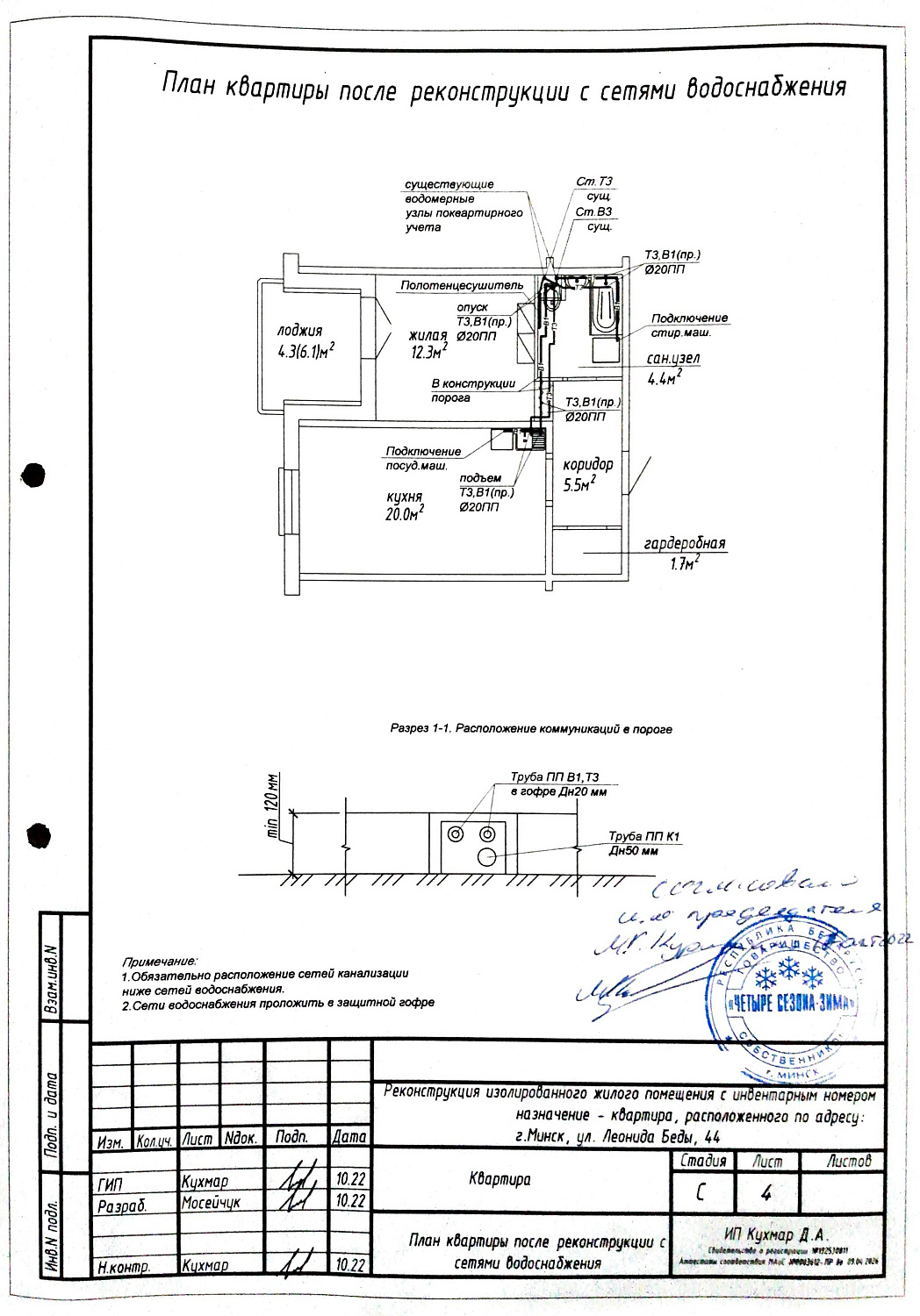
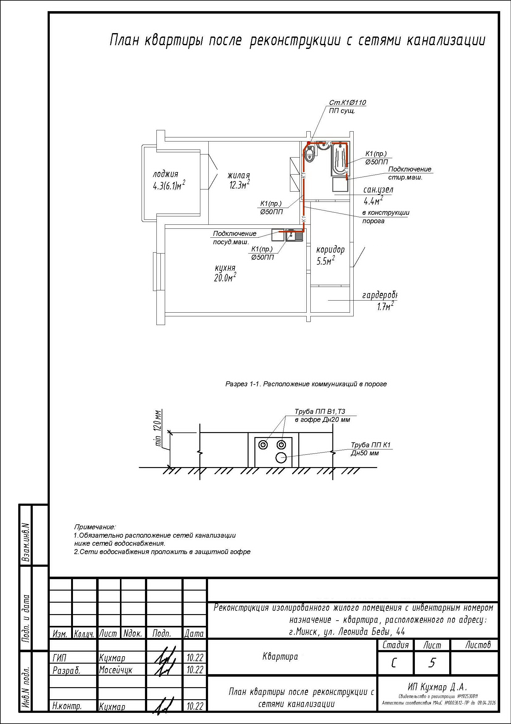
- ВК - водоснабжение и канализация.
