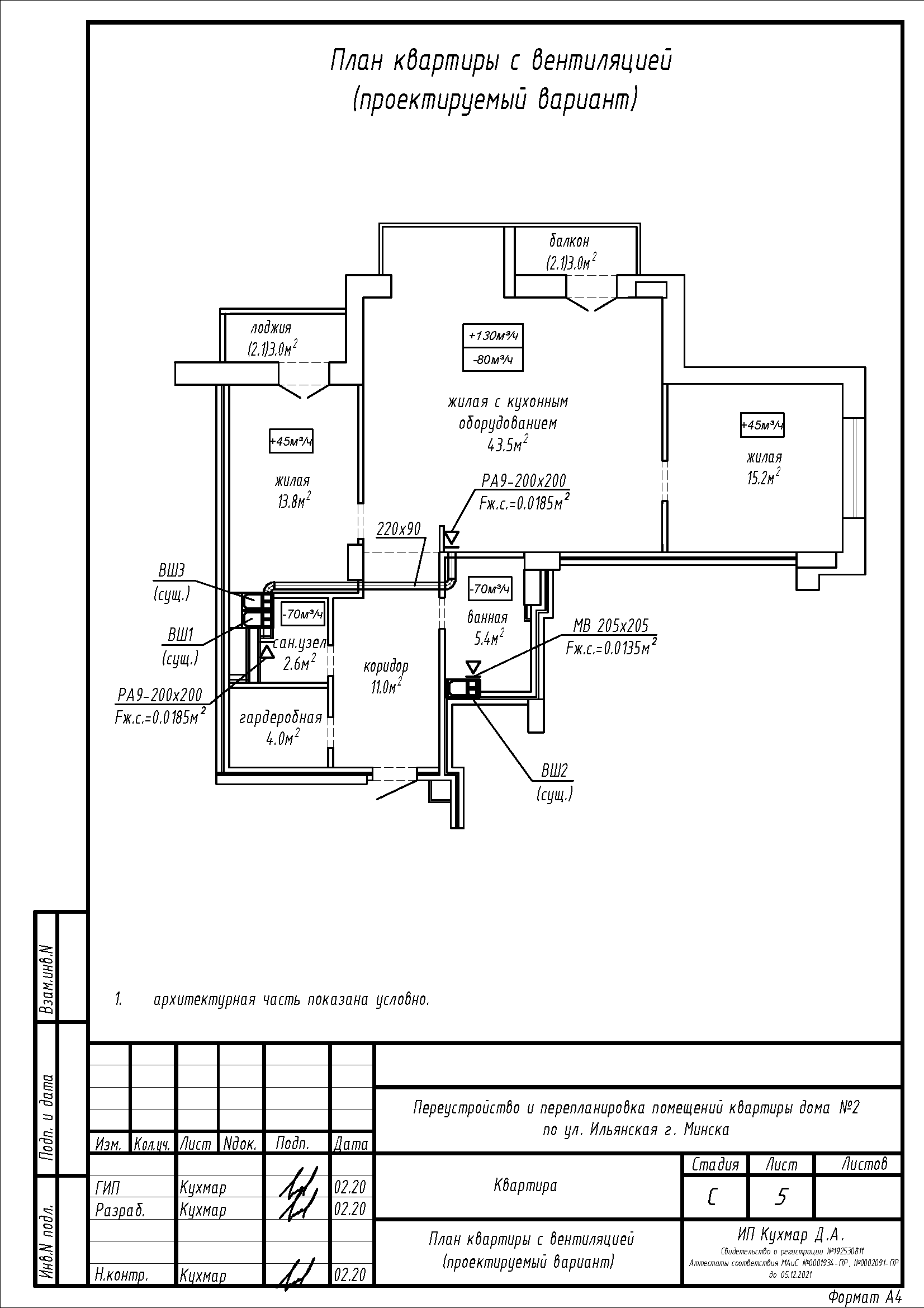
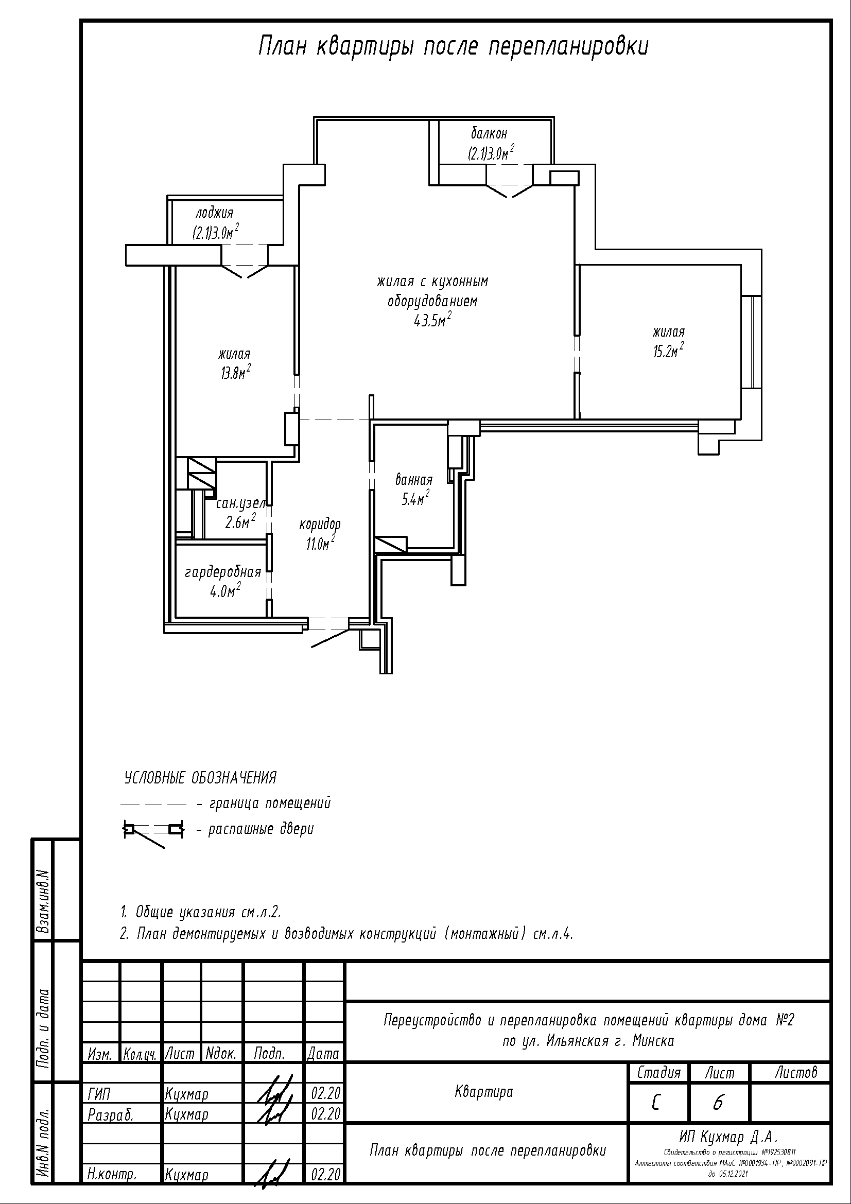
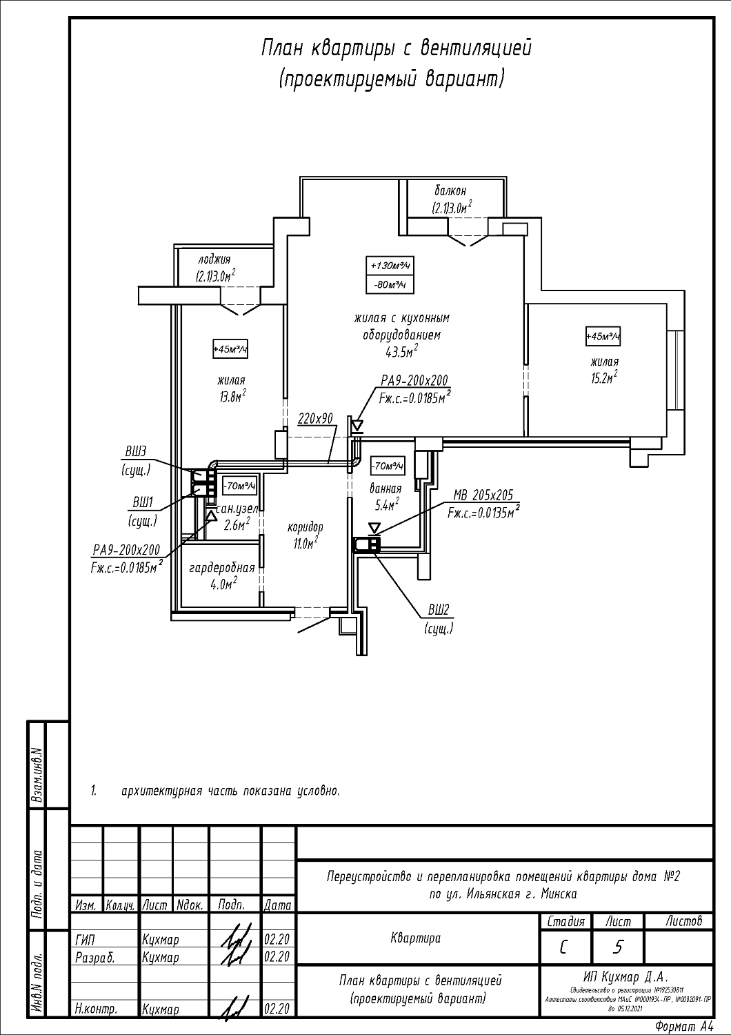
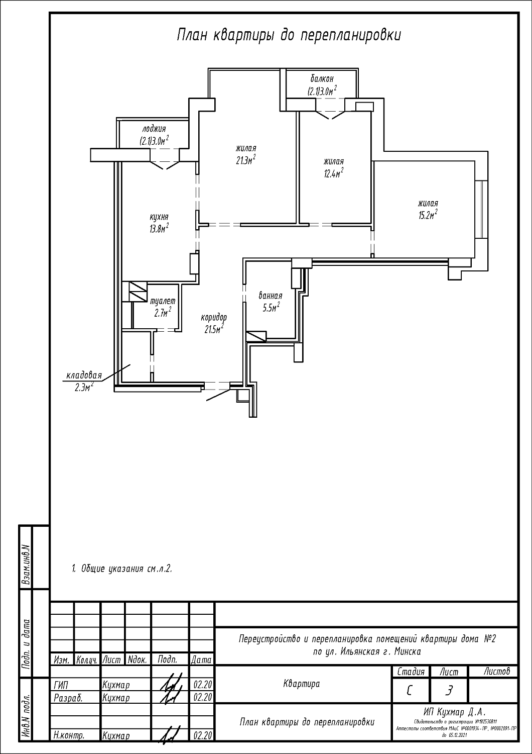
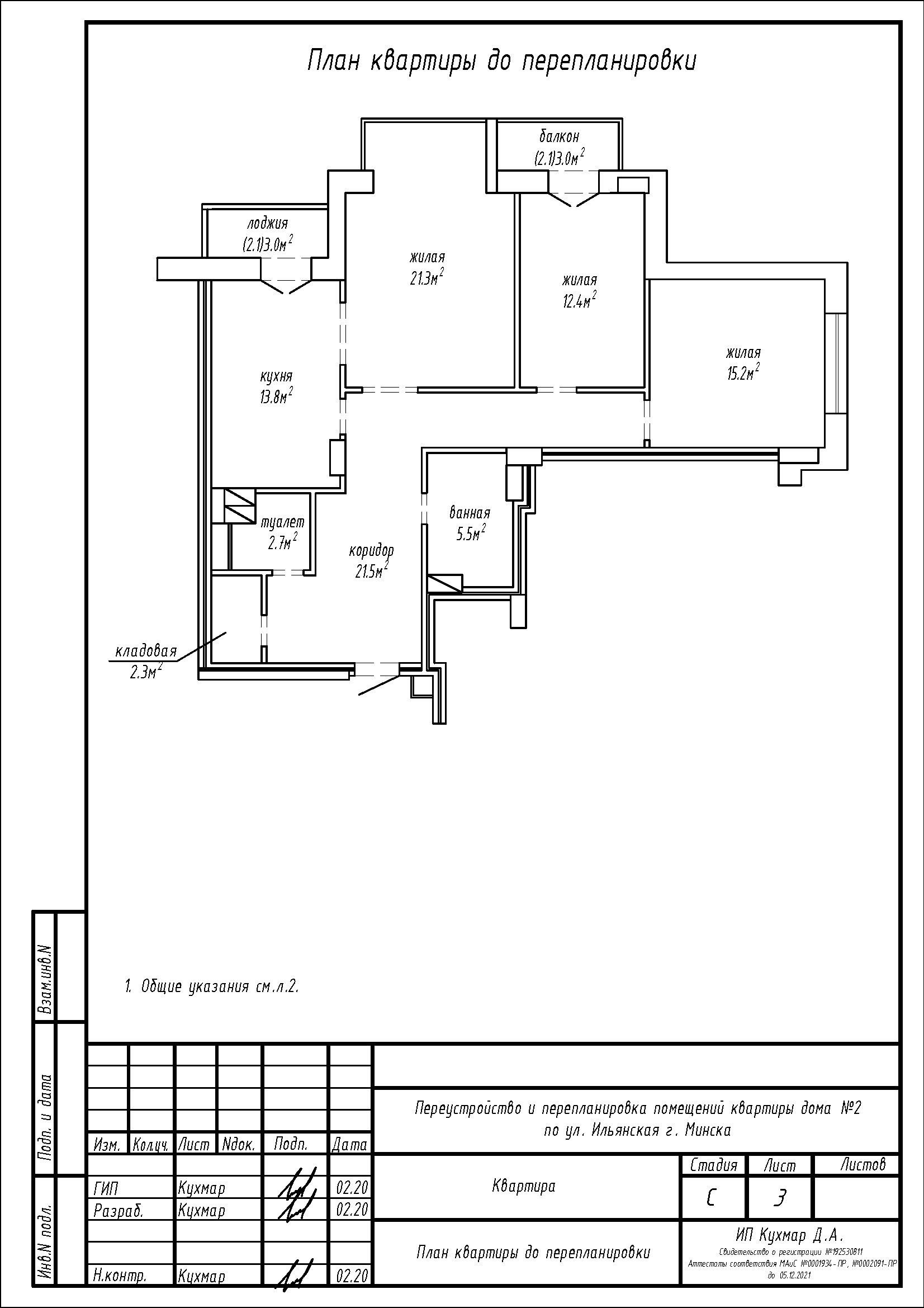
Перепланировка квартиры по ул. Ильянская, 2 в ЖК «Променд»
Пожелания заказчика:
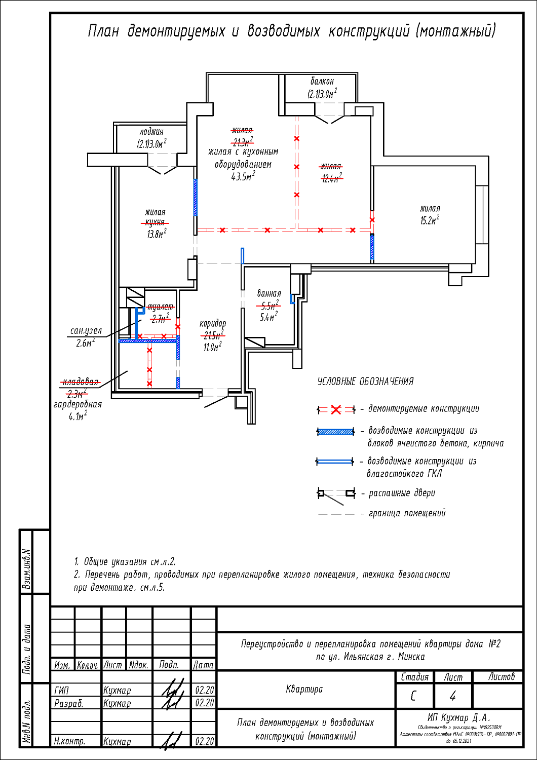
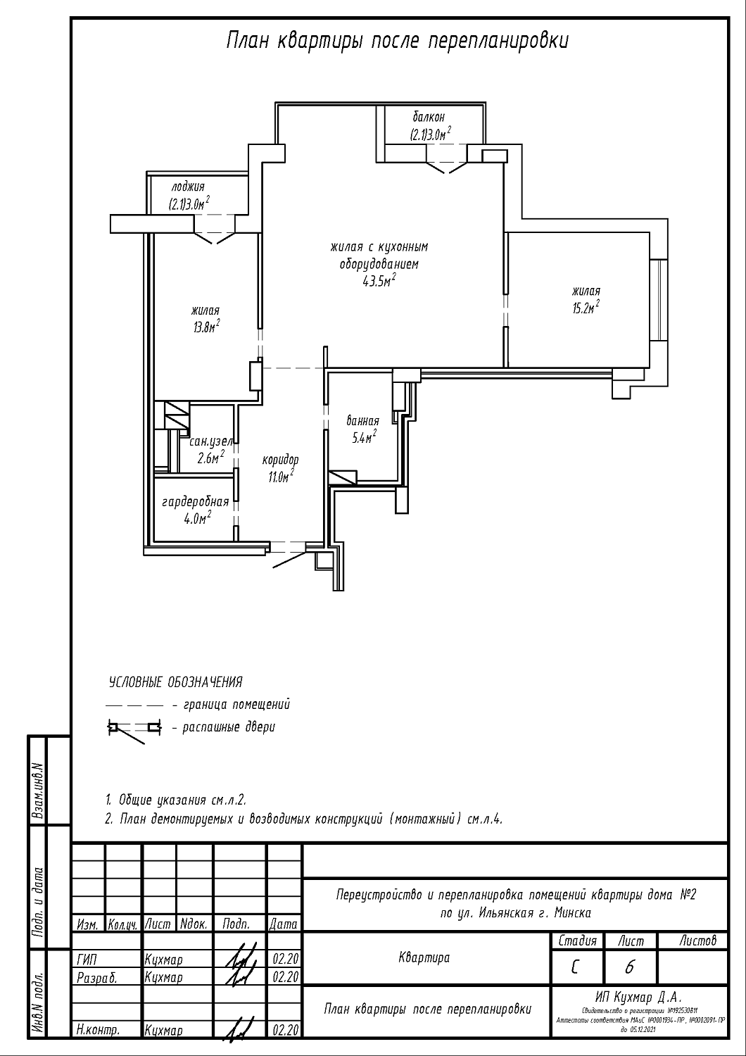
- Объединение двух жилых с целью устройства жилой с кухонным оборудованием;
- Закладка дверного проёма между кухней и жилой с целью устройства жилой на площади кухни;
- Закладка дверного проёма между коридором и жилой; устройство перегородки на части площади коридора;
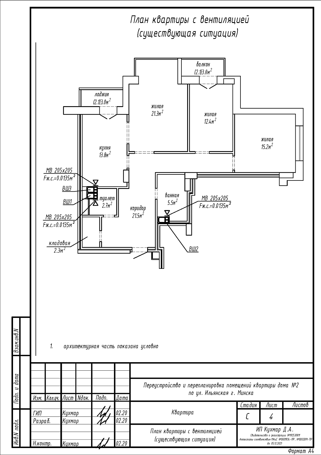
- Устройство зашивки на площади ванной;
- Устройство гардеробной на площади кладовой и части площади коридора;
- Устройство санузла на площади туалета; устройство зашивки в санузле;
- Перенос и замена отопительных приборов.
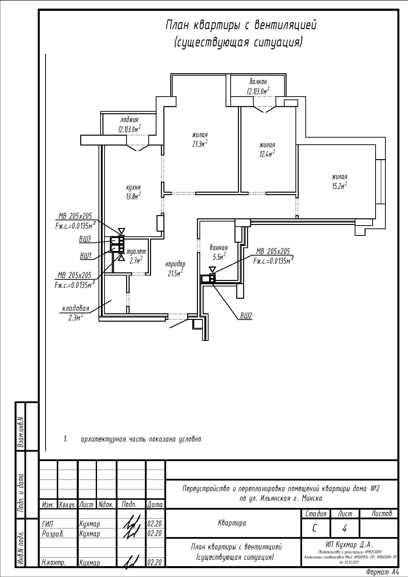
Нами были разработаны следующие разделы проектной документации для согласования в исполкоме:
- АС - архитектурно-строительные решения;
- ОВ - отопление и вентиляция.
