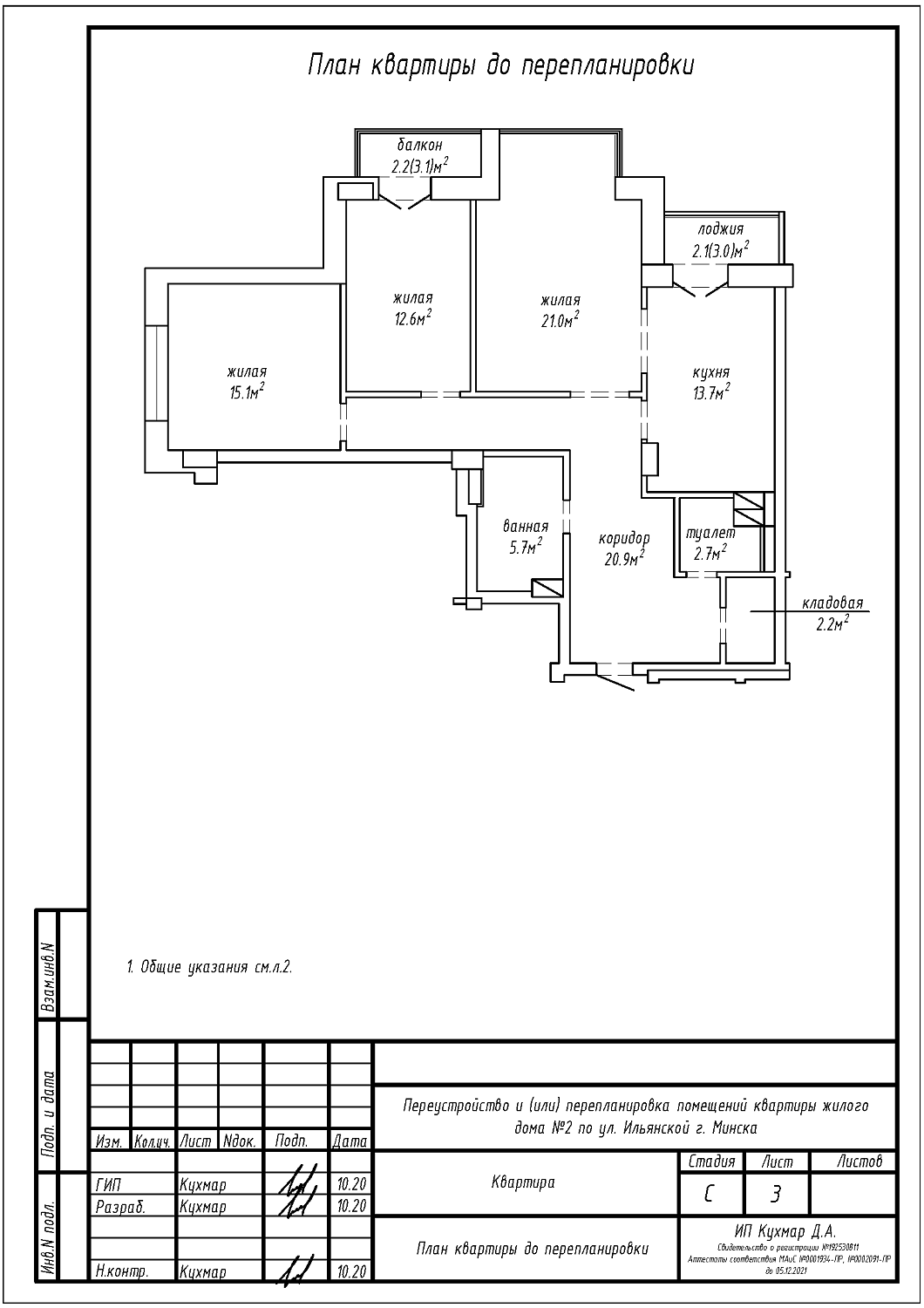
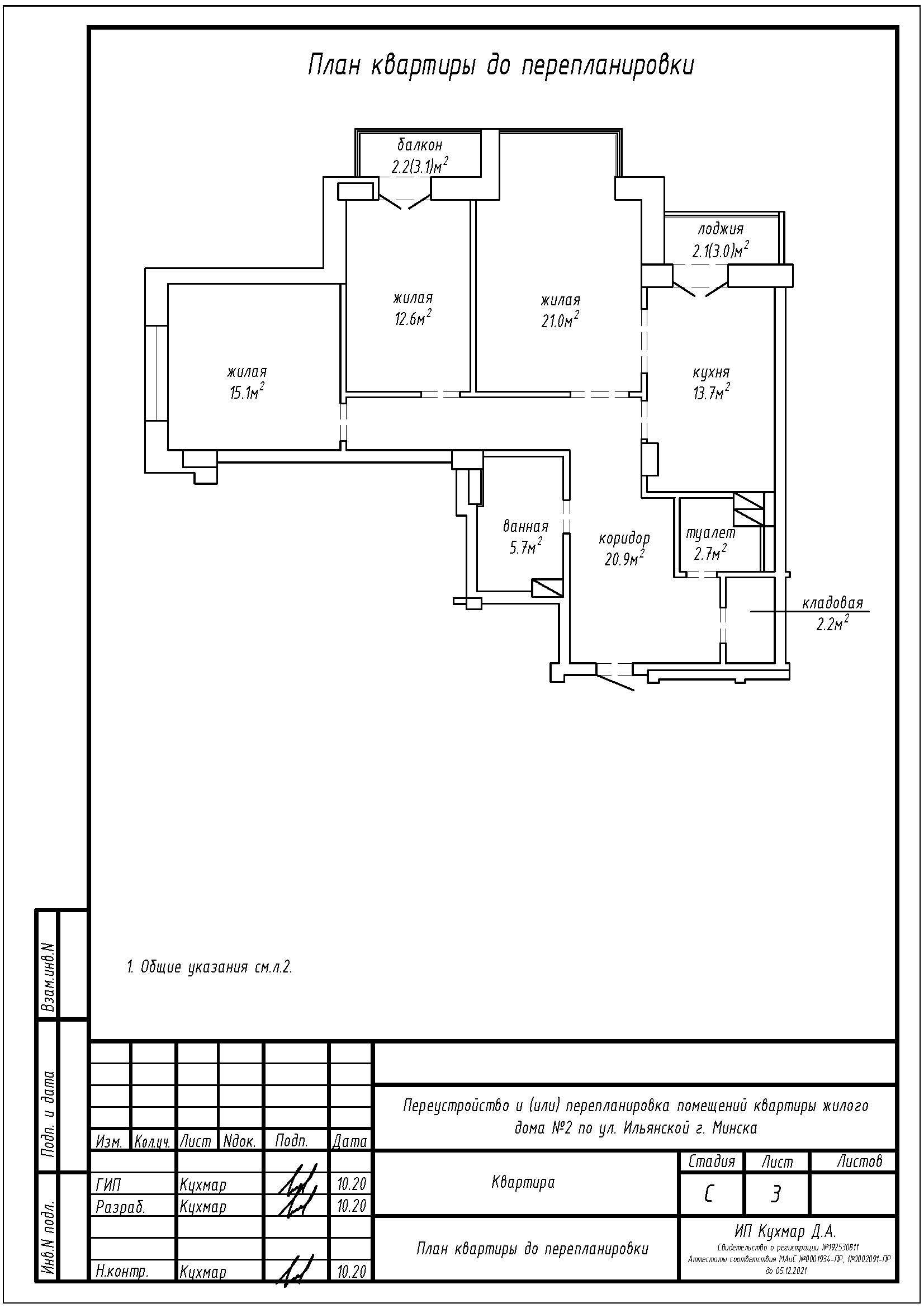
Перепланировка квартиры по ул. Ильянская, 2 в ЖК «Променд»
Пожелания заказчика:
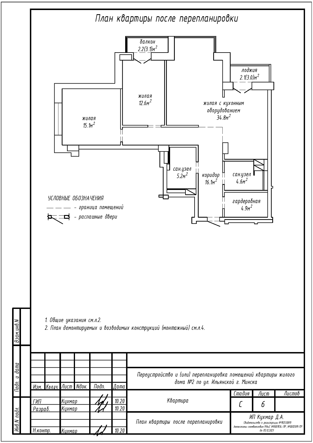
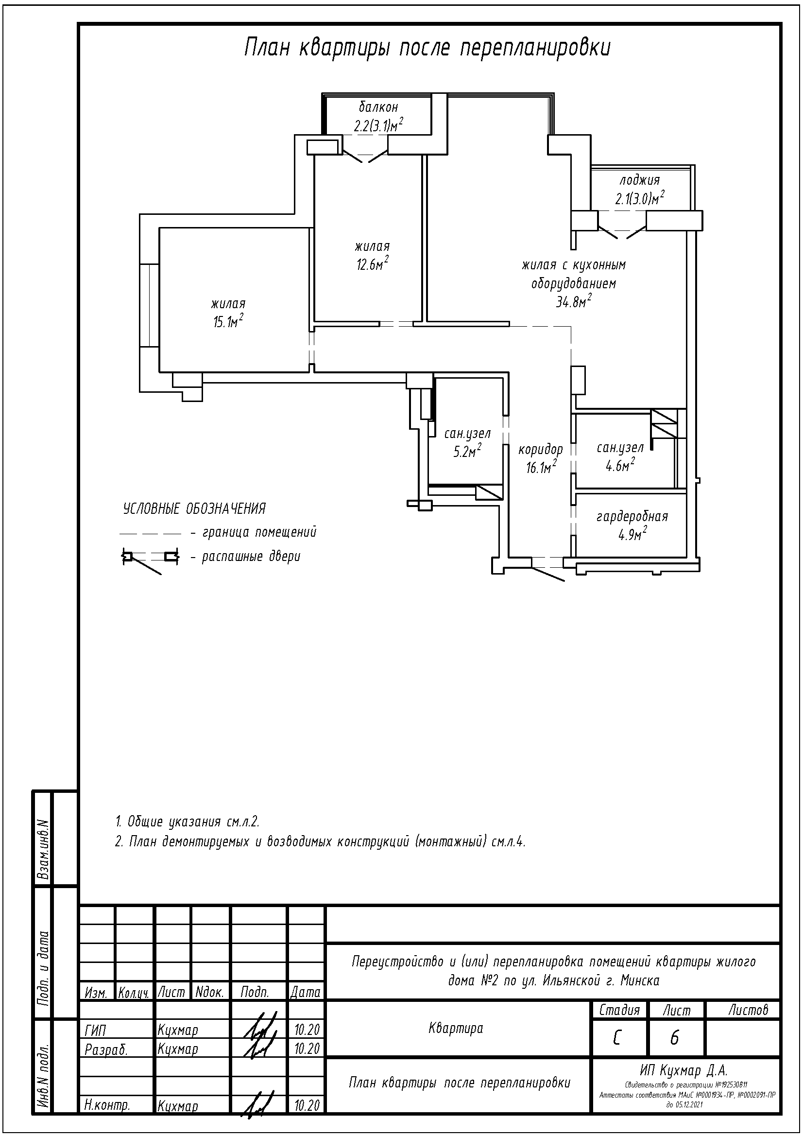
- Устройство санузла на площади существующей ванной;
- Устройство санузла на площади существующего туалета;
- Устройство гардеробной на площади кладовой;
- Увеличение санузла за счет площади коридора;
- Увеличение гардеробной за счет площади коридора;
- Объединение жилой и кухни в общую жилую с кухонным оборудованием;
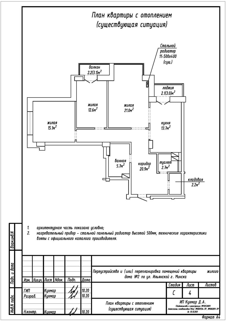
- Перенос нагревательного прибора.
Нами были разработаны следующие разделы проектной документации для согласования в исполкоме:
- АС - архитектурно-строительные решения;
- ОВ - отопление и вентиляция.
