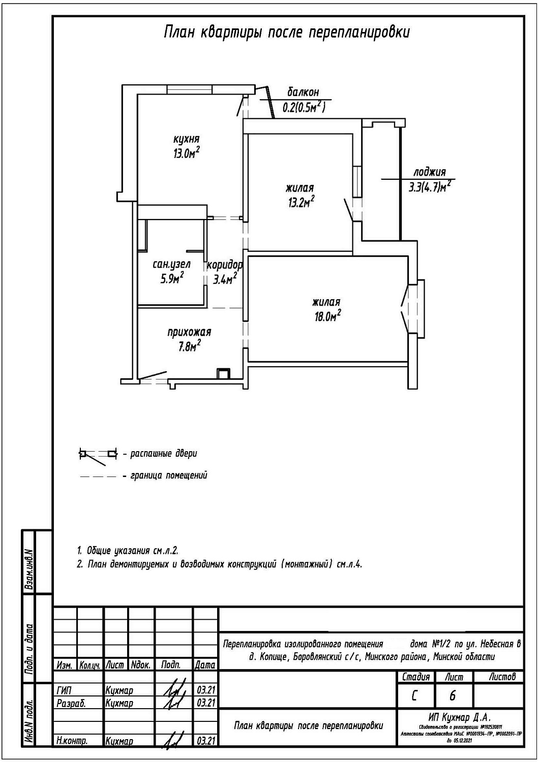
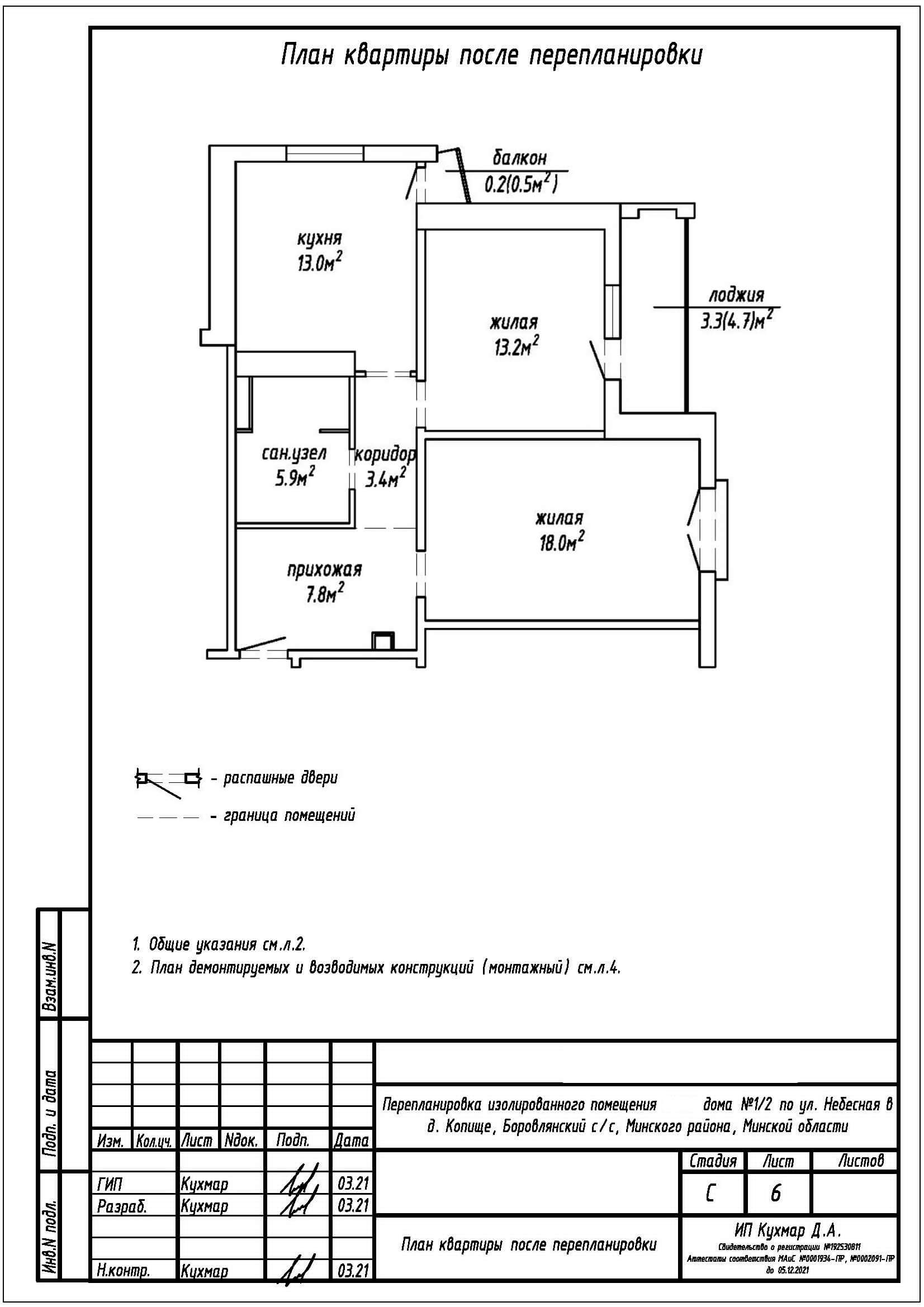
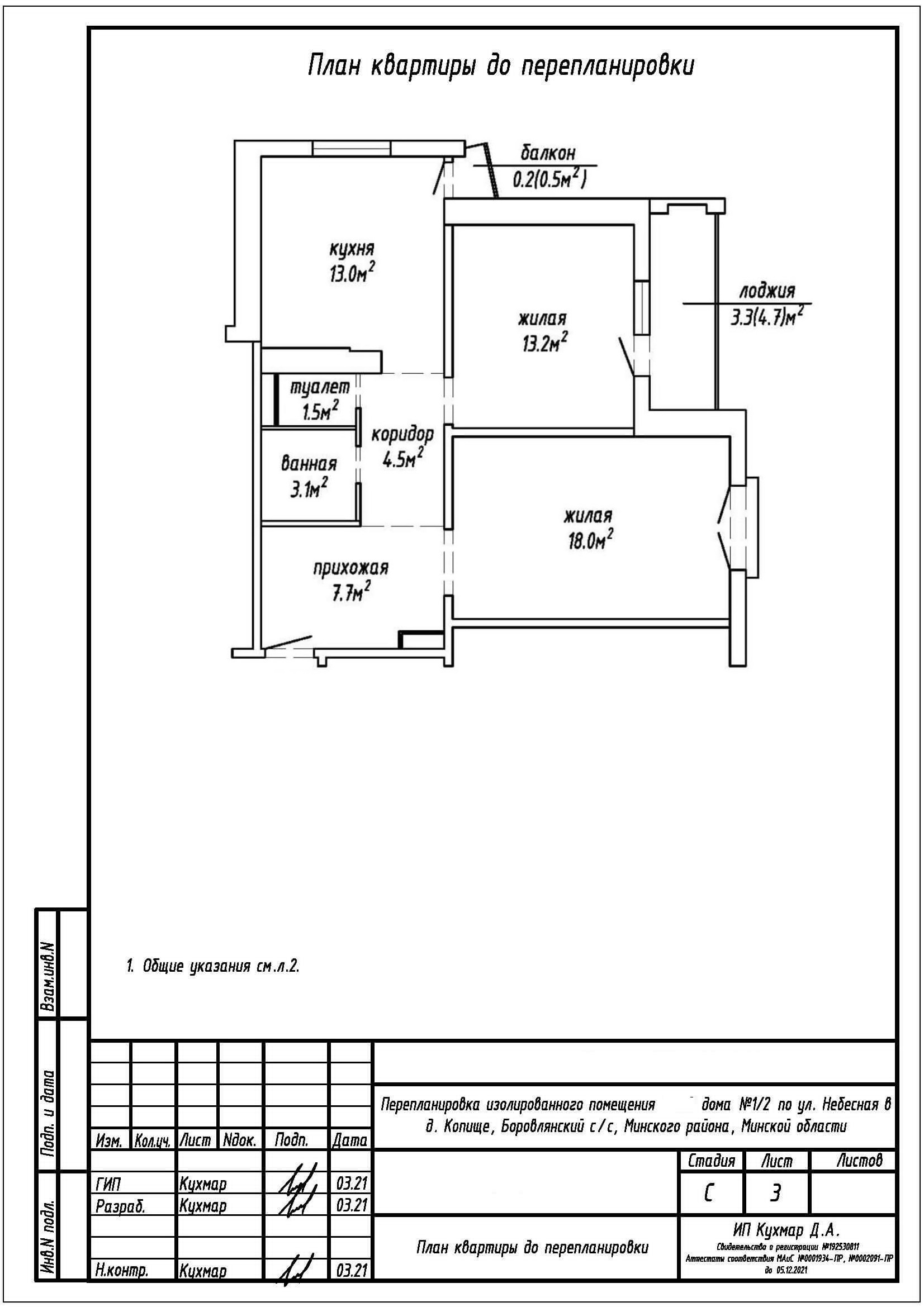
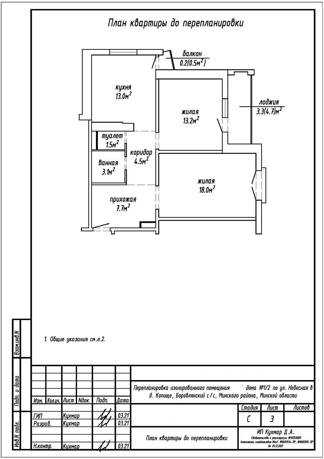
Перепланировка квартиры по ул. Небесная, 1 корпус 2 в ЖК «Новая Боровая»
Пожелания заказчика:
- Объединение ванной и туалета в единый санузел;
- Увеличение площади санузла за счёт площади коридора;
- Сужение дверного проёма между жилой и прихожей;
- Сужение дверного проёма между кухней и коридором.
Нами были разработаны следующие разделы проектной документации для согласования в исполкоме:
- АС - архитектурно-строительные решения.
