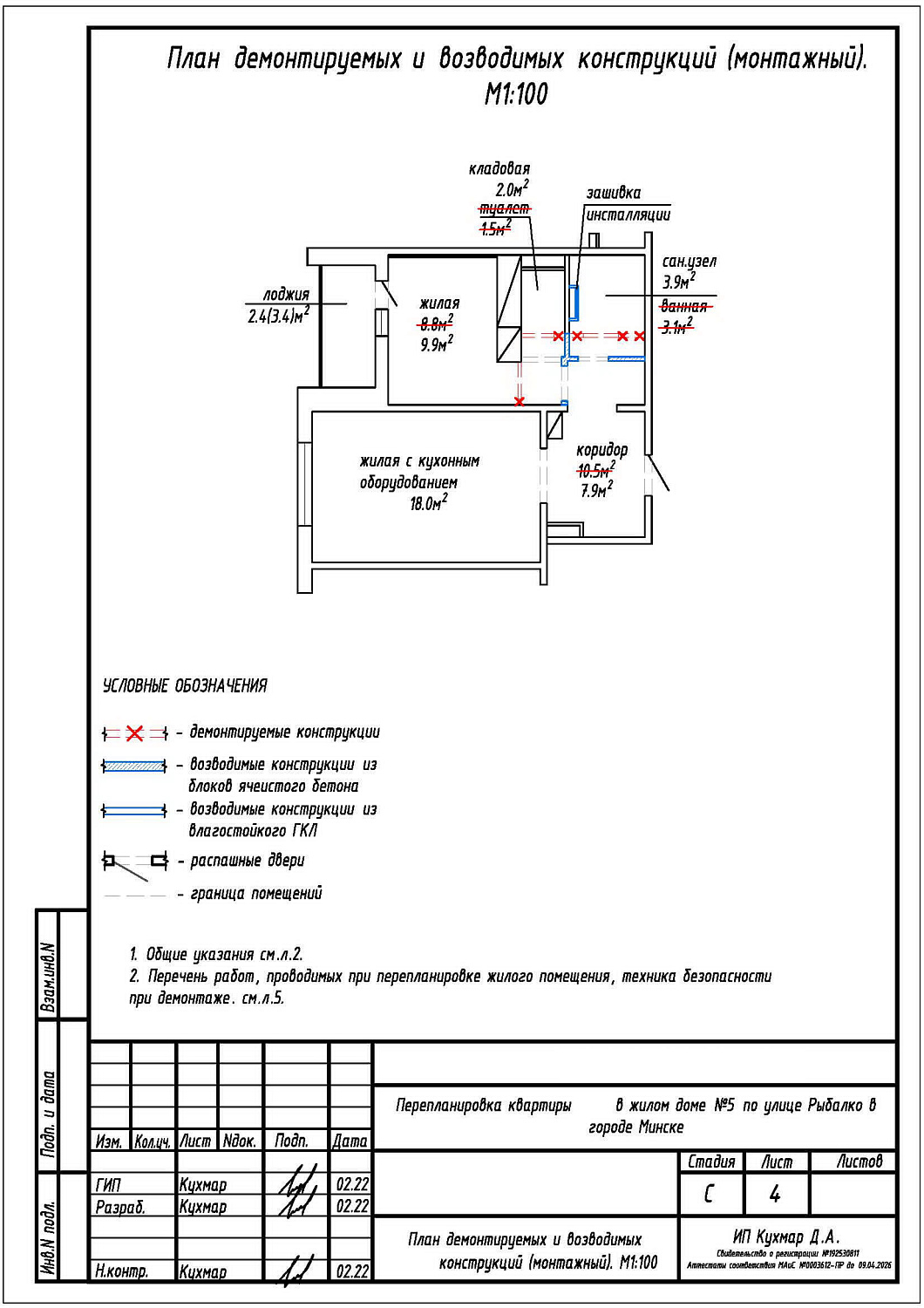
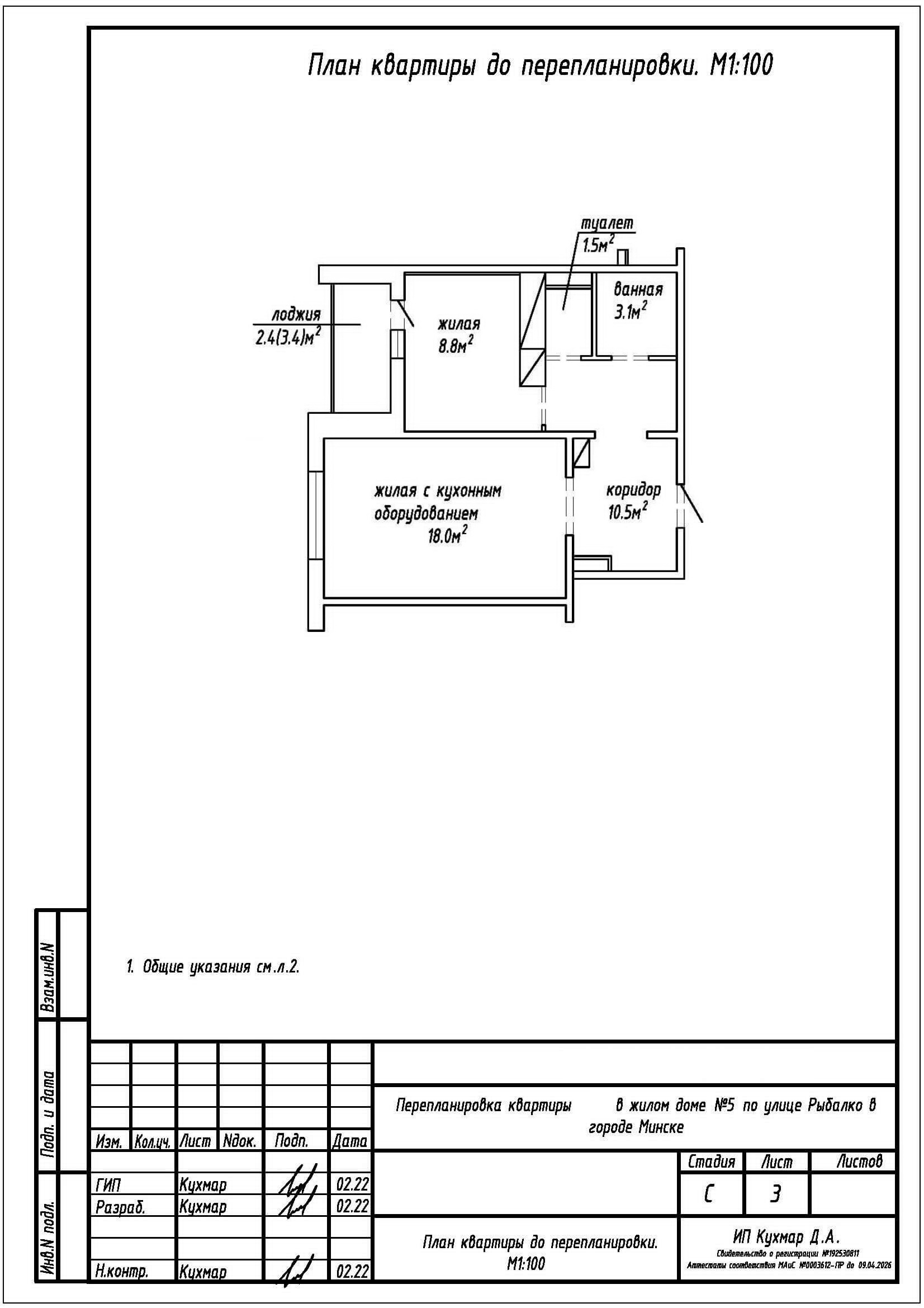
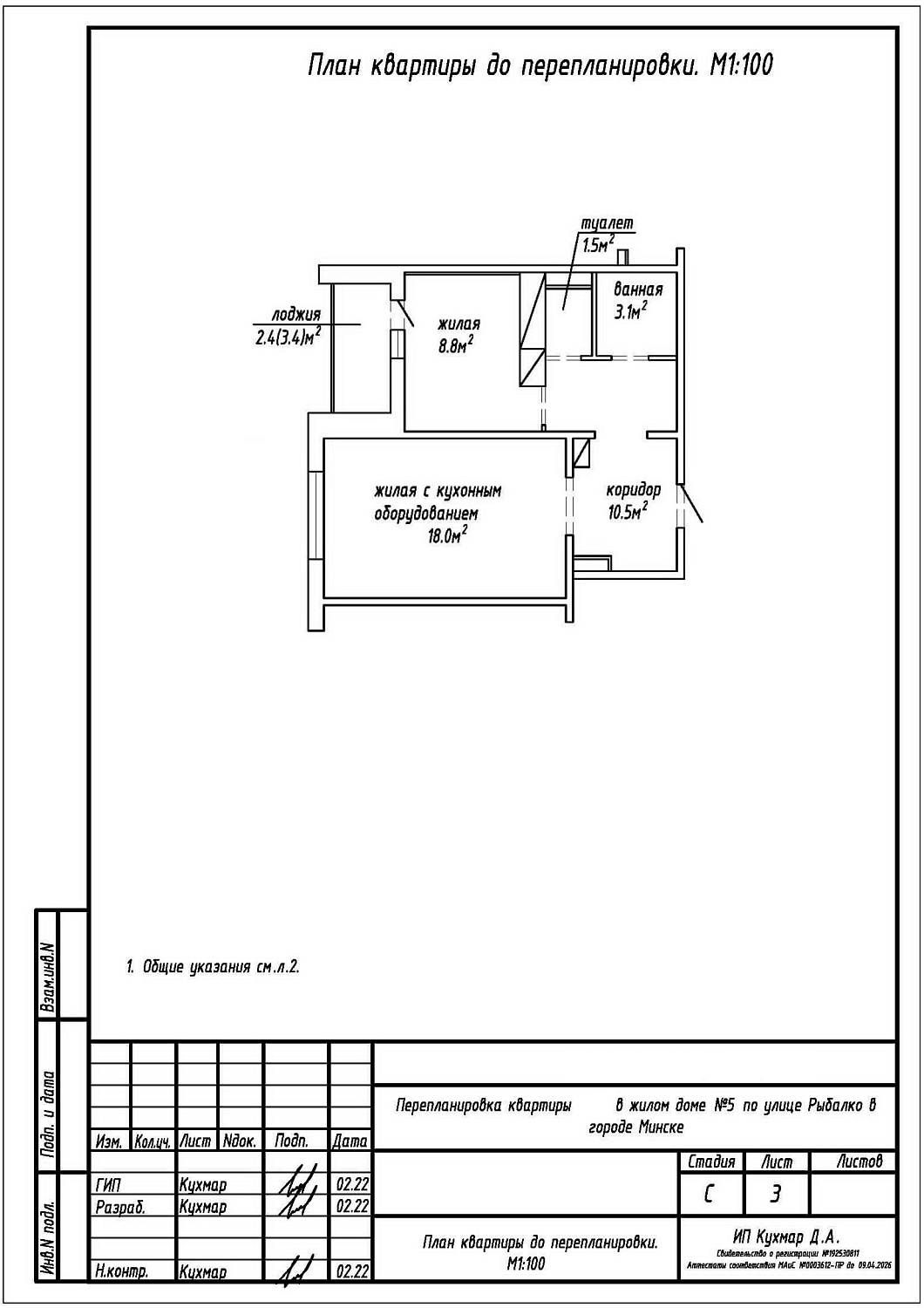
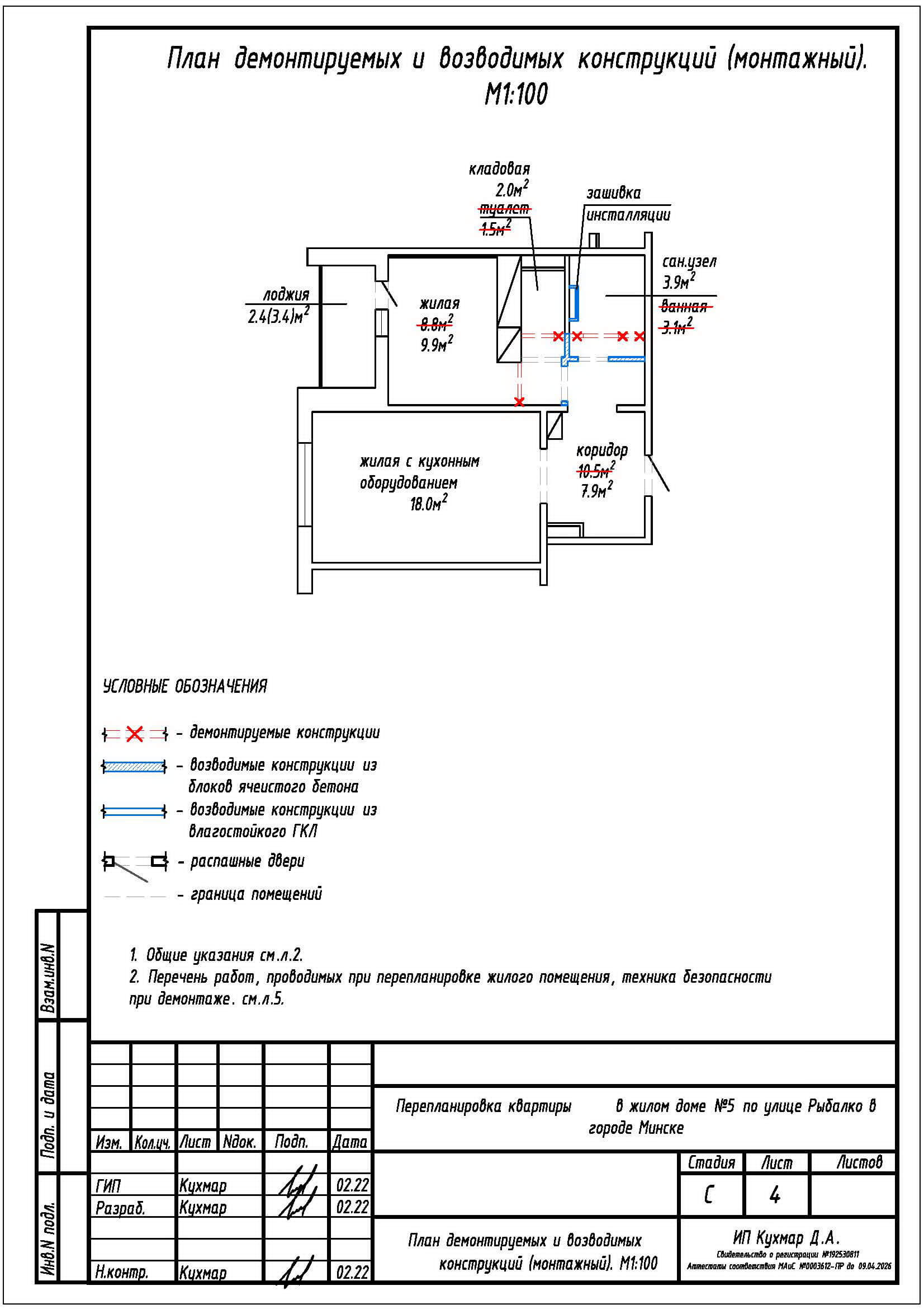
Перепланировка квартиры по ул. Рыбалко, 5 в ЖК «Антоновский квартал»
Пожелания заказчика:
- Устройство санузла на площади ванной;
- Увеличение площади санузла за счёт площади коридора;
- Устройство кладовой на площади туалета;
- Увеличение площади жилой.
Нами были разработаны следующие разделы проектной документации для согласования в исполкоме:
- АС - архитектурно-строительные решения.
