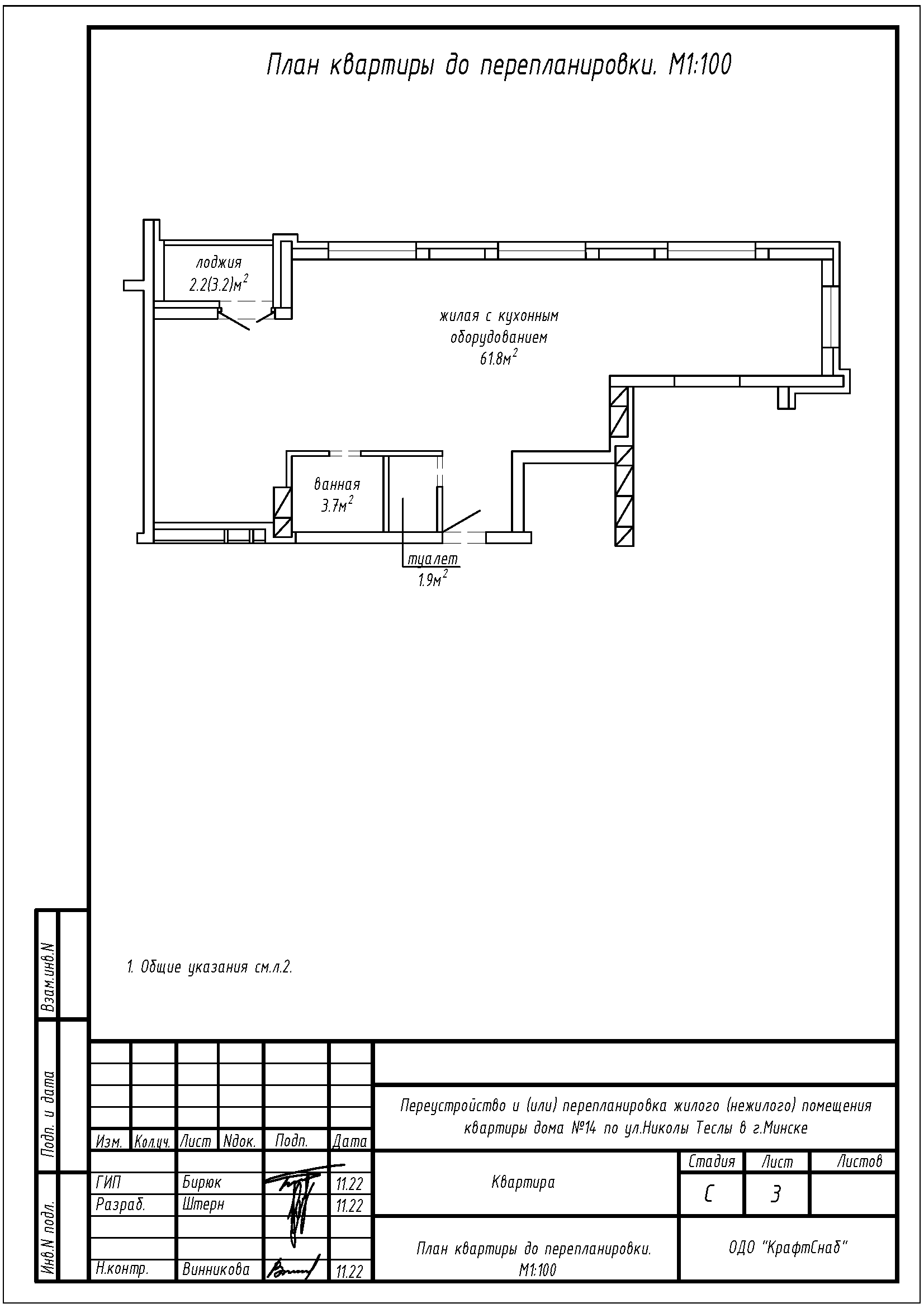
Перепланировка квартиры по ул. Теслы, 14 в ЖК «Минск Мир»
Пожелания заказчика:
- Устройство жилой с кухонным оборудованием, трёх жилых и коридора;
- Увеличение площади ванной и туалета.
Нами были разработаны следующие разделы проектной документации для согласования в исполкоме:
- АС - архитектурно-строительные решения.
