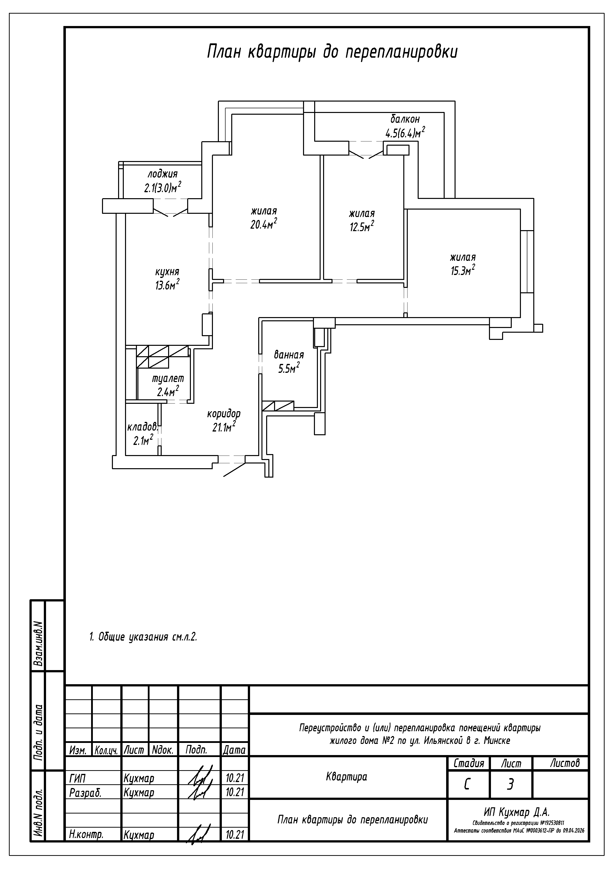
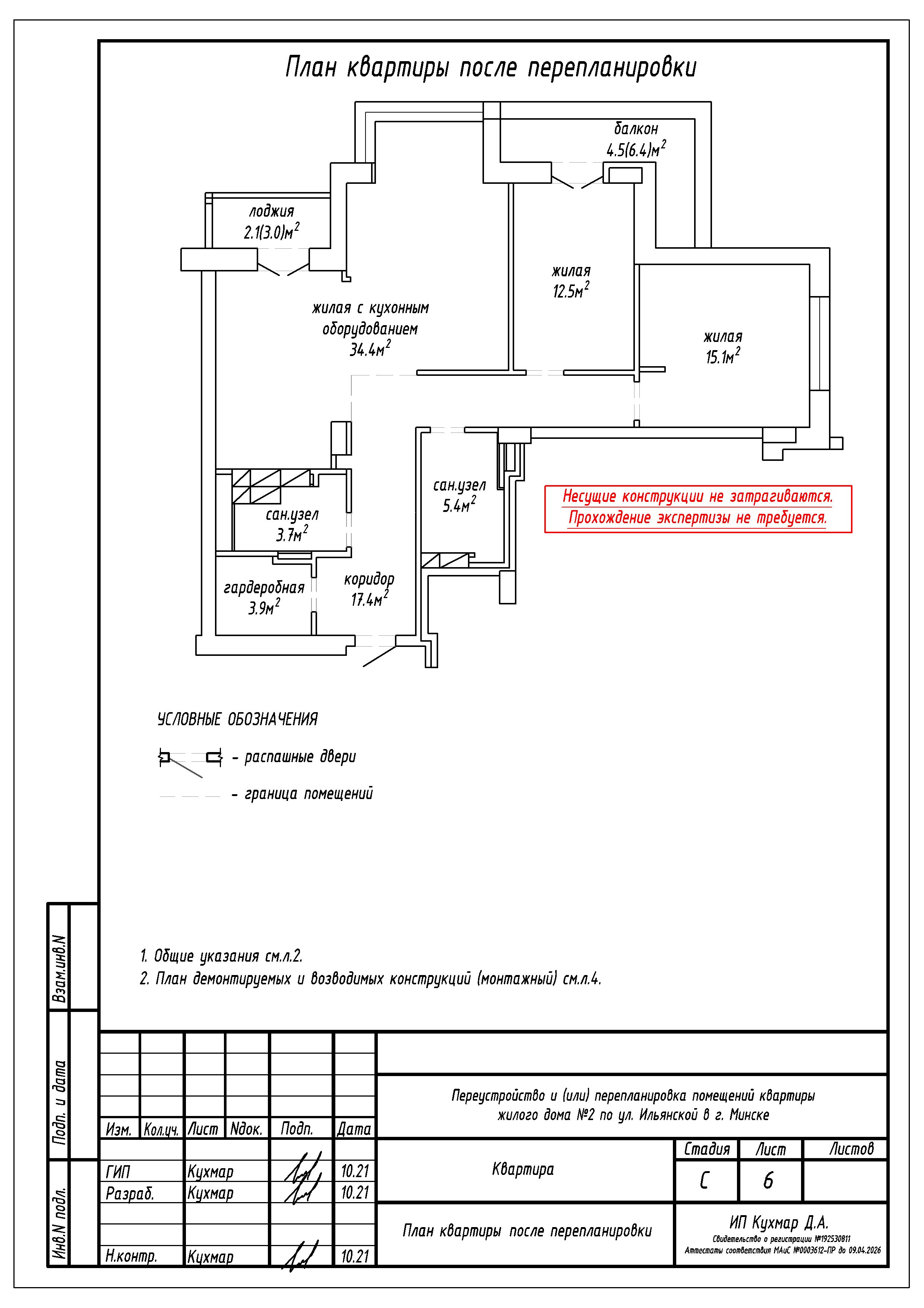
Перепланировка квартиры по ул. Ильянская, 2 в ЖК «Променд»
Пожелания заказчика:
- Демонтаж перегородок между кухней и жилой с целью устройства жилой с кухонным оборудованием;
- Устройство санузла на площади ванной;
- Закладка дверного проёма между коридором и ванной с целью устройства нового дверного проёма;
- Устройство санузла на площади туалета;
- Увеличение площади санузла за счёт площади коридора;
- Устройство перегородок на части площади жилой;
- Демонтаж перегородок между площадью кладовой и коридором с целью устройства гардеробной.
Нами были разработаны следующие разделы проектной документации для согласования в исполкоме:
- АС - архитектурно-строительные решения.
