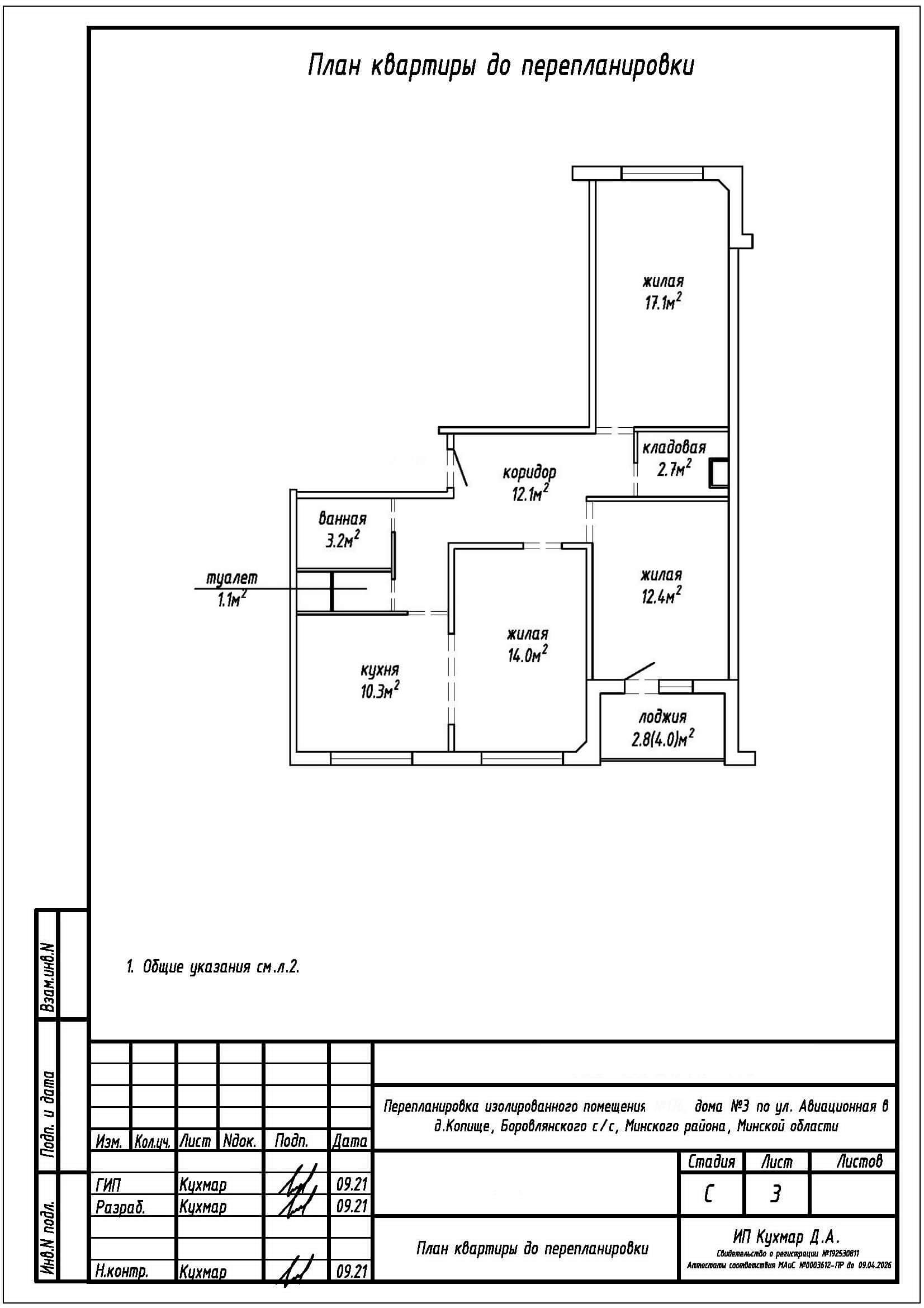
Перепланировка квартиры по ул. Авиационная, 3 в ЖК «Новая Боровая»
Пожелания заказчика:
- Увеличение площади ванной за счет площади существующего туалета и части коридора;;
- Увеличение площади туалета за счет площади коридора;
- Изменение площади коридора;
- Смена направления открывания входной двери.
Нами были разработаны следующие разделы проектной документации для согласования в исполкоме:
- АС - архитектурно-строительные решения.
