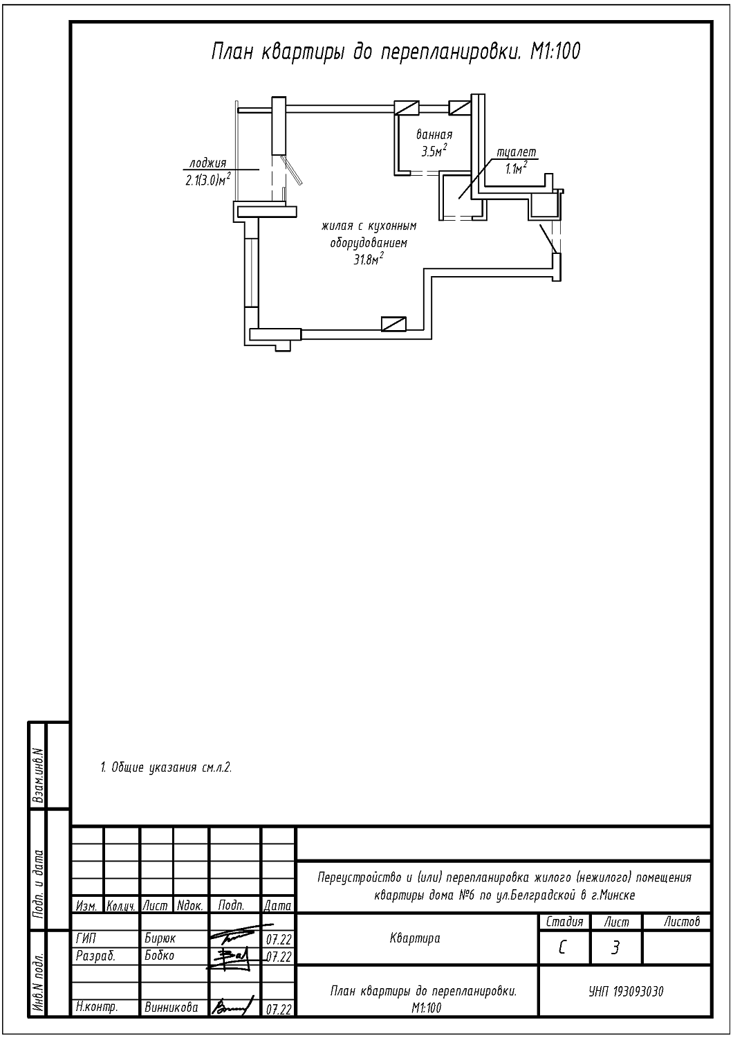
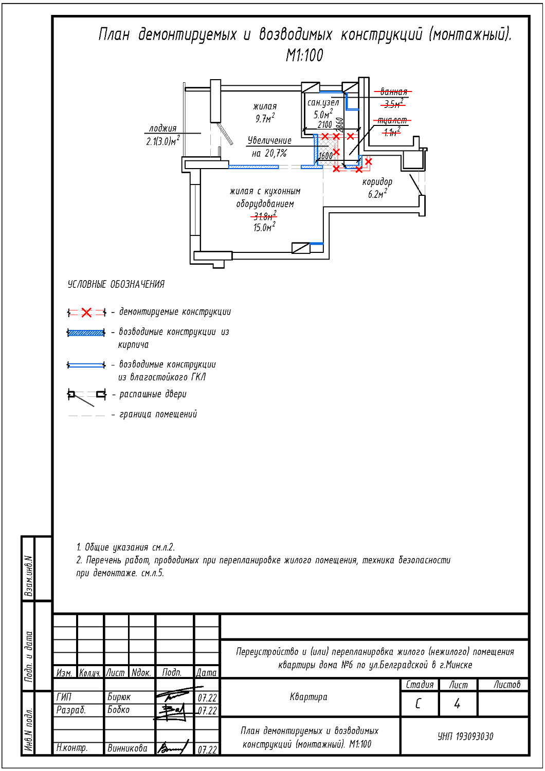
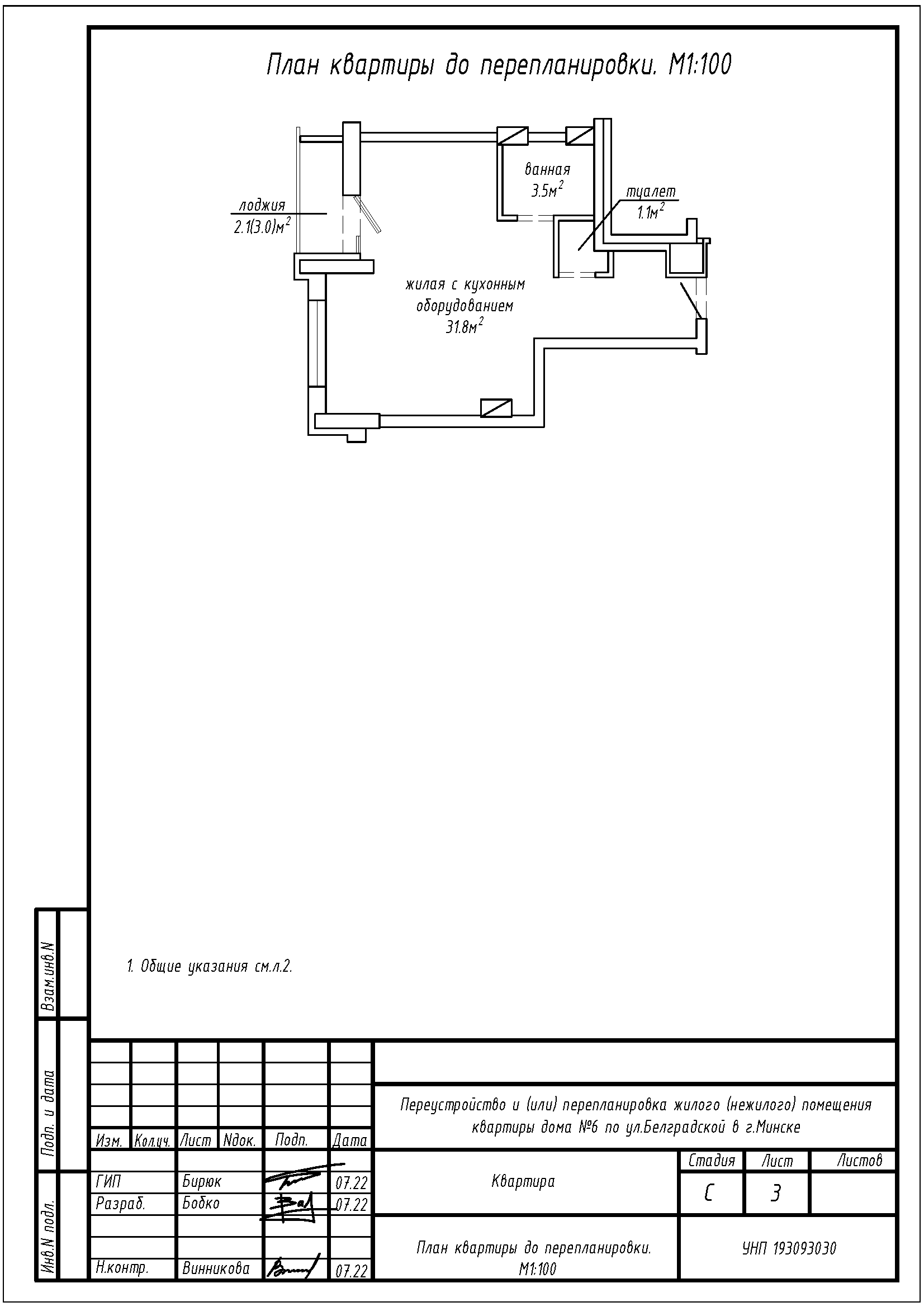
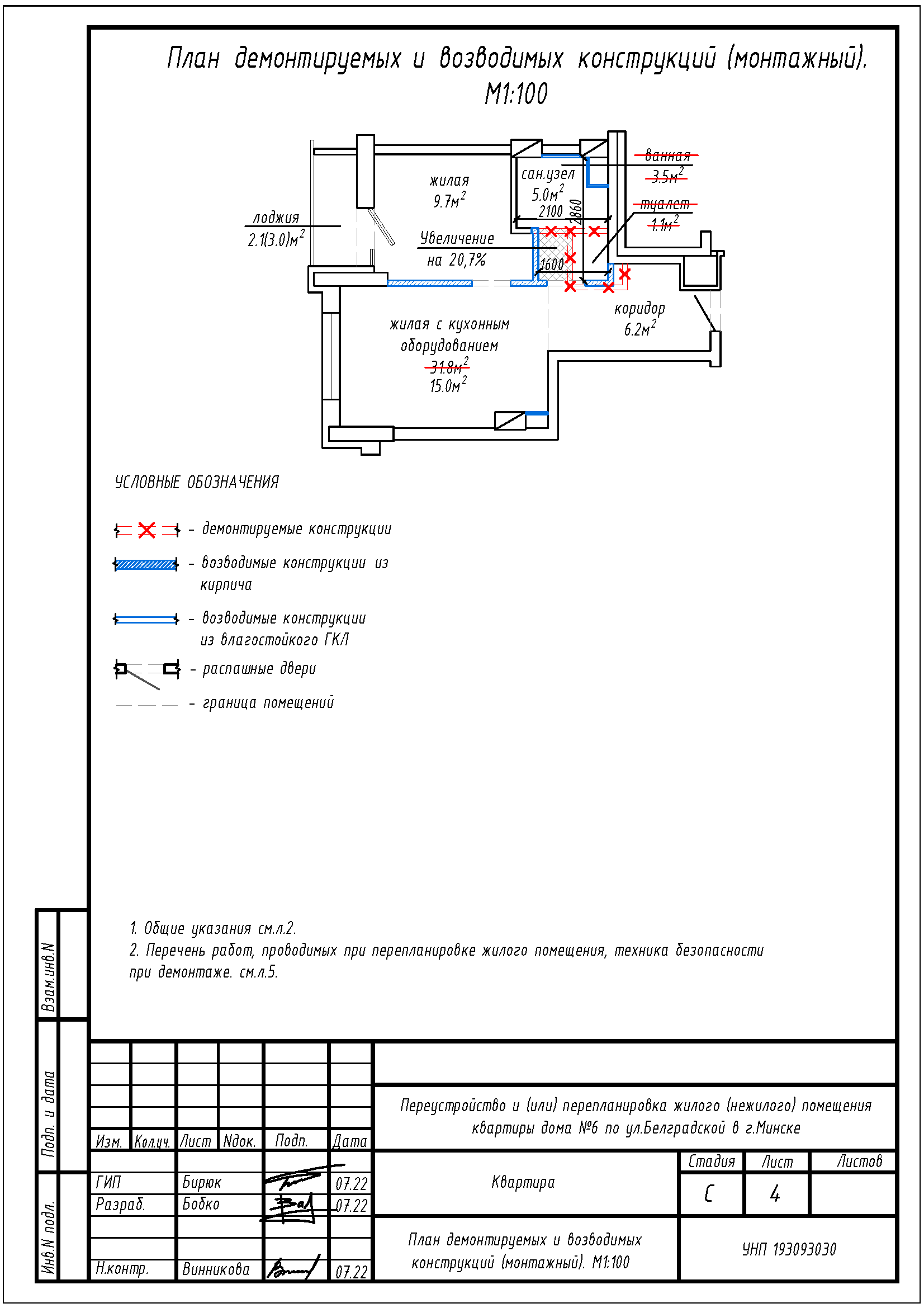
Перепланировка квартиры по ул. Белградская, 6 в ЖК «Минск Мир»
Пожелания заказчика:
- Разделение общей жилой с кухонным оборудованием на жилую с кухонным оборудованием, две жилые, коридор;
- Объединение ванной и туалета в единый санузел;
- Увеличение санузла за счёт площади жилой с кухонным оборудованием, но не более чем на 25%;
- Перенос существующего отопительного прибора.
Нами были разработаны следующие разделы проектной документации для согласования в исполкоме:
- АС - архитектурно-строительные решения;
- ОВ - отопление и вентиляция.
