Перепланировка квартиры по ул. Белградская, 11 в ЖК «Минск Мир»
Пожелания заказчика:
- Объединение ванной и туалета в единый санузел;
- Замена дверного блока входной двери со сменой направления открывания двери;
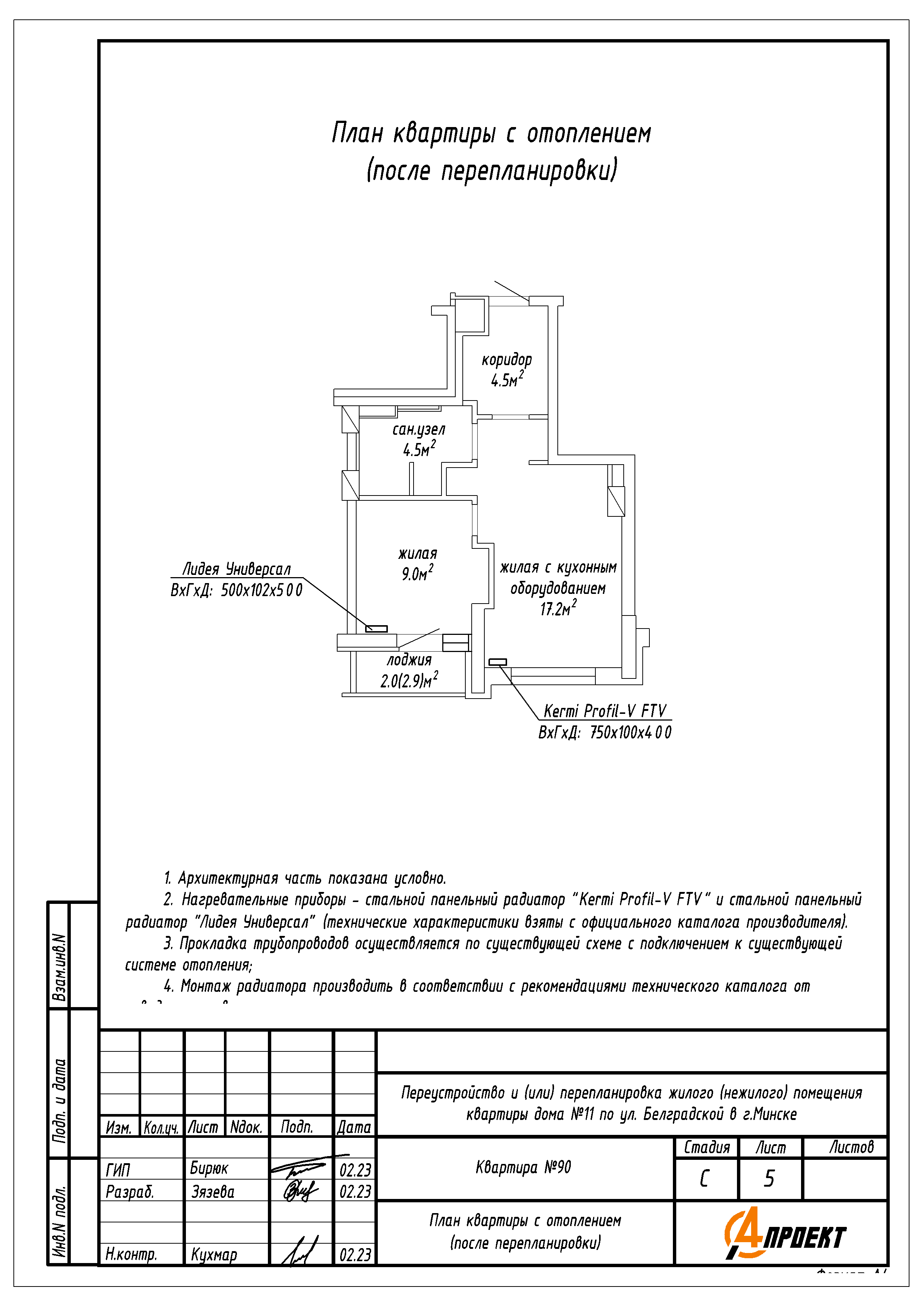
- Устройство на площади жилой с кухонным оборудованием коридора, отдельной жилой и жилой с кухонным оборудованием;
- Замена и перенос существующего отопительного прибора.
Нами были разработаны следующие разделы проектной документации для согласования в исполкоме:
- АС - архитектурно-строительные решения;
- ОВ - отопление и вентиляция.
