Размер шрифта
Цвет фона и шрифта
Изображения
Озвучивание текста
Обычная версия сайта
Перепланировка квартир
Полный комплекс услуг по перепланировке квартир в Минске
+375 (44) 535-33-00
+375 (44) 535-33-00
+375 (44) 515-33-00
Заказать звонок
E-mail
inproekt100@gmail.com
Адрес
г. Минск, ул. Чапаева 3, офис 101
Режим работы
Пн. – Пт.: с 9:00 до 18:00
Подать заявку
Услуги
  • Квартиры
    • Дизайн-проект
    • Согласование перепланировки
    • Проект перепланировки
    • Технический надзор за выполнением работ
    • Строительно-монтажные работы
    • Согласование самовольной перепланировки
    • Техническое заключение
    • Обмеры
  • Нежилые помещения
    • Перепланировка, модернизация, реконструкция помещений
    • Обмеры нежилых помещений
  • Мастер-классы
    • Мастер-класс по перепланировке для дизайнеров
    • Мастер-класс по перепланировке для дизайнеров
Акции
Проекты
  • Санузлы
  • Батареи
  • Антресоль
  • Газ на электро
  • Дизайн
  • Кухня в жилую
  • Нежилые
  • Объединение / разделение квартир
  • Проём в несущей
Отзывы
Статьи
Мастер-класс
О нас
  • Лицензии
  • Сотрудники
  • Отзывы
Контакты
г. Минск, ул. Чапаева 3, офис 101
...
+375 (44) 535-33-00
+375 (44) 535-33-00
+375 (44) 515-33-00
Заказать звонок
E-mail
inproekt100@gmail.com
Адрес
г. Минск, ул. Чапаева 3, офис 101
Режим работы
Пн. – Пт.: с 9:00 до 18:00
Заказать звонок
Перепланировка квартир
Услуги
  • Квартиры
    Квартиры
    • Дизайн-проект
    • Согласование перепланировки
    • Проект перепланировки
    • Технический надзор за выполнением работ
    • Строительно-монтажные работы
    • Согласование самовольной перепланировки
    • Техническое заключение
    • Обмеры
  • Нежилые помещения
    Нежилые помещения
    • Перепланировка, модернизация, реконструкция помещений
    • Обмеры нежилых помещений
  • Мастер-классы
    Мастер-классы
    • Мастер-класс по перепланировке для дизайнеров
    • Мастер-класс по перепланировке для дизайнеров
Акции
Проекты
  • Санузлы
  • Батареи
  • Антресоль
  • Газ на электро
  • Дизайн
  • Кухня в жилую
  • Нежилые
  • Объединение / разделение квартир
  • Проём в несущей
Отзывы
Статьи
Мастер-класс
О нас
  • Лицензии
  • Сотрудники
  • Отзывы
Контакты
    Подать заявку
    Перепланировка квартир
    Услуги
    • Квартиры
      Квартиры
      • Дизайн-проект
      • Согласование перепланировки
      • Проект перепланировки
      • Технический надзор за выполнением работ
      • Строительно-монтажные работы
      • Согласование самовольной перепланировки
      • Техническое заключение
      • Обмеры
    • Нежилые помещения
      Нежилые помещения
      • Перепланировка, модернизация, реконструкция помещений
      • Обмеры нежилых помещений
    • Мастер-классы
      Мастер-классы
      • Мастер-класс по перепланировке для дизайнеров
      • Мастер-класс по перепланировке для дизайнеров
    Акции
    Проекты
    • Санузлы
    • Батареи
    • Антресоль
    • Газ на электро
    • Дизайн
    • Кухня в жилую
    • Нежилые
    • Объединение / разделение квартир
    • Проём в несущей
    Отзывы
    Статьи
    Мастер-класс
    О нас
    • Лицензии
    • Сотрудники
    • Отзывы
    Контакты
      +375 (44) 535-33-00
      +375 (44) 515-33-00
      Заказать звонок
      E-mail
      inproekt100@gmail.com
      Адрес
      г. Минск, ул. Чапаева 3, офис 101
      Режим работы
      Пн. – Пт.: с 9:00 до 18:00
      Подать заявку
      Перепланировка квартир
      Телефоны
      +375 (44) 535-33-00
      +375 (44) 515-33-00
      Заказать звонок
      Перепланировка квартир
      • Услуги
        • Услуги
        • Квартиры
          • Квартиры
          • Дизайн-проект
          • Согласование перепланировки
          • Проект перепланировки
          • Технический надзор за выполнением работ
          • Строительно-монтажные работы
          • Согласование самовольной перепланировки
          • Техническое заключение
          • Обмеры
        • Нежилые помещения
          • Нежилые помещения
          • Перепланировка, модернизация, реконструкция помещений
          • Обмеры нежилых помещений
        • Мастер-классы
          • Мастер-классы
          • Мастер-класс по перепланировке для дизайнеров
          • Мастер-класс по перепланировке для дизайнеров
      • Акции
      • Проекты
        • Проекты
        • Санузлы
        • Батареи
        • Антресоль
        • Газ на электро
        • Дизайн
        • Кухня в жилую
        • Нежилые
        • Объединение / разделение квартир
        • Проём в несущей
      • Отзывы
      • Статьи
      • Мастер-класс
      • О нас
        • О нас
        • Лицензии
        • Сотрудники
        • Отзывы
      • Контакты
      Подать заявку
      • +375 (44) 535-33-00
        • Телефоны
        • +375 (44) 535-33-00
        • +375 (44) 515-33-00
        • Заказать звонок
      • г. Минск, ул. Чапаева 3, офис 101
      • inproekt100@gmail.com
      • Пн. – Пт.: с 9:00 до 18:00
      Санузлы

      пр-т Мира, 6_1

      Перепланировка квартиры в ЖК «Минск Мир»:
      psd_1.png Комплекс услуг: Проект
      projekt_1.png Разделы проекта: АС+ОВ
      location_1.png Место: Октябрьский р-н
      JK_1.png ЖК: «Минск Мир»
      Подробнее
      пр-т Мира, 6_1
      Фотогалерея
      6 —
      1/6 —
      пр-т Мира, 6_1
      пр-т Мира, 6_1
      пр-т Мира, 6_1
      пр-т Мира, 6_1
      пр-т Мира, 6_1
      пр-т Мира, 6_1
      пр-т Мира, 6_1
      пр-т Мира, 6_1
      пр-т Мира, 6_1
      пр-т Мира, 6_1
      пр-т Мира, 6_1
      пр-т Мира, 6_1
      Оформите заявку на проект, мы свяжемся с вами в ближайшее время и ответим на все интересующие вопросы.
      Заказать проект
      ?
      • Описание
      • Вопросы и ответы

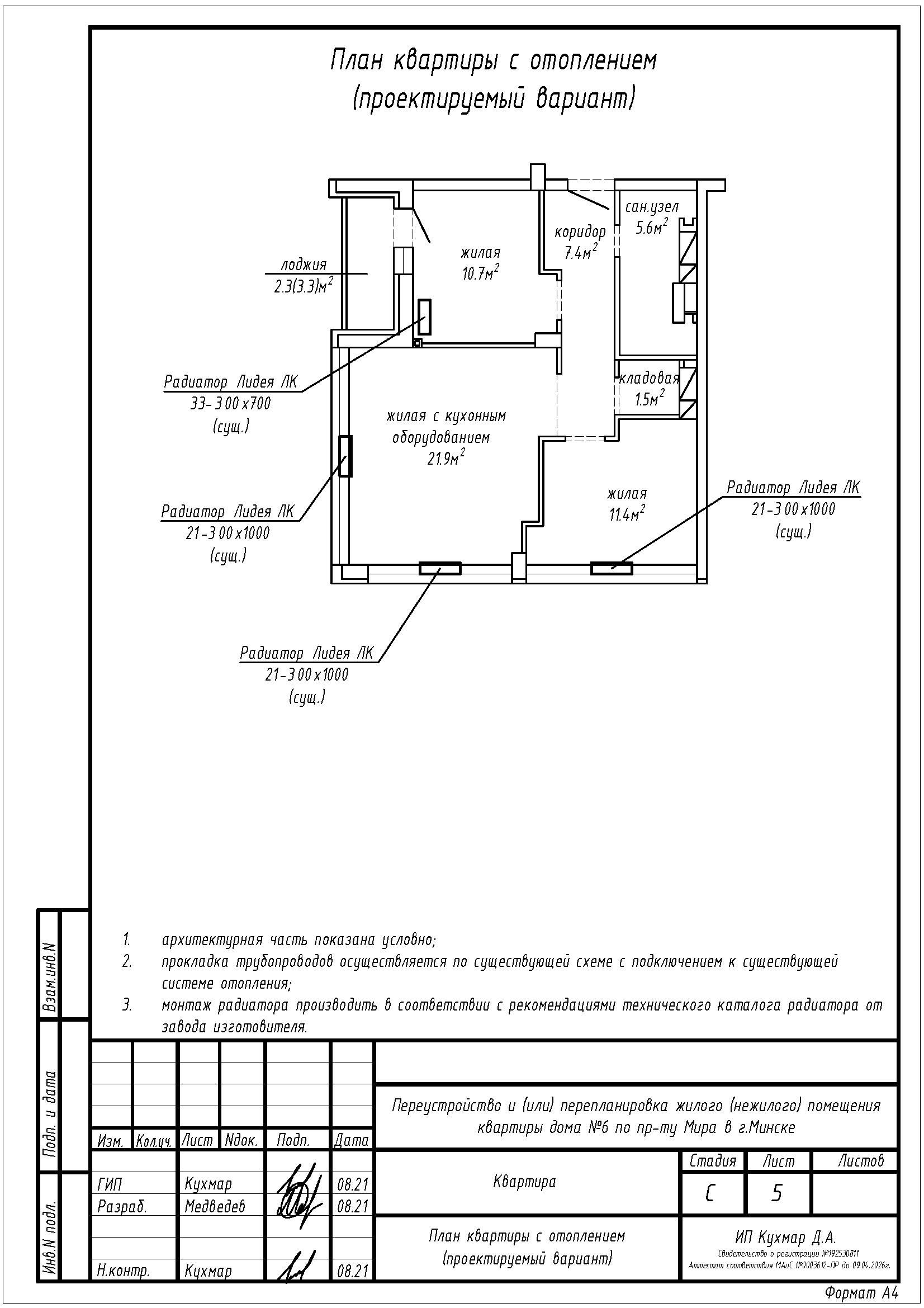
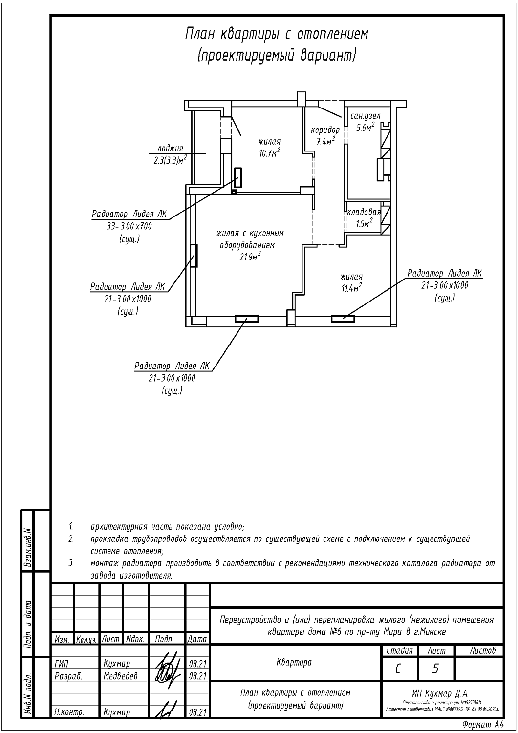
      Перепланировка квартиры по проспекту Мира, 6 в ЖК «Минск Мир»

      Пожелания заказчика:
      1. Разделение общей жилой с кухонным оборудованием на жилую с кухонным оборудованием, две жилые, кладовую и коридор;
      2. Смещение дверного проёма между санузлом и жилой с кухонным оборудованием;
      3. Замена дверного блока входной двери со сменой направления открывания;
      4. Устройство зашивок из ГКЛ на части площади санузла;
      5. Увеличение площади санузла за счёт жилой с кухонным оборудованием, что является меньше допустимого увеличения (25%);
      6. Перенос существующих отопительных приборов.

      Нами были разработаны следующие разделы проектной документации для согласования в исполкоме:

      • АС - архитектурно-строительные решения;
      • ОВ - отопление и вентиляция.
      Вопросы и ответы
      У кого нужно согласовывать проект перепланировки?

      Проект нужно согласовать в обслуживающей организации (товариществе собственников либо ЖЭС) и «Одном Окне» администрации вашего района.

      Дополнительно (при необходимости):

      • если затрагиваются несущие конструкции, то дополнительно необходимо получить согласование проекта в РУП «Госстройэкспертиза»;
      • если в квартире установлена газовая плита, то дополнительно необходимо согласование в УП «Мингаз»;
      • если планируется переход с газовой плиты на электрическую, проект дополнительно согласовывается в Госэнергонадзоре и Энергосбыте.
      Какие документы необходимы для разработки проекта по перепланировке?
      • Выписка из решения администрации района о разрешении на переустройство и (или) перепланировку жилых помещений;
      • Согласованная план-схема планировки;
      • Технический паспорт квартиры;
      • Свидетельство о регистрации квартиры;
      • Дизайн-проект (если есть);
      • Технические условия, указанные в решении администрации (при необходимости).
      Карта
      загрузка карты...
      Сопутствующие услуги
      Проект перепланировки
      Разработка проектной документации для согласования перепланировки, реконструкции квартиры.
      от 400 BYN
      Технический надзор за выполнением работ
      Технический надзор за выполнением строительно-монтажных работ по перепланировке, реконструкции квартиры.
      от 300 BYN
      Строительно-монтажные работы
      Аттестованный подряд на выполнение работ по отопительным приборам, гидроизоляции, усилению проемов в несущих стенах и прочие виды скрытых работ. Черновые и чистовые сторительно-монтаные работы.
      от 300 BYN
      Похожие проекты
      Санузлы, Батареи
      ул. Николы Теслы, 14
      Перепланировка квартиры в ЖК «Минск Мир»:
      psd_1.png Комплекс услуг: Проект
      projekt_1.png Разделы проекта: АС+ОВ
      location_1.png Место: Октябрьский р-н
      JK_1.png ЖК «Минск Мир»
      Санузлы
      ул. Аэродромная, 18
      Перепланировка квартиры в ЖК «Минск Мир»:
      psd_1.png Комплекс услуг: Проект
      projekt_1.png Разделы проекта: АС
      location_1.png Место: Октябрьский р-н
      JK_1.png ЖК: «Минск Мир»
      Батареи
      ул. Белградская, 1
      Перепланировка квартиры в ЖК «Минск Мир»:
      psd_1.png Комплекс услуг: Проект
      projekt_1.png Разделы проекта: АС+ОВ
      location_1.png Место: Октябрьский р-н
      JK_1.png ЖК «Минск Мир»
      Санузлы, Батареи
      пр-т Мира, 6_2

      Дополнительная информация:

      doc.png Проект + Технадзор

      technical.png АС+ОВ

      placeholder.pngОктябрьский

      apart.png ЖК «Минск Мир»
      Статьи
      5 июня 2023
      Алгоритм согласования перепланировки квартиры 2023
      Как согласовать перепланировку квартиры в Беларуси в 2023 году? Подробный алгоритм и ответы на важные вопросы в нашей статье.
      18 января 2022
      Перепланировка квартиры со «свободной планировкой»
      Что такое «свободная планировка»? Действительно ли можно делать все, что угодно с планировкой и без проблем согласовать все изменения? Рассказываем в данной статье.
      Назад к списку

      +375 (44) 535-33-00
      +375 (44) 535-33-00
      +375 (44) 515-33-00
      Заказать звонок
      E-mail
      inproekt100@gmail.com
      Адрес
      г. Минск, ул. Чапаева 3, офис 101
      Режим работы
      Пн. – Пт.: с 9:00 до 18:00
      Заказать звонок
      inproekt100@gmail.com
      г. Минск, ул. Чапаева 3, офис 101
      Услуги
      Квартиры
      Нежилые помещения
      Мастер-классы
      Компания
      Лицензии
      Сотрудники
      Отзывы
      Информация
      Вопрос-ответ
      Как оформить заказ
      платежные системы 1.png
      © 2026 Pereplan.by
      Общество с ограниченной ответственностью «А4-Проект»
      Свидетельство о государственной регистрации 193093030 выдано 13.06.2018 Минским горисполкомом.
      Юр. Адрес: Беларусь, г.Минск, ул. Чапаева, 3-101.
      Политика конфиденциальности
      Договор оферты
      Главная Услуги Проекты Лицензии Статьи FAQ Скидки Отзывы Поиск Сотрудники Контакты