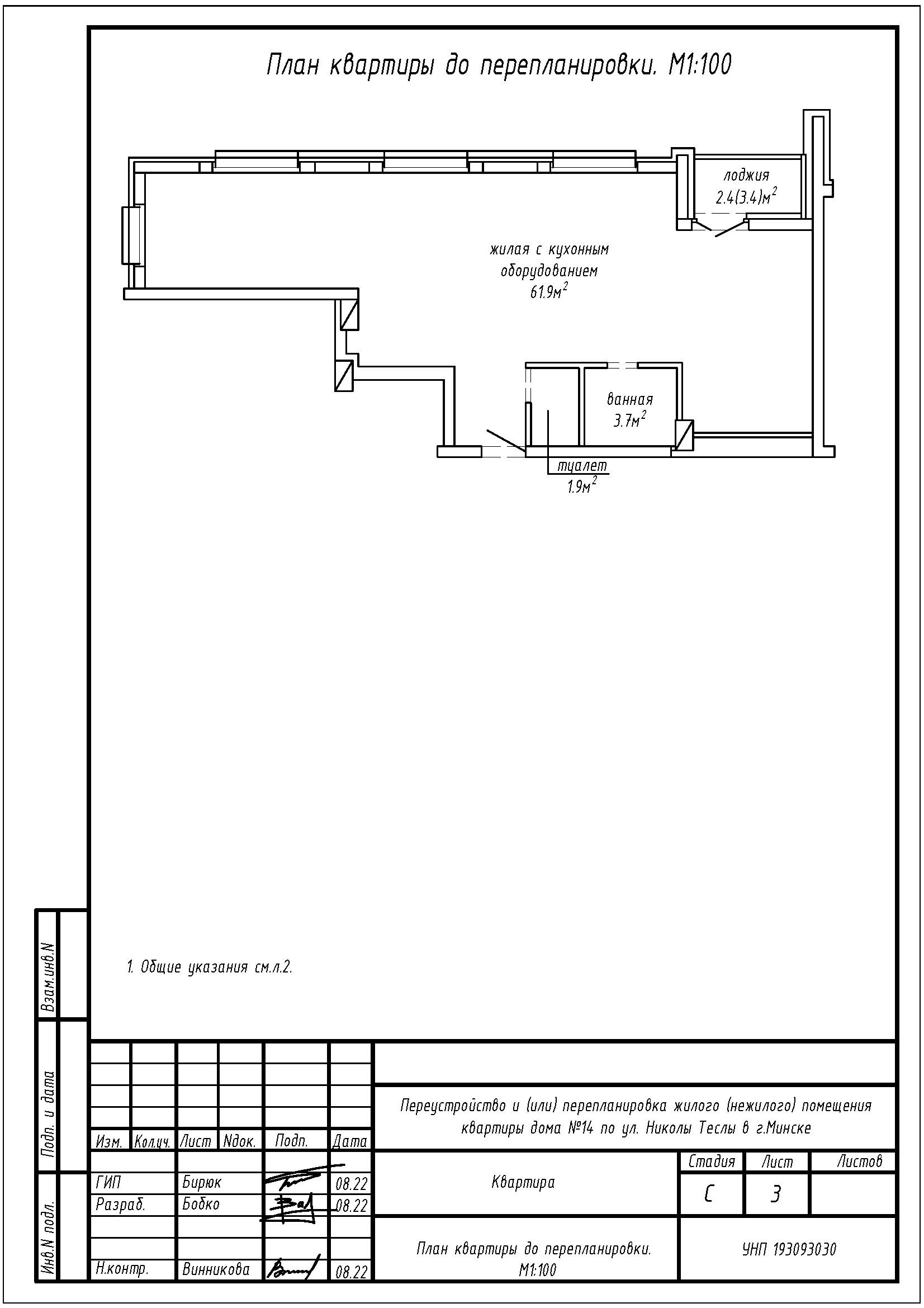
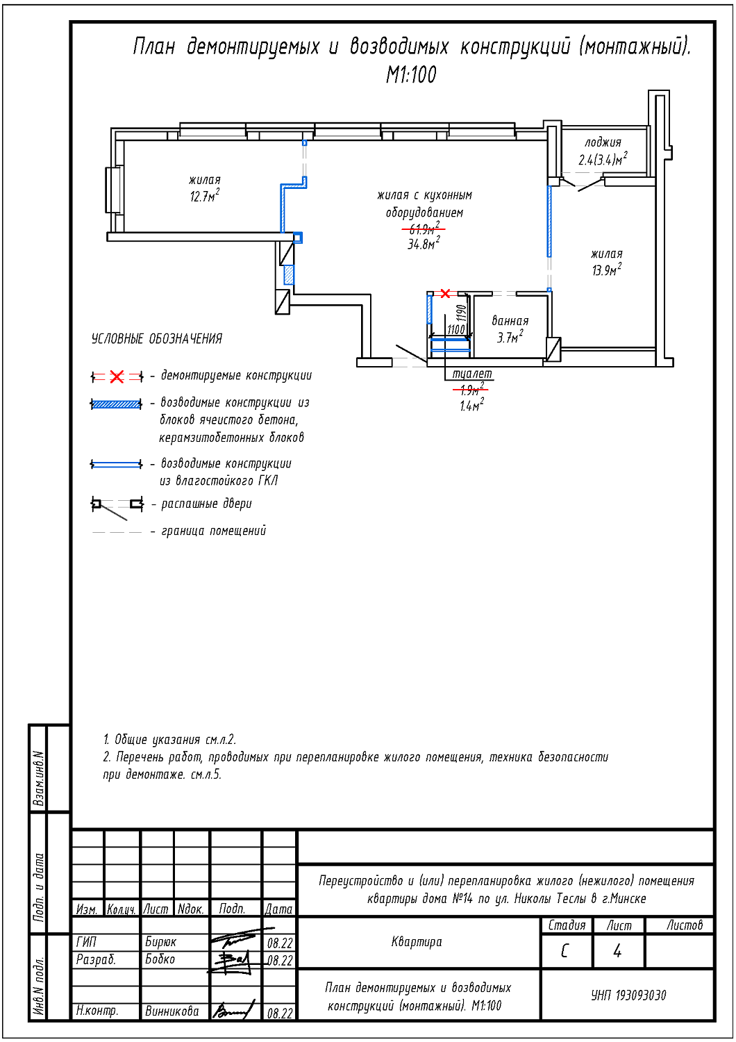
Перепланировка квартиры по ул. Николы Теслы, 14 в ЖК «Минск Мир»
Пожелания заказчика:
- Разделение общей жилой с кухонным оборудованием на жилую с кухонным оборудованием, две жилые;
- Смещение дверного проёма между жилой с кухонным оборудованием и туалетом;
- Устройство зашивок из ГКЛ на части площади туалета;
- Замена и перенос существующих отопительных приборов.
Нами были разработаны следующие разделы проектной документации для согласования в исполкоме:
- АС - архитектурно-строительные решения;
- ОВ - отопление и вентиляция.
