Пожелания заказчика:
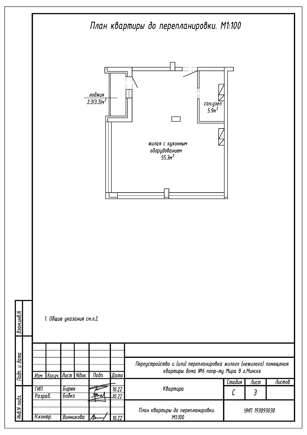
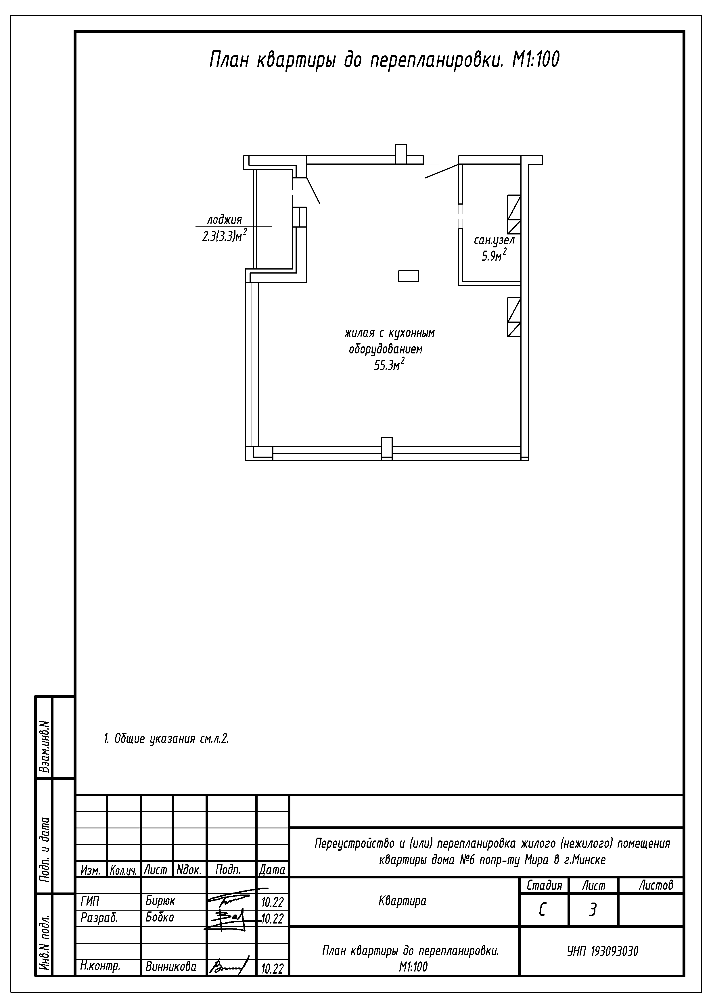
- Разделение общей жилой с кухонным оборудованием на жилую с кухонным оборудованием, две жилые, кладовую и коридор;
- Смещение дверного проёма между санузлом и жилой с кухонным оборудованием;
- Замена дверного блока входной двери со сменой направления открывания;
- Устройство зашивок из ГКЛ на части площади санузла;
- Увеличение площади санузла за счёт жилой с кухонным оборудованием, что является меньше допустимого увеличения (25%);
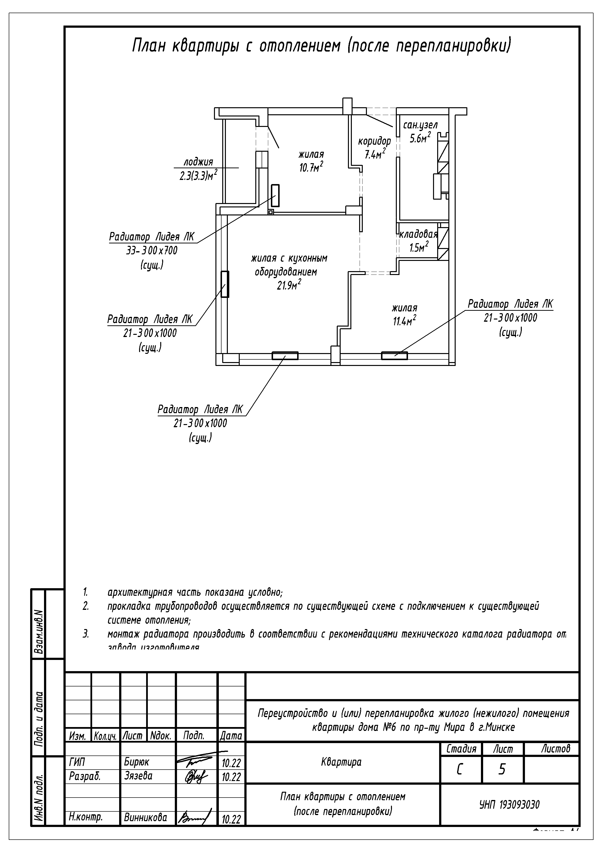
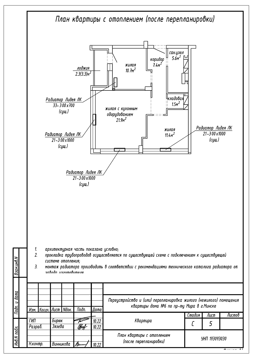
- Перенос существующих отопительных приборов.
Нами были разработаны следующие разделы проектной документации для согласования в исполкоме:
- АС - архитектурно-строительные решения (перегородки);
- ОВ - отопление и вентиляция (батареи).
Состав рабочих чертежей основного комплекта раздела АС:
- План квартиры до перепланировки;
- План демонтируемых и возводимых конструкций (монтажный);
- План квартиры после перепланировки;
- Деталь устройства пола из керамической плитки в санузлах;
- Перечень работ, проводимых при перепланировке жилого помещения;
- Указания по устройству полов.
Состав рабочих чертежей основного комплекта раздела ОВ:
- План квартиры с отоплением (существующий вариант);
- План квартиры с отоплением (проектируемый вариант).
