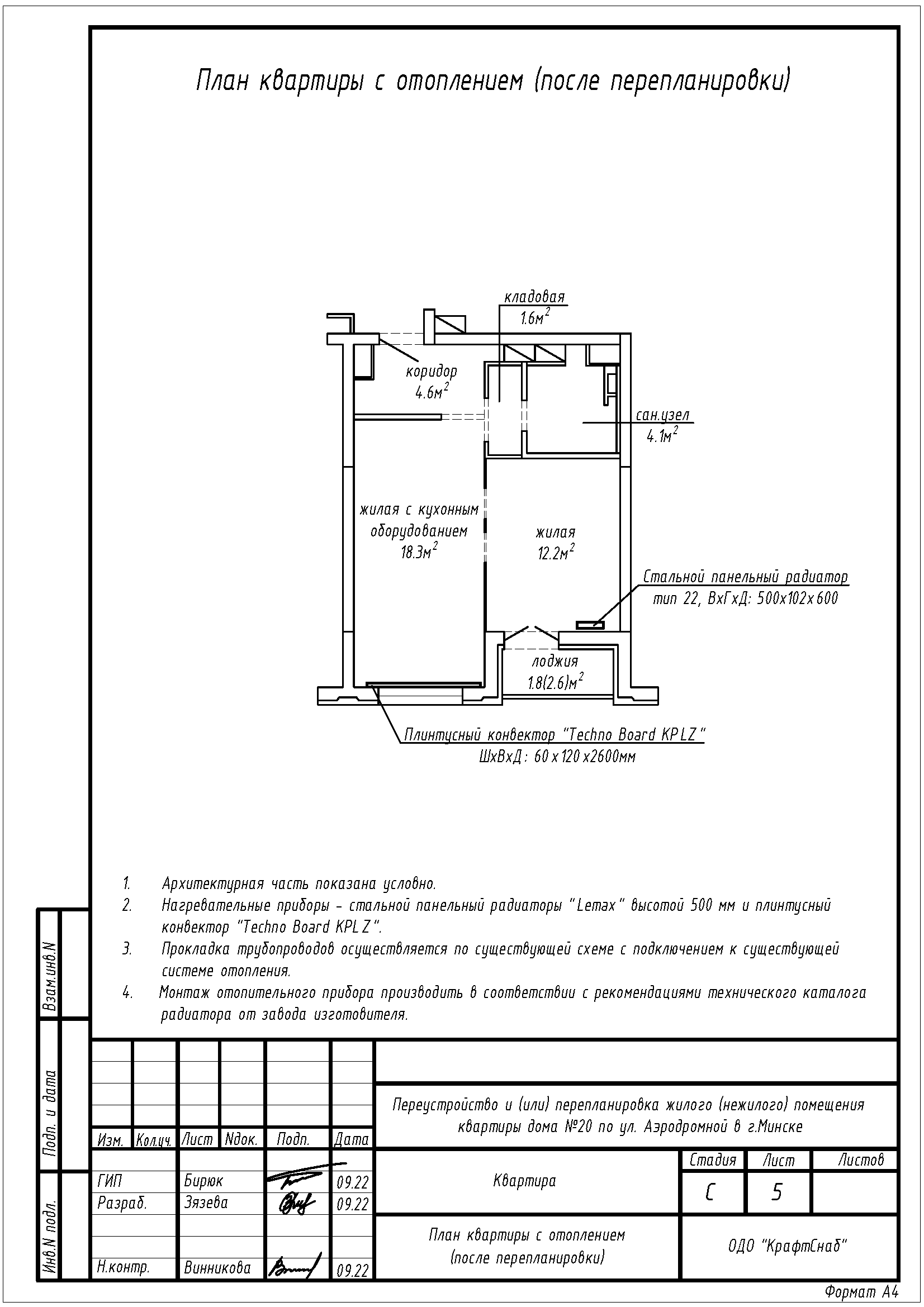
Перепланировка квартиры по ул. Аэродромная, 20 в ЖК «Минск Мир»
Пожелания заказчика:
- Разделение общей жилой с кухонным оборудованием на жилую с кухонным оборудованием, жилую, коридор, кладовую;
- Изменение габаритов санузла;
- Замена существующих отопительных приборов.
Нами были разработаны следующие разделы проектной документации для согласования в исполкоме:
- АС - архитектурно-строительные решения;
- ОВ - отопление и вентиляция.
