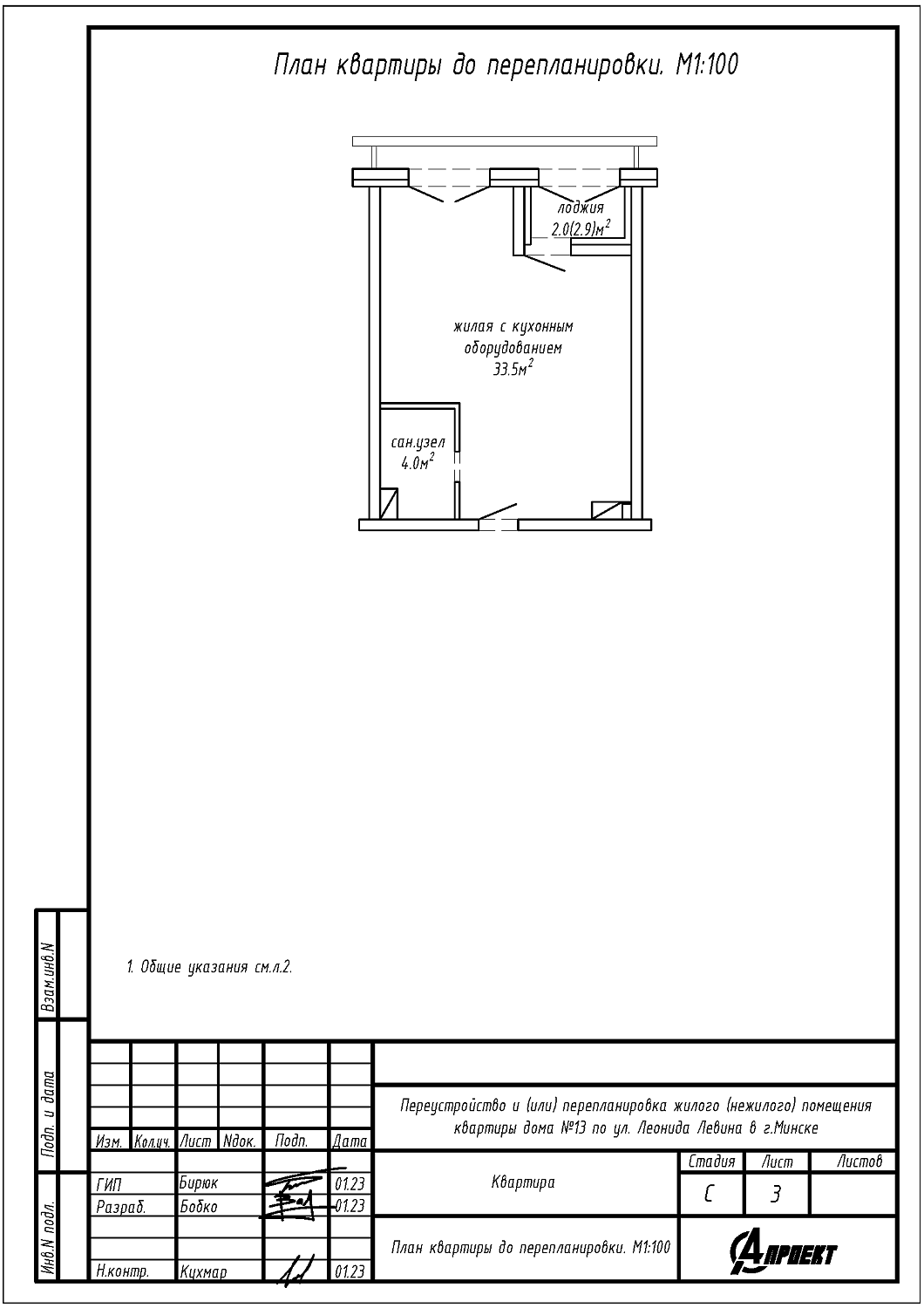
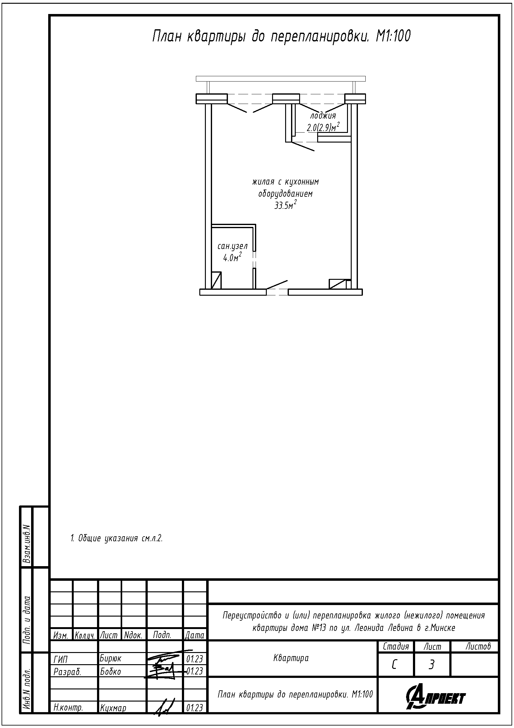
Перепланировка квартиры по ул. Левина, 13 в ЖК «Минск Мир»
Пожелания заказчика:
- Разделение жилой с кухонным оборудованием на жилую и жилую с кухонным оборудованием;
- Смена направления открывания входной двери;
- Устройство зашивки из ГКЛ на части площади санузла;
- Устройство оконного проёма с последующим устройством оконного блока в стене между лоджией и жилой с кухонным оборудованием.
Нами были разработаны следующие разделы проектной документации для согласования в исполкоме:
- АС - архитектурно-строительные решения.
