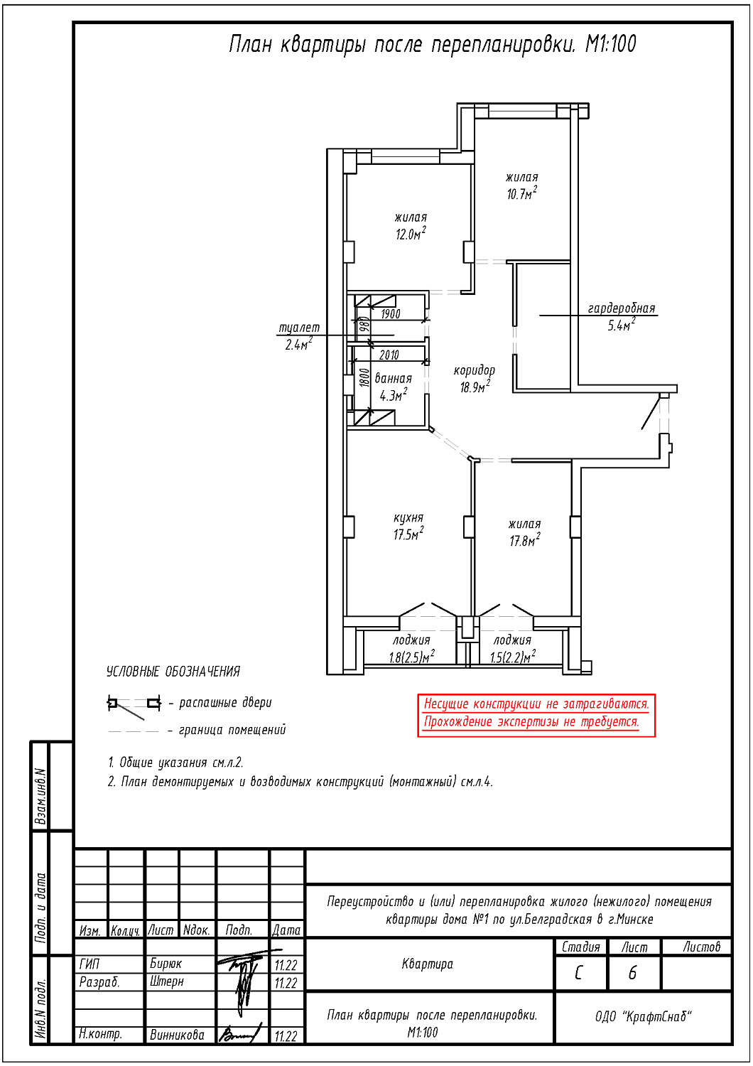
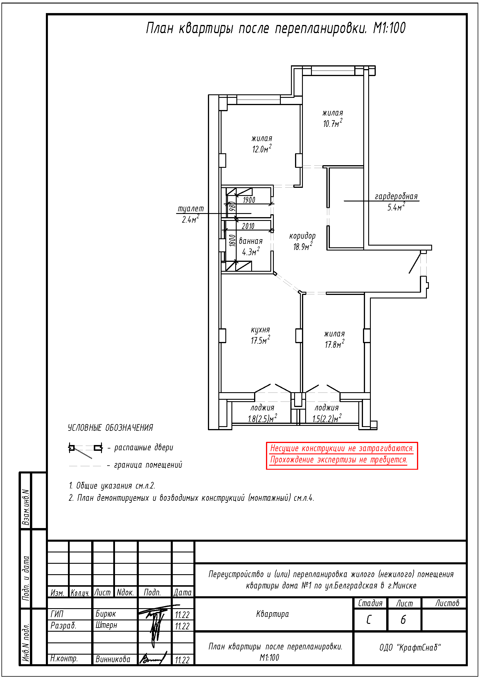
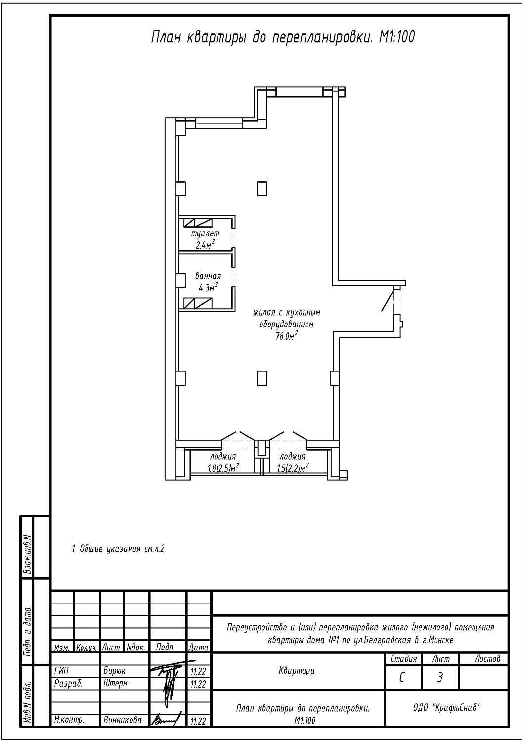
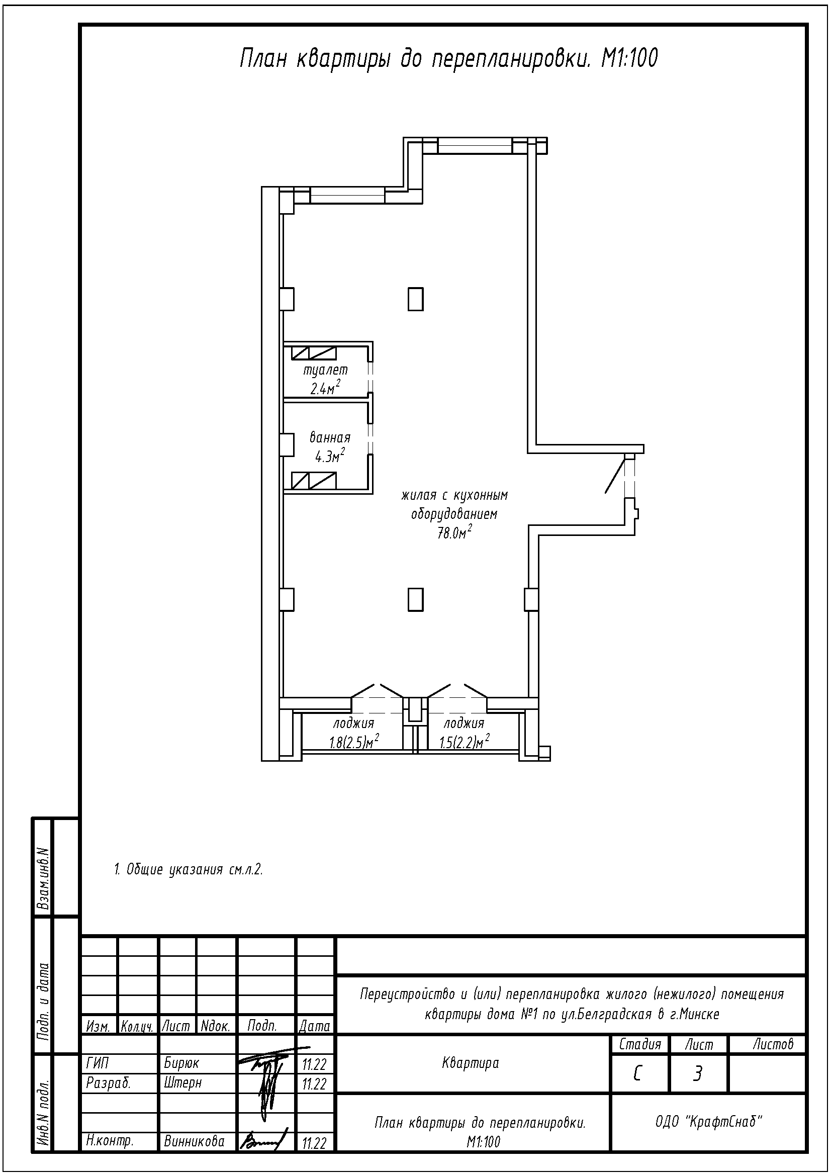
Перепланировка квартиры по ул. Белградская, 1 в ЖК «Минск Мир»
Пожелания заказчика:
- Разделение общей жилой с кухонным оборудованием на кухню, три жилые, коридор и гардеробную;
- Устройство зашивок из ГКЛ на части площади туалета и ванной;
- Увеличение дверного проёма в стене между кухней и лоджией с последующим устройством дверного блока.
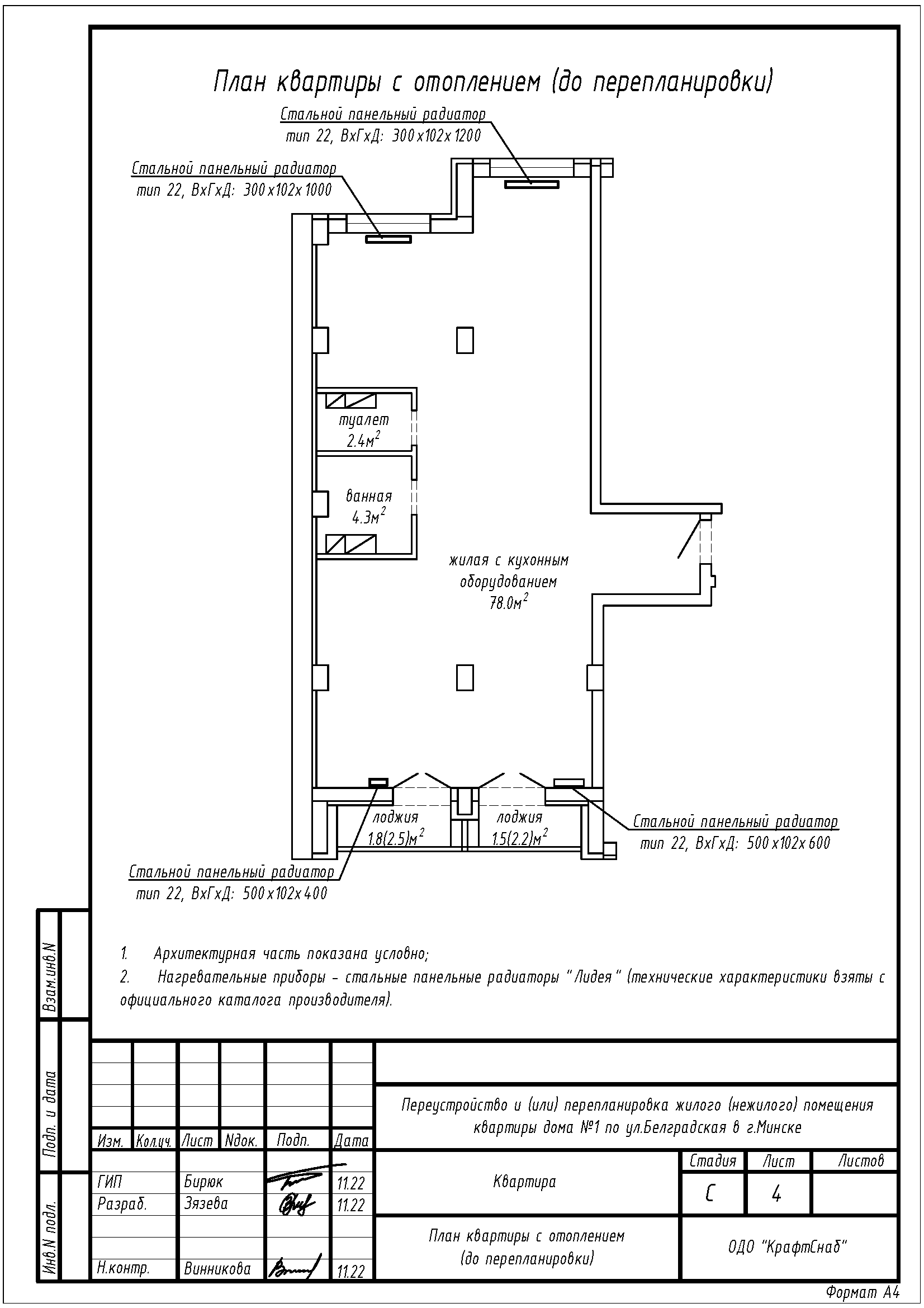
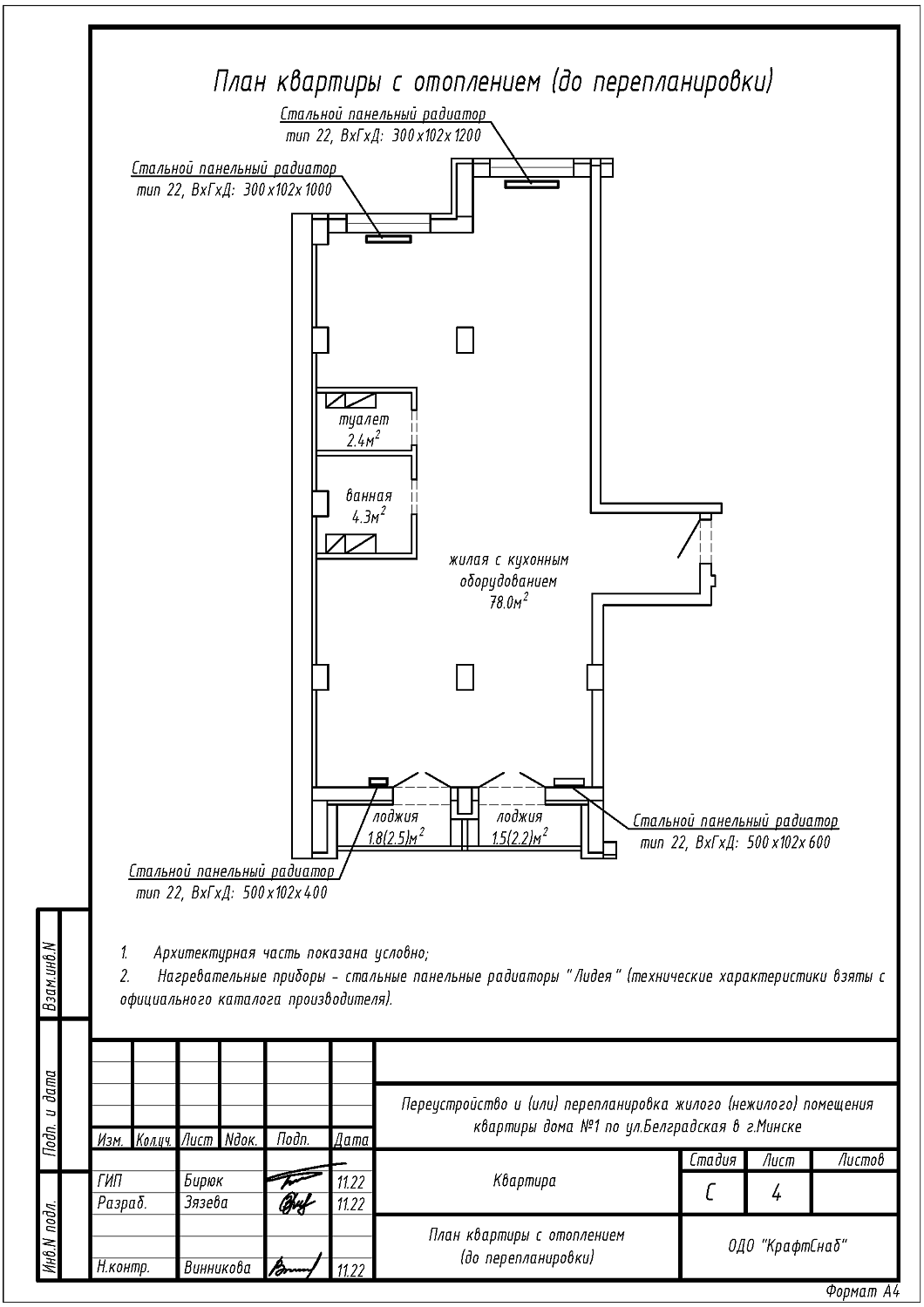
- Перенос и замена отопительных приборов.
Нами были разработаны следующие разделы проектной документации для согласования в исполкоме:
- АС - архитектурно-строительные решения;
- ОВ - отопление и вентиляция.
