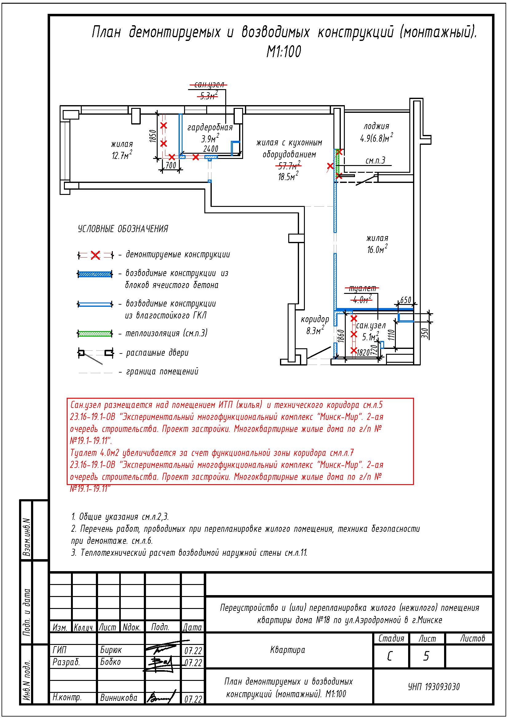
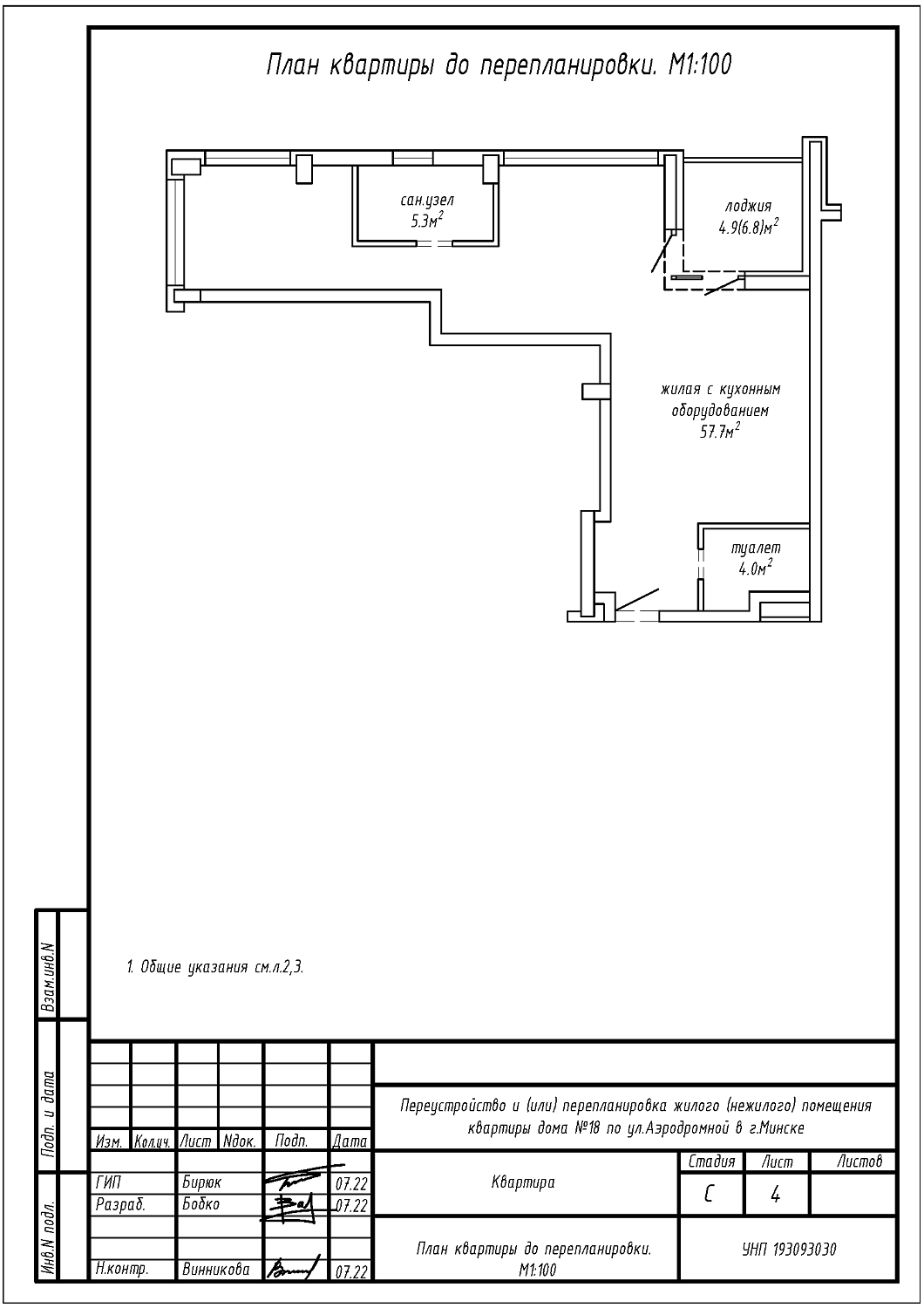
Перепланировка квартиры по ул. Аэродромная, 18 в ЖК «Минск Мир»
Пожелания заказчика:
- Разделение общего жилого на жилую с кухонным оборудованием, две жилые и коридор;
- Устройство гардеробной на площади существующего сан.узла;
- Устройство нового санузла на площади туалета и увеличение нового сан.узла;
- Закладка дверного проёма между лоджией и жилой, устройство теплоизоляции.
Нами были разработаны следующие разделы проектной документации для согласования в исполкоме:
- АС - архитектурно-строительные решения.
