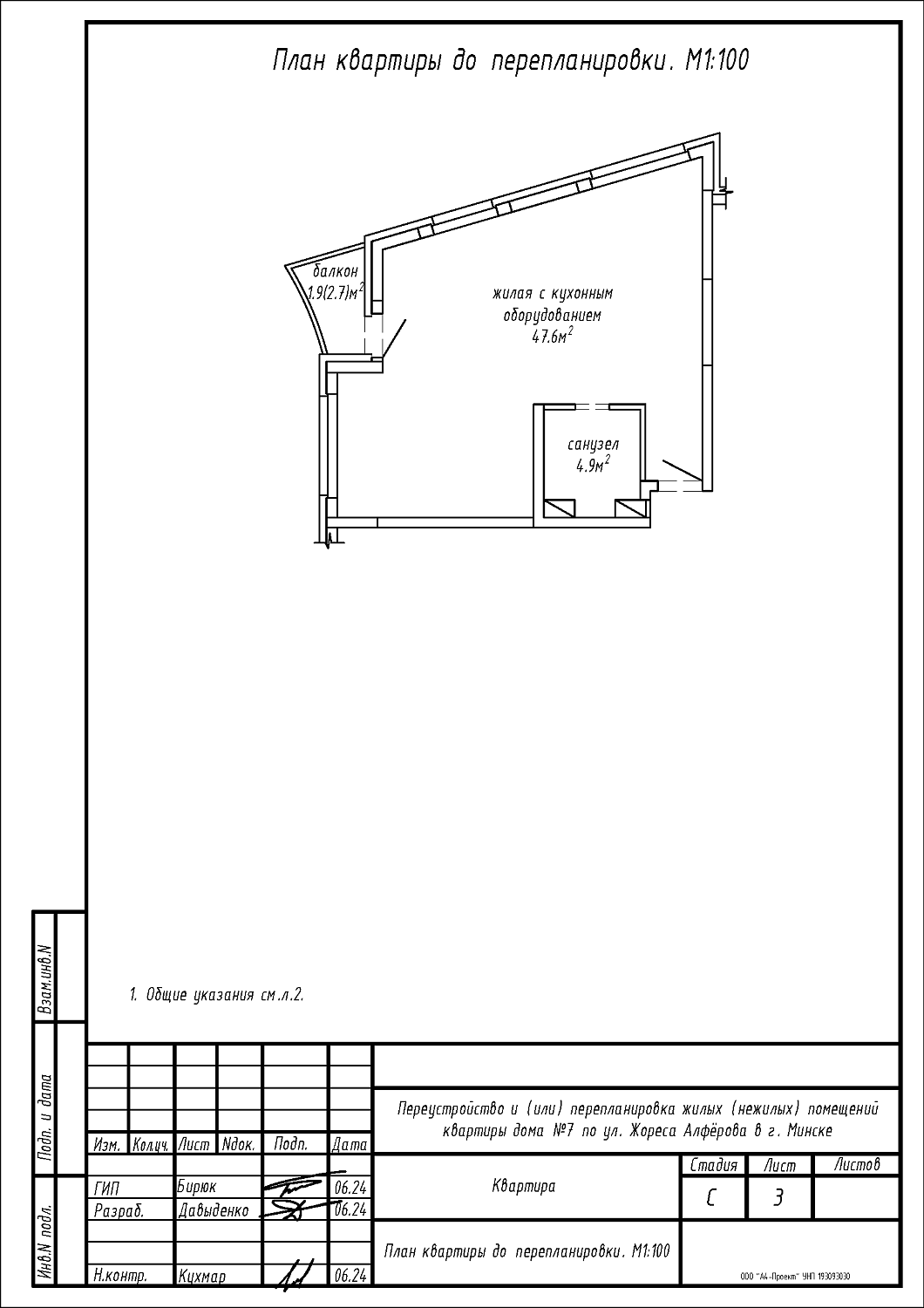
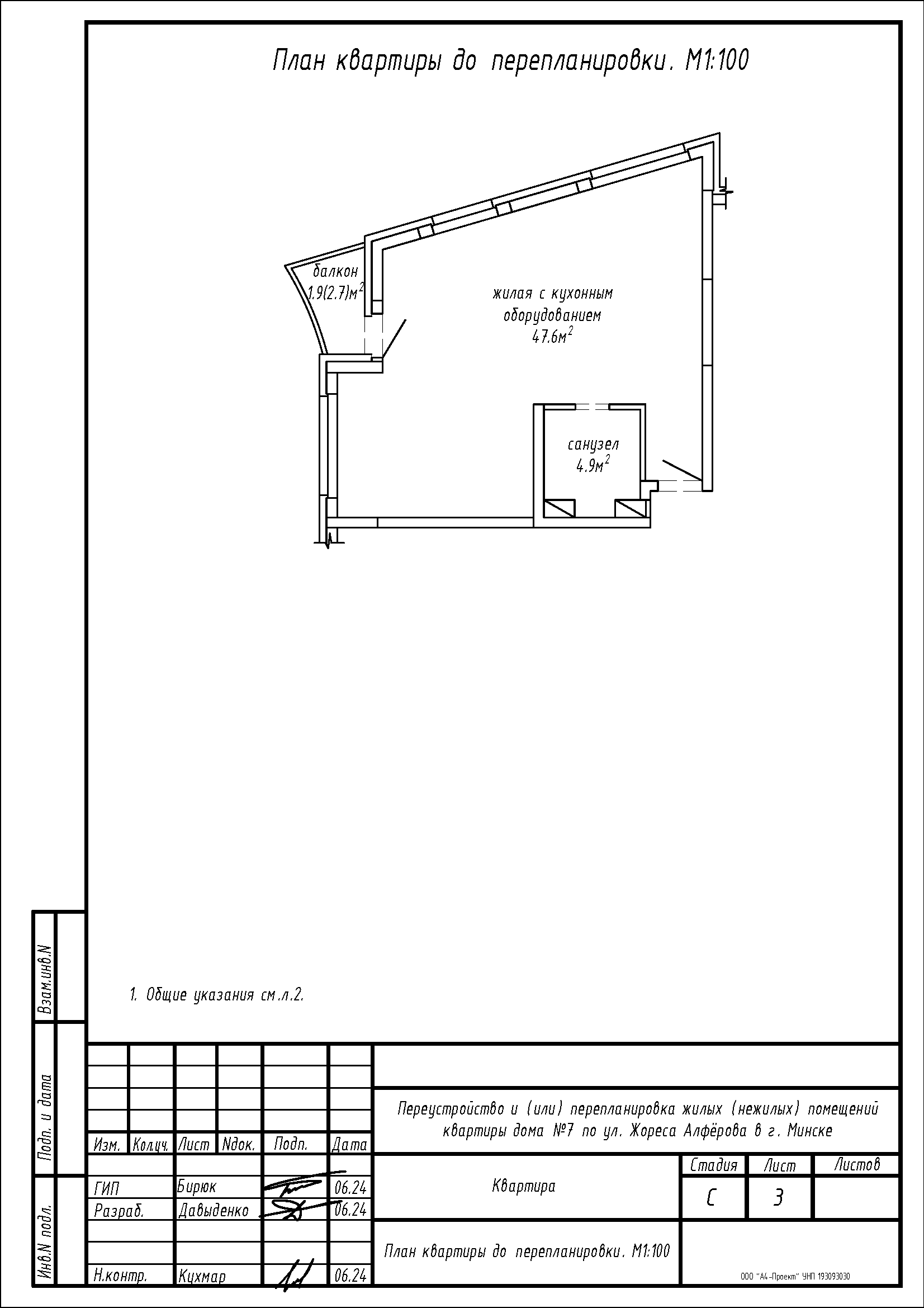
Перепланировка квартиры по ул. Жореса Алфёрова, 7 в ЖК «Минск Мир»
Пожелания заказчика:
- Устройство перегородок с дверными проёмами на площади жилой с кухонным оборудованием и санузла, с целью образования помещений: жилой с кухонным оборудованием, двух жилых, гардеробной, ванной и туалета;
- Смещение дверного проёма в перегородке между санузлом и жилой с кухонным оборудованием;
- Устройство дверного проёма в перегородке между санузлом и жилой с кухонным оборудованием.
Нами были разработаны следующие разделы проектной документации для согласования в исполкоме:
- АС - архитектурно-строительные решения.
