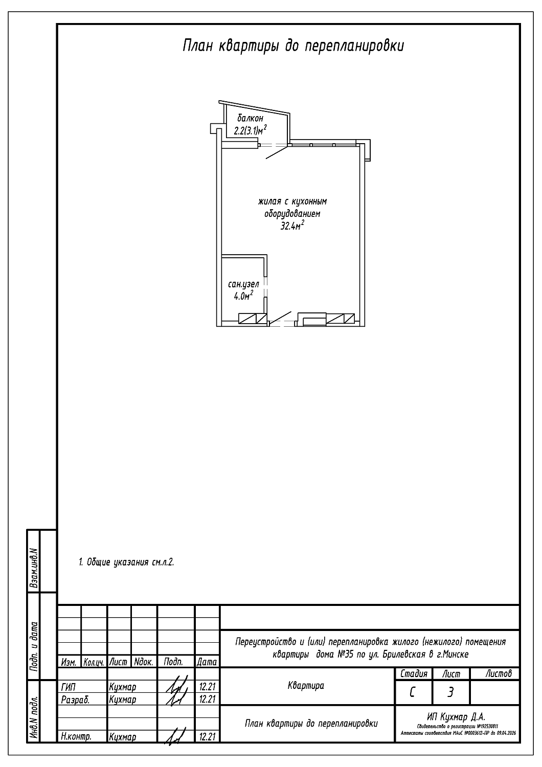
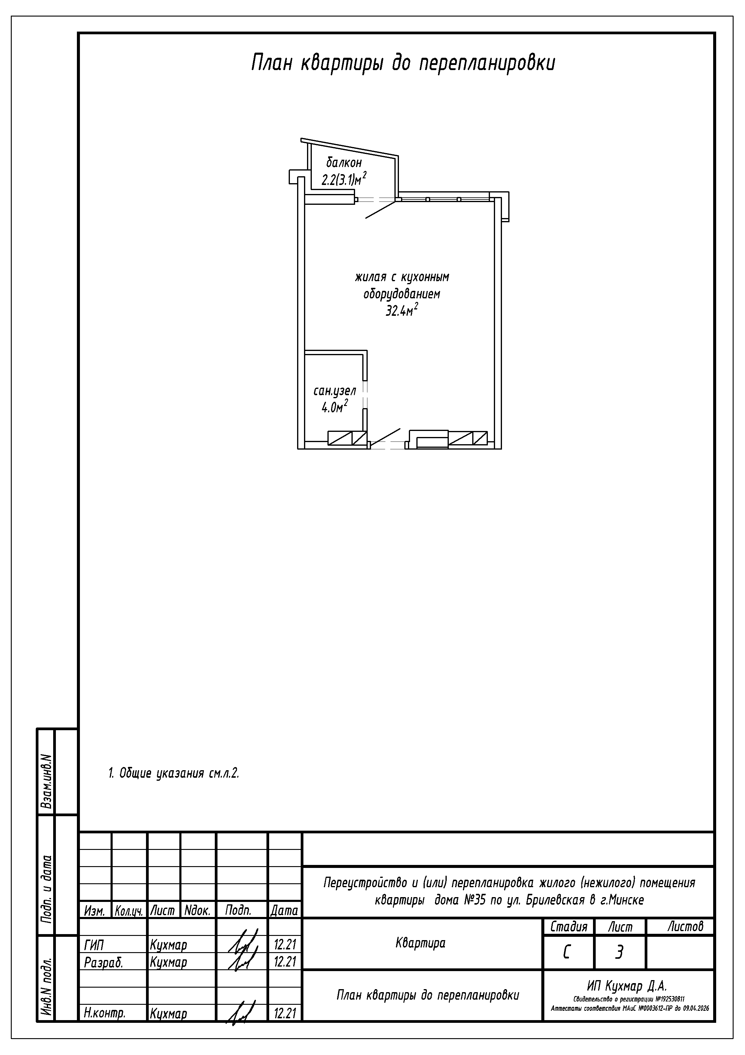
Перепланировка квартиры по ул. Брилевская, 35 ЖК «Минск Мир»
Пожелания заказчика:
- Устройство на площади жилой с кухонным оборудованием гардеробной;
- Смещение дверного проёма в перегородке между санузлом и жилой с кухонным оборудованием;
- Увеличение площади санузла, но не более чем на 25% от первоначальной площади;
Нами были разработаны следующие разделы проектной документации для согласования в исполкоме:
- АС - архитектурно-строительные решения;
- ОВ - отопление и вентиляция.
