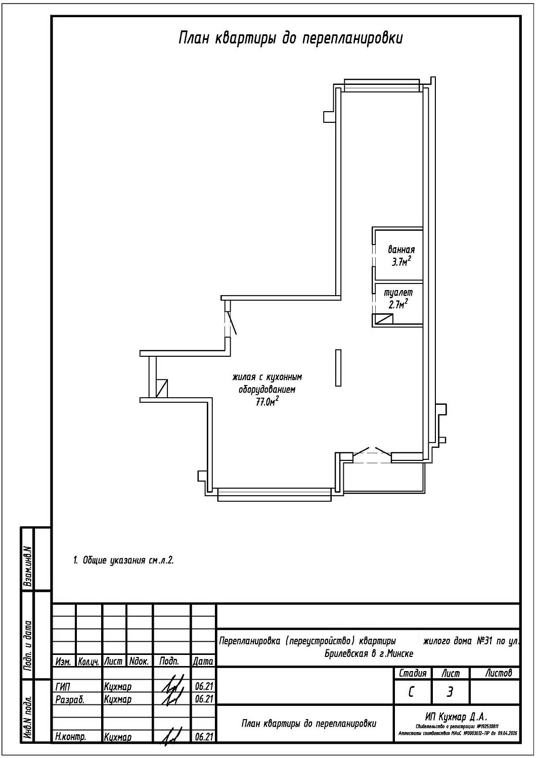
Перепланировка квартиры по ул. Брилевская, 31 в ЖК «Минск Мир»
Пожелания заказчика:
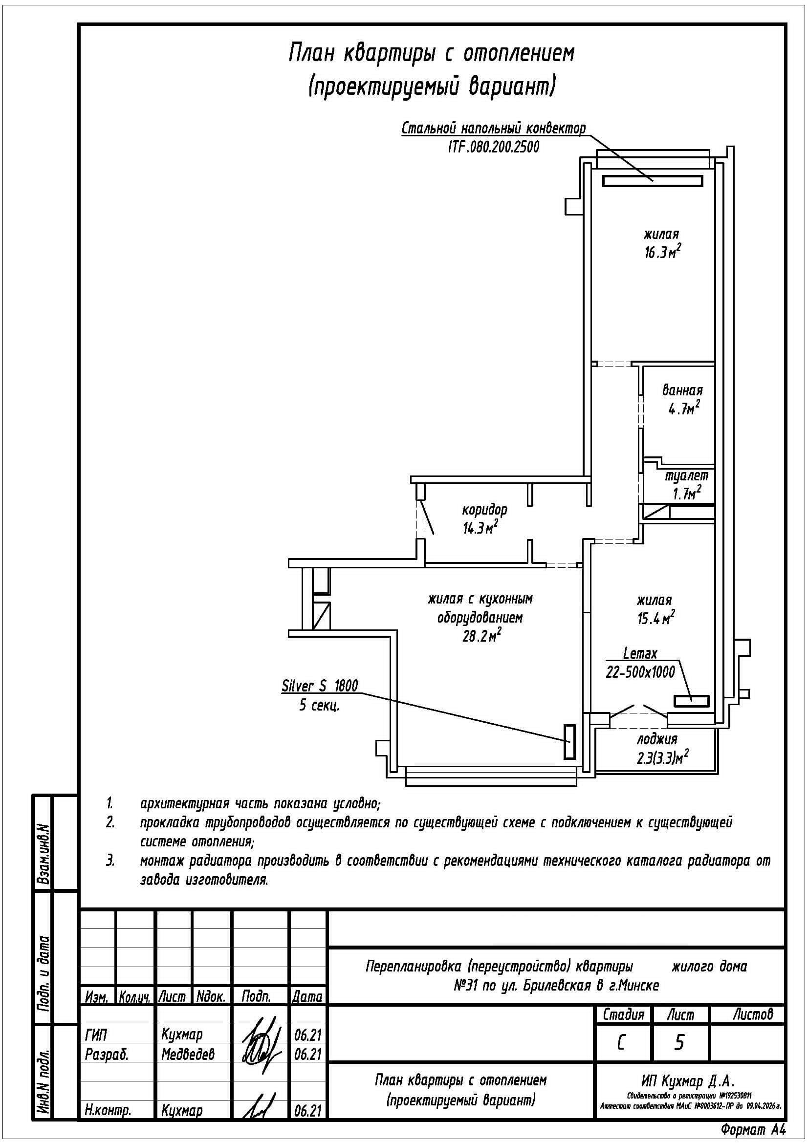
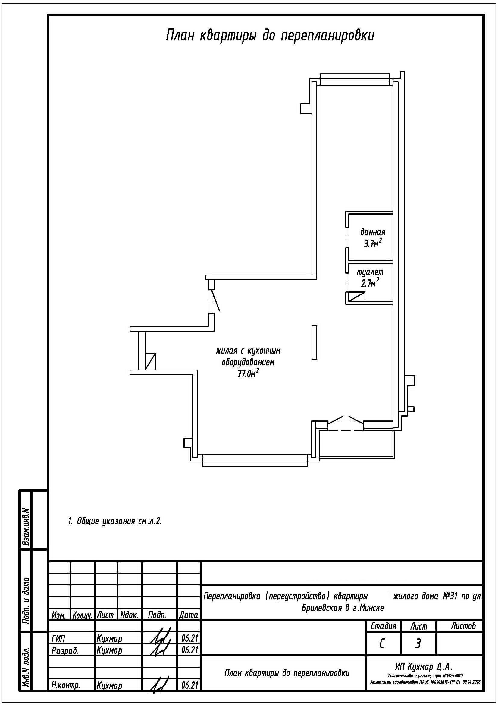
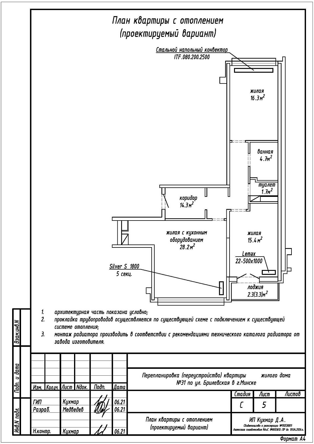
- Разделение общей жилой с кухонным оборудованием на жилую с кухонным оборудованием, две жилые, коридор;
- Увеличение площади ванной;
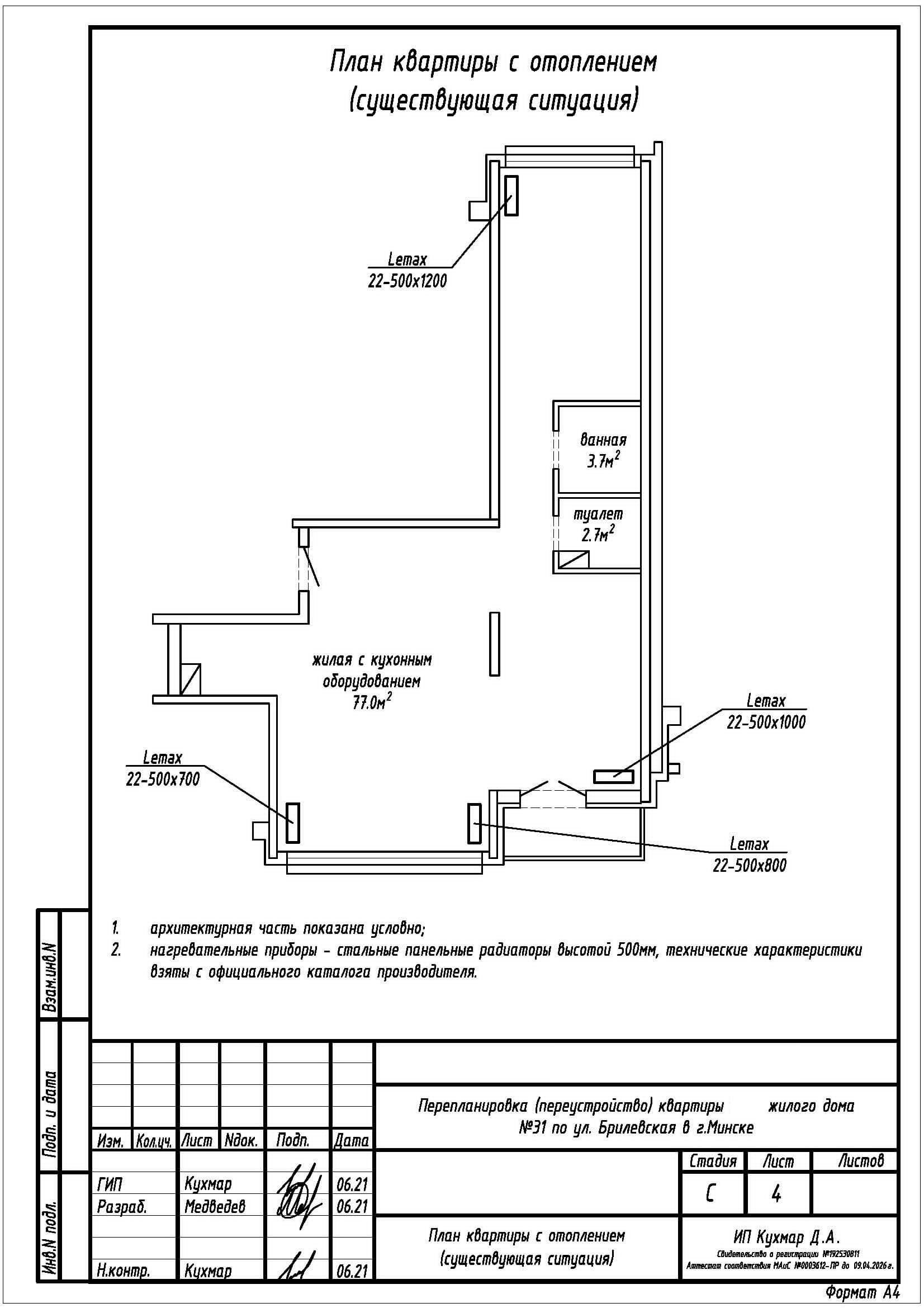
- Изменение габаритов туалета;
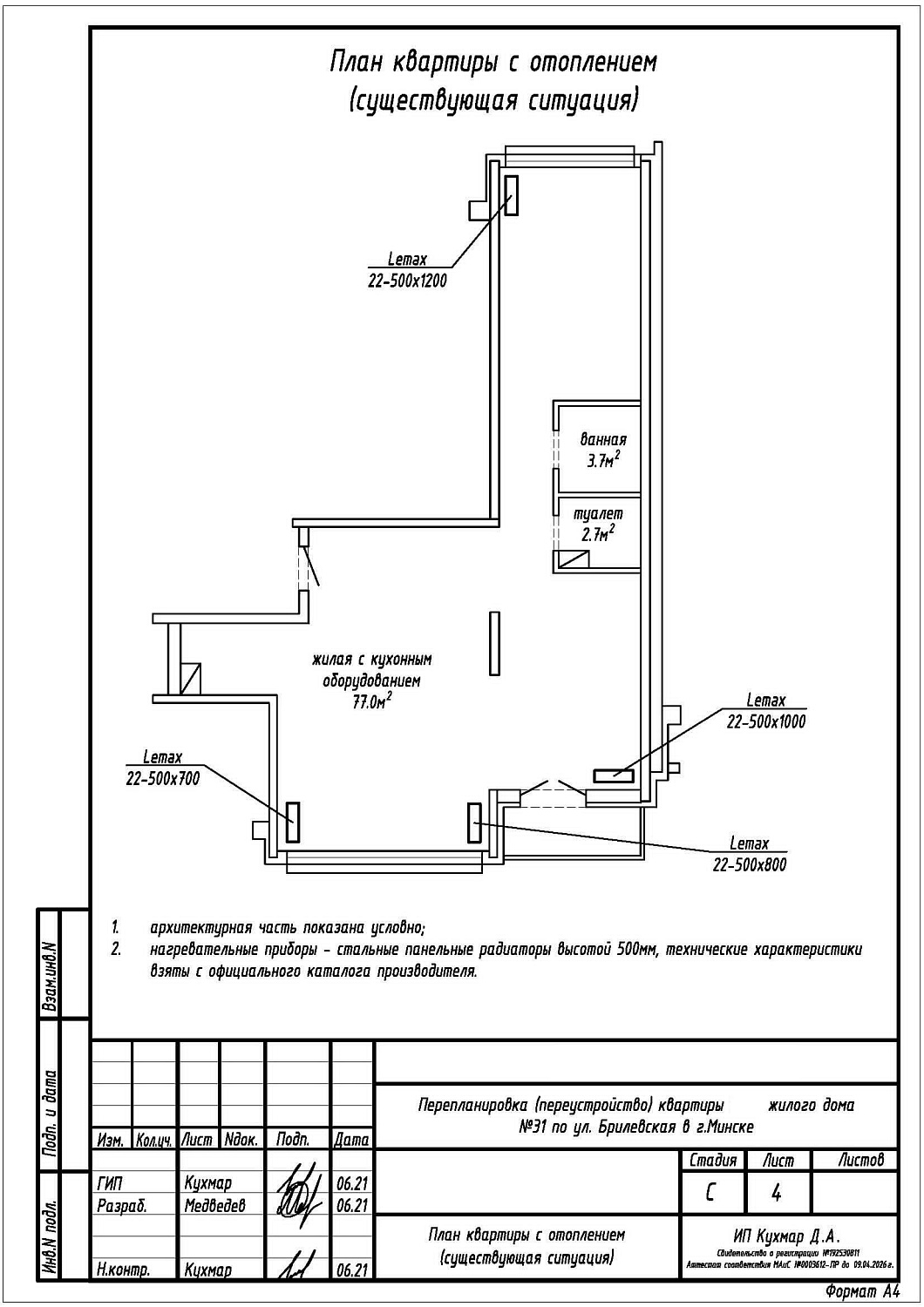
- Замена и перенос отопительных приборов;
Нами были разработаны следующие разделы проектной документации для согласования в исполкоме:
- АС - архитектурно-строительные решения;
- ОВ - отопление и вентиляция.
