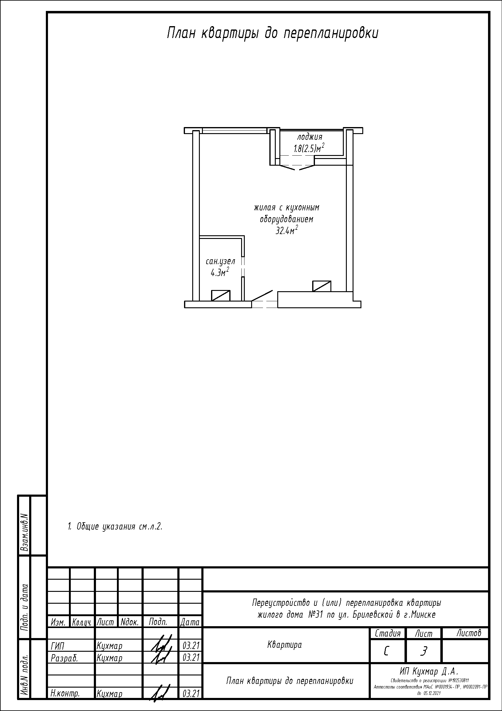
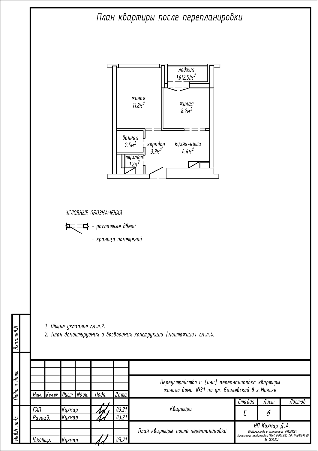
Перепланировка квартиры по ул. Брилевская, 31 в ЖК «Минск Мир»
Пожелания заказчика:
- Разделение общей жилой с кухонным оборудованием на две жилые, коридор, кухню-нишу;
- Разделение санузла на отдельную ванную и туалет.
Нами были разработаны следующие разделы проектной документации для согласования в исполкоме:
- АС - архитектурно-строительные решения.
