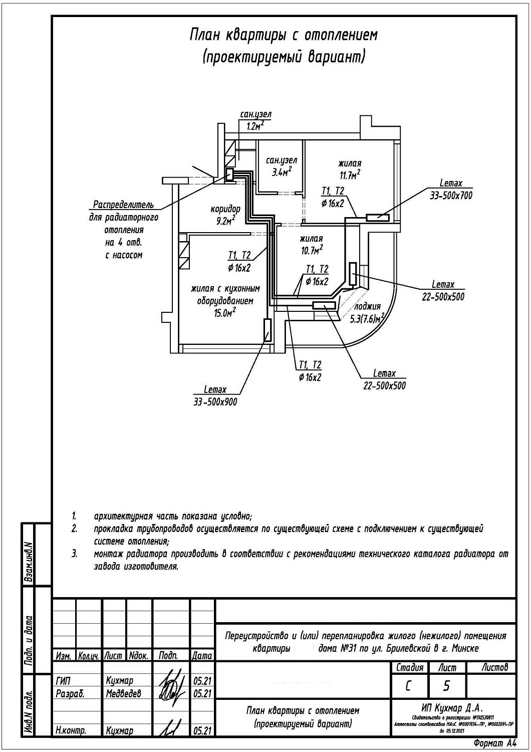
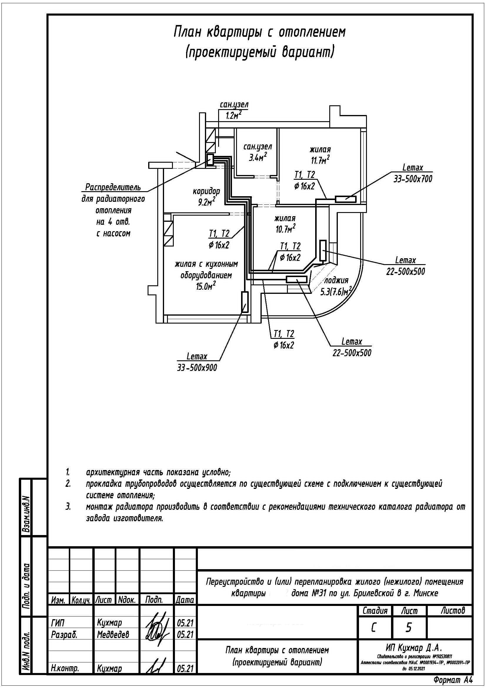
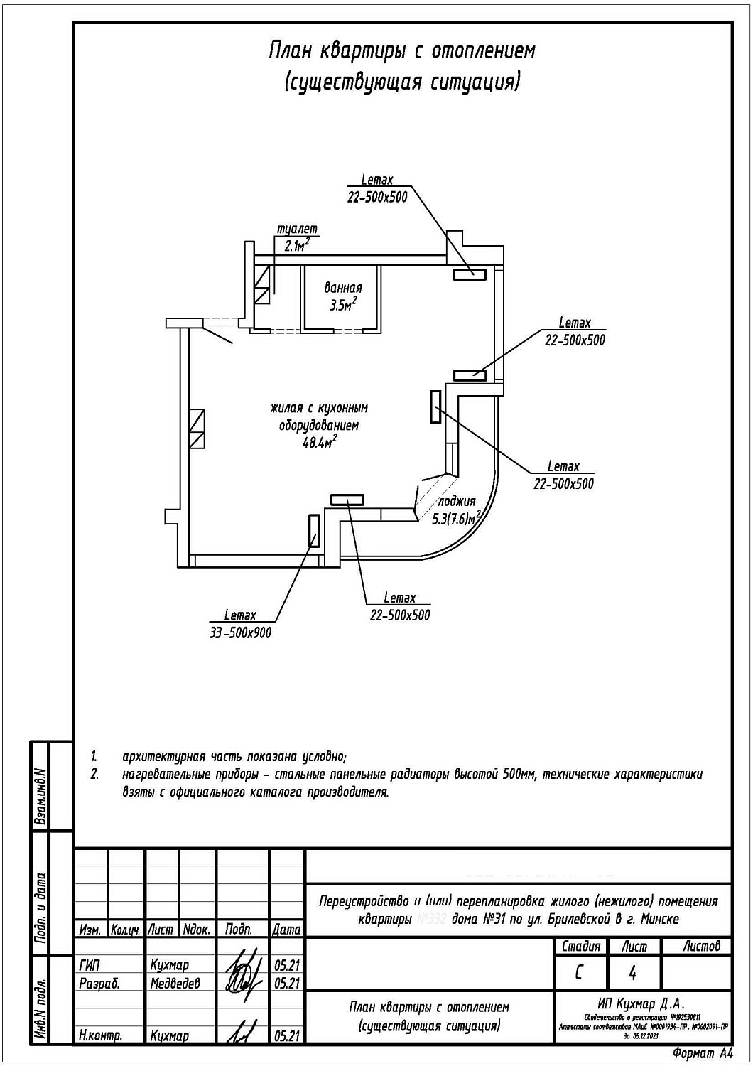
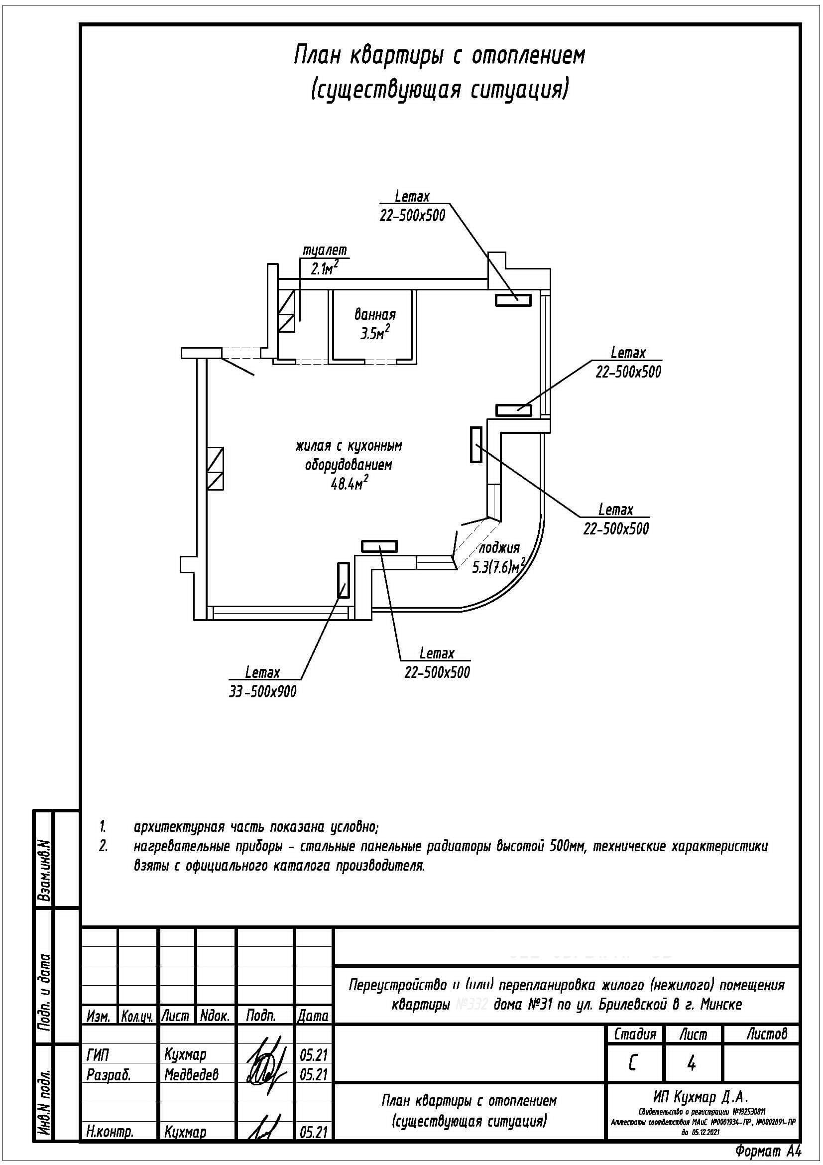
Перепланировка квартиры по ул. Брилевская, 31 в ЖК «Минск Мир»
Пожелания заказчика:
- Разделение общей жилой с кухонным оборудованием на жилую с кухонным оборудованием, две жилые, коридор;
- Устройство санузлов на площади существующего туалета и на площади существующей ванной;
- Изменение площади новых санузлов;
- Смена направления открывания входной двери;
- Замена и перенос отопительных приборов.
Нами были разработаны следующие разделы проектной документации для согласования в исполкоме:
- АС - архитектурно-строительные решения;
- ОВ - отопление и вентиляция.
