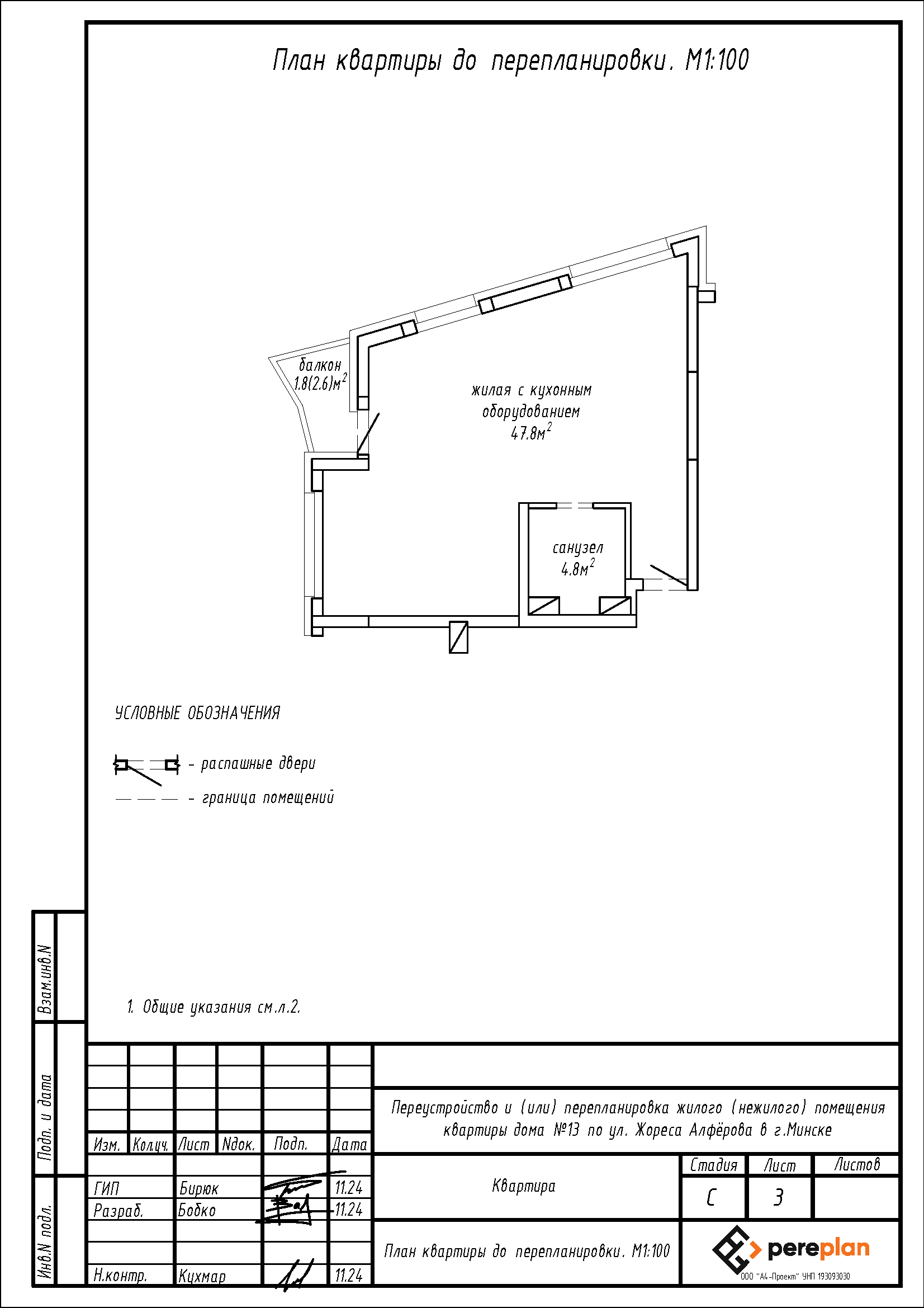
Перепланировка квартиры по ул. Жореса Алфёрова, 13 в ЖК «Минск Мир»
Пожелания заказчика:
- Закладка дверного проема в перегородке между жилой с кухонным оборудованием и санузлом с последующим устройством нового дверного проема;
- Устройство зашивок из ГКЛ на части площади санузла;
- Устройство перегородок с дверными проемами и зашивки из ГКЛ на части площади жилой с кухонным оборудованием.
- АС - архитектурно-строительные решения.
