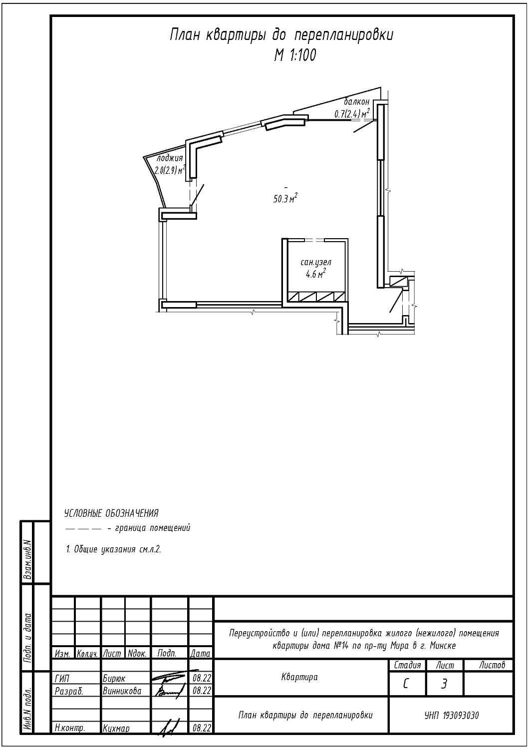
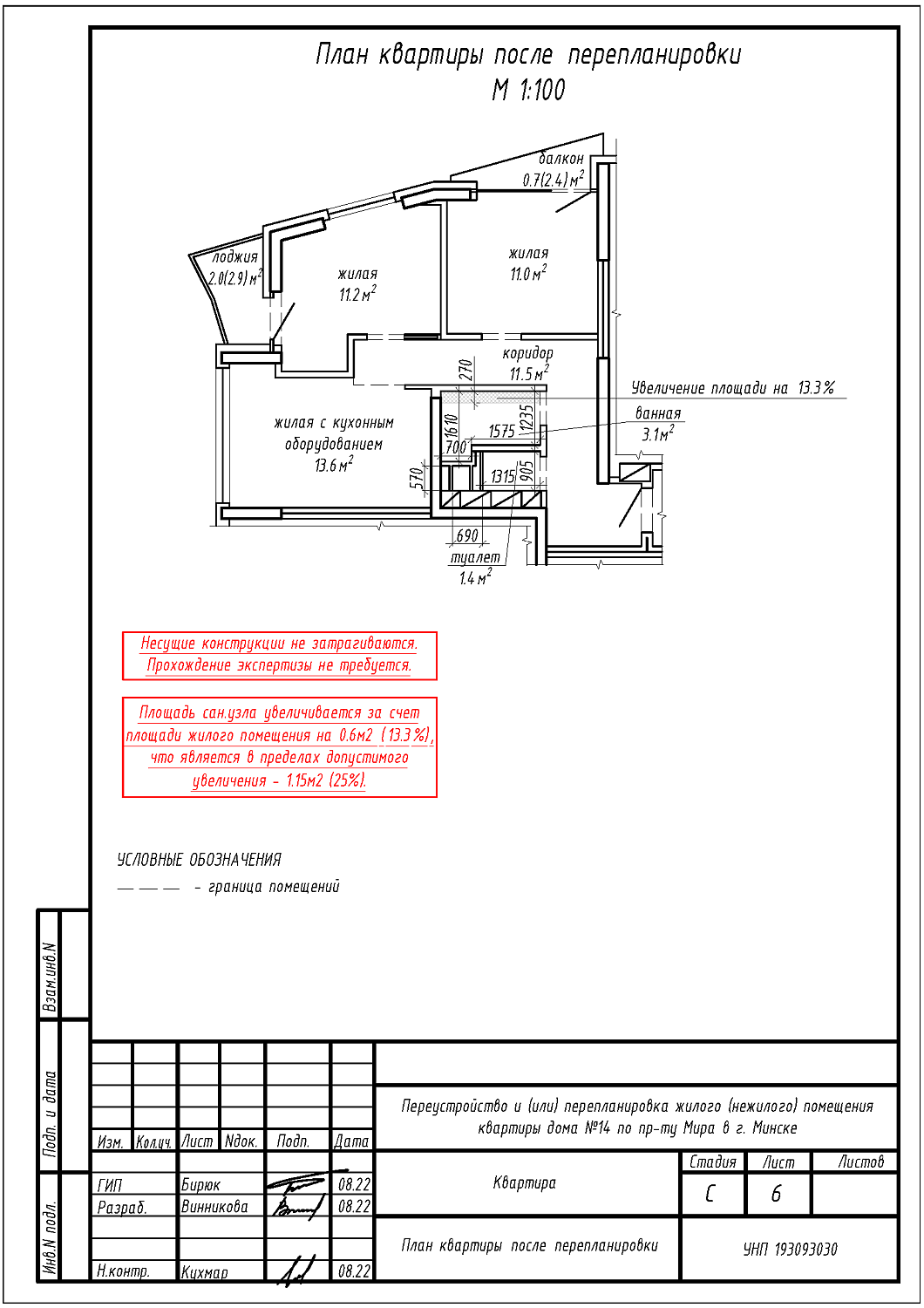
Перепланировка квартиры по проспекту Мира, 14 в ЖК «Минск Мир»
Пожелания заказчика:
- Разделение общего жилого помещения на жилую с кухонным оборудованием, две жилые и коридор;
- Устройство ванной на части площади санузла;
- Устройство туалета на части площади санузла;
- Увеличение площади ванной за счёт площади коридора.
Нами были разработаны следующие разделы проектной документации для согласования в исполкоме:
- АС - архитектурно-строительные решения.
