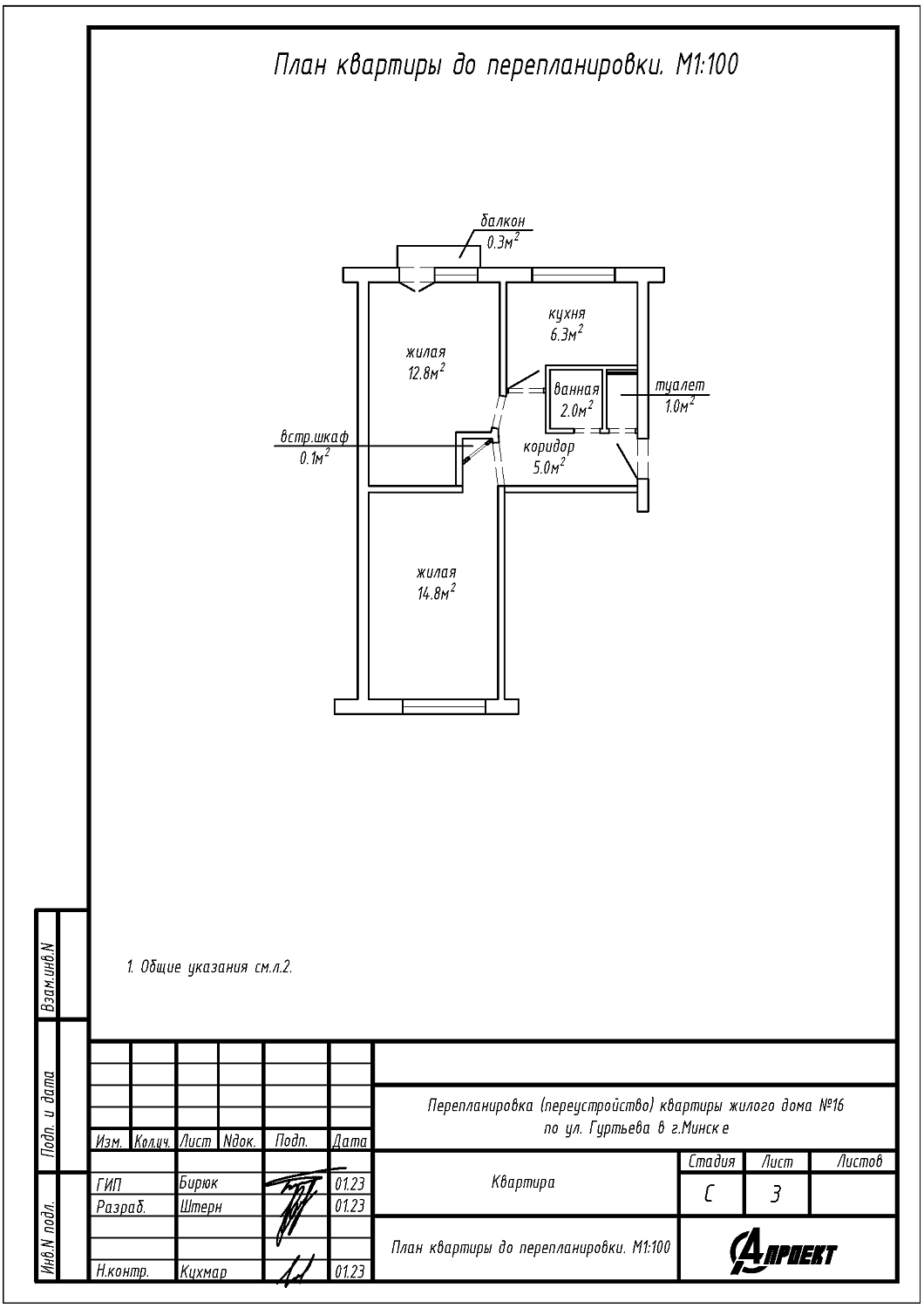
Перепланировка квартиры по ул. Гуртьева, 16 в г.Минске
Пожелания заказчика:
- Объединение ванной и туалета в единый санузел;
- Закладка дверного проёма между туалетом и коридором;
- Смена направления открывания входной двери.
Нами были разработаны следующие разделы проектной документации для согласования в исполкоме:
- АС - архитектурно-строительные решения.
