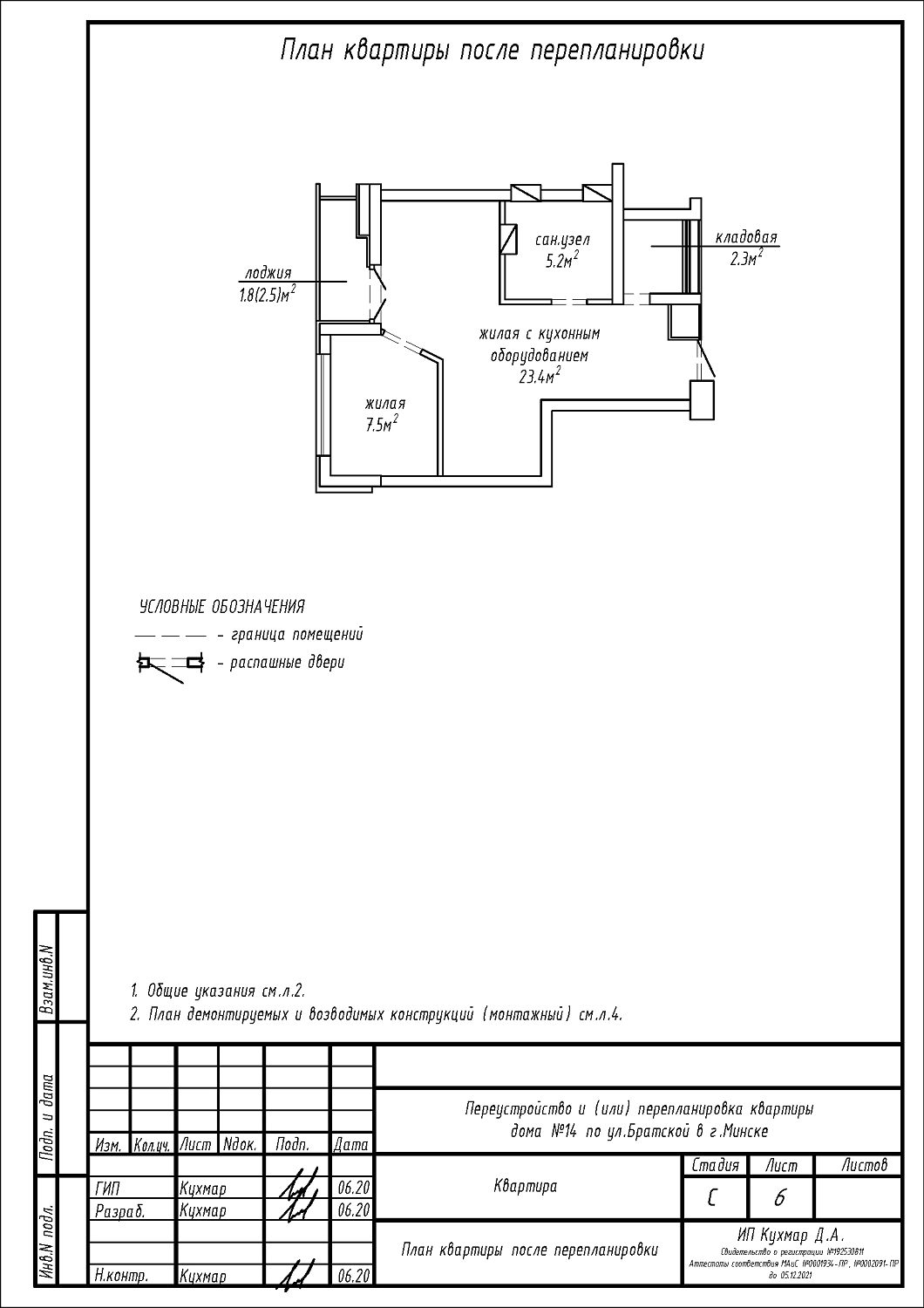
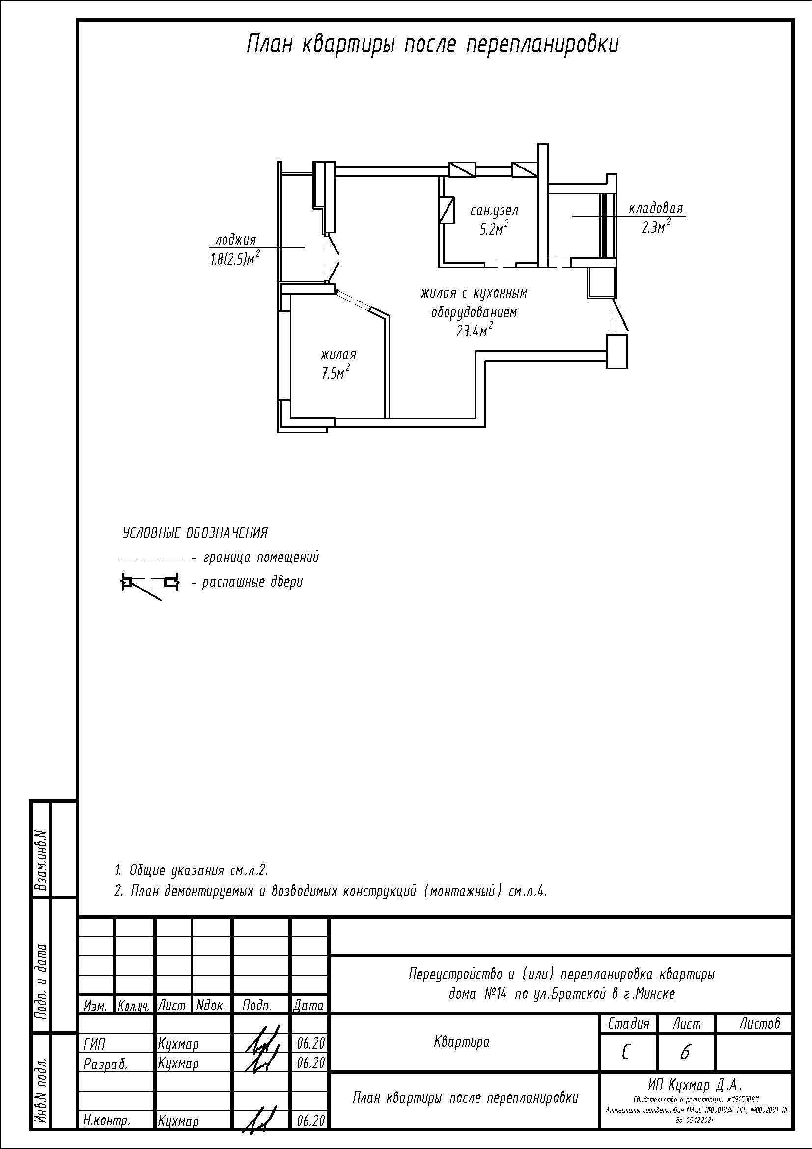
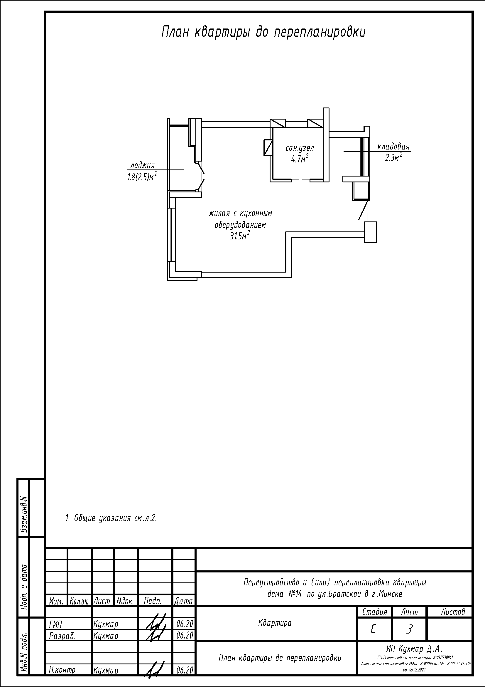
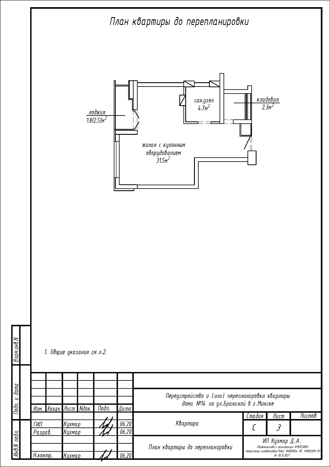
Перепланировка квартиры по ул. Братская, 14 в ЖК «Минск Мир»
Пожелания заказчика:- Разделение общей жилой с кухонным оборудованием на жилую с кухонным оборудованием и жилую;
- Увеличение площади существующего санузла.
Нами были разработаны следующие разделы проектной документации для согласования в исполкоме:
- АС - архитектурно-строительные решения.
