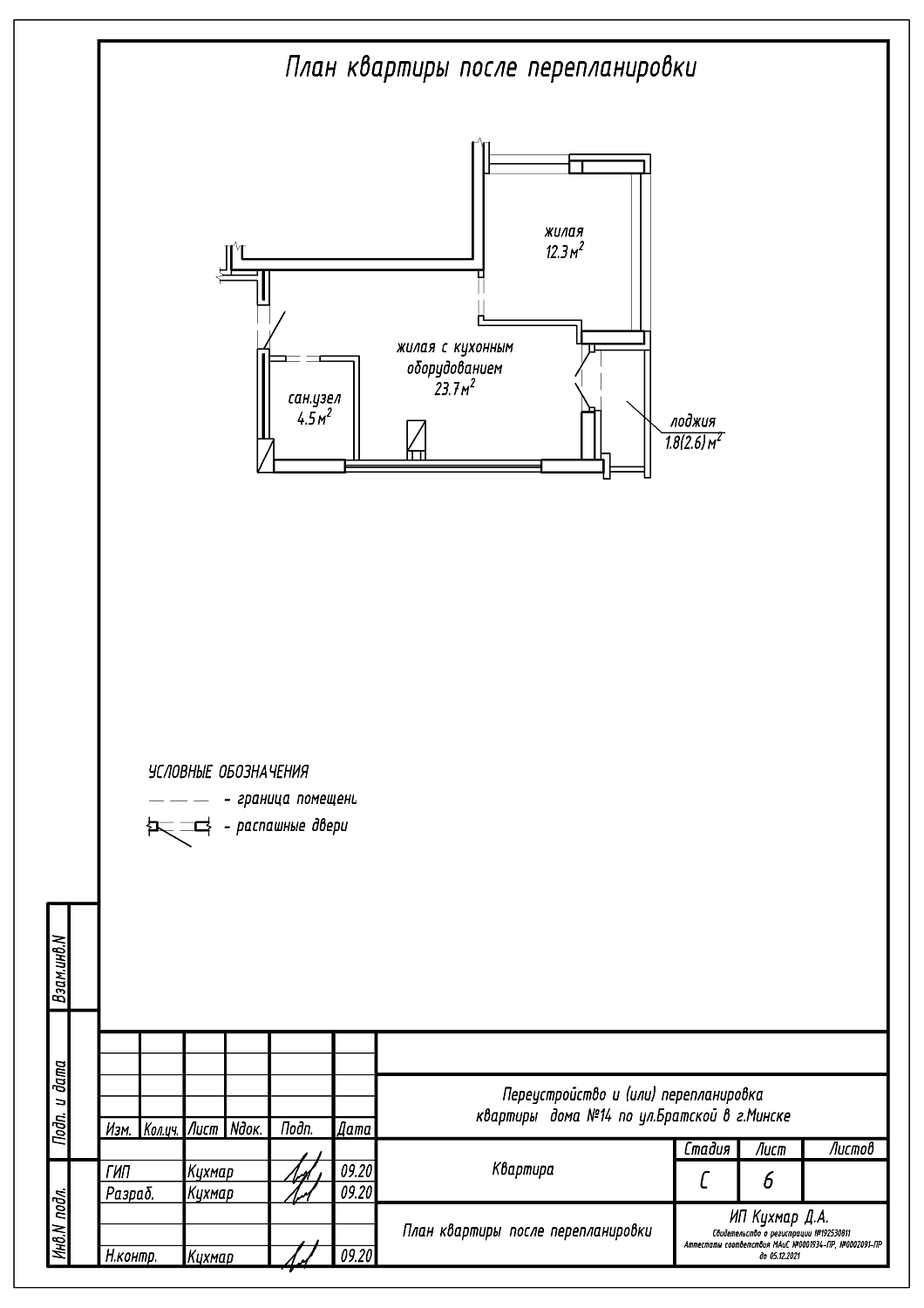
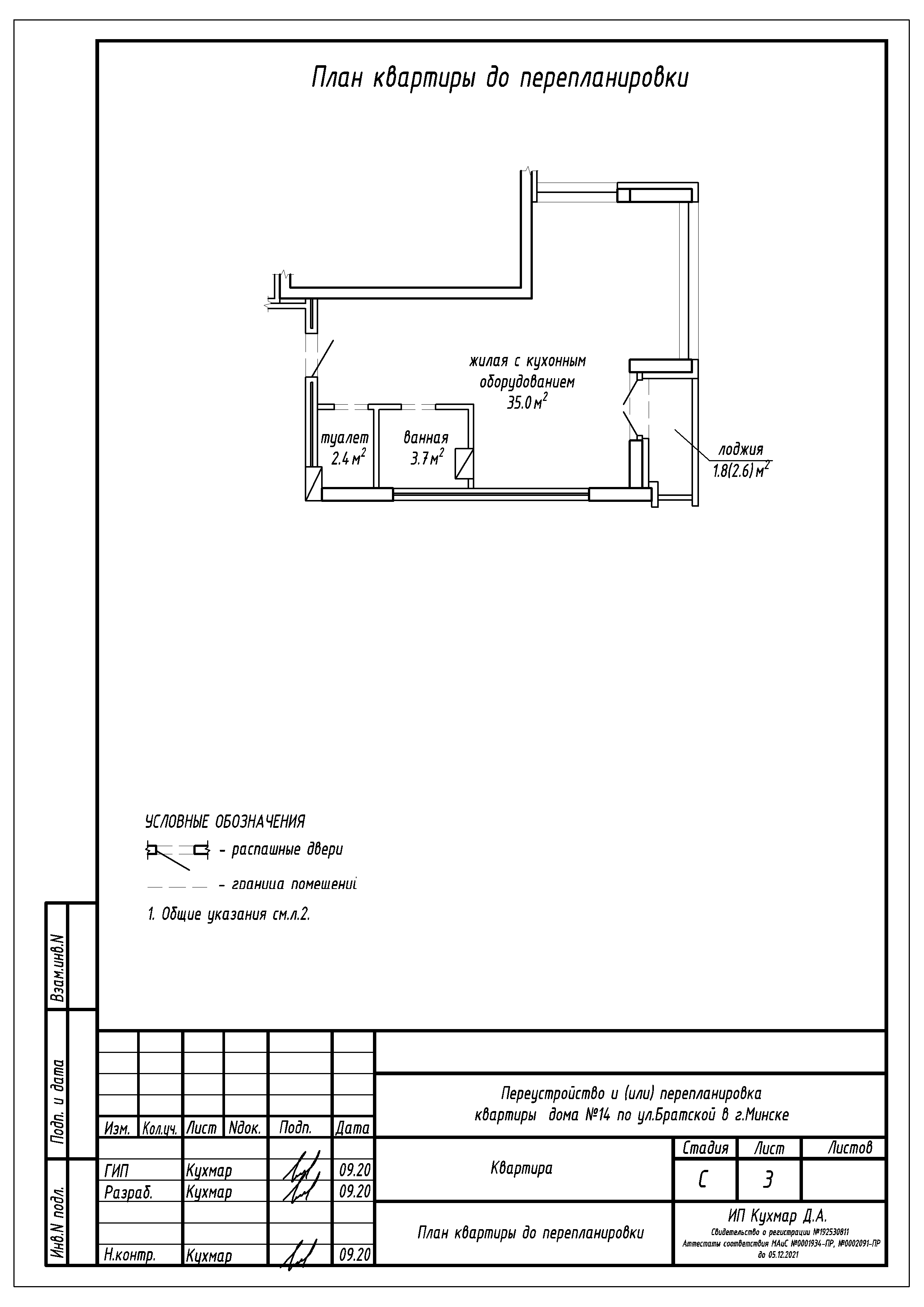
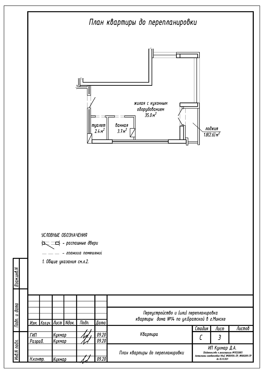
Перепланировка квартиры по ул. Братская, 14 в ЖК «Минск Мир»
Пожелания заказчика:
- Объединение туалета и ванной в единый санузел;
- Разделение общей жилой с кухонным оборудованием на жилую с кухонным оборудованием и жилую.
Нами были разработаны следующие разделы проектной документации для согласования в исполкоме:
- АС - архитектурно-строительные решения.
