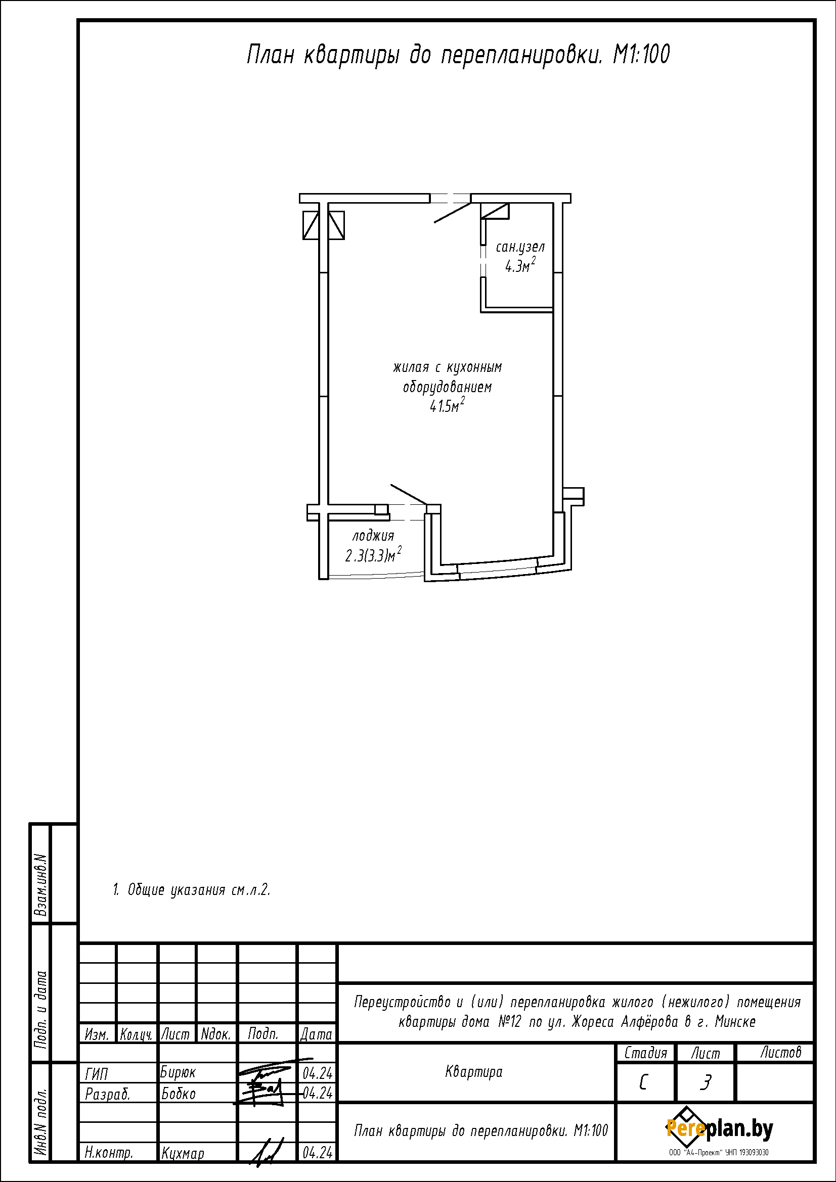
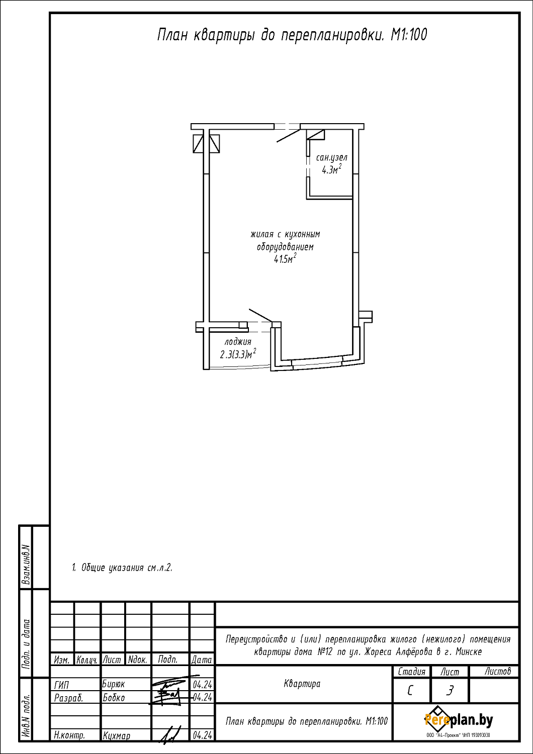
Перепланировка квартиры по ул. Жореса Алфёрова, 12 в ЖК «Минск Мир»
Пожелания заказчика:
- Демонтаж перегородок с дверными проемами между жилой с кухонным оборудованием и санузлом, с последующим устройством перегородок с дверными проемами и зашивок из ГКЛ на площади жилой с кухонным оборудованием и санузла, с целью устройства жилой с кухонным оборудованием, жилой, кладовой, туалета и ванной.
Нами были разработаны следующие разделы проектной документации для согласования в исполкоме:
- АС - архитектурно-строительные решения.
