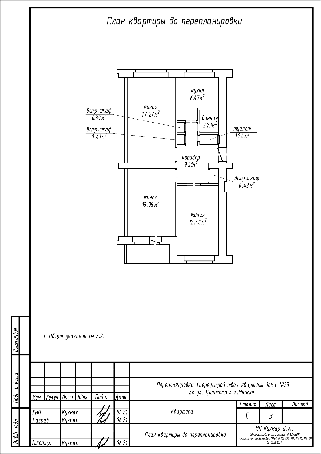
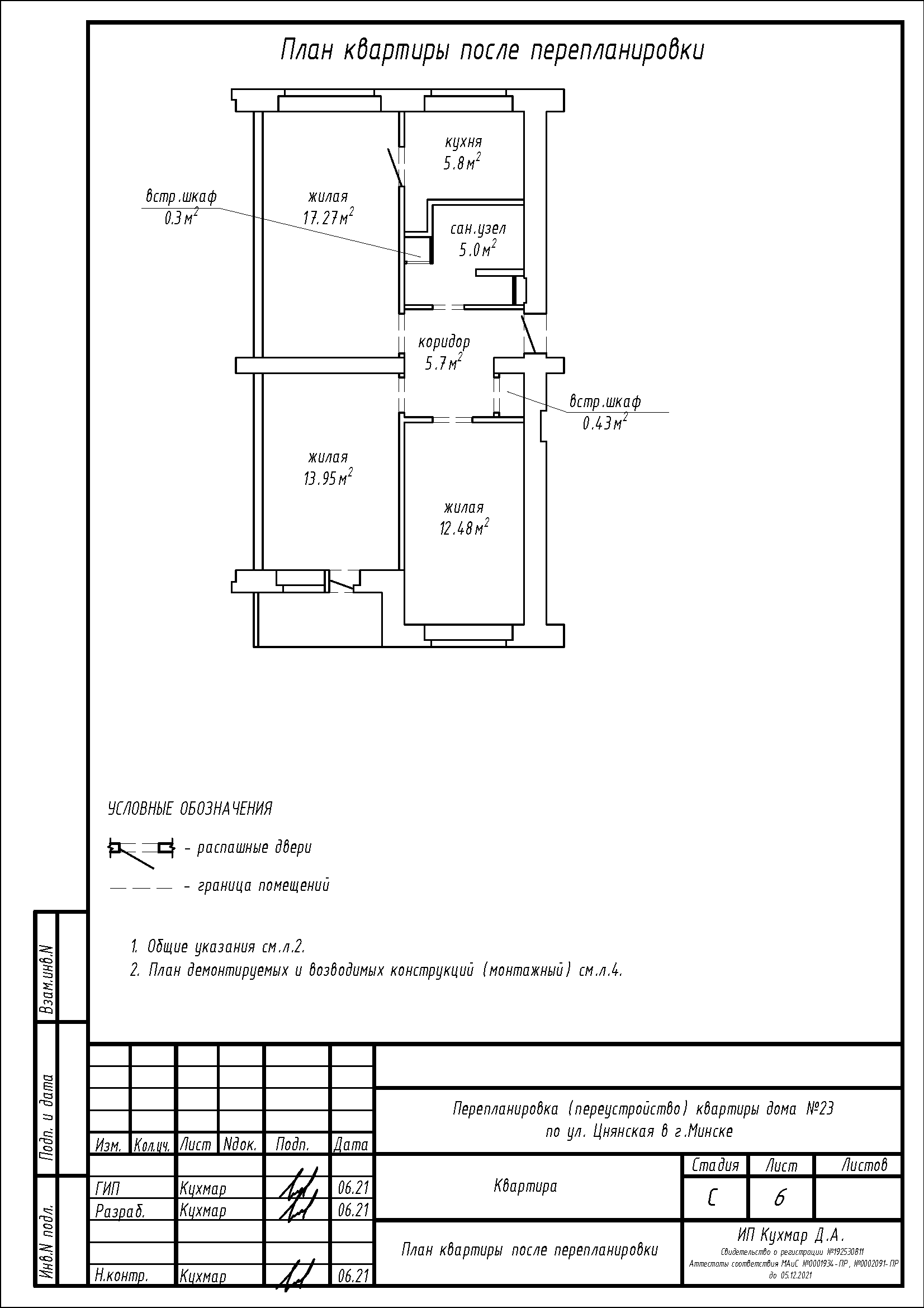
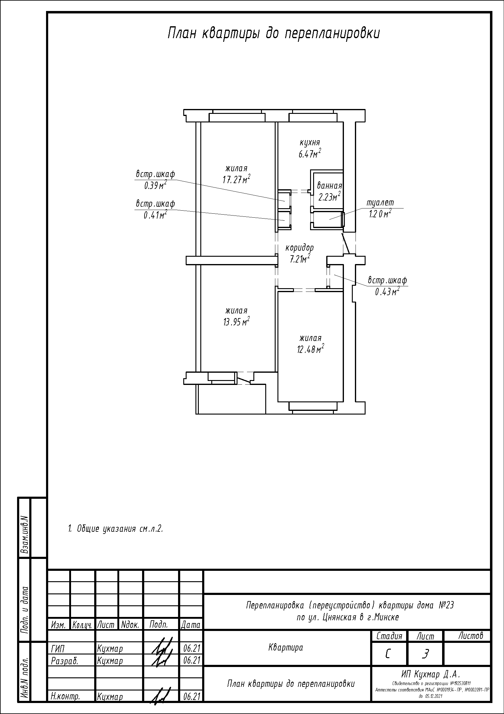
Перепланировка квартиры по ул. Цнянская, 23 в г.Минске
Пожелания заказчика:
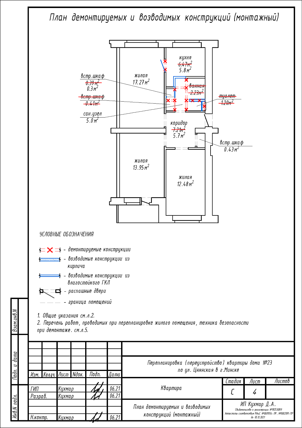
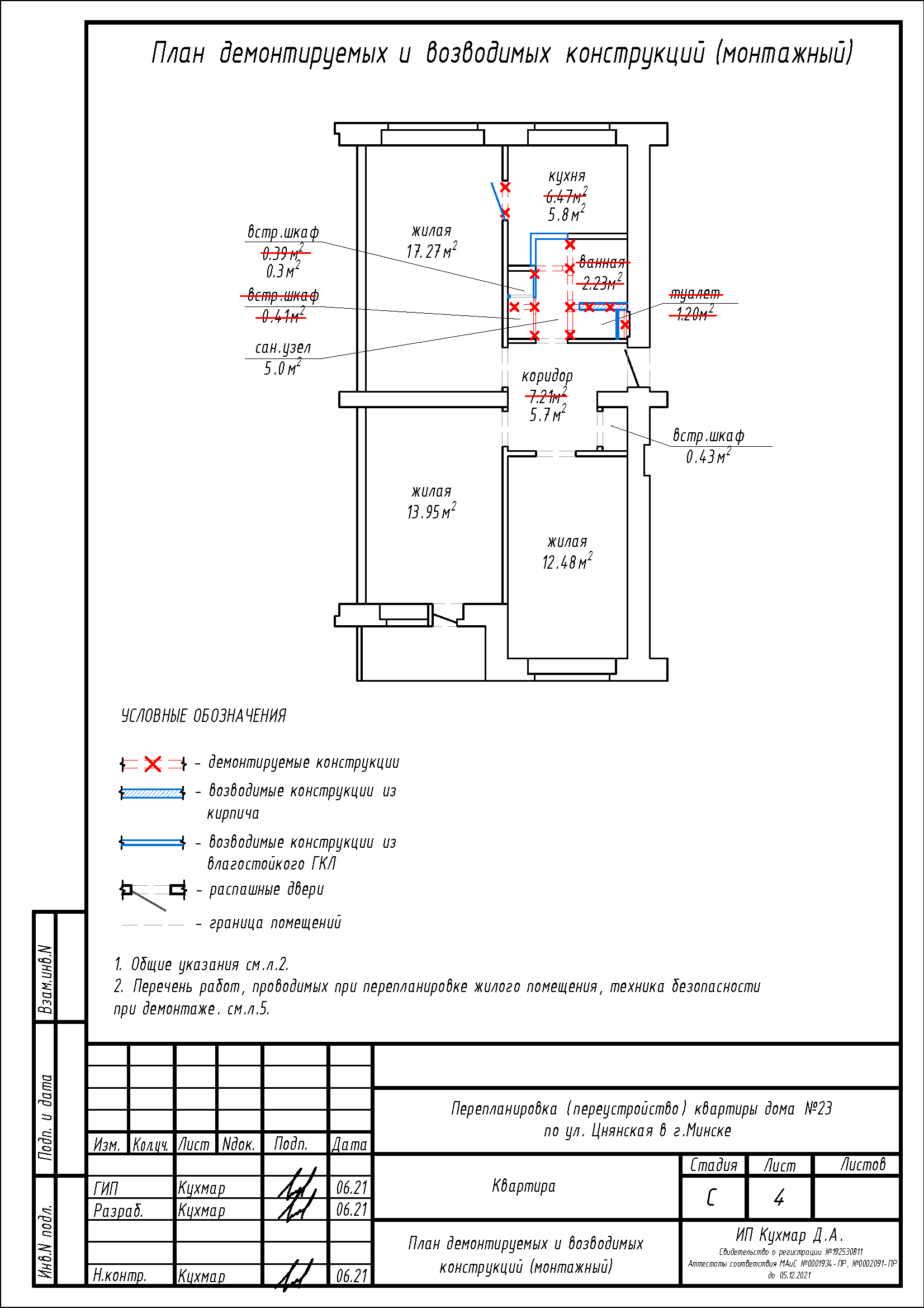
- Объединение ванной и туалета в единый санузел;
- Закладка дверного проёма между кухней и коридором, с целью устройства совмещенного санузла и встроенного шкафа;
- Демонтаж встроенных шкафов;
- Устройство дверного проема с дверным полотном в перегородке между жилой 17.27 м2 и кухней;
- Устройство перегородок на части площади кухни
Нами были разработаны следующие разделы проектной документации для согласования в исполкоме:
- АС - архитектурно-строительные решения.
