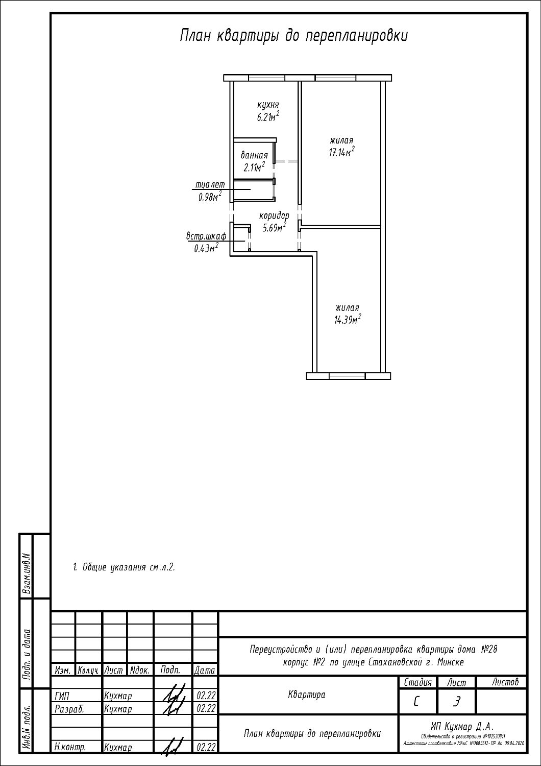
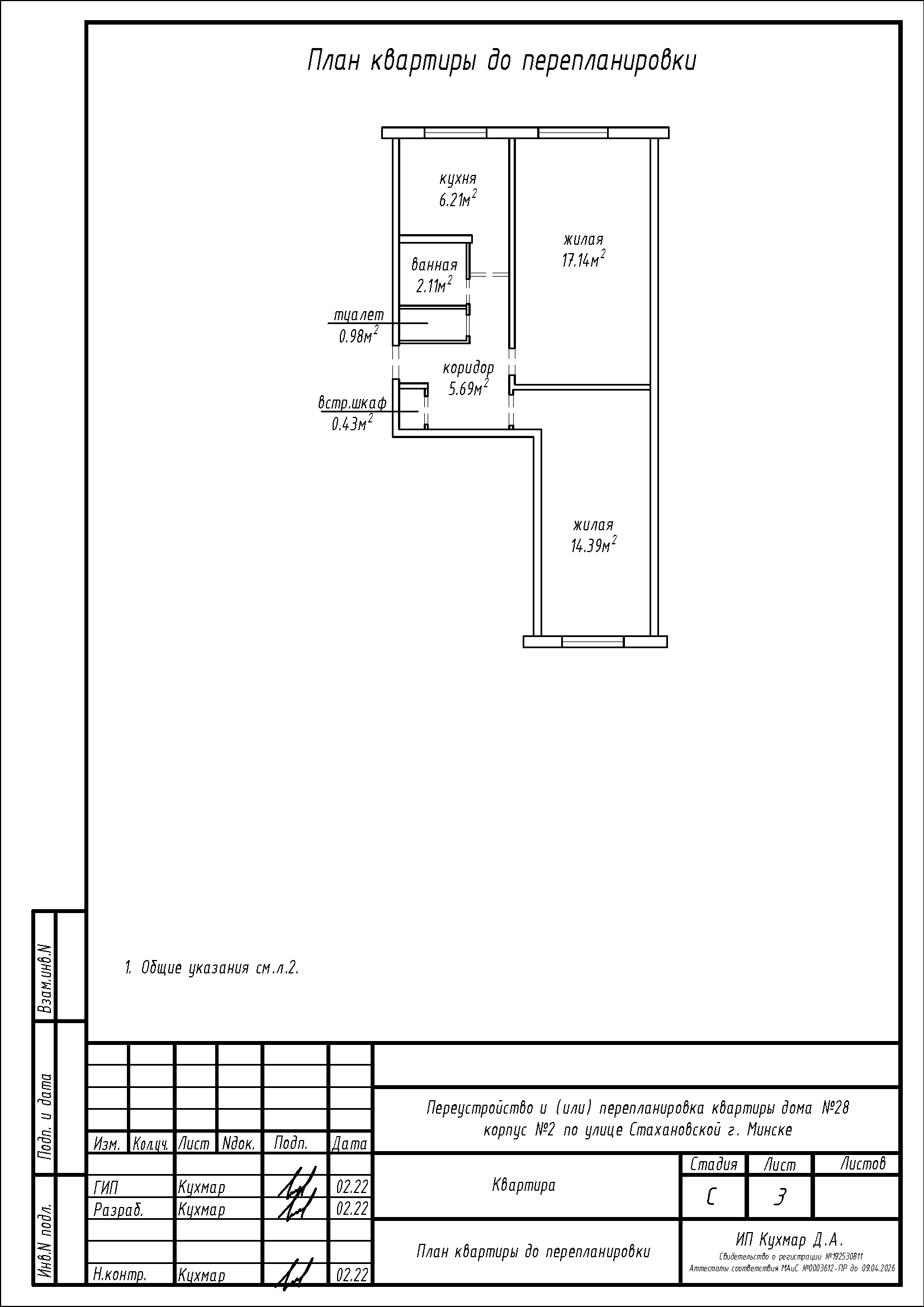
Перепланировка квартиры по ул. Стахановская 28/2 в г. Минске
Пожелания заказчика:
- Объединение ванной и туалета в единый санузел;
- Устройство зашивки из ГКЛ на площади санузла;
- Закладка дверного проёма в перегородке между туалетом и коридором.
Нами были разработаны следующие разделы проектной документации для согласования в исполкоме:
- АС - архитектурно-строительные решения.
