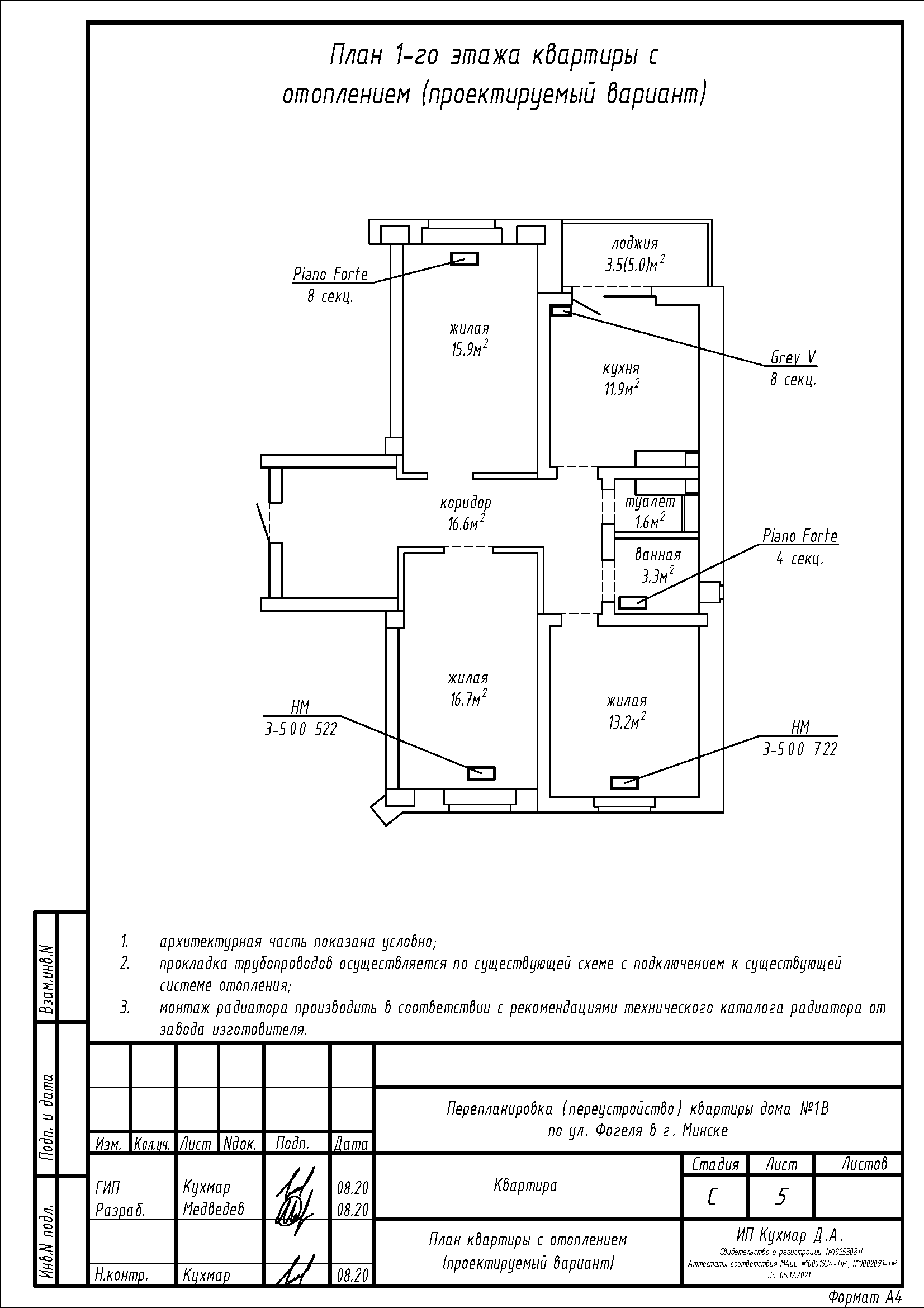
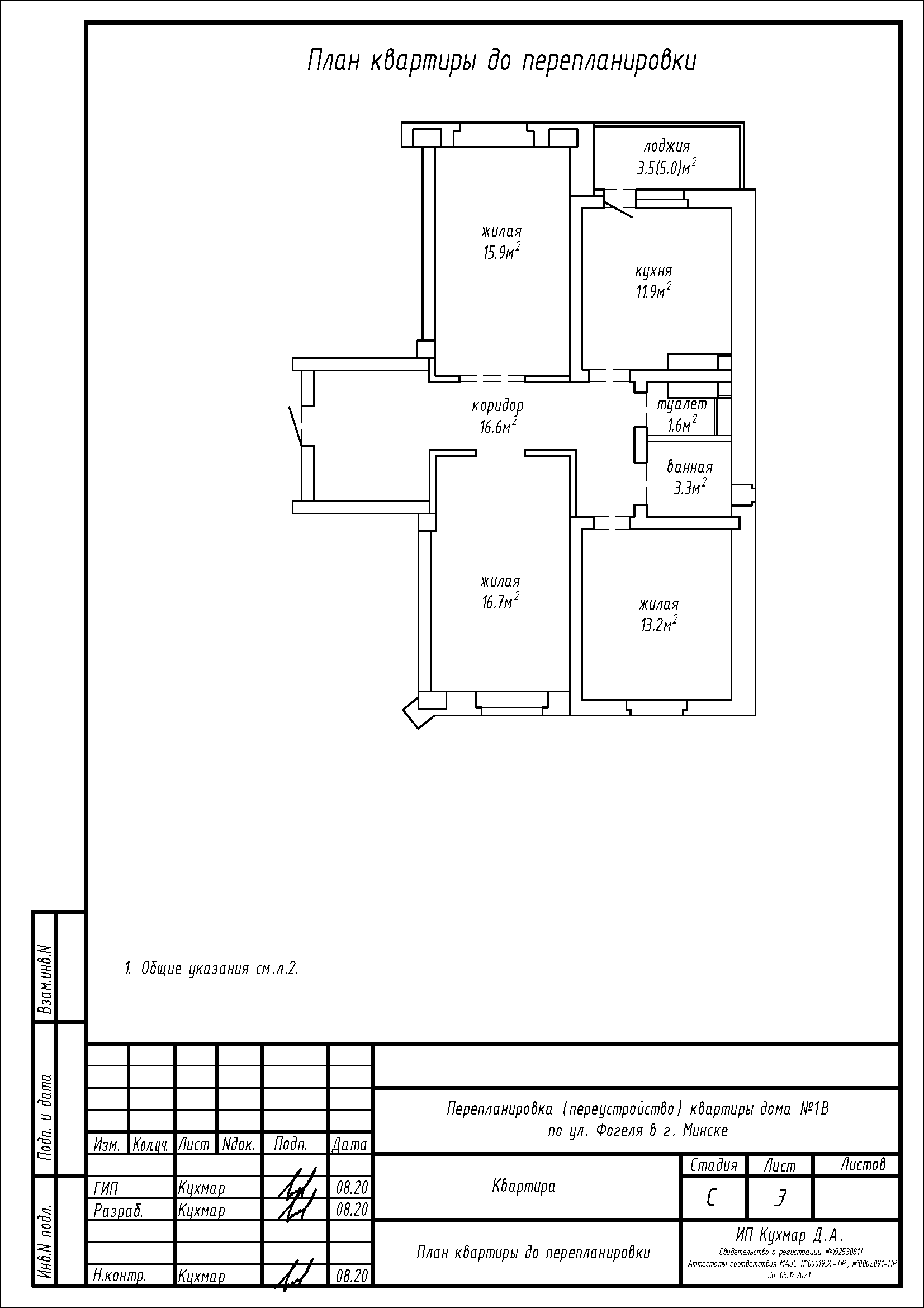
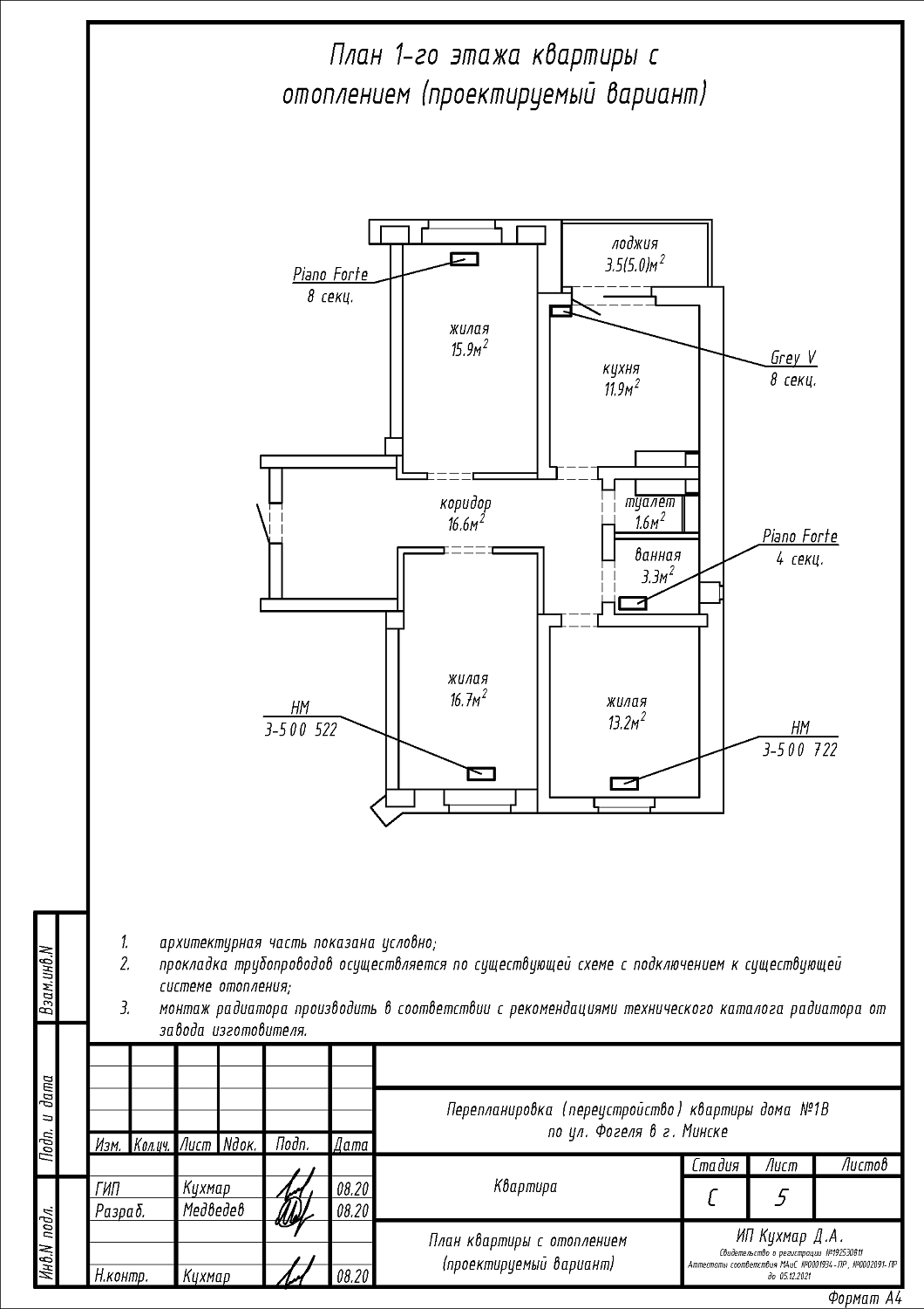
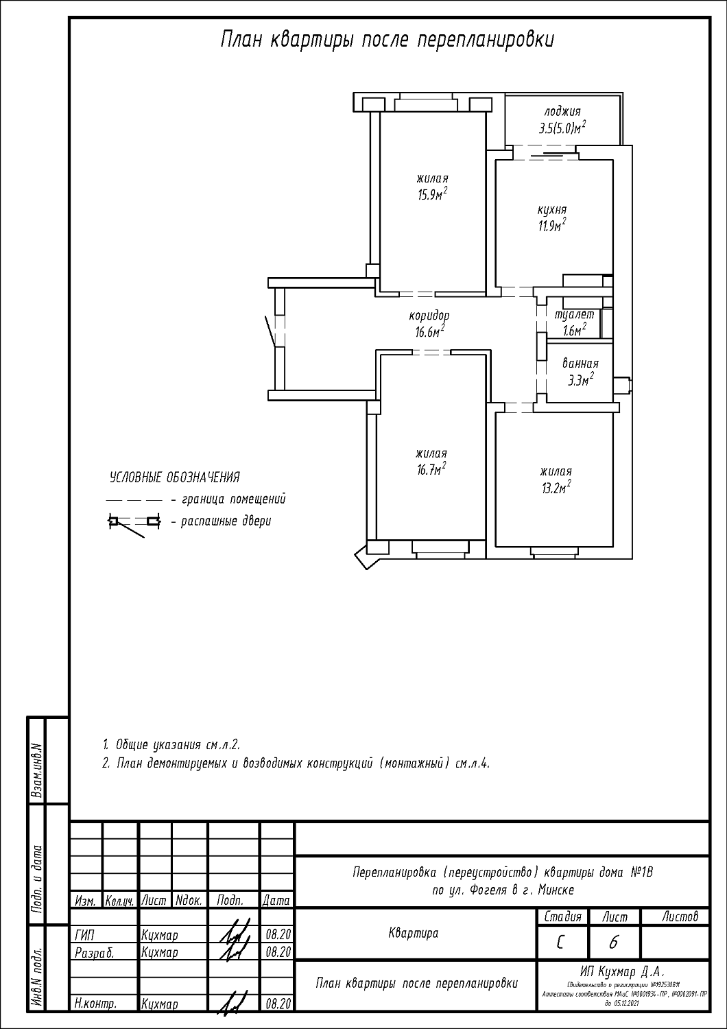
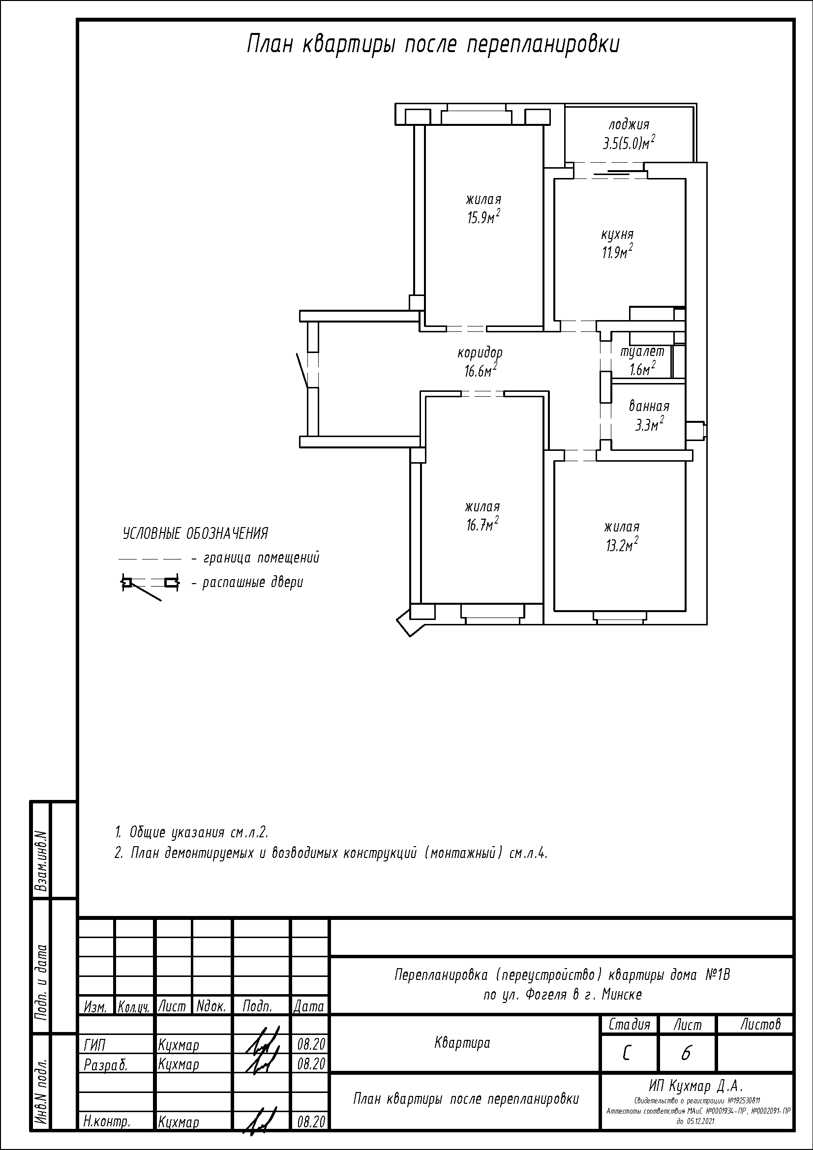
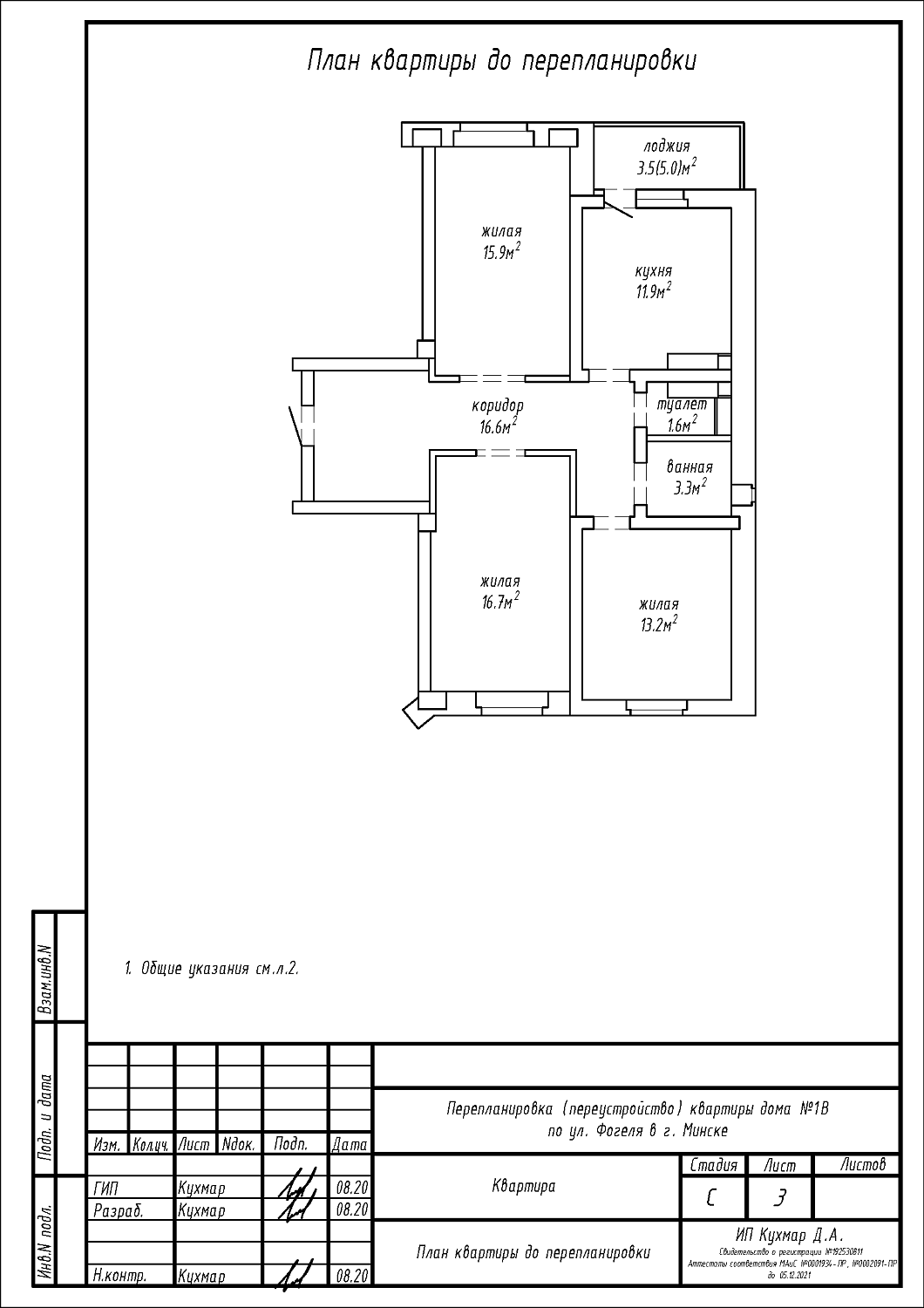
Перепланировка квартиры по ул. Фогеля 1В в г.Минске
Пожелания заказчика:
- Демонтаж подоконной части с последующим остеклением;
- Изменение ширины дверного проёма;
- Перенос и замена отопительных приборов.
Нами были разработаны следующие разделы проектной документации для согласования в исполкоме:
- АС - архитектурно-строительные решения;
- ОВ - отопление и вентиляция.
