Перепланировка квартиры по ул. Сурганова, 49 в г. Минске
Пожелания заказчика:
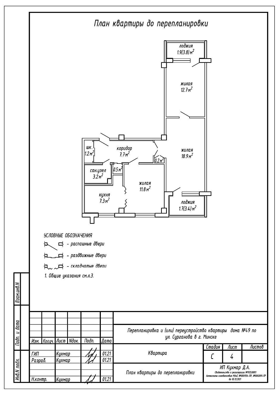
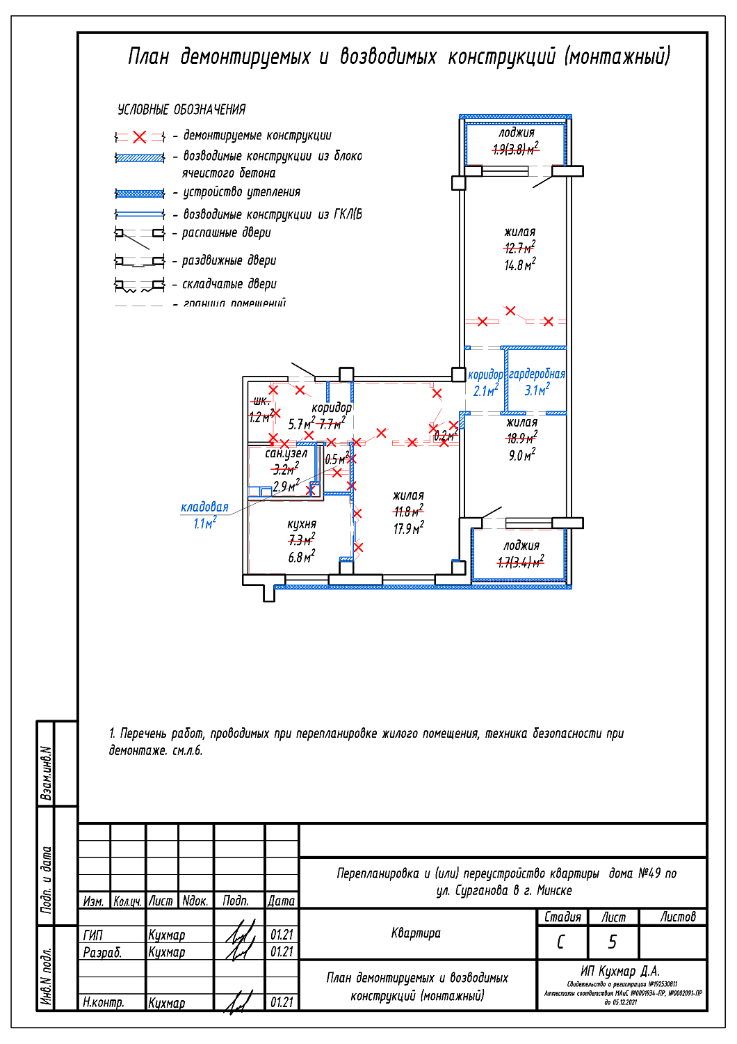
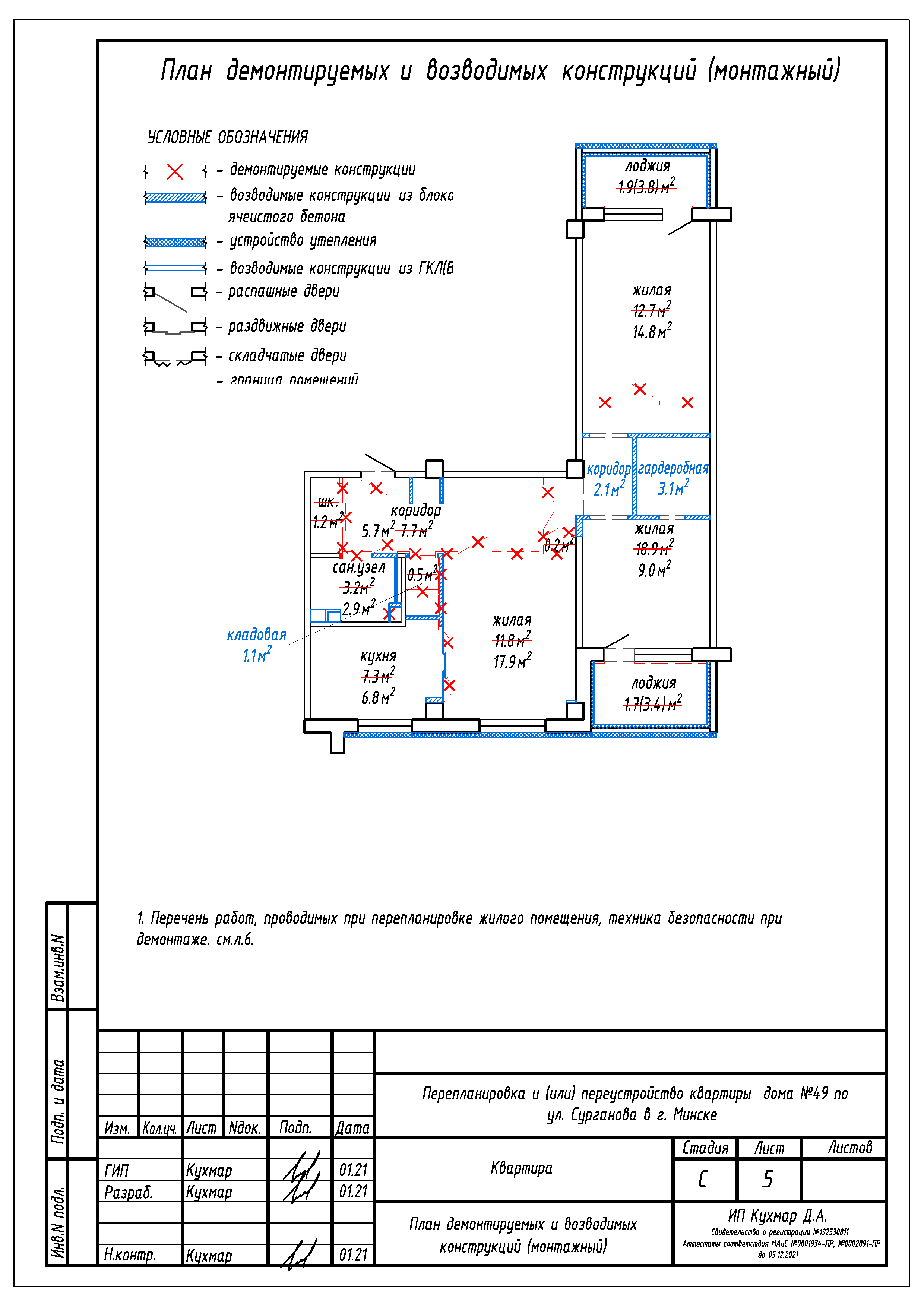
- Демонтаж встроенных шкафов;
- Смещение дверного проёма в перегородке между коридором и санузлом;
- Демонтаж зашивок из коммуникаций в санузле с последующим устройством новой; установка зашивок на площади санузла;
- Демонтаж перегородки между кухней и жилой с последующим устройством новых перегородок с дверным проёмом и установкой дверного блока;
- Установка перегородок на площади коридора;
- Устройство кладовой на площади встроенного шкафа и части площади кухни;
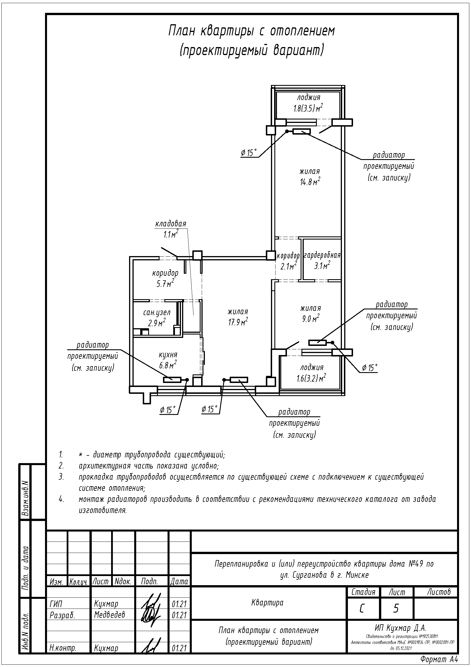
- Утепление лоджии;
- Устройство наружного утепления квартиры;
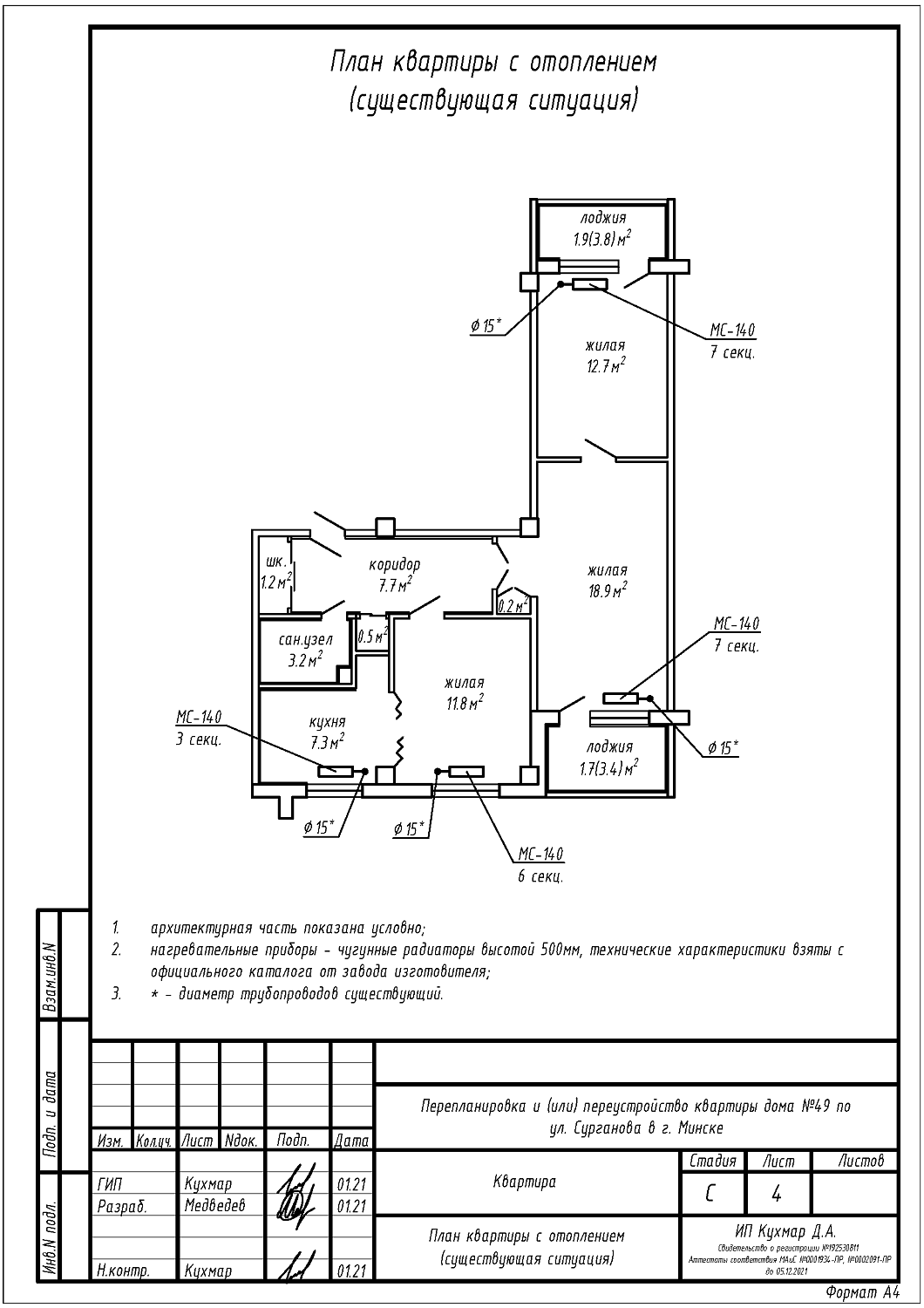
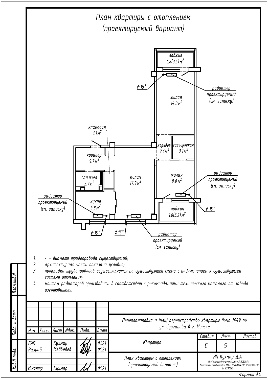
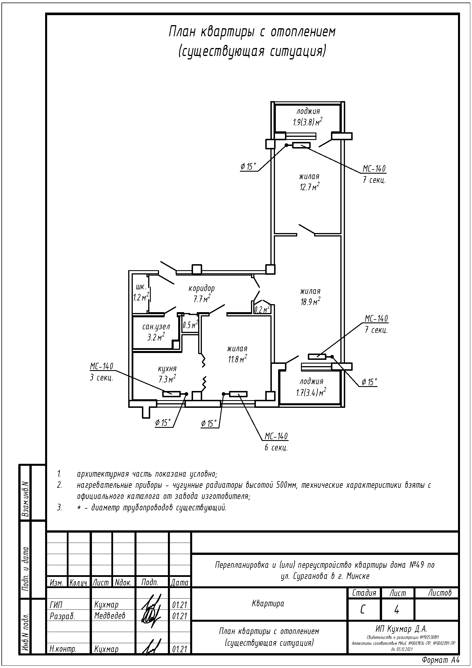
- Замена отопительных приборов.
Нами были разработаны следующие разделы проектной документации для согласования в исполкоме:
- АС - архитектурно-строительные решения;
- ОВ - отопление и вентиляция.
