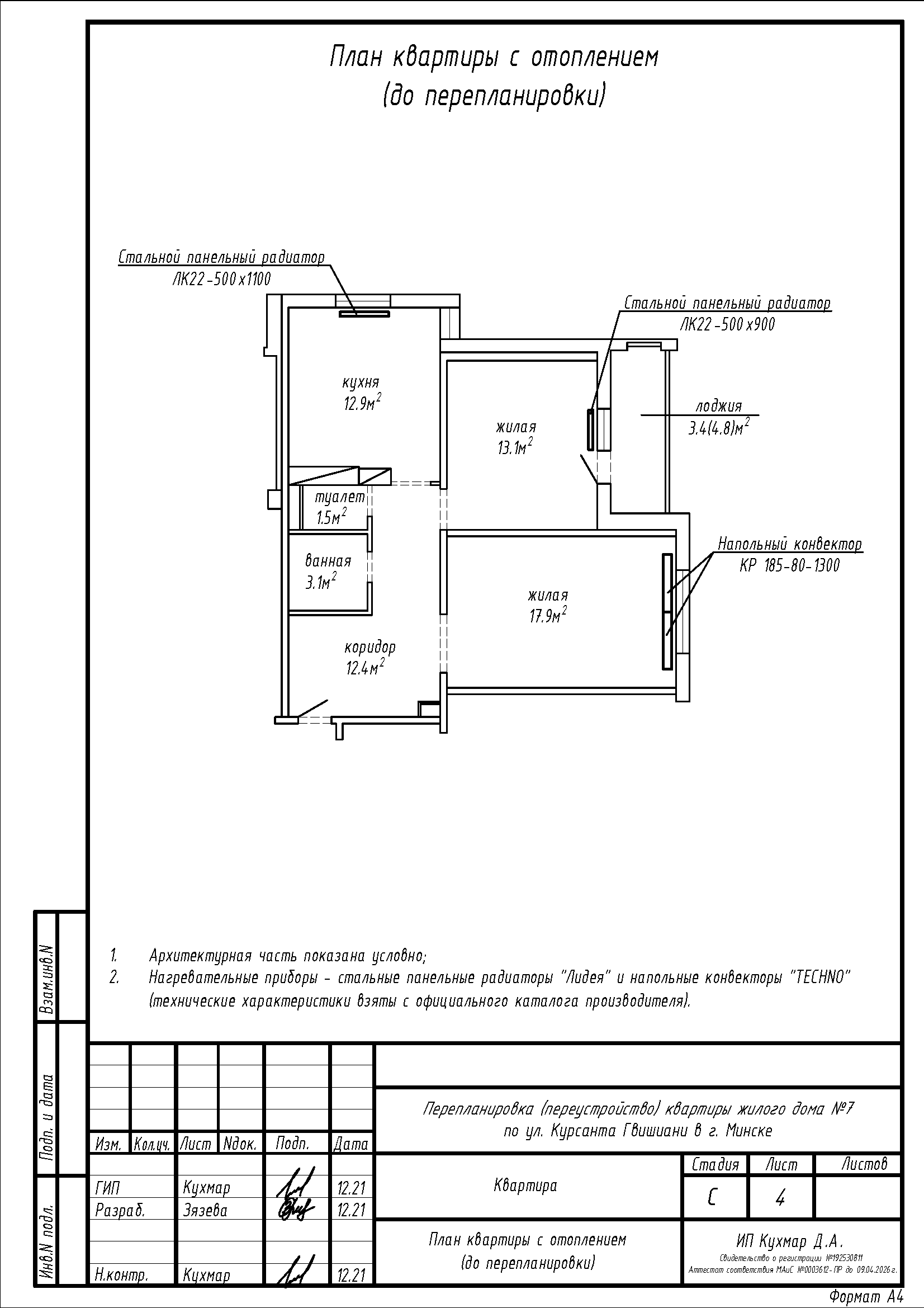
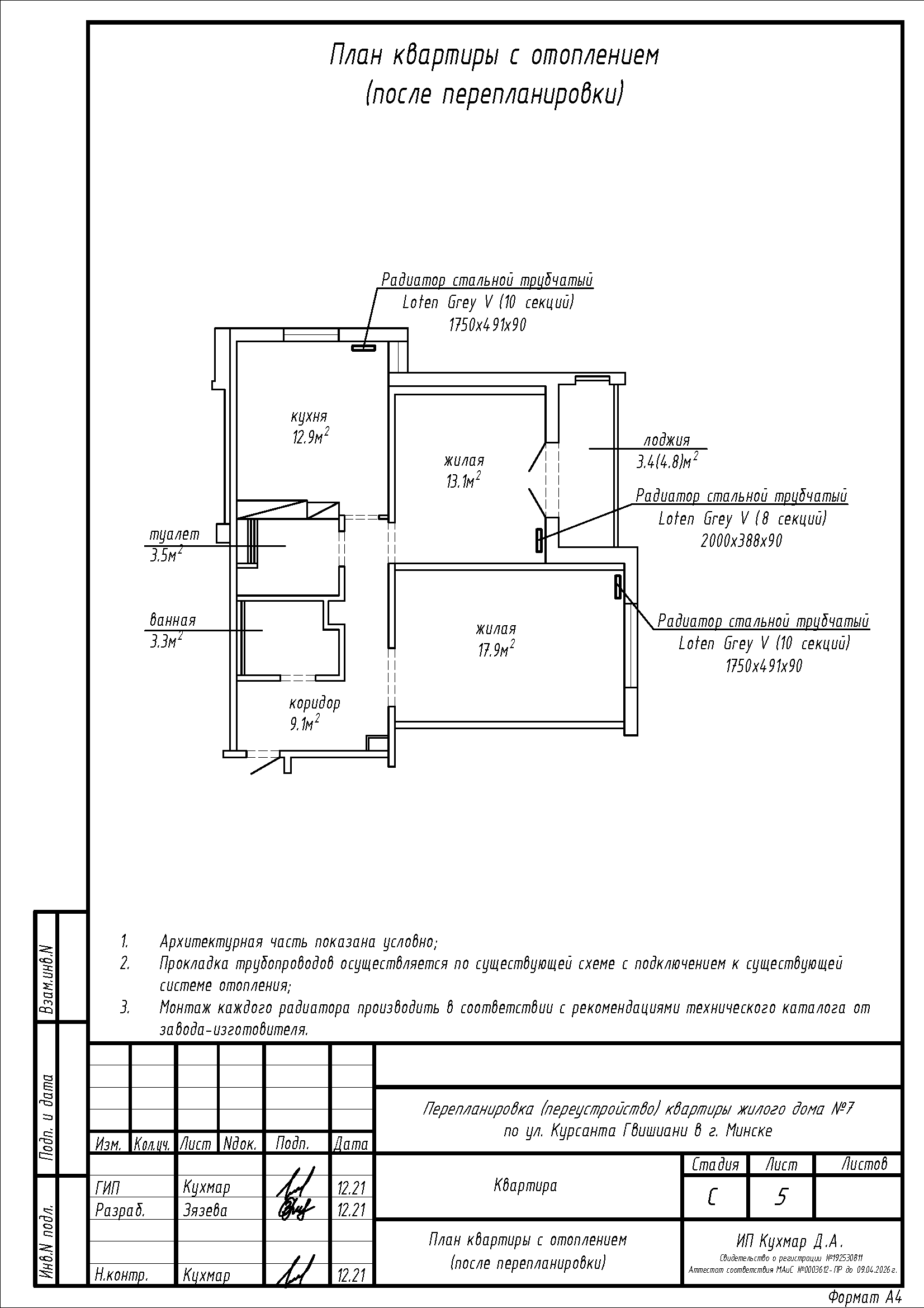
Перепланировка квартиры по ул. Курсанта Гвишиани, в ЖК «Мармелад»
Пожелания заказчика:
- Увеличение площади ванной и туалета за счёт площади коридора, но не более чем на 25%;
- Смена направления открывания входной двери;
- Устройство зашивок из ГКЛ на площади туалета и ванной;
- Демонтаж подоконной части в стене между лоджией с последующим устройством дверного блока;
- Перенос и замена нагревательных приборов.
Нами были разработаны следующие разделы проектной документации для согласования в исполкоме:
- АС - архитектурно-строительные решения;
- ОВ - отопление и вентиляция.
