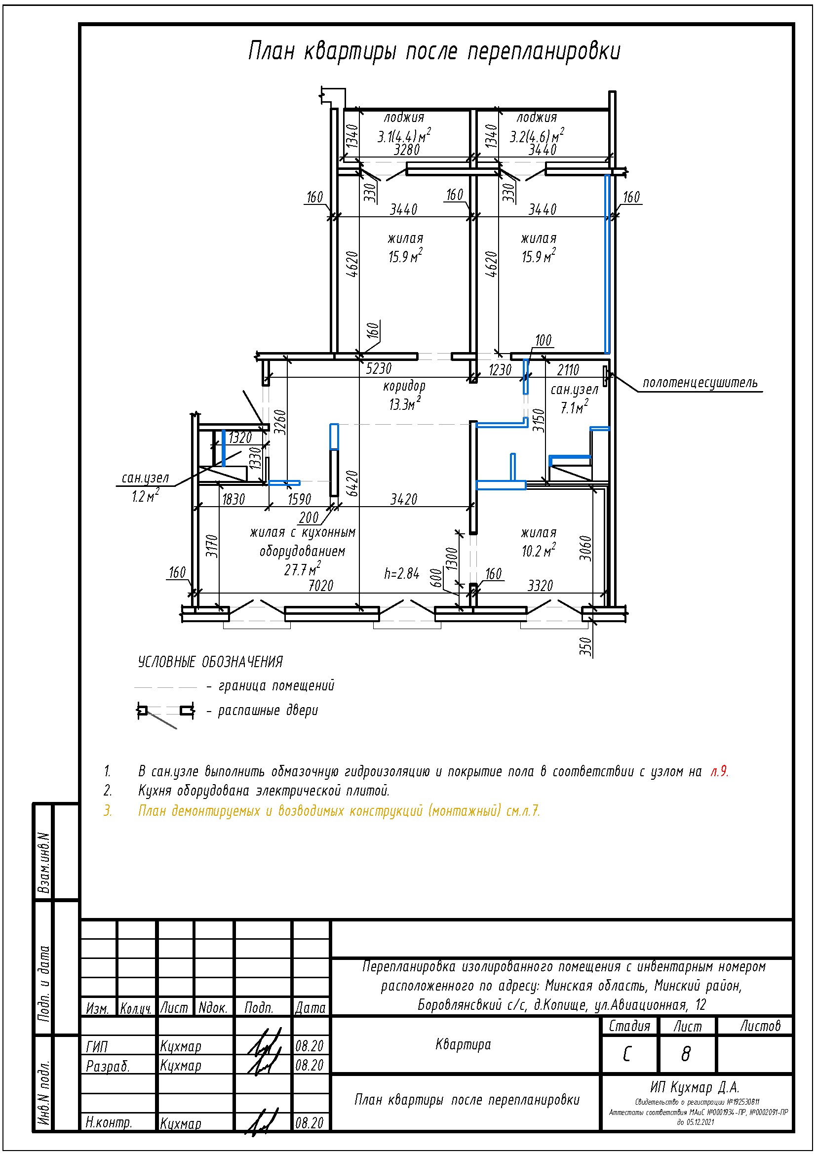
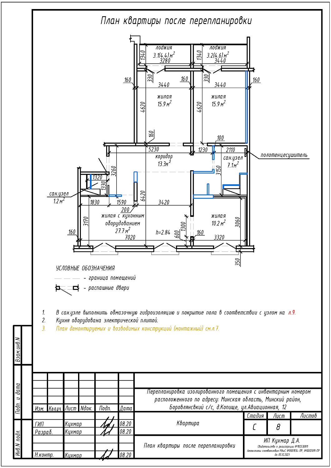
Перепланировка квартиры по ул. Авиационная, 12 в ЖК «Новая Боровая»
Пожелания заказчика:
- Объединение существующих санузлов в единый санузел;
- Устройство проёма в несущей стене между жилой и жилой;
- Изменение габаритов коридора;
- Устройство перегородок на площади жилого.
Нами были разработаны следующие разделы проектной документации для согласования в исполкоме:
- АС - архитектурно-строительные решения.
