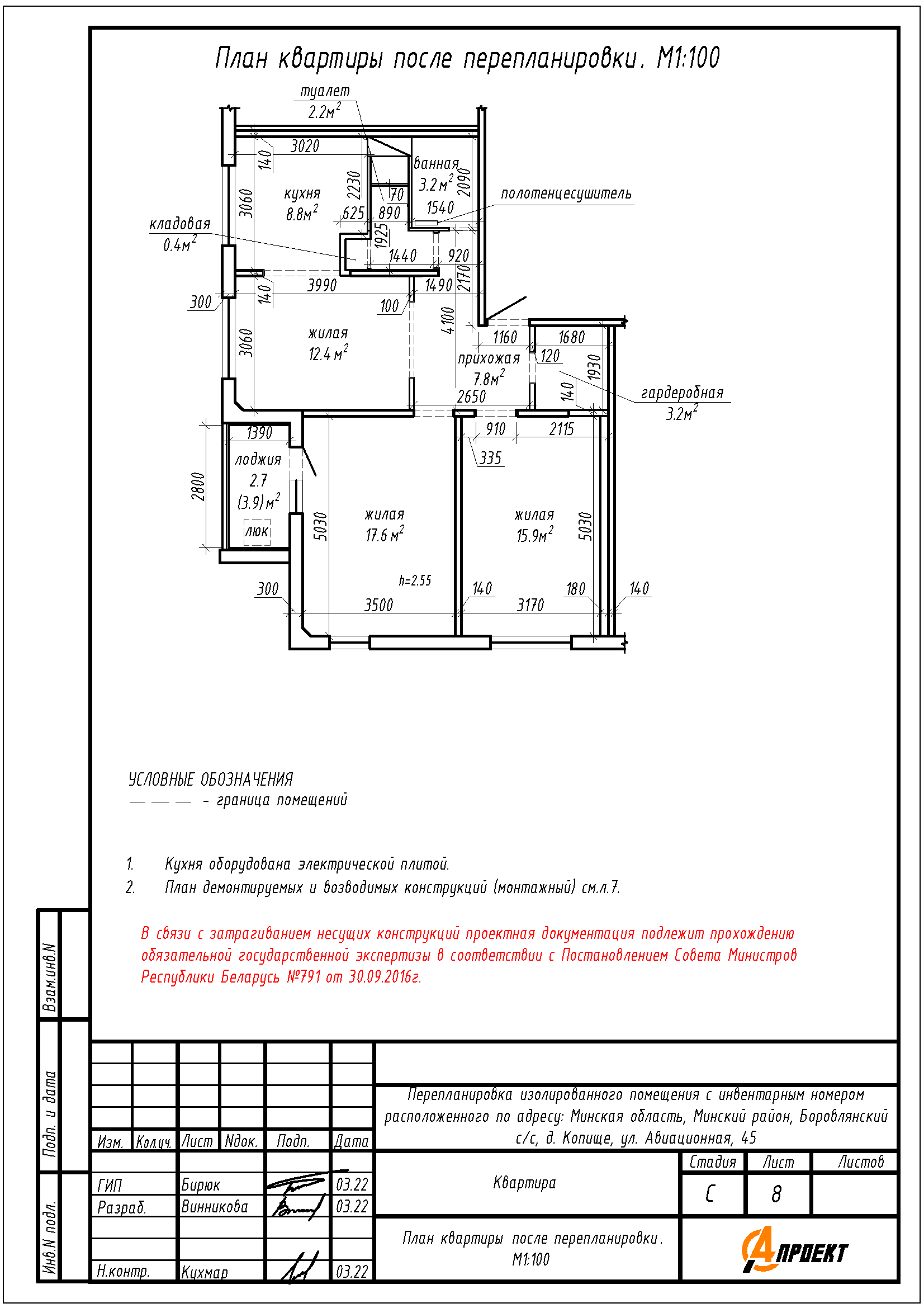
Перепланировка квартиры по ул. Авиационная, 45 в ЖК «Новая Боровая»
Пожелания заказчика:
- Устройство дверного проёма в несущей стене между жилой и прихожей;
- Закладка дверного проёма между прихожей и жилой, с целью устройства гардеробной на части площади прихожей;
- Устройство перегородки на площади коридора с последующим образованием подсобного помещения;
- Изменение площади туалета.
Нами были разработаны следующие разделы проектной документации для согласования в исполкоме:
- АС - архитектурно-строительные решения.
