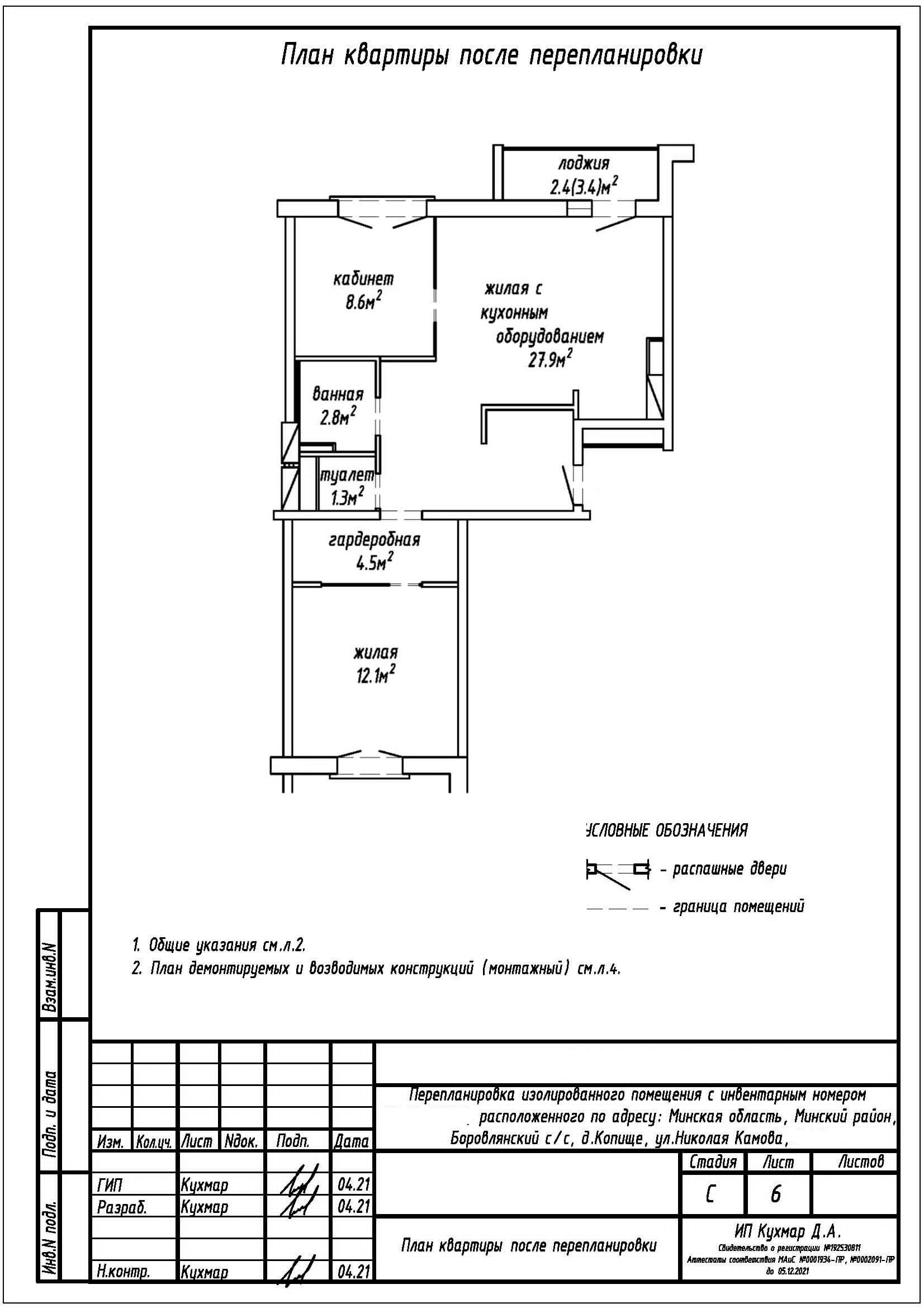
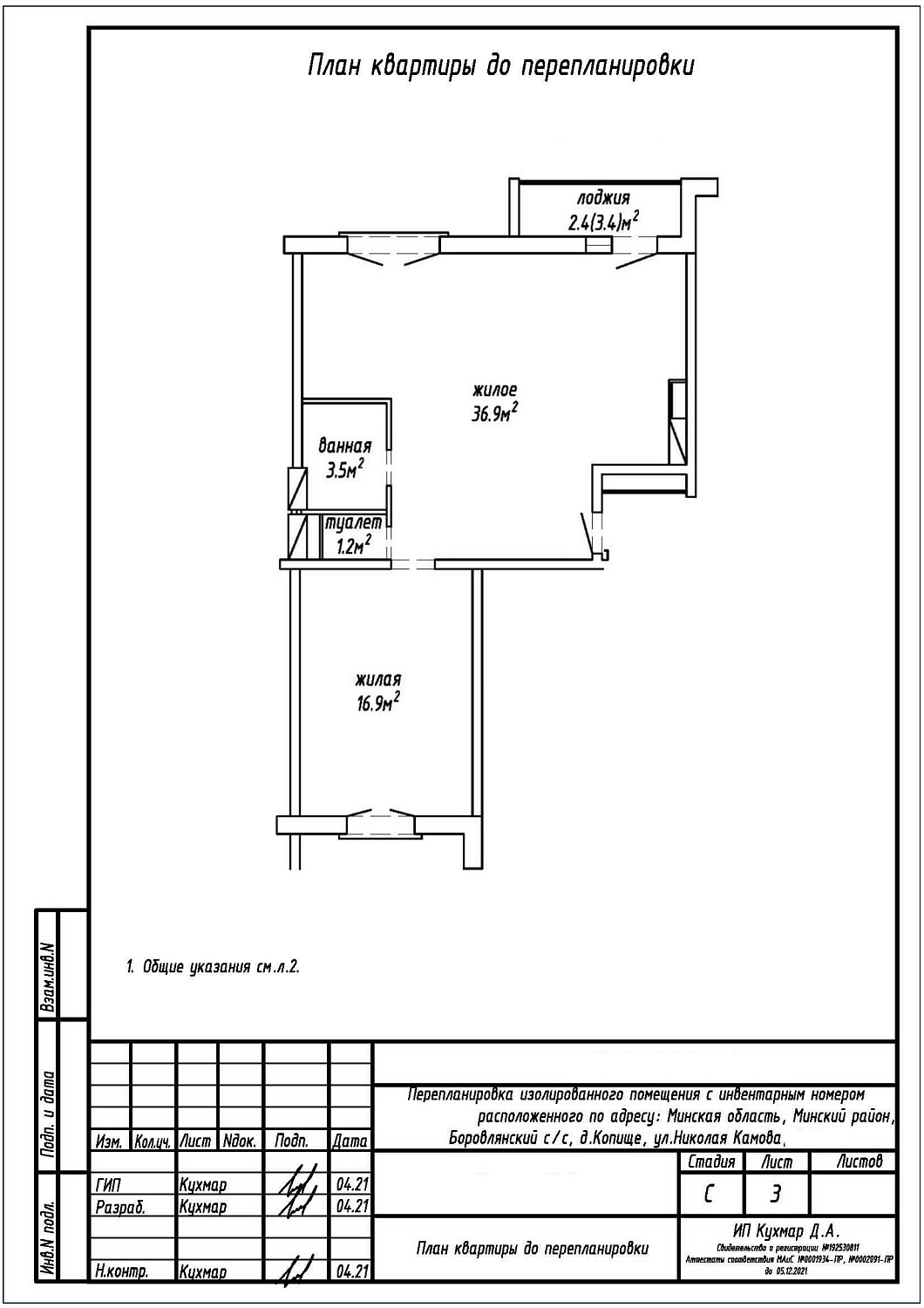
Перепланировка квартиры по ул. Камова, 2 в ЖК «Новая Боровая»
Пожелания заказчика:
- Демонтаж части перегородки между ванной и туалетом с последующим возведением новой перегородки;
- Демонтаж части перегородки дверного проема ванной и туалетом с последующим возведением новых перегородок (смещение дверных проемов);
- Устройство новых перегородок на площади жилого;
- Устройство перегородки на площади жилой;
- Перенос и замена отопительных приборов.
Нами были разработаны следующие разделы проектной документации для согласования в исполкоме:
- АС - архитектурно-строительные решения;
- ОВ - отопление и вентиляция.
