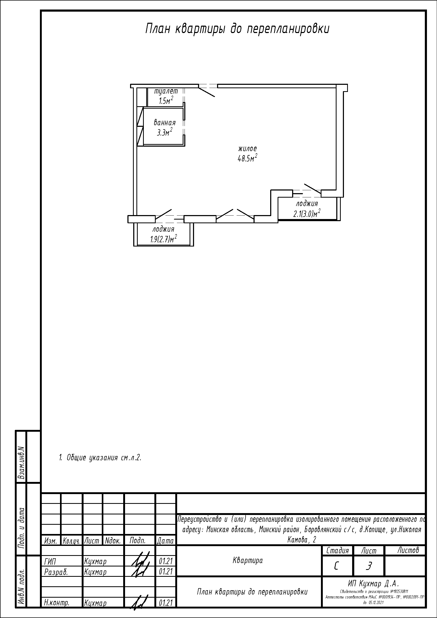
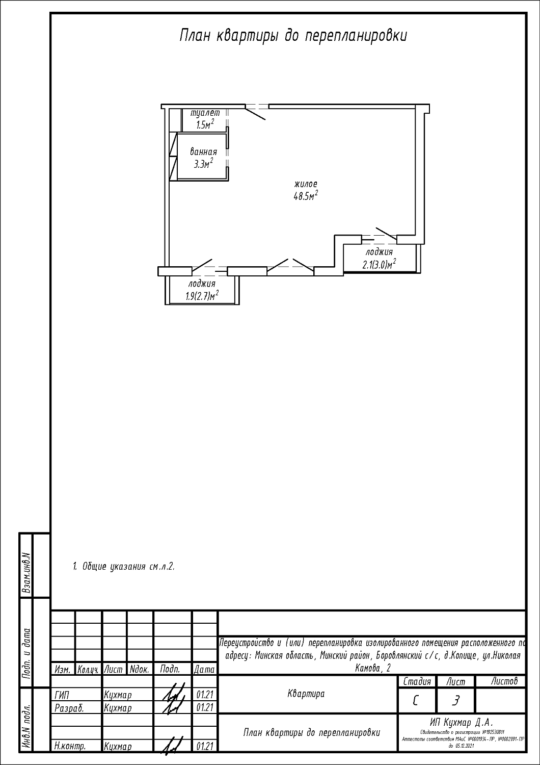
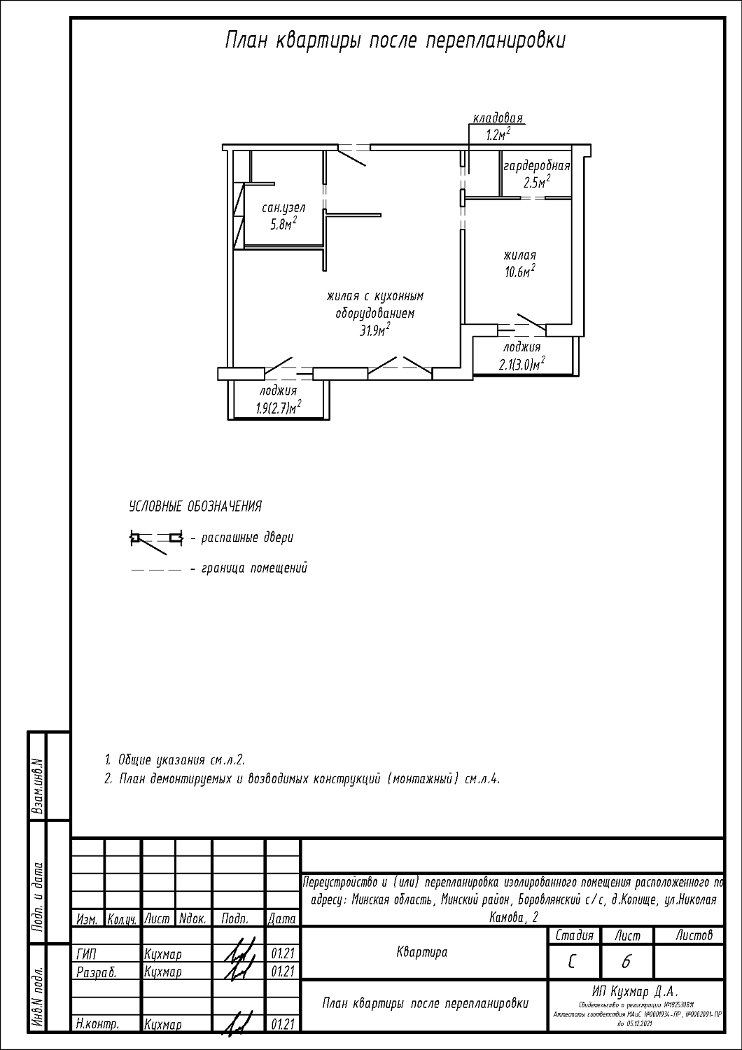
Перепланировка квартиры по ул. Камова, 2 в ЖК «Новая Боровая»
Пожелания заказчика:
- Разделение общего помещения «жилая с кухонным оборудованием» на отдельную жилую, жилую с кухонным оборудованием, гардеробную, кладовую;
- Объединение ванной и туалета в санузел;
- Увеличение санузла за счёт жилой с кухонным оборудованием.
Нами были разработаны следующие разделы проектной документации для согласования в исполкоме:
- АС - архитектурно-строительные решения.
