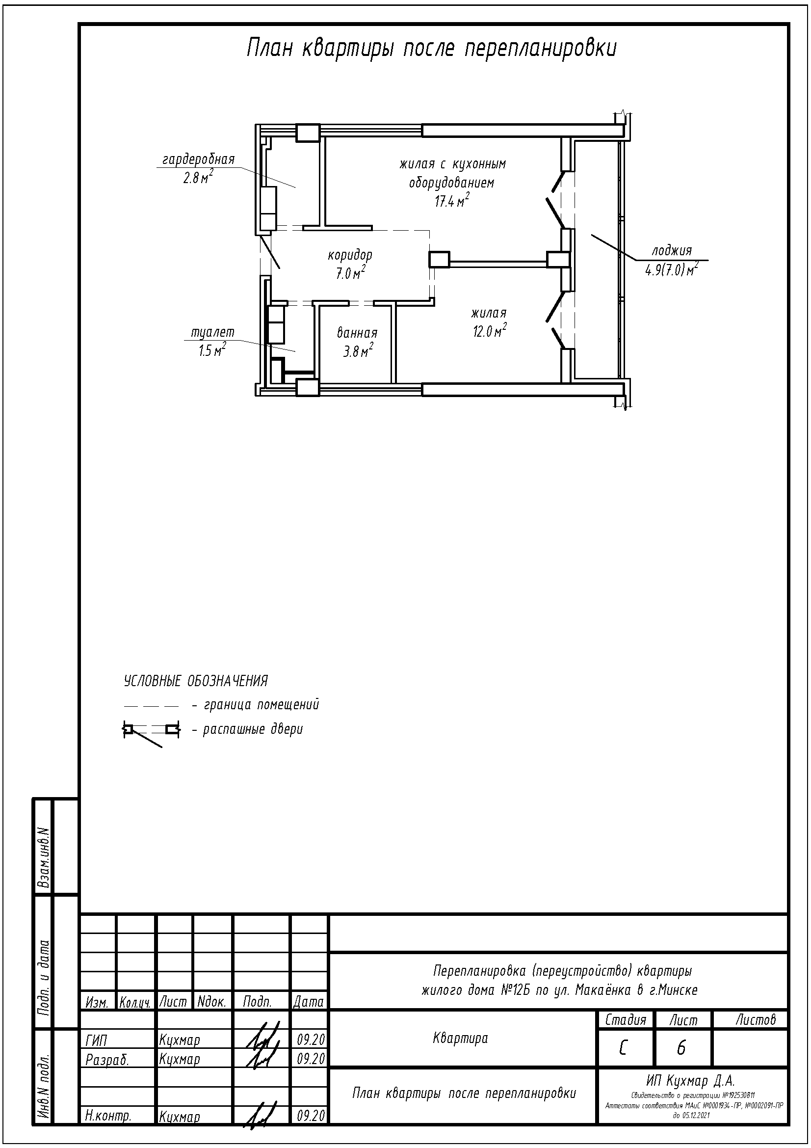
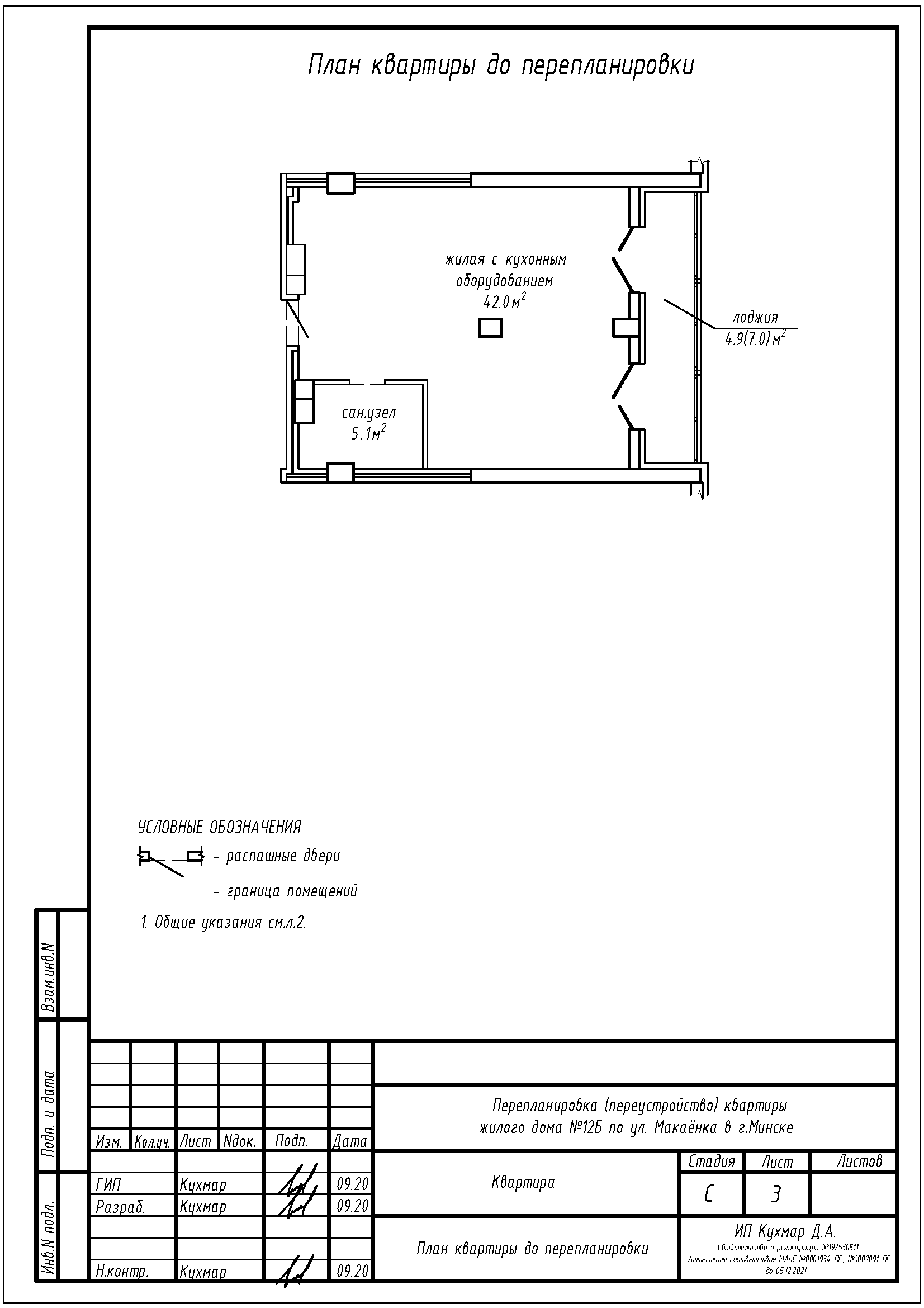
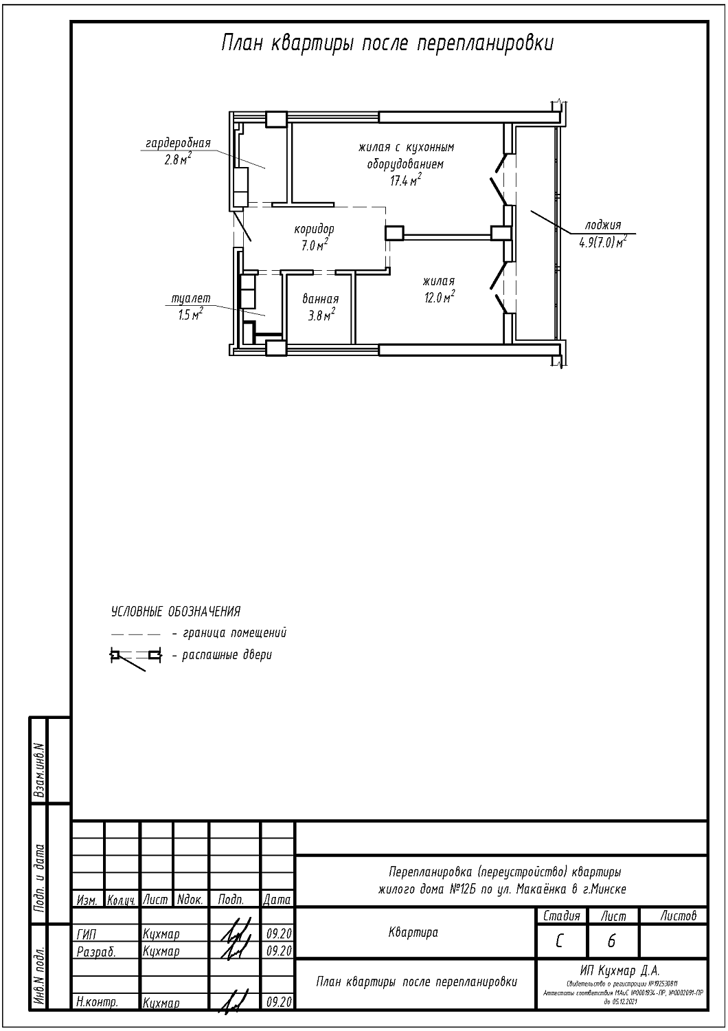
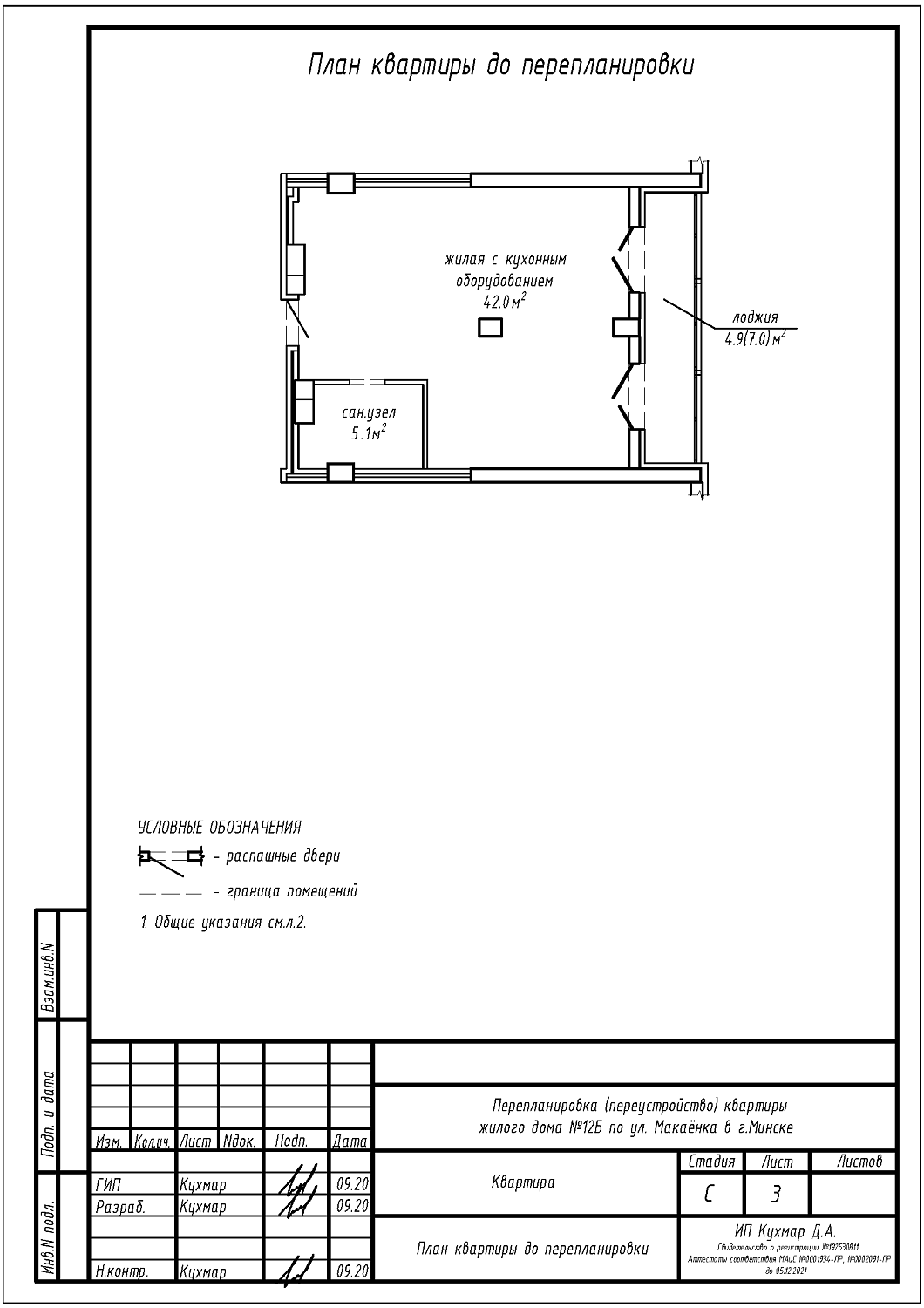
Перепланировка квартиры по ул. Макаёнка, 12Б в ЖК «Vogue»
Пожелания заказчика:
- Разделение жилой с кухонным оборудованием на жилую с кухонным оборудованием, жилую, коридор, гардеробную;
- Разделение санузла на отдельный туалет и санузел;
- Устройство зашивки коммуникаций и зашивки инсталляции в санузле.
Нами были разработаны следующие разделы проектной документации для согласования в исполкоме:
- АС - архитектурно-строительные решения.
