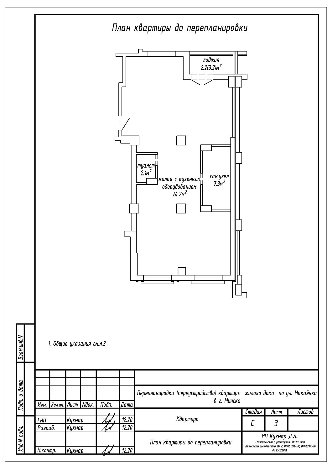
Перепланировка квартиры по ул. Макаёнка, 12А в ЖК «Vogue»
Пожелания заказчика:
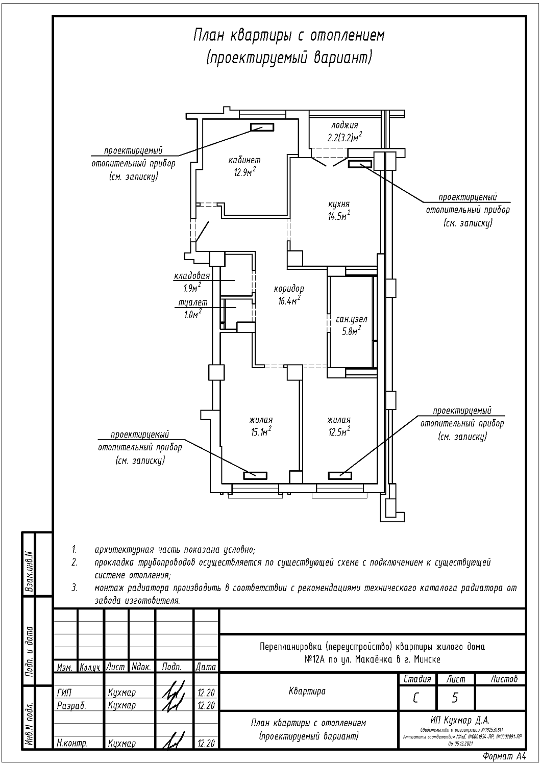
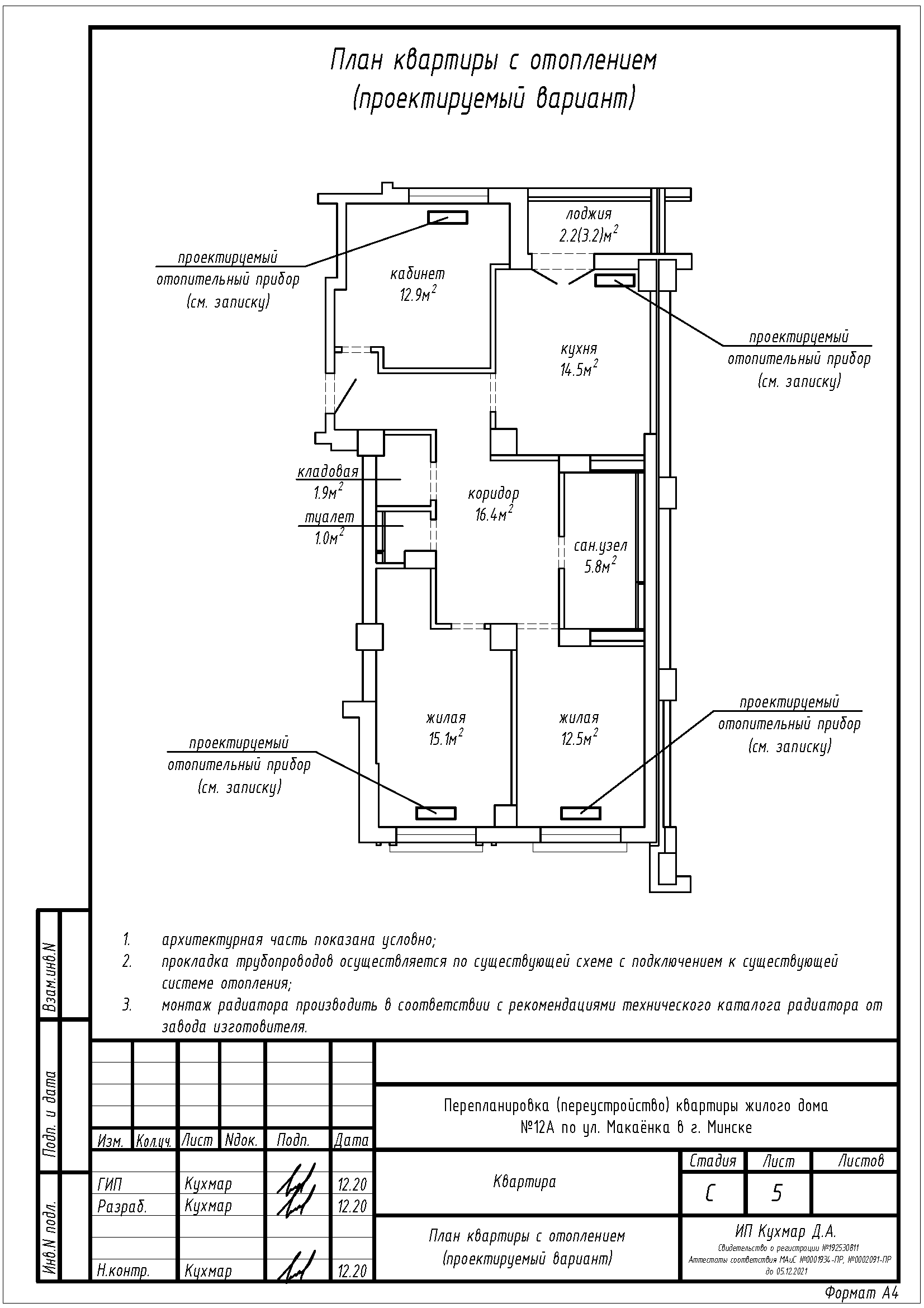
- Разделение общего помещения «жилая с кухонным оборудованием» на 2 жилые, кухню, кабинет, кладовую и коридор;
- Уменьшение площади туалета;
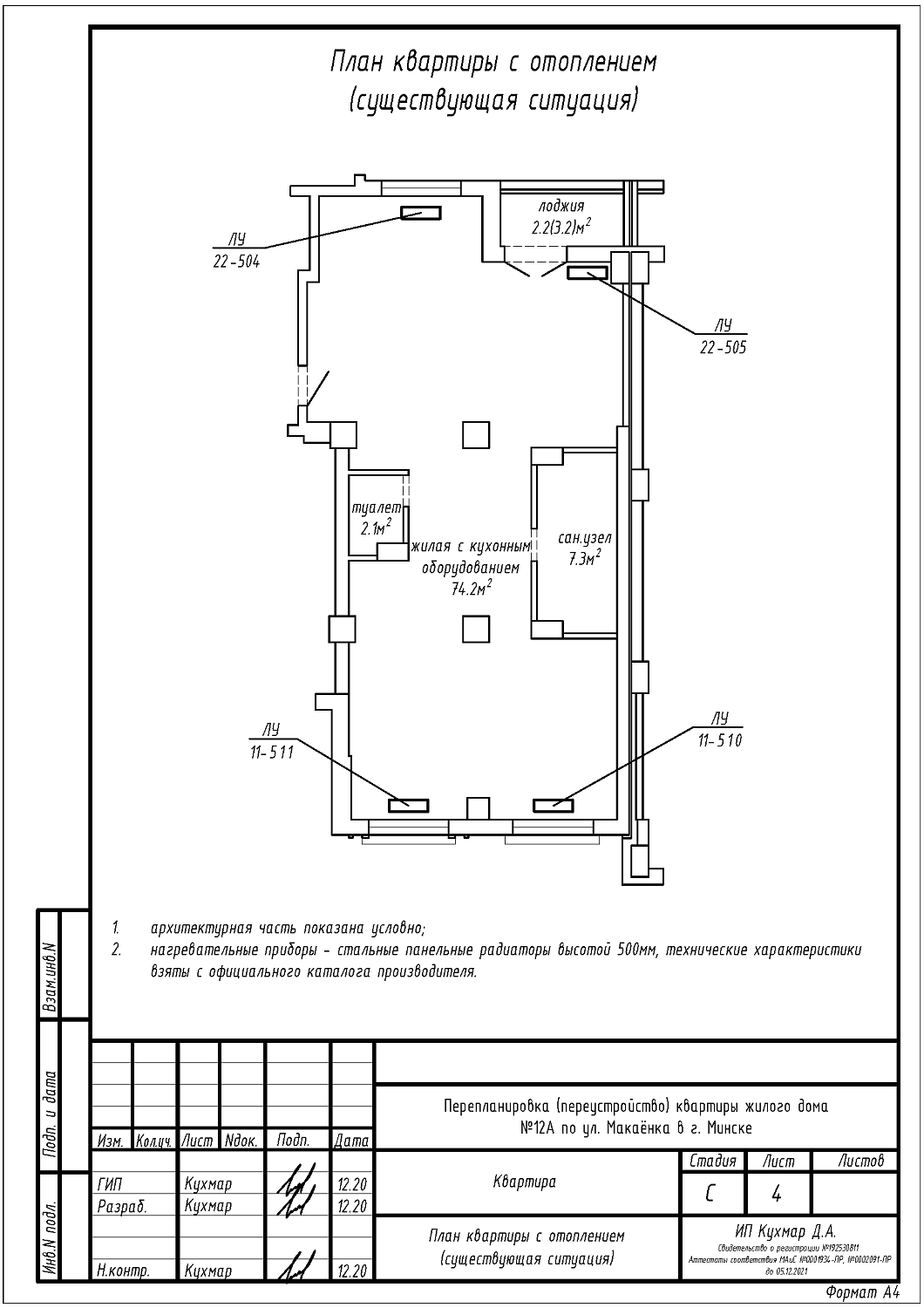
- Замена и перенос отопительных приборов.
Нами были разработаны следующие разделы проектной документации для согласования в исполкоме:
- АС - архитектурно-строительные решения;
- ОВ - отопление и вентиляция.
