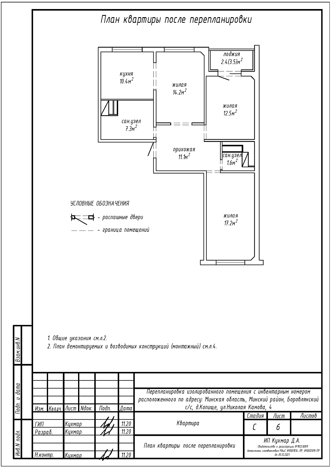
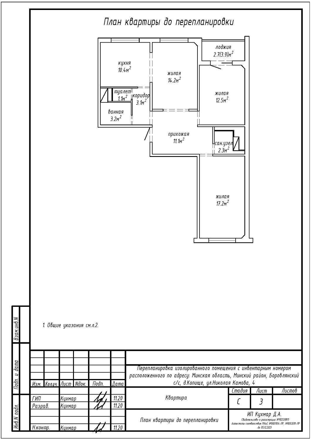
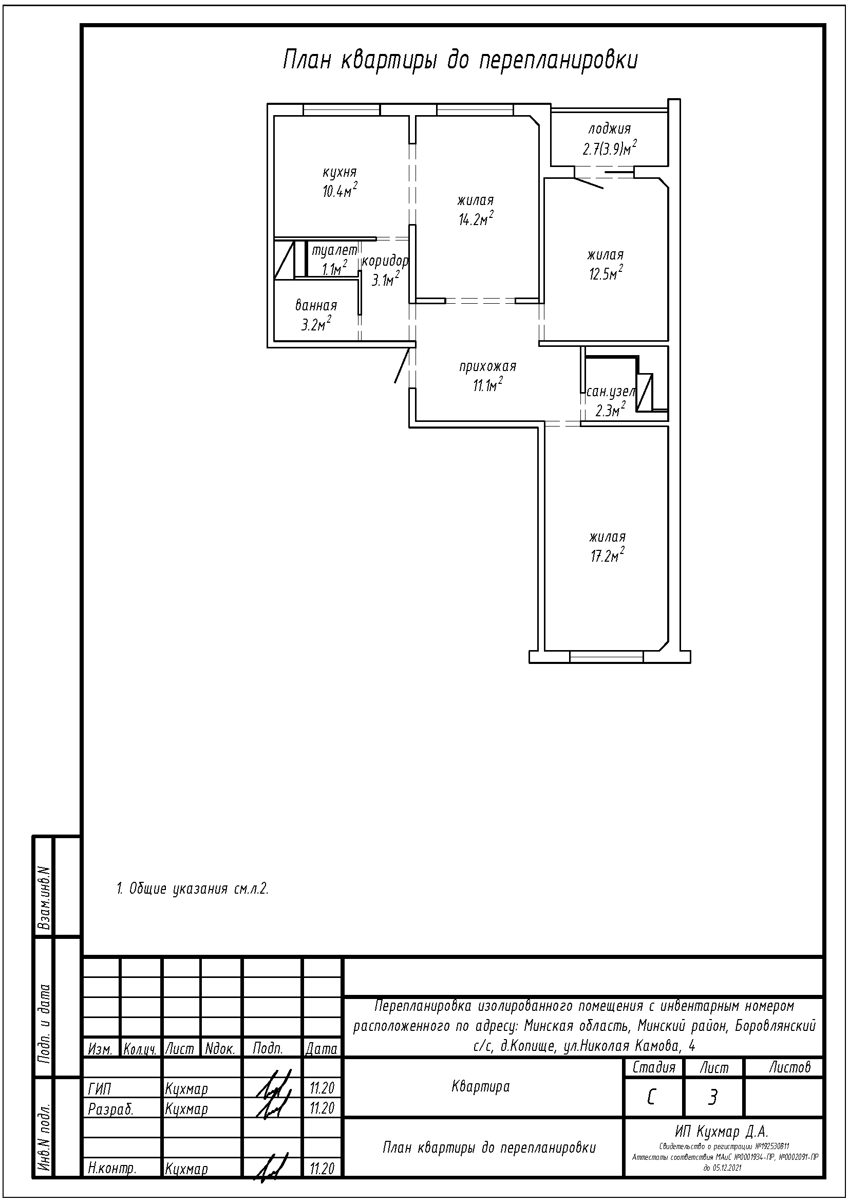
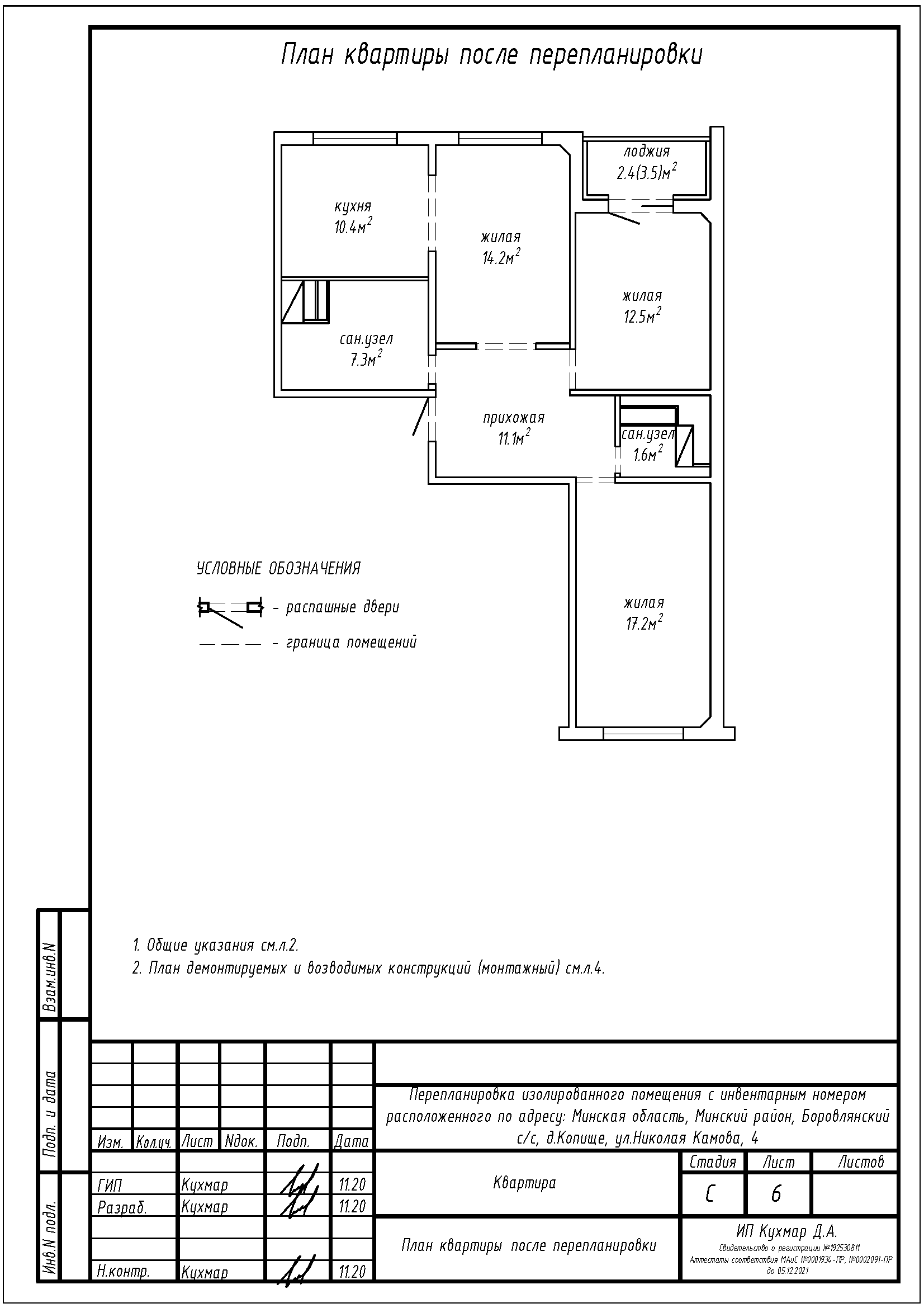
Перепланировка квартиры по ул. Камова, 4 в ЖК «Новая Боровая»
Пожелания заказчика:
- Объединение туалета и ванной в единый санузел;
- Изменение габаритов санузла;
- Закладка дверного проёма между кухней и прихожей;
- Сужение дверного проёма между жилой и прихожей;
- Сужение дверного проёма между санузлом и прихожей.
Нами были разработаны следующие разделы проектной документации для согласования в исполкоме:
- АС - архитектурно-строительные решения.
