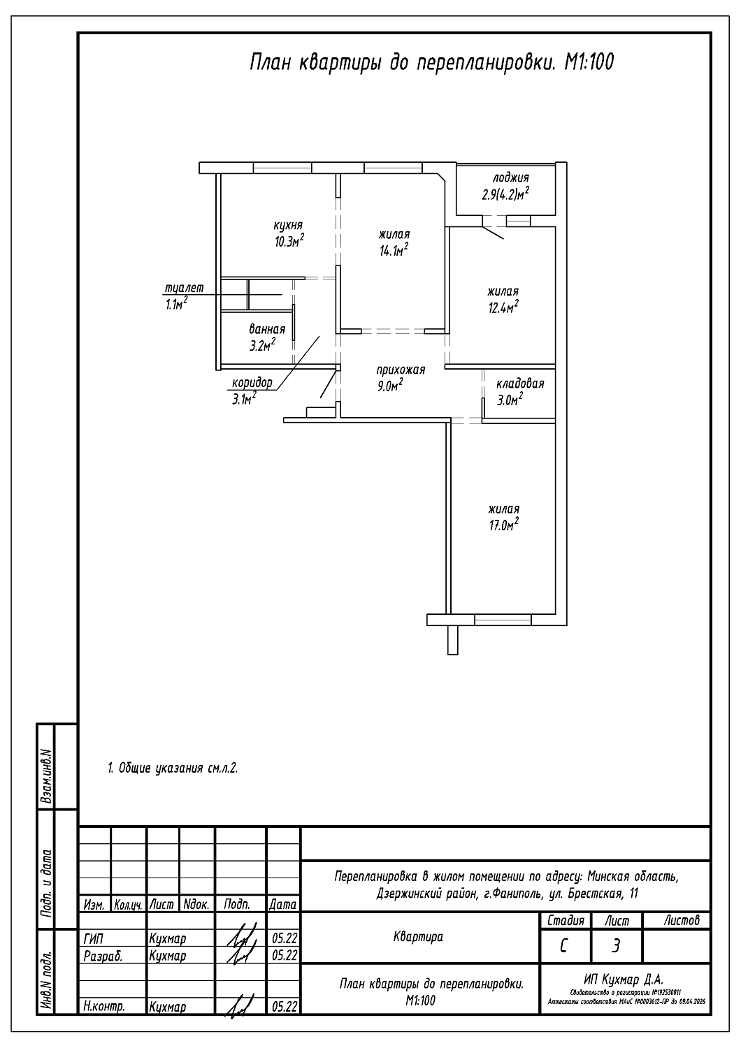
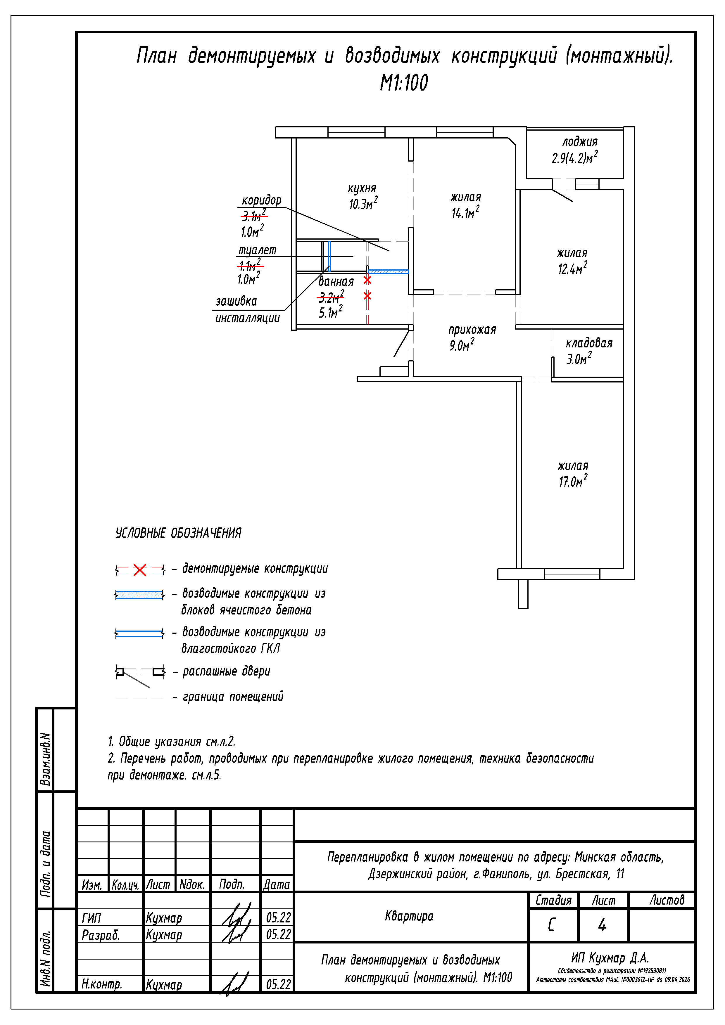
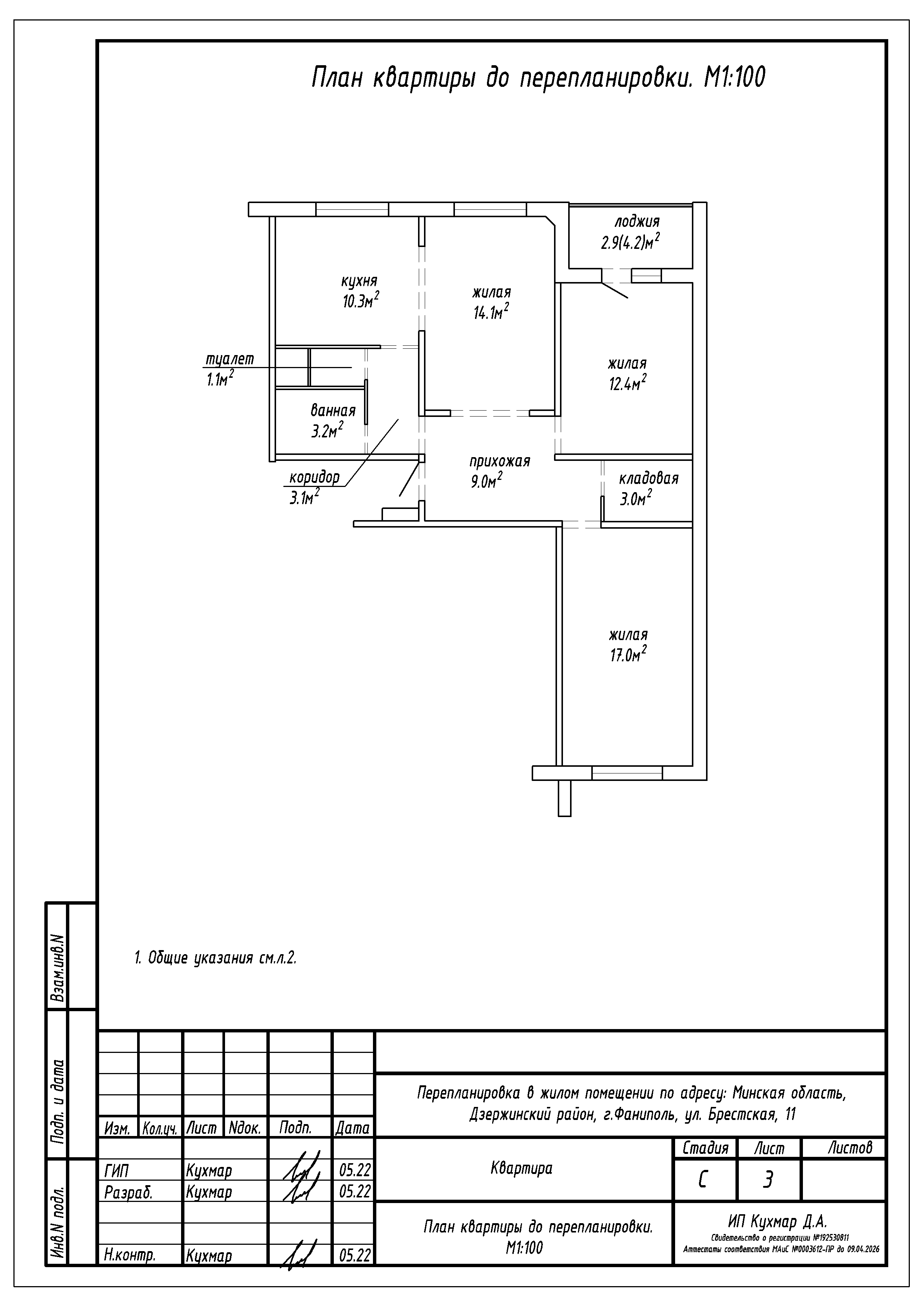
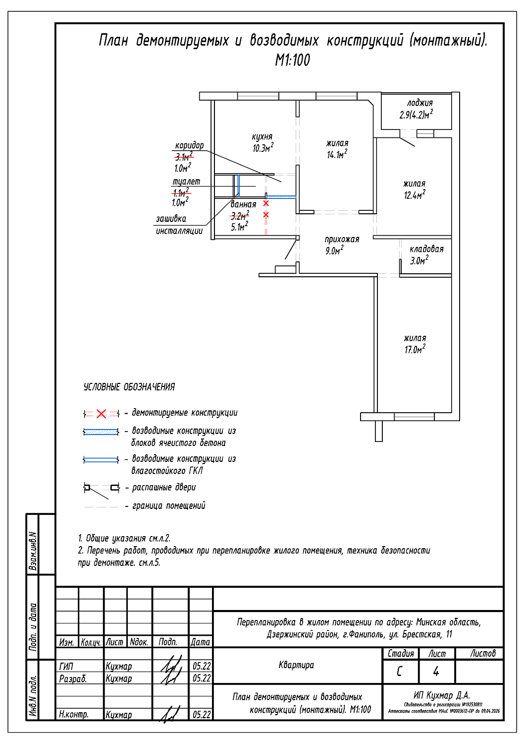
Перепланировка квартиры по ул. Брестская, 11 в г. Фаниполь
Пожелания заказчика:
- Устройство перегородки между ванной и туалетом;
- Увеличение площади туалета за счёт площади коридора;
- Увеличение площади ванной за счёт площади коридора;
- Устройство зашивок из ГКЛ на части площади туалета.
Нами были разработаны следующие разделы проектной документации для согласования в исполкоме:
- АС - архитектурно-строительные решения.
