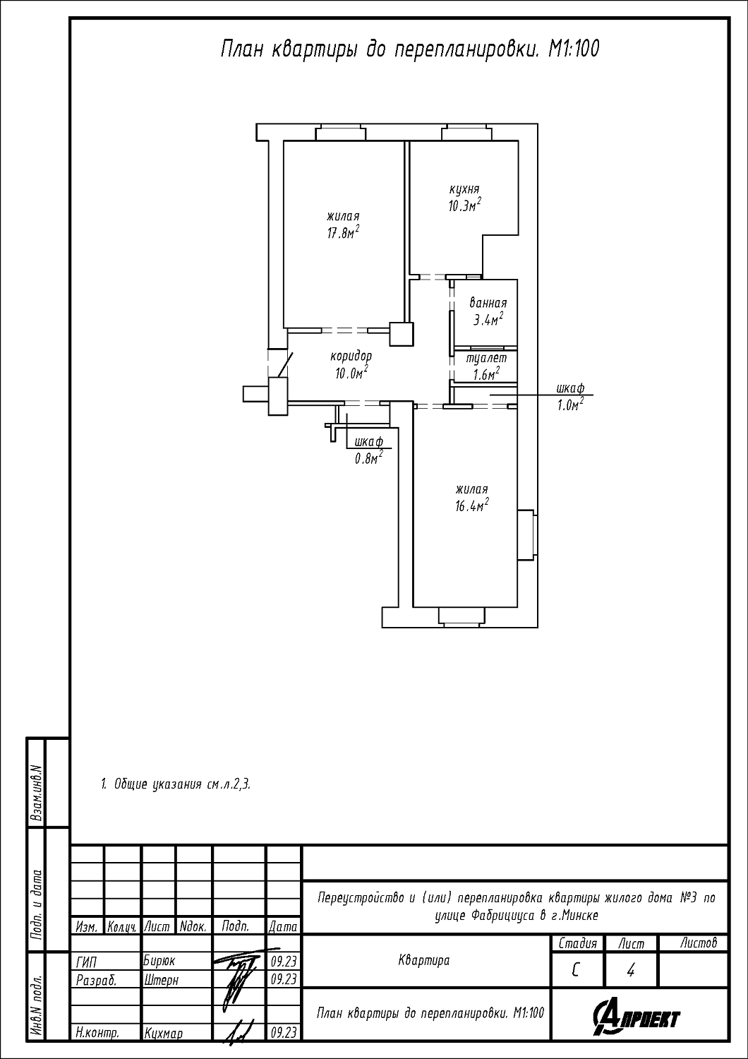
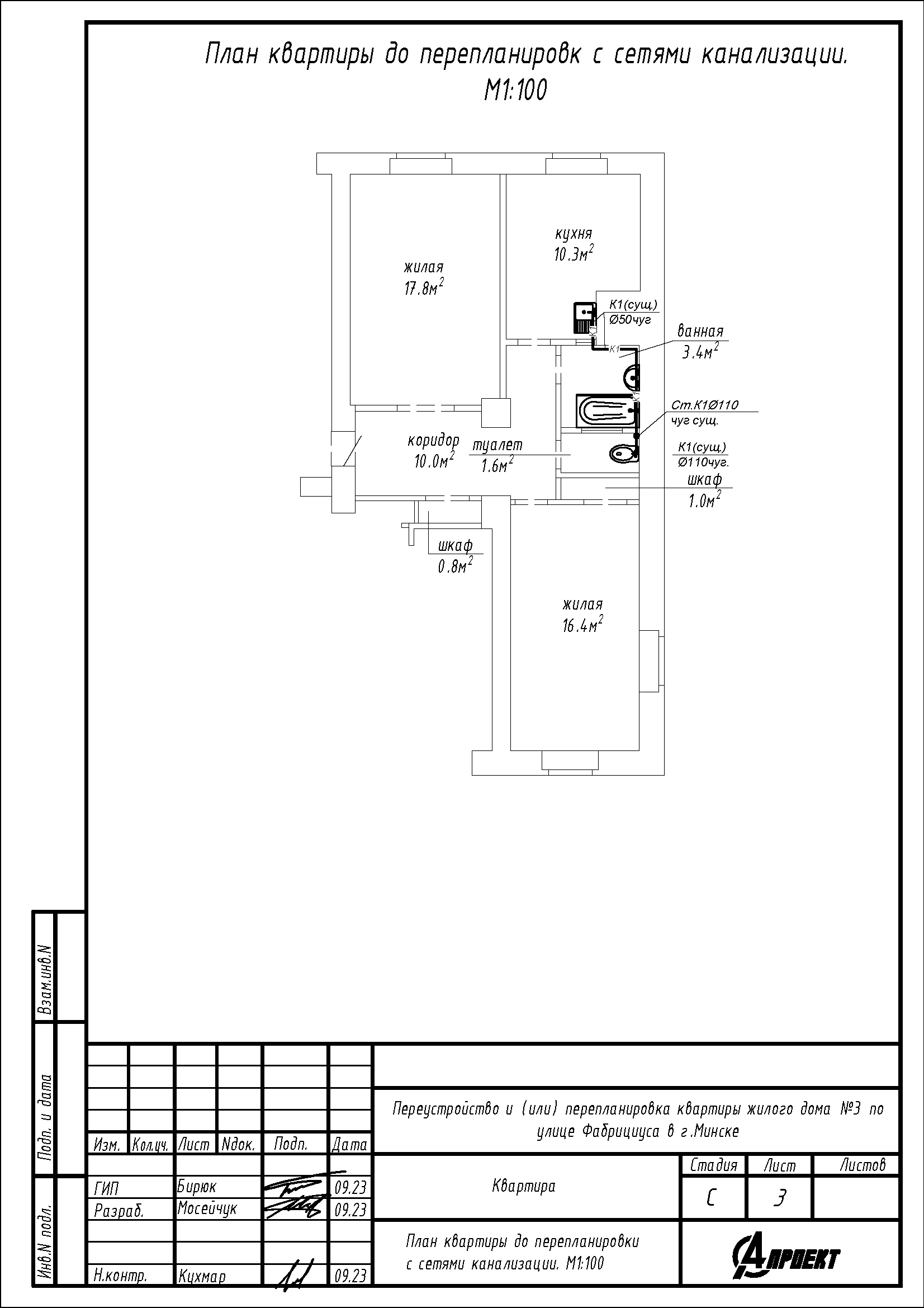
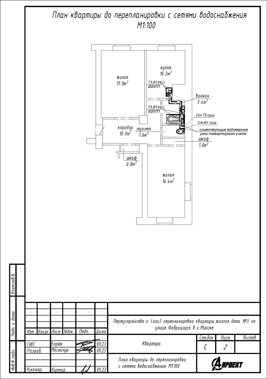
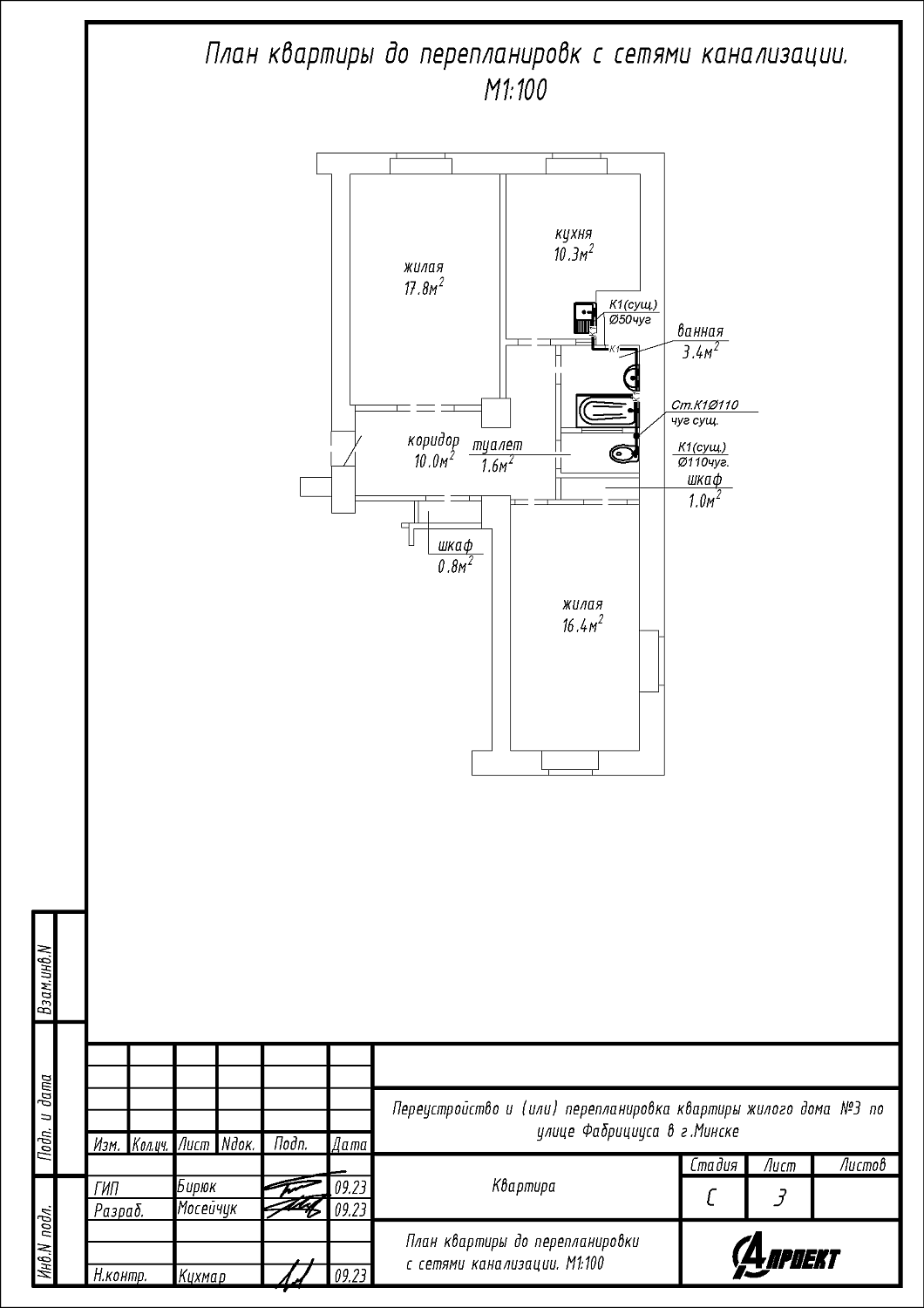
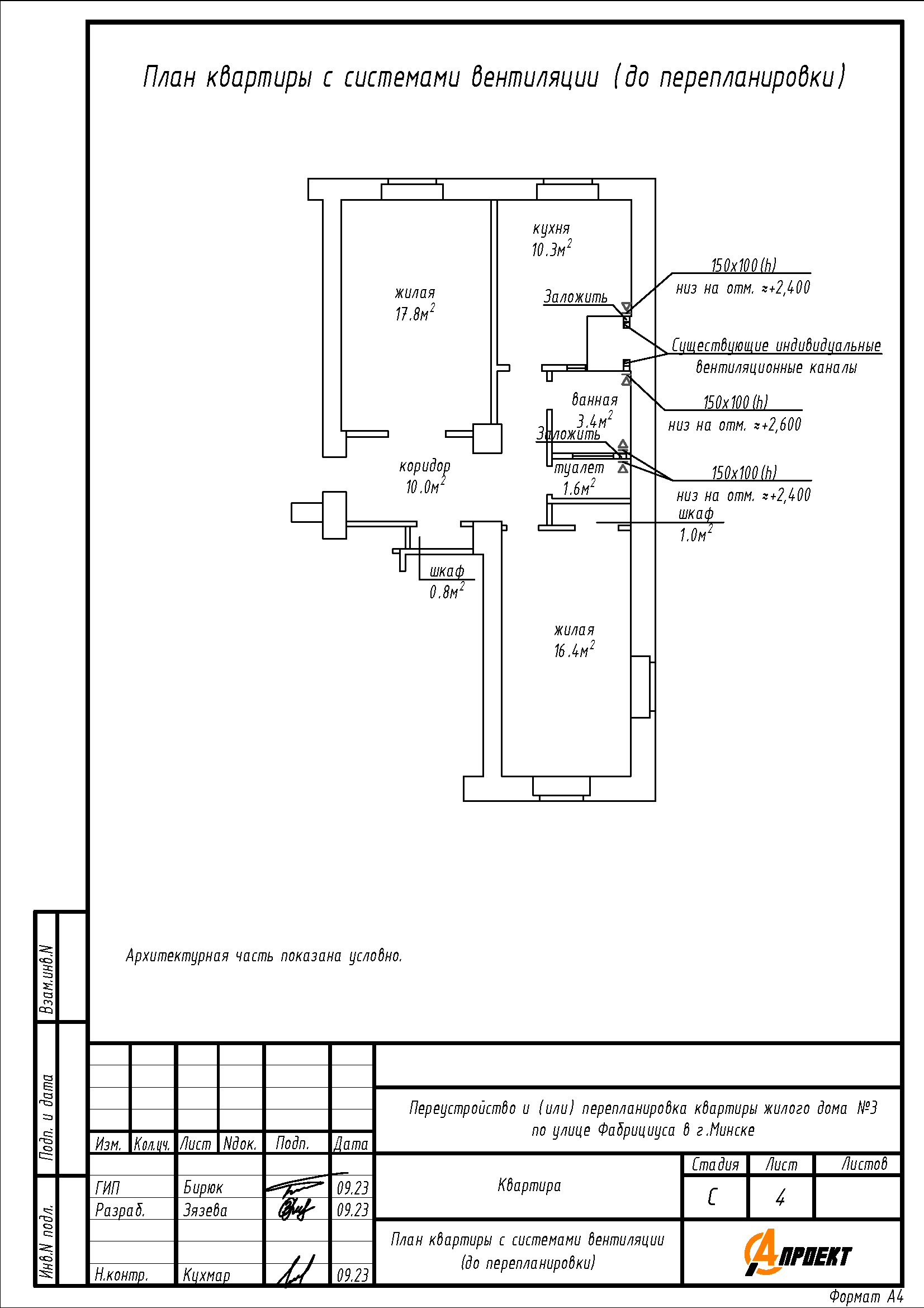
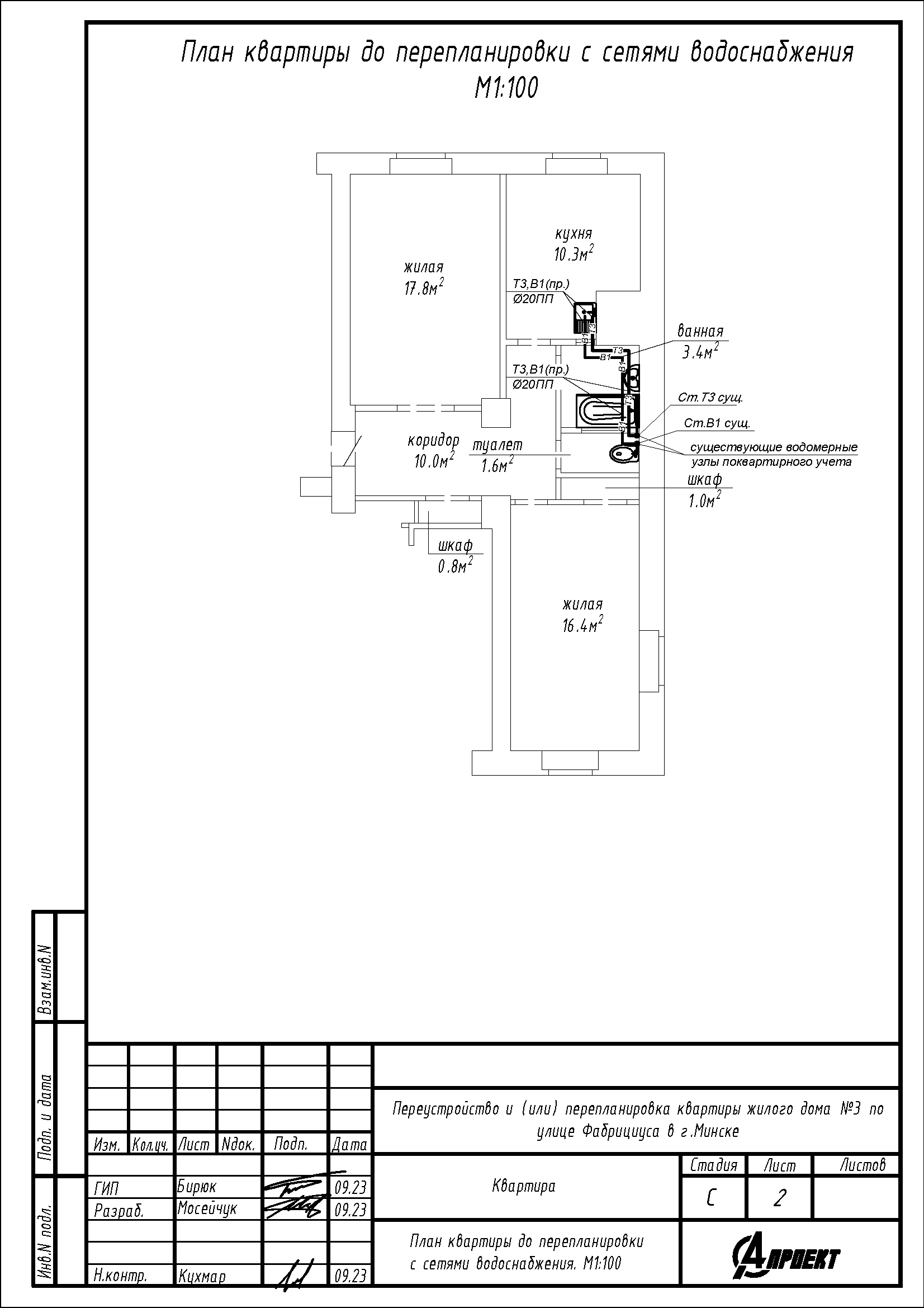
Перепланировка квартиры по ул. Фабрициуса, 3 в г.Минске
Пожелания заказчика:
- Демонтаж перегородок с дверным проемом между шкафом 1.0м2 и жилой 16.4м2;
- Смена назначения помещений: перенос кухни в жилую 16.4м2, жилой в кухню 10.3м2;
- Закладка оконного блока между ванной 3.4м2 и кухней 10.3м2;
- Переход с газа на электро.
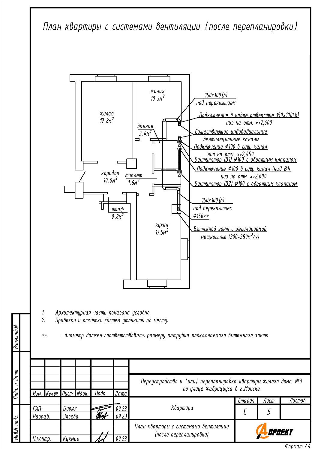
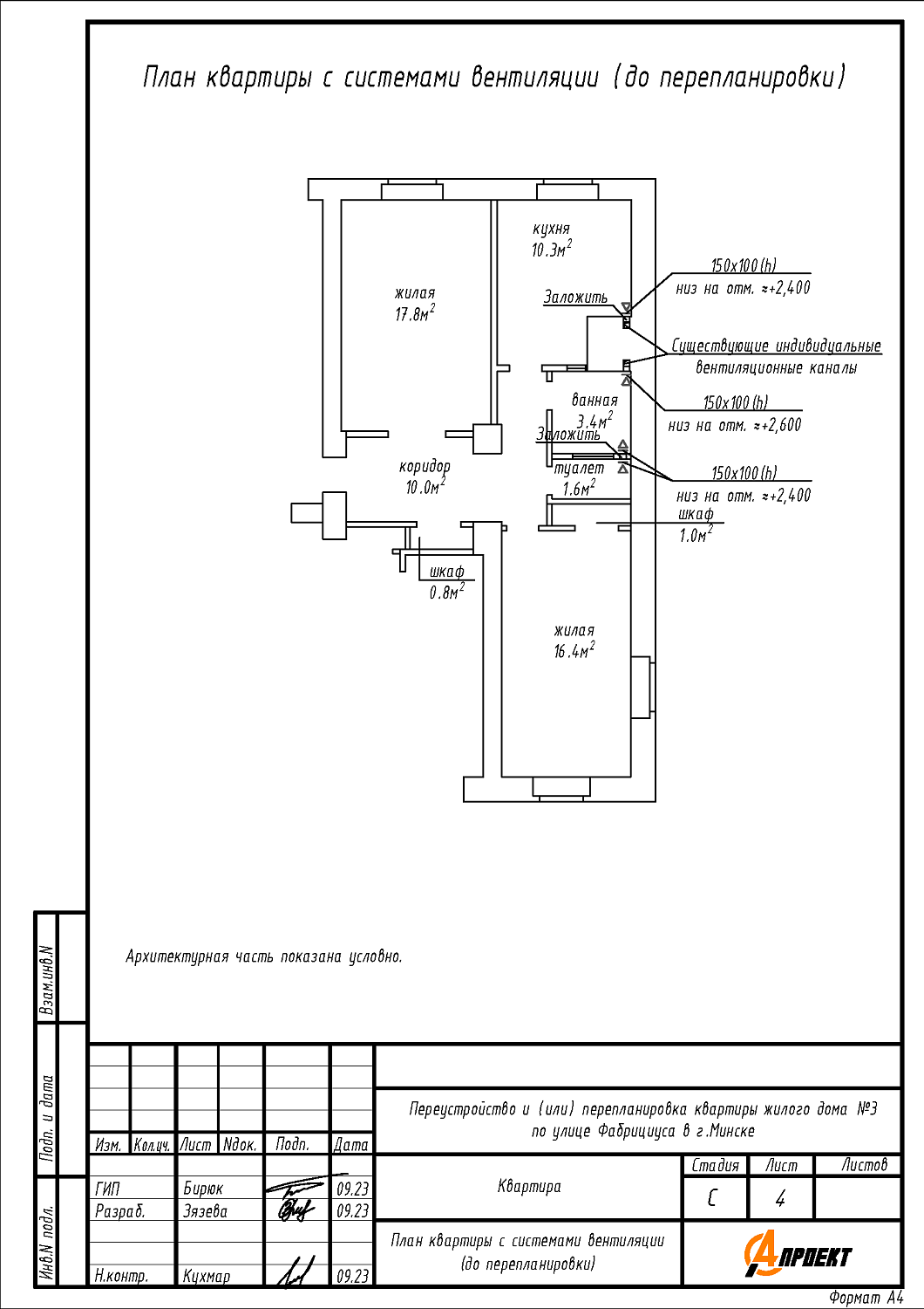
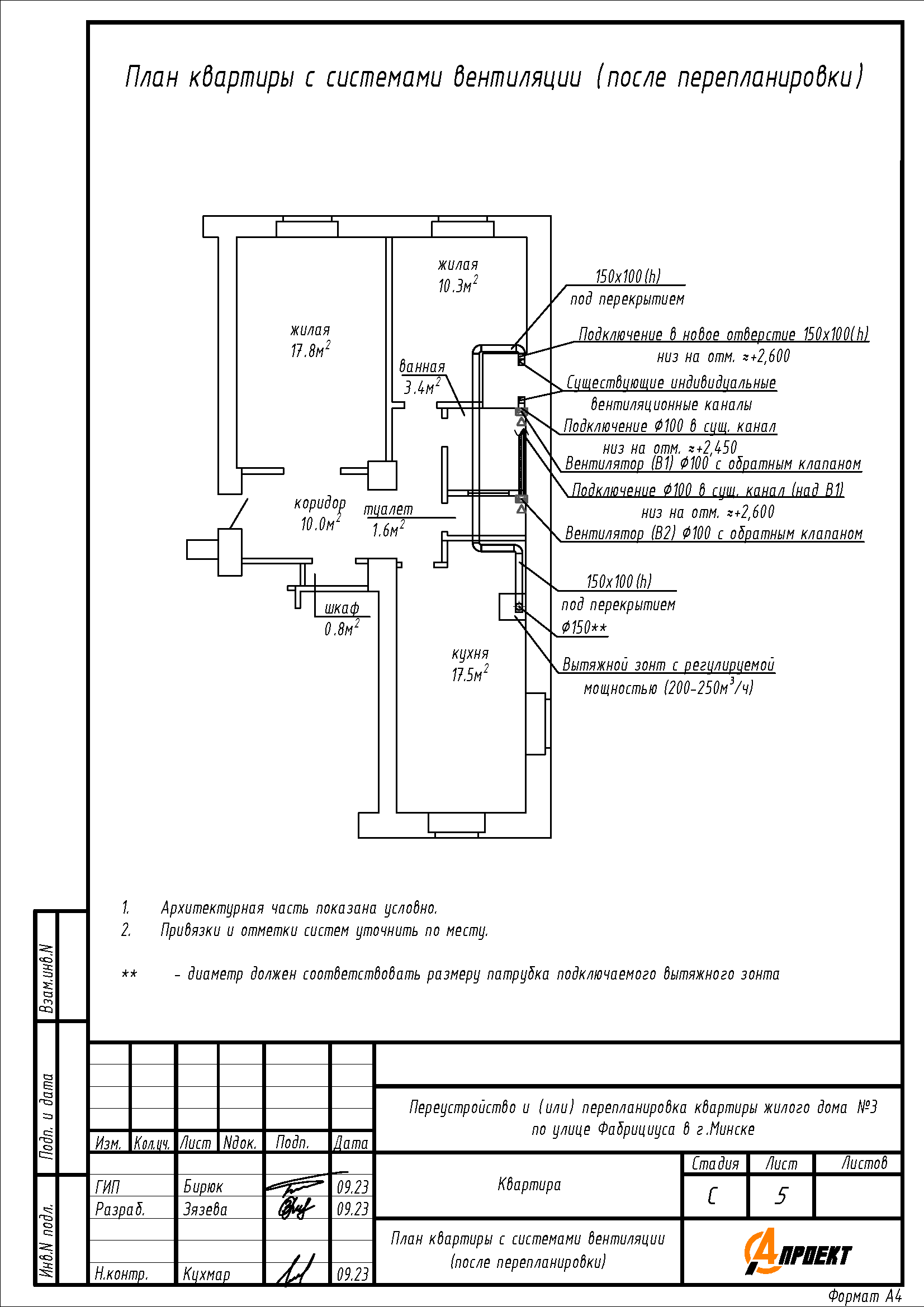
Нами были разработаны следующие разделы проектной документации для согласования в исполкоме:
- АС - архитектурно-строительные решения;
- ОВ - отопление и вентиляция;
- ВК - водоснабжение и канализация;
- ЭМ - электрооборудование. Монтаж.
