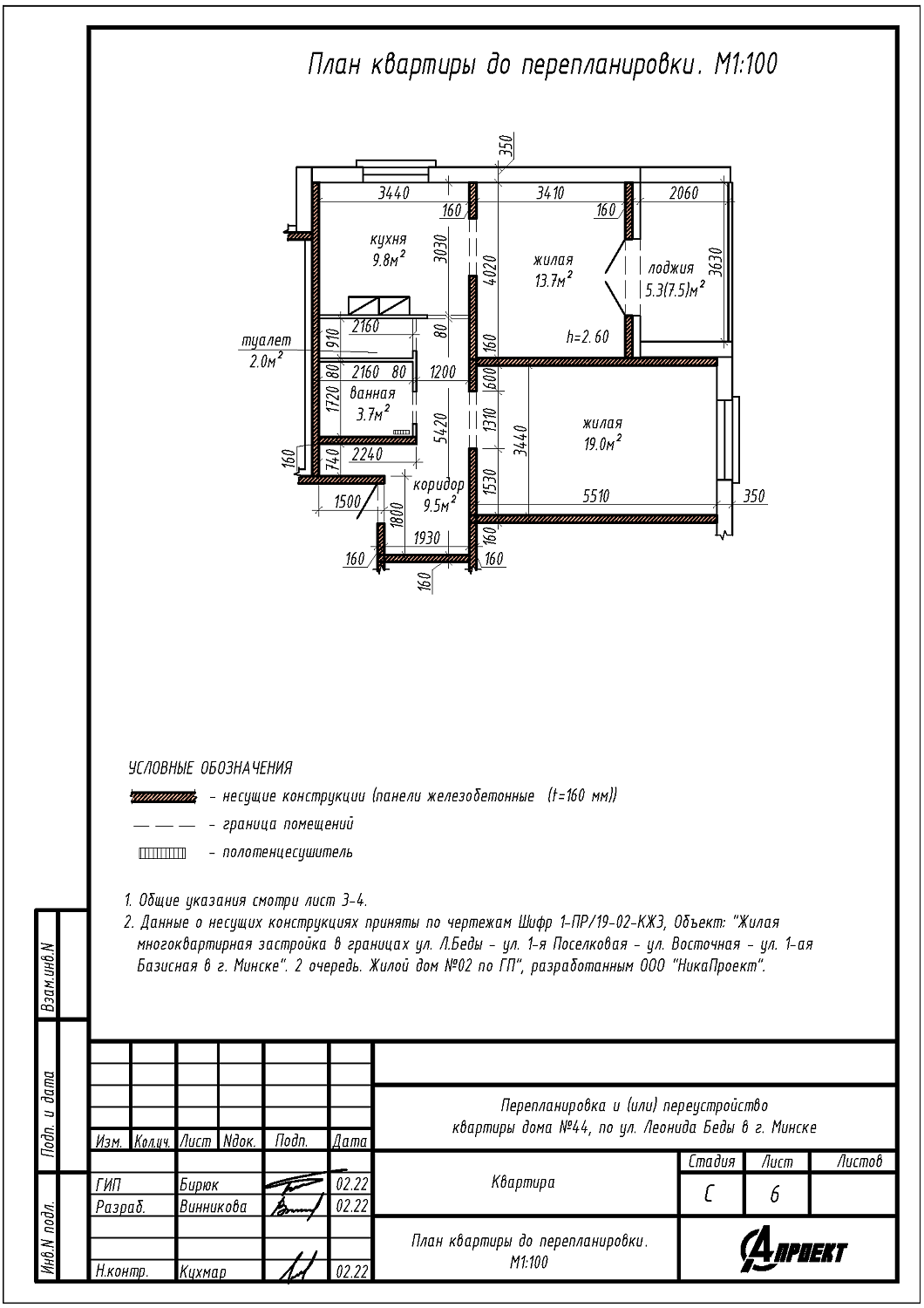
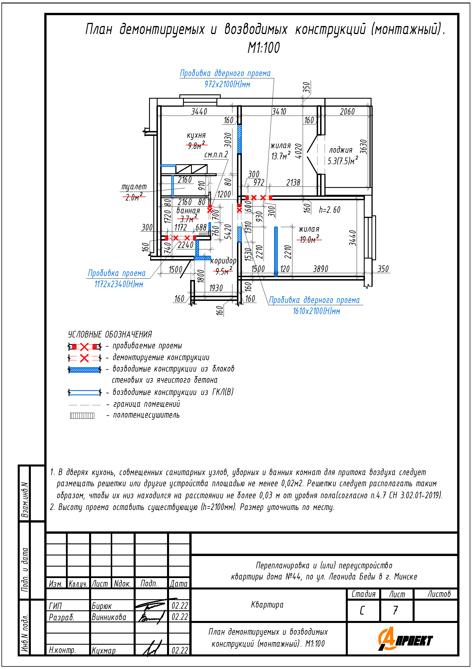
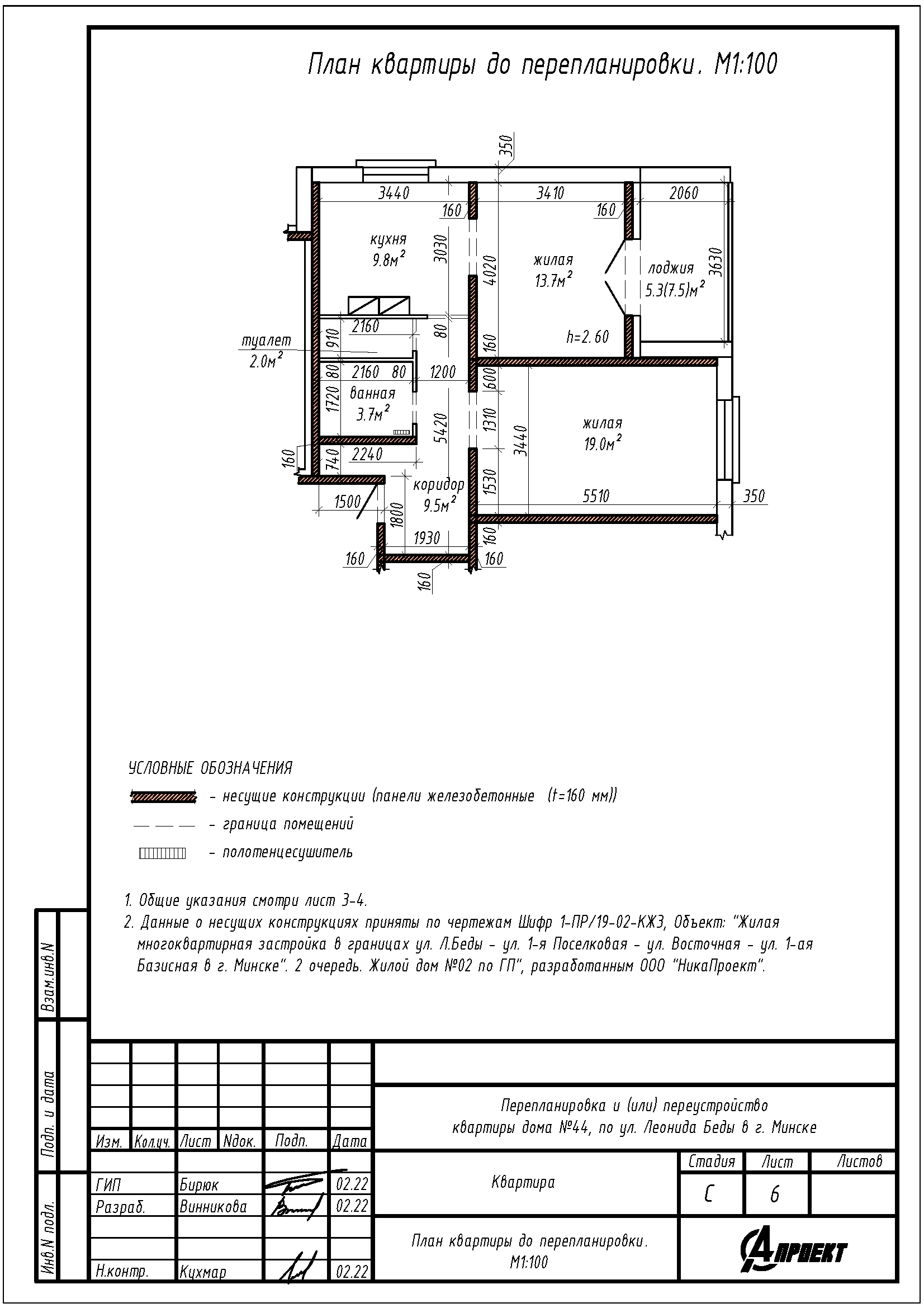
Перепланировка квартиры по ул. Леонида Беды, 44 в ЖК «4 Сезона»
Пожелания заказчика:
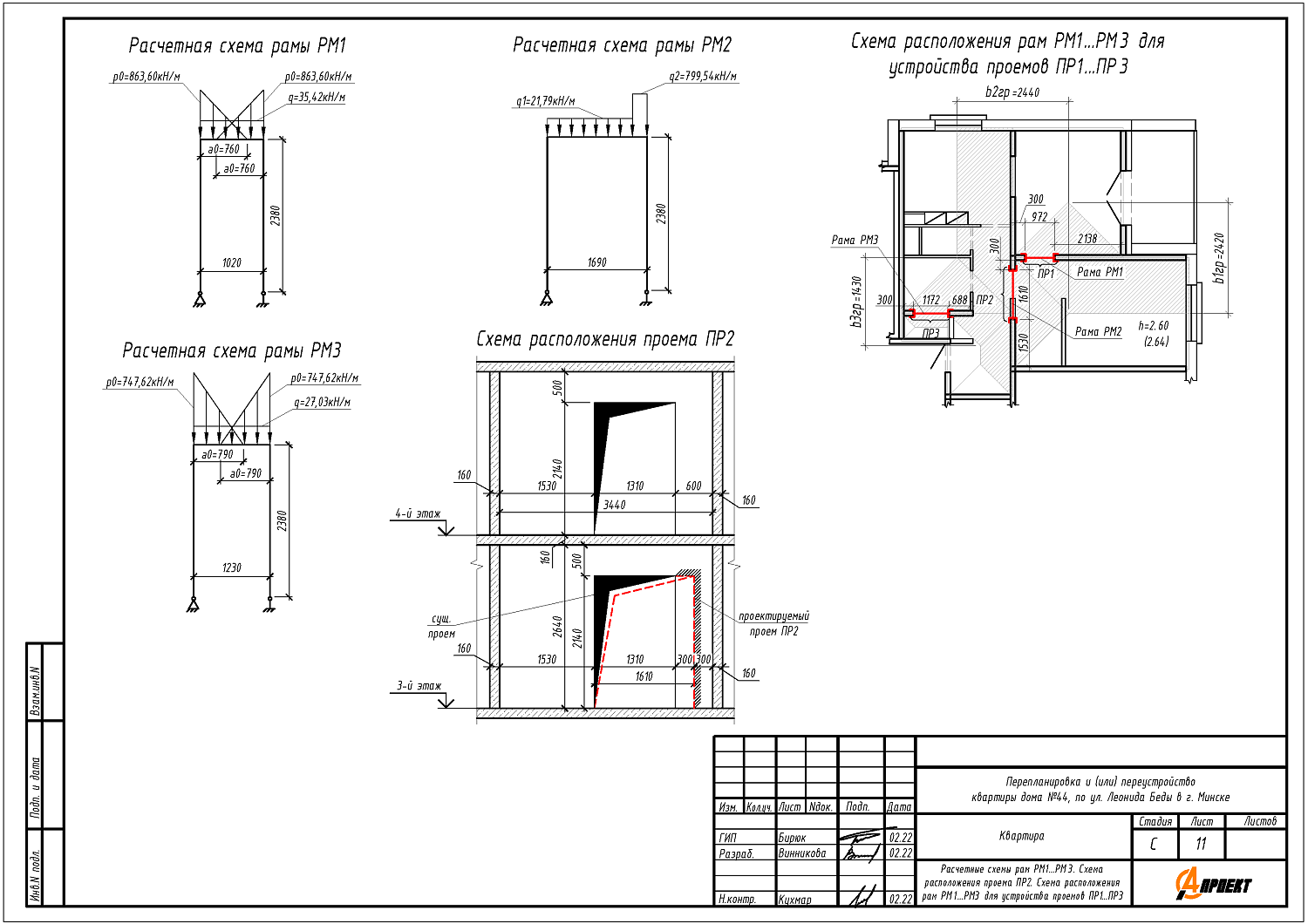
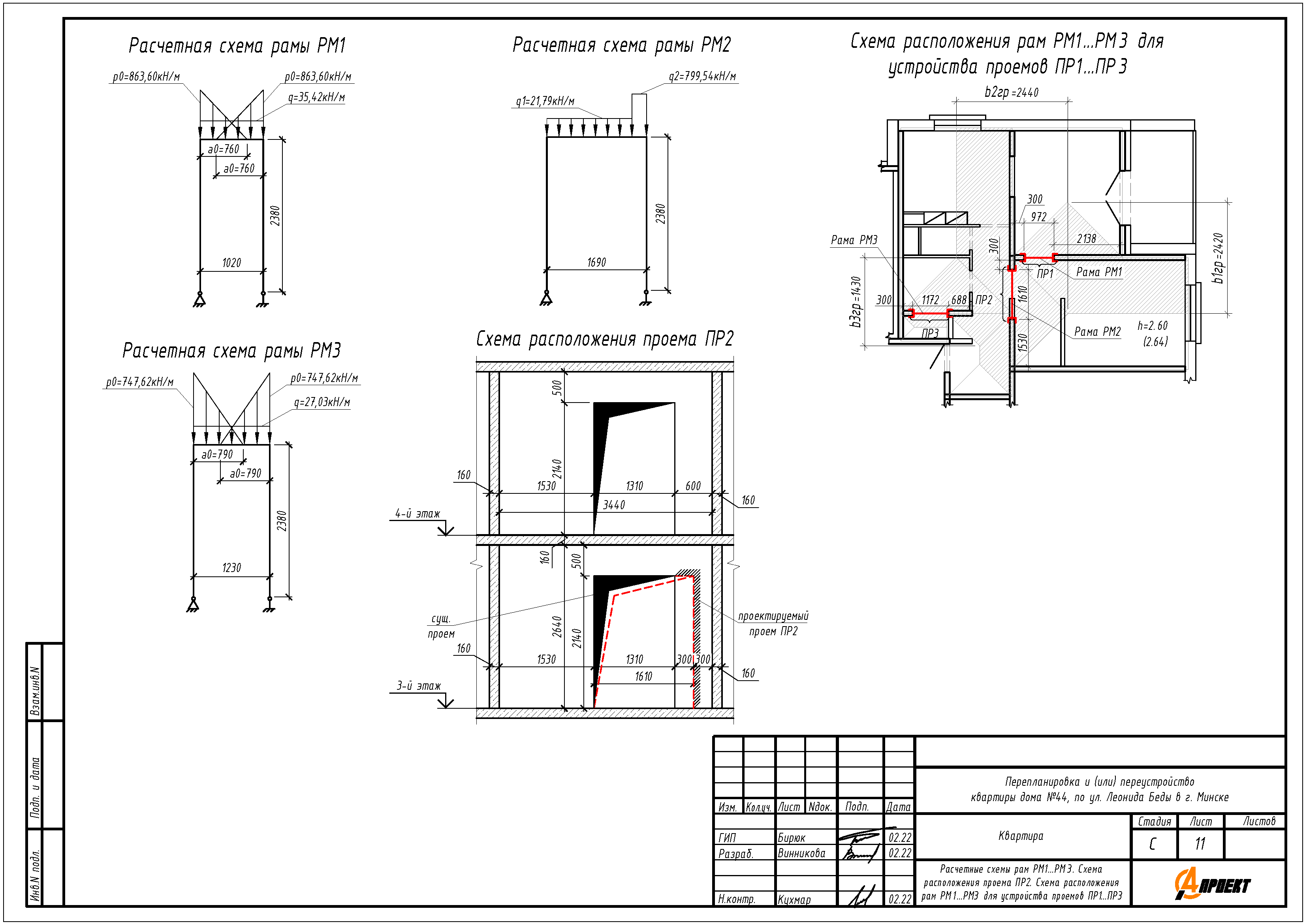
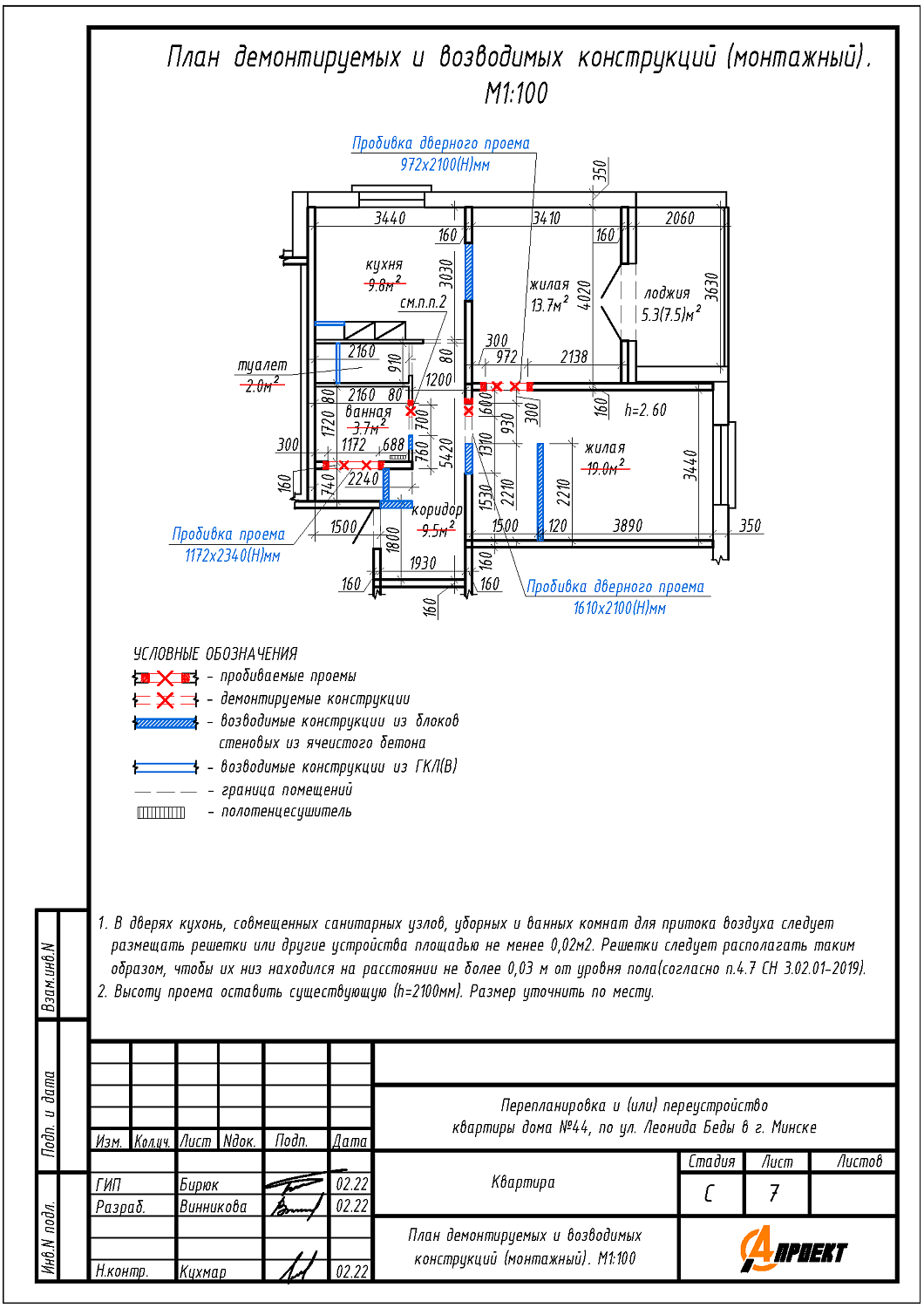
- Устройство проёма в стене между ванной и коридором;
- Смещение дверного проёма в несущей стене между ванной и коридором;
- Устройство зашивок коммуникаций в туалете;
- Устройство перегородок на части площади кухни;
- Закладка дверного проёма в стене между кухней и жилой;
- Смещение дверного проёма в несущей стене между коридором и жилой;
- устройство дверного проёма в несущей стене между жилыми;
- устройство перегородок на части площади жилой.
Нами были разработаны следующие разделы проектной документации для согласования в исполкоме:
- АС - архитектурно-строительные решения.
