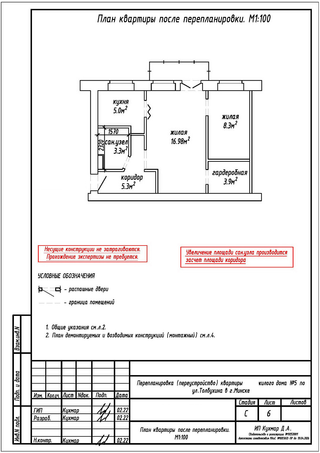
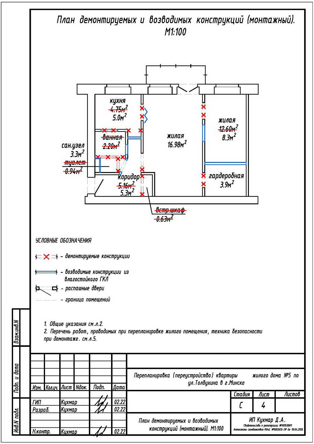
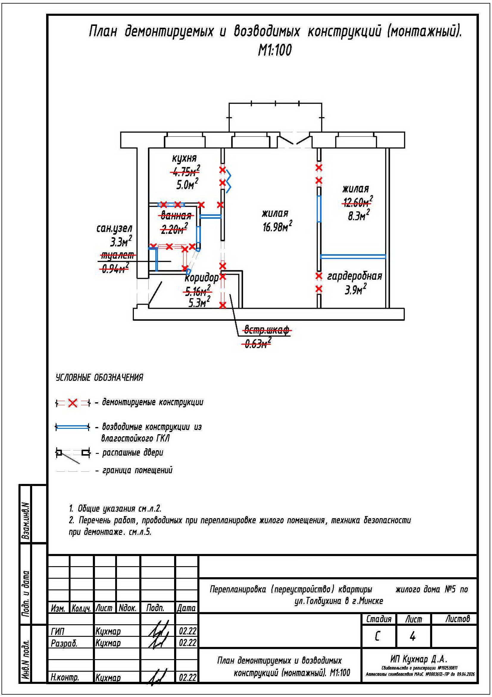
Перепланировка квартиры по ул. Толбухина, 5 в г. Минске
Пожелания заказчика:
- Закладка оконного проёма в перегородке между ванной и кухней;
- Закладка дверного проёма в перегородке между ванной и коридором;;
- Перенос дверного проёма в перегородке между жилой и жилой;
- Демонтаж части перегородок встроенного шкафа с целью увеличения коридора;
- Объединение ванной и туалета в единый санузел;
- Расширение дверного проёма между коридором и жилой;
- Устройство гардеробной на части площади жилой
Нами были разработаны следующие разделы проектной документации для согласования в исполкоме:
- АС - архитектурно-строительные решения.
