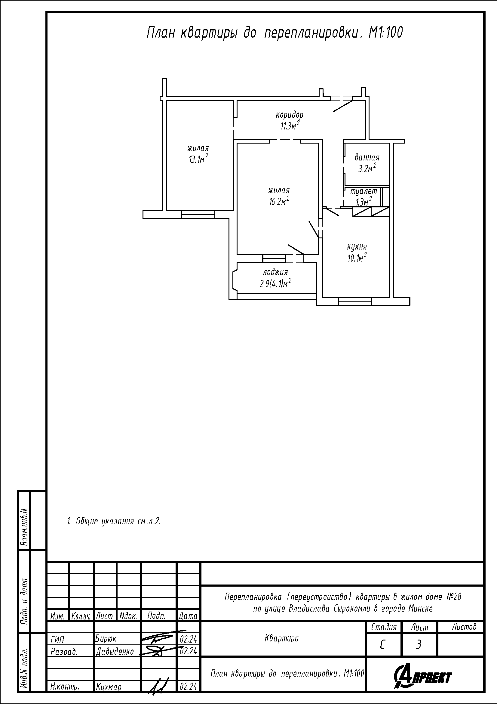
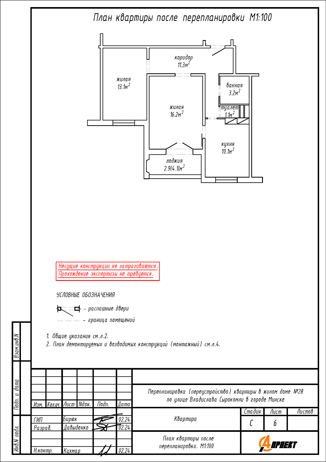
Перепланировка квартиры по ул. Сырокомли, 28 в г. Минске
Пожелания заказчика:
- Демонтаж окна с подоконной частью в жилой комнате 16,2 м2 с установкой остеклённого дверного блока выхода на лоджию;
- Уменьшение дверного проёма в стене между коридором и жилой;
- Устройство зашивки из ГКЛ на части площади туалета;
- Замена и перенос существующего отопительного прибора.
Нами были разработаны следующие разделы проектной документации для согласования в исполкоме:
- АС - архитектурно-строительные решения;
- ОВ - отопление и вентиляция.
