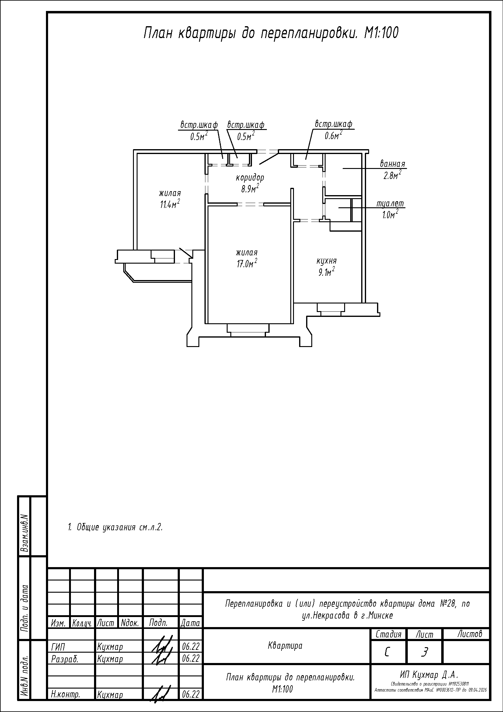
Перепланировка квартиры по ул. Некрасова, 28 в г. Минске
Пожелания заказчика:
- Демонтаж встроенных шкафов;
- Демонтаж подоконной части в стене между жилой и балконом с устройством дверного блока;
- Смена направления открывания входной двери;
- Замена и перенос существующих отопительных приборов.
Нами были разработаны следующие разделы проектной документации для согласования в исполкоме:
- АС - архитектурно-строительные решения;
- ОВ - отопление и вентиляция.
