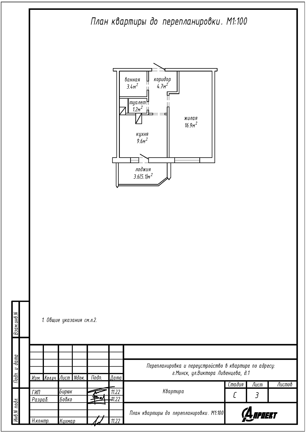
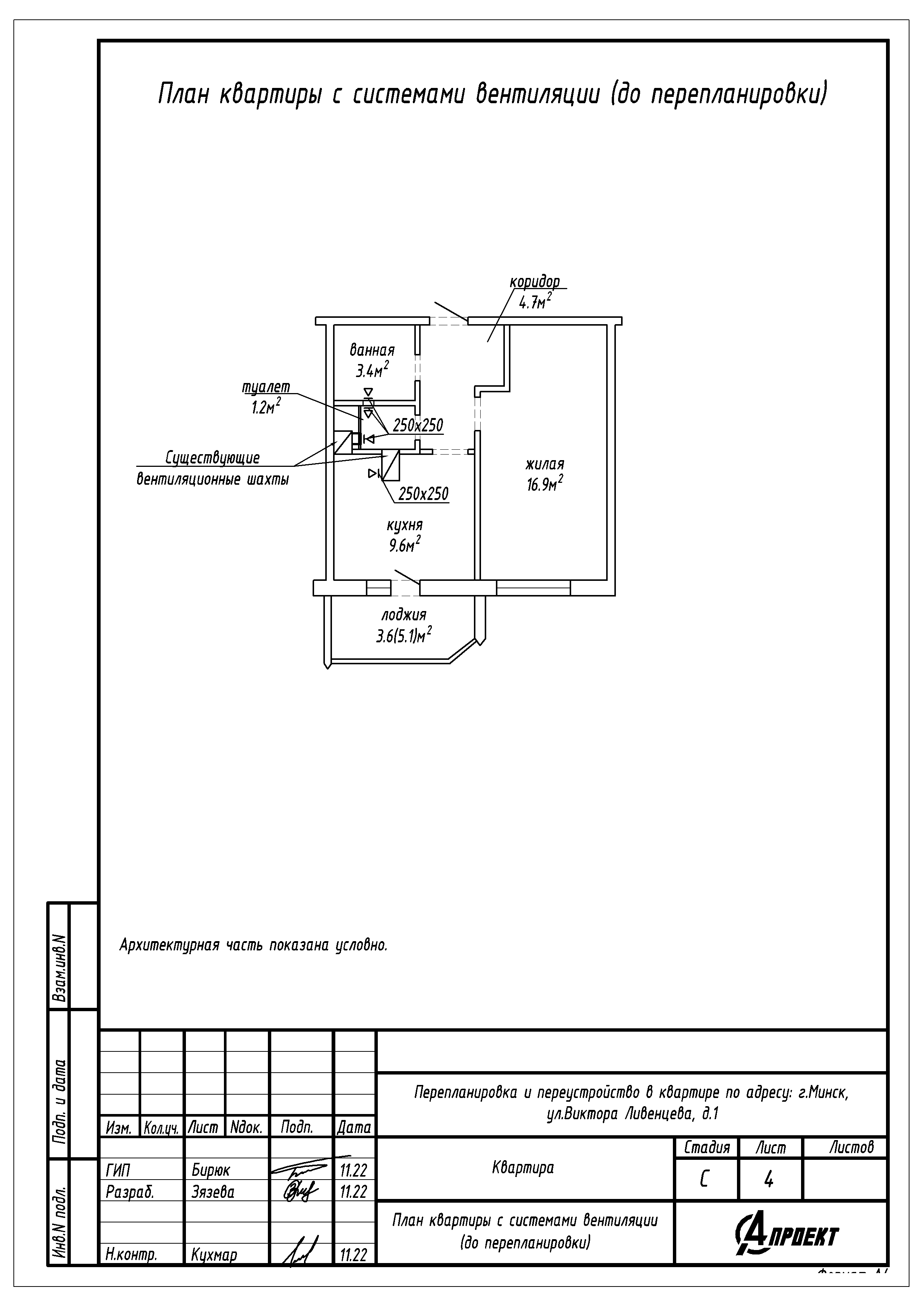
Реконструкция квартиры по ул. Ливенцева, 1 в г.Минске
Пожелания заказчика:
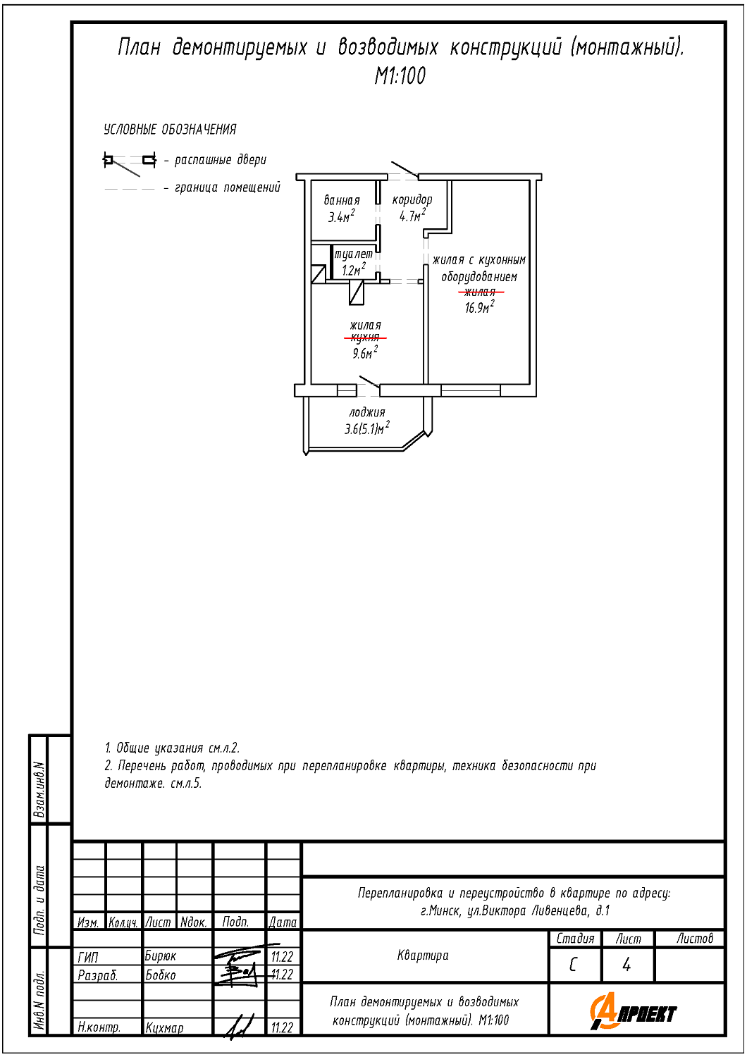
- Устройство жилой с кухонным оборудованием на площади жилой;
- Устройство жилой на площади кухни.
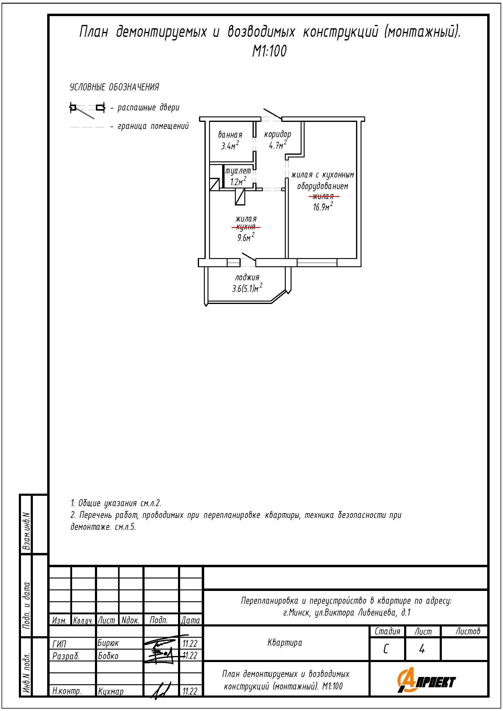
Нами были разработаны следующие разделы проектной документации для согласования в исполкоме:
- АС - архитектурно-строительные решения;
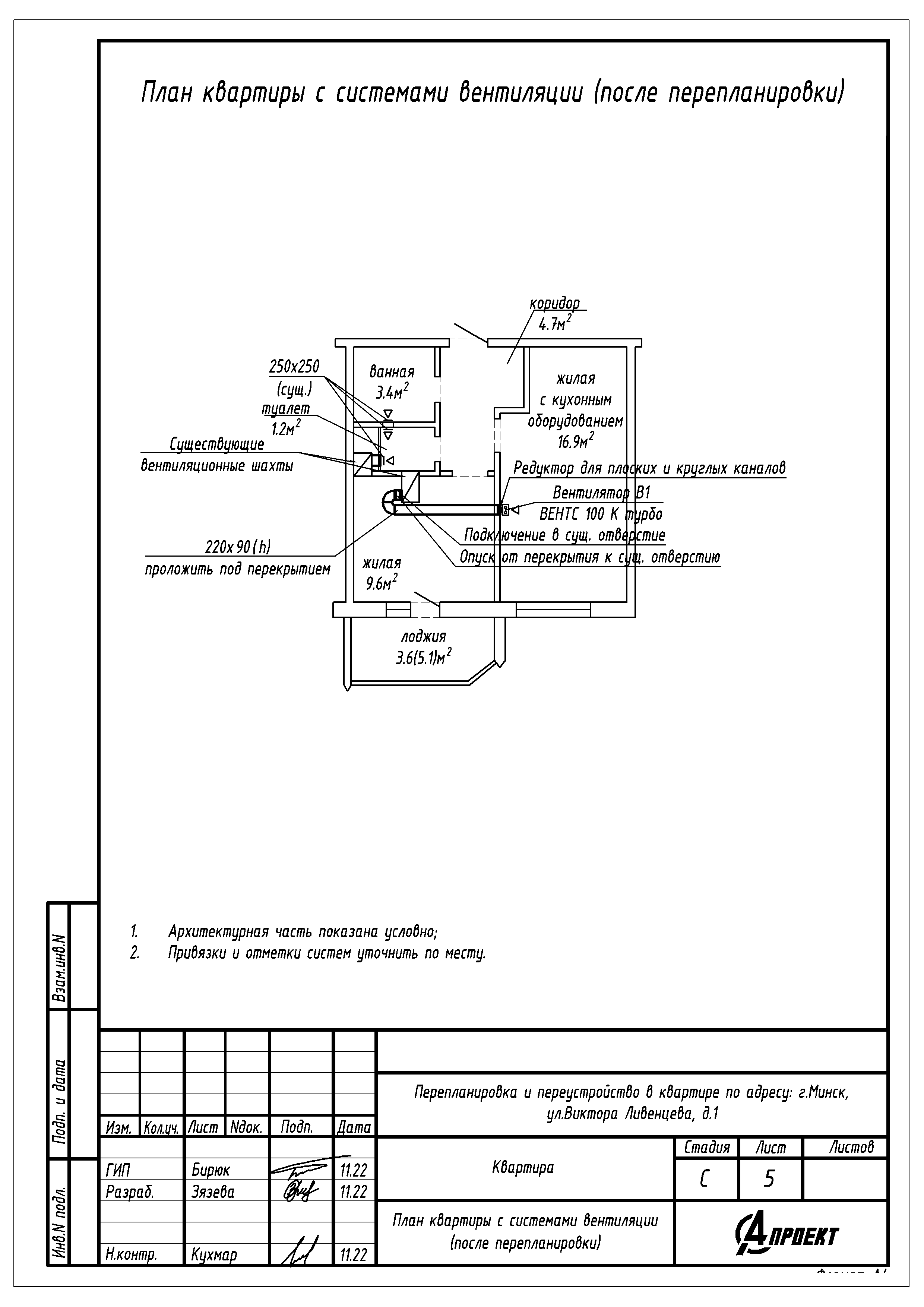
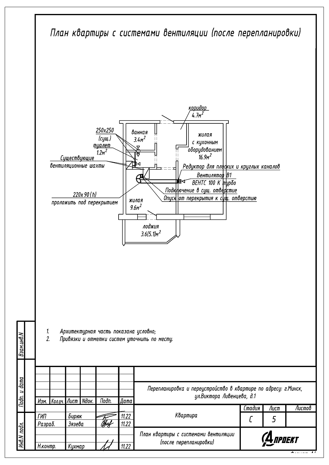
- ОВ - отопление и вентиляция;
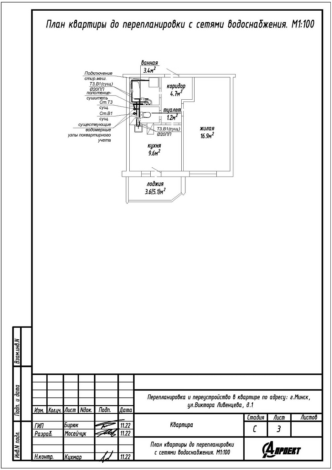
- ВК - водоснабжение и канализация.
